
乐大姐
FM104.8《家在苏州--乐大姐说装修》栏目特邀嘉宾,
赫博别墅设计创始人之一;
多次受邀成为院校家居的授课讲师;
98年至今,
为万千家庭打造幸福家居同时,也相互成为了好朋友。
任何与装修有关的问题,欢迎您添加乐大姐微信:13382103377,
乐大姐会为您做一对一解答。

THE BEAUTY OF LIFE IS WORTH YOUR TASTE人生的最美,
就是一边走,
一边拣拾散落在路旁的花朵,
那么他的一生将美丽而芬芳。
本案是一个四口之家,爸爸妈妈,还有两个女儿,大女儿刚初中毕业,后期可能会住校,小女儿正在上幼儿园,所以设计时更多考虑的是业主夫妻两居住的舒适性和便利性。女业主喜欢莫兰迪色系,喜欢木饰面和白色石材的感觉,希望有更多的收纳空间,不喜欢主灯,所以在跟乐大姐团队深入沟通后,最终选定为现代简约风。步入客厅之中,迎面而来一派清新淡雅之感。整个空间以莫兰迪蓝为主色调,不妖不艳,不张不扬,同时又与整个画面当中的灰色、白色、木质等点缀色相互制约、相互抵消,达到视觉上的完美平衡,给人一种平和自持、舒缓雅致的感觉。无主灯设计贯穿整屋,照明主次分明,赋予多变灯光氛围。一抹绿枝,在空间中落下婆娑摇曳的光影,惬意之感油然而生……
客厅是会客闲谈的区域,对空间的要求是视线开阔,采光通透,乐大姐团队设计师将宽6米多的大开间保留下来,以沙发为隔断,将空间一分为二,一部分用来会客,一部分用来做开放式书房,这样不仅视线十分开阔,还可以实现休闲和办公一体化。同时,将阳台打通包进客厅,营造出通透舒朗的环境表现,整体视野更加开阔。阳光灿烂处摆放一套沙发茶几,将成为居住者悠闲时享受阳光、呼吸新鲜空气的好去处。
从客厅进入女儿房的门采用隐形门设计,木格栅和白色石材的材质之间的对比,不仅很大程度上扩大了原本电视背景墙的宽度,且让整个背景更富有趣味性。



餐厅是一个家的核心,水吧台和方桌相结合的形式,让开放与互动的精妙在此处得以展现,提升了用餐的舒适感。整个空间通过莫兰迪蓝、高级灰、质感黑的色彩构成来渲染氛围,描摹了城市精英阶层向往的休闲生活场景。大理石、金属、皮质,诠释出空间的精致质感。
因业主比较喜欢自己的空间干净整洁,所以乐大姐团队设计师在设计主卧背景时采用了大面积的莫兰迪蓝+半高格栅软包来修饰视觉空间的延伸效果,同时也成功地烘托了卧室清爽大气、悠然自得的氛围。两边床头灯,不对称式的设计,给空间增添了一丝丝的趣味性。
转角飘窗,给主卧提供了更广阔的视角和更优质的采光,也为业主提供了一个独立思考和阅读的惬意空间。乐大姐团队设计师的设计美学是精致有趣的,是量身定制的。考虑到女儿房空间并不大,所以采用榻榻米+收纳柜+书桌的设计,这样不仅可以实现基本的功能需求,还让空间利用得更加合理。亮眼橙的点缀,明快活泼而不失温软。

每个微妙而精致的空间都经过精心设计,以独特的材质、纹理和清爽的色调组合突出令人羡慕的家。

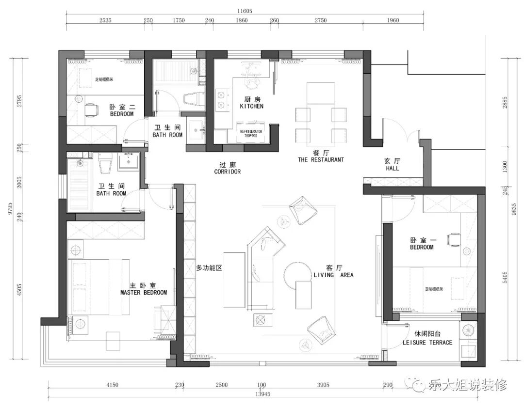
改造后户型图
本案是一个三室两厅的户型,户型比较方正,功能完整,能够满足一家四口的日常居住需求,所以整体空间改动不大。
考虑到客厅的空间感,乐大姐团队设计师把阳台移门拆除,将阳台纳入客厅中,让阳台和客厅融为一体。
电视背景墙后面的女儿房采用隐形门设计,右侧则用木饰面与之做了对称呼应,从而保证背景的完整性。
点击左下方“阅读原文”,即可在线免费看本案例全景图(360°)。
https://vr.justeasy.cn/view/1k6935n406izu910-1642397147.html