发布时间:2022-03-07
乐大姐
FM104.8《家在苏州--乐大姐说装修》栏目特邀嘉宾,
赫博别墅设计创始人之一;
多次受邀成为院校家居的授课讲师;
98年至今,
为万千家庭打造幸福家居同时,也相互成为了好朋友。
任何与装修有关的问题,欢迎您添加乐大姐微信:13382103377,
乐大姐会为您做一对一解答。

- -
项目地点:园区泊云庭(精装修软装搭配)
项目面积:132㎡
项目风格:混搭风(美式混搭现代轻奢)
项目性质:全屋整装
项目状态:正在施工
「心安即归处」
本案是三口之家,男业主也是做设计的,虽然不是室内设计,但用业主自己的话说跟乐大姐团队也算是半个同行了,所以对这套房子的设计要求很高。而原始结构中,本案客餐厅的开间只有5.6米,如按常规设计摆放则太拥挤,那么该如何规划呢?且,业主夫妻两虽然对装修风格的选定不太明确,却提出希望在优雅、包容、简约的基础上见缝插针地来点美式的调调,这又该如何设计呢?
本案位于园区,是开发商精装修的楼盘,原本交付的标准比较低,可以说是“简单风格”,完全不符合业主一家三口的居住要求,所以业主夫妻两决定找到乐大姐团队根据他们的需求、喜好以及房子自身结构来改造搭配,细化空间设计,打造一套专属于自己的美式混搭现代轻奢风的家。
客厅+餐厅
推开门,入眼便是通透的玄关,到顶的正冠镜与餐边柜的切角设计从视觉上延长门厅的空间,整面的柜子成为居家收纳主力,搭配灰色大理石纹地砖,自然温馨,温暖油然而生。
书房
主卧
主卧的自然氛围得益于整体软装的搭配,深灰色与乳白色相间的木饰面床头背景、复古的木质地板,为整个空间打下优雅沉稳的基调,地毯、主灯、床头柜、床头灯现代感强烈,丰满整片空间,整体色系淡雅,低调而不失华贵。
女儿房
本案女儿房原本贴的是素色墙布,不符合业主女儿现在的年纪和审美(正在上小学),将其全部撕掉,改用粉色儿童乳胶漆与石膏线镜框造型相组合,营造出可爱小少女的感觉,自由、轻快、清纯,令人向往。
书桌上方粉色的隔板,实用又美观,加上纯白色的柜体、灰色的床品,清新俏皮。
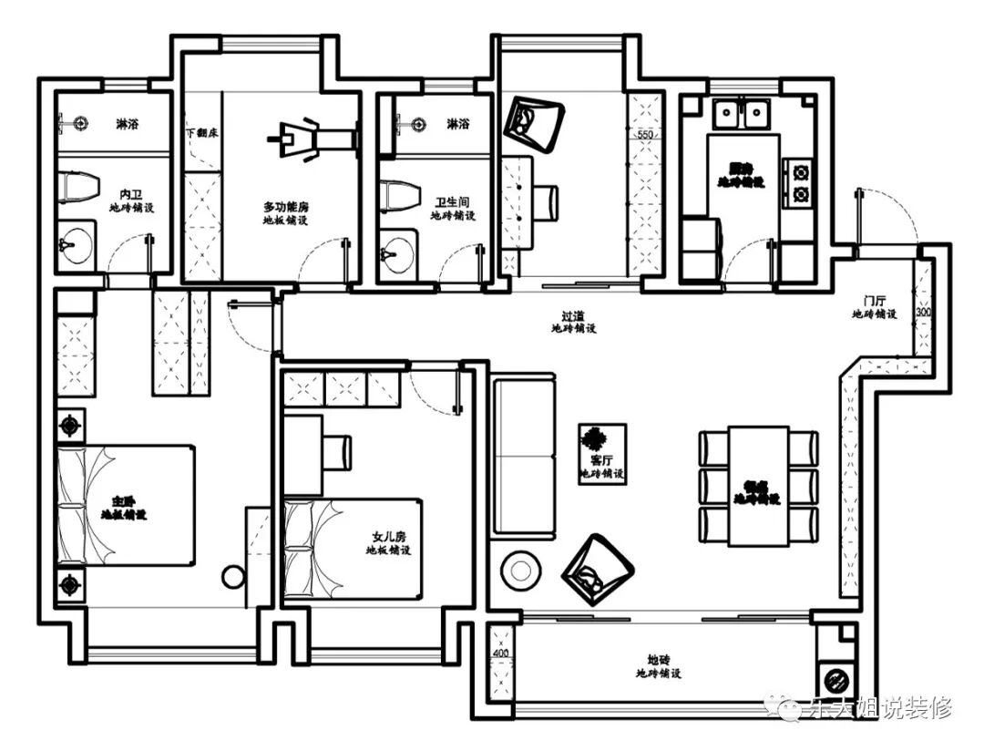
原始户型图
https://vr.justeasy.cn/view/616k22778aa34397-1624950586.html
长按二维码添加乐大姐微信号
装修不烦 大姐来谈