
乐大姐
FM104.8《家在苏州--乐大姐说装修》栏目特邀嘉宾,
赫博别墅设计创始人之一;
多次受邀成为院校家居的授课讲师;
98年至今,
为万千家庭打造幸福家居同时,也相互成为了好朋友。
任何与装修有关的问题,欢迎您添加乐大姐微信:13382103377,
乐大姐会为您做一对一解答。
生活无限,悦己是最高级状态。
Life is infinite, pleasure yourself is the highest state.

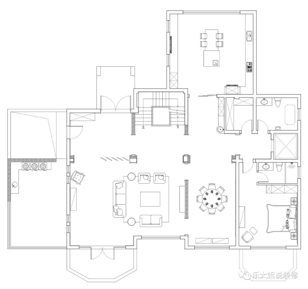
银丽高尔夫别墅位于阳澄湖畔, 16万亩阳澄湖水环绕相拥,用球场造就环境,一片湖景,一座球场,当之无愧成为苏州市区最醇粹的北美风情别墅。而本案光院子就占地700平左右,房屋面积858平(地下一层,地上两层),总占地面积达到1000多平。本案业主是苏州相城人,目前为了孩子读书在园区与相城都有居所,等小孩在园区上完学最终还是会回到相城生活。因此,业主对本案这套环境优美的独栋别墅有着长久居住的打算,别墅定位是三代同堂,并为居住的每一个人都规划了套房,居住条件十分优越。设计风格上,为了呼应房子本身的外部环境,业主一家在欧式、美式风格中纠结不已,后来乐大姐团队给出了优雅法式风的建议。不过,考虑到业主常年的生活审美习惯,设计师将美式与法式相结合,在不同风格的古典和经典中穿插,最终呈现的作品深受业主一家的喜爱。


家既是“居心地”,又是精神世界的“外现”,空间不再单纯为了功能而造,更是延伸出关于美学维度的探索。一进门,清新优雅的气息扑面而来,尺幅合适、画面耐看的复古浮雕挂画与夹丝玻璃隔断营造满满的仪式感,随处可见的雕花角线让法式韵味在空间中弥漫开来,轻奢风的粉色绒布金属换鞋凳也为室内平添几分时尚感,豪宅气质凸显。
室内场景的切换总少不了走廊与隔断的巧妙衔接,入口大厅左侧的三个石膏线条修饰的拱形门洞捕捉光线的同时,就像一条丝带一样延续下去,创造出一种“迷你宫殿”的氛围。
一楼客厅作为重要的交流和会客空间,在功能和美学上都达到了高度统一。
乐大姐团队设计师摒弃传统固化风格,利用大开间的格局,引入复古、时尚、轻奢等元素,将法式的浪漫与美式的不羁糅合成一派平和的样子。


复古雕花、实木护墙、大理石踢脚线、金色线条、壁炉造型、水晶吊灯、石材拼花地面、渐变釉面花砖等不同质感重合交叠被巧妙的安置其中。用细节诠释生活,与一窗之隔的喧嚣繁华形成截然相反的精致、典雅、浪漫氛围。
红色沙发,是整个客厅中最亮眼的存在,带着蓬勃的生命力和十足的厚重感,为室内注入灵动的气息和迷人的复古韵味。干净柔和的白色与知性时尚的灰色构成了客厅的基础色调,营造出温馨的居住氛围。
不论是顶部借助建筑本身有道横梁以轴线对称方式做的经典法式吊顶造型,还是立面把沙发背景后原有的两扇长方形窗户改成了四组拱形门窗,抑或是空间交汇处的拱形门洞,无一不是将拱形线条的延伸感贯穿整个内建筑空间,层次丰富、精致气派,灵动地向居者及到访者展示出优雅的法式贵族浪漫主义。正如奥黛丽·赫本所说“优雅是唯一不会褪色的美”。
楼梯被设置在原有位置保持原本动线朝向,石材踏步、木质护墙、金属铁艺栏杆扶手等材质的运用使得它更好地融入整个法式氛围中,不仅成为楼上楼下的视觉连接点,更是一个从任何角度都能驻足欣赏的绝佳展示空间。


移步至电视背景,风景则别有洞天。客餐厅通过新建墙体隔开,功能分区明确,避免大而空的视觉感受,同时双门洞设计的引入,不仅让空间看起来有层次感,移步换景,还将室内光线最大化引入餐厅,增加采光。
圆形餐桌恰如其分的体量感为生活中各种使用场景提供更多可能性。护墙板、绿色墙布、水晶材质的穿插则增加了空间明快感。全屋护墙板的描金处理,古典奢雅,是法式高贵气质的重要体现。金色元素的运用尽可能着眼于细节线条的勾勒,防止大面应用产生视觉疲劳。
餐厅与厨房相邻,两者之间留有过道,考虑到餐厅空间不大,不方便设计餐边柜,就将餐边柜安置在了过道,充分利用空间的同时,也给餐厅做了补位。
厨房空间足够大,除了常规橱柜、高柜的设置外,考虑到业主一家平时基本不去正式餐厅用餐,设计师还加入了小餐厅的设计——岛台+餐桌,这样一来不仅在厨房间就可以完成一日三餐,还增加了更多的储物空间及备餐功能。金色的花瓣形吊顶,将美学的感性与空间的质感做了最完美的平衡,非常有艺术感,创造轻奢化的法式浪漫。
另外,厨房还加装了一个电视,可以想象,在这里厨房不再只是一个做饭吃饭的地方了,还可以和家人一起渡过欢快的时光。

遵循着业主夫妻两的生活习惯和审美偏向,父母房整体设计更偏向于欧式和美式的新古典风格。
父亲房,设计师以艺术之笔为居者还原了美式风格的精致,铆钉、壁灯、雕花与经典的浅紫色定制实木护墙构成了墙面温柔的内饰,点燃了空间氛围。
艺术感不仅体现在空间环境的营造上,细节的处理和材质的选择也透露出时尚气息。
电视背景墙的中式花鸟壁画,与美式的家具、复古的拼花地板相碰撞相融合,共同勾勒出优雅的氛围,使人在独具历史感的设计风格中沉醉不已。

母亲房选用浓郁的蓝紫色实木护墙作床头背景,高贵冷静中透露着空间给予生活的柔软。氤氲的画面配合暖色的灯光、井字形的吊顶造型、精致的水晶灯,空间氛围感立体起来。



女儿房床头背景选用对称式的造型,却采用不对称的跳色搭配,非常时尚,且蓝色跳色延伸至衣柜,这样一来整个空间的颜色就统一起来了,显得既规整又活泼。蓝色是法式的经典,和灰色搭配档次瞬间提升。
床靠背高饱和度的墨绿色调让人仿佛置身于华丽的巴洛克时代,静谧雅致的韵律在空间中自由游弋。烟灰色窗帘、五边形露台、法式雕花、金属线条、长虹玻璃、宽敞的衣帽间,为犹如剧场的空间融入一份浪漫与细腻。
最有意思的是电视背景在法式中还加入了一点中式壁画的元素,古典贵族气很足,别有一番情调。电视柜侧面摆一张复古短绒休闲椅,质地时髦低调,用作日常休闲。
卫生间氛围的营造源自业主一家旅行对酒店套房的舒适体验,设计师并没有选用常规的不锈钢本色,而是选择了古典高端的经典配色——金色,构建出时尚现代又不失法式浪漫的氛围感。

格局上,将卫生间一分为三,浴缸置于空间端头,双盆台面置于宽敞通透的中间位置,马桶与淋浴房独立分开置于空间末端。
傍晚时分拉上帘子,伴随着日落余光从侧面贯入空间,悠步至浴缸就能享受片刻放空。
房间整体以浅灰色和静谧蓝为主色调,床头背景上的几何线条成为点睛之笔,让空间不至于过分呆板,散发出几分俏皮与童真。
考虑到孙女房床正对面就是衣帽间和卫生间,所以设计上采用整面的护墙板和隐形门,并通过两种深浅不同的灰色来打破墙面的沉闷,这样分割功能分区的同时,配色也使房间活泼些。
一个好的居住空间,不仅仅依赖于对当下生活的精细考虑,还来自于成长性的预判。本案业主家小孙女现在还是学生,所以设计师为她靠窗打造了专属的学习区,学习区如果只是一组通长的书桌,就会显得功能单一且死板,故将其设计成“书柜+休闲飘窗+书桌”三合一的组合柜,长大以后书桌还可以改成梳妆台,既实用又时尚。
在室内装饰中,儿童房是最温馨的设计,给孩子一种温馨的甜蜜感。本案的孙子房整体选用浅色系+几何图形+小屋顶的设计,充满了温暖、自然、纯真、童趣的感觉,不会让人觉得压抑,也不会有视觉上的冲击感,完全符合小男孩的纯真性格和美好幻想。
进门靠墙的位置是一个由柜体区分开的小书房,以简洁的设计手法构建一个属于小男孩的自由学习空间。
外卫的设计多了些现代感,深灰色的大理石墙面与白色的浴缸、马桶、台面相碰撞,构建出外卫的层次,给人一种无线延伸的空间感。纹路大气的黑白地砖拼接严丝合缝,几乎无可挑剔,愈显精致的贵族风范。
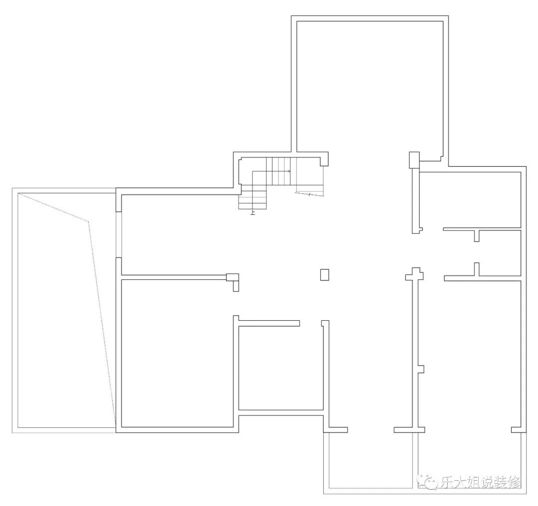
对于平日为事业奔忙的主人来说,回到家中,高品质的娱乐、休闲生活是不可或缺的,乐大姐团队设计师给业主一家打造了集健身、娱乐、休闲于一体的地下空间。地下室的层高相对来说较低,最低点净空间低于2.4m,为了使空间开阔明亮不显压抑,设计师在顶面和地面做了文章,地面采用经典的水刀拼花,顶上注重灯光布置并定制石膏角花,使空间大气又饱满。
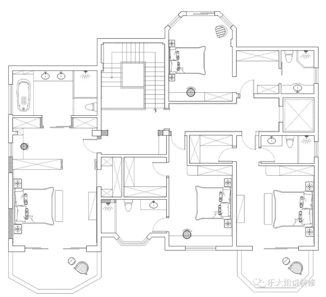
本案是一套院子占地面积700平左右的独栋别墅,位于阳澄湖畔,三代同堂长久居住。地下一层,地上两层,地下室是传统地下室,不停车不入户,层高一般,功能以实用和娱乐为主,有保姆间、棋牌室、影音室、健身区和储藏室等。楼上两层为重点打造区域,每个卧室都是套房设计,空间宽敞,采光良好,居住条件十分优越。
点击左下方“阅读原文”,即可在线免费看本案例全景图(360°)。https://vr.justeasy.cn/view/016g2j1f19515r67-1625624625.html