乐大姐
FM104.8《家在苏州--乐大姐说装修》栏目特邀嘉宾,
赫博别墅设计创始人之一;
多次受邀成为院校家居的授课讲师;
98年至今,
为万千家庭打造幸福家居同时,也相互成为了好朋友。
任何与装修有关的问题,欢迎您添加乐大姐微信:13382103377,
乐大姐会为您做一对一解答。
本案位于浙江湖州,业主买这套房是为了上下班方便,且周围环境很美,在家里就可以看到小区边上的湖景。不过,因业主夫妻两工作比较忙,没有时间和精力去管装修上的事情,加上考虑到自己对装修一窍不通,所以在了解到全屋整装的模式及服务品质后,就放心地把家交给了乐大姐团队!
设计上,喜欢简洁清爽、视野开阔的居住环境;希望家里每个功能区都有独立的收纳空间;一些不常用的房间功能要求相对灵活;家中有两个小朋友,目前都还在上学,需要考虑孩子日常的学习区域及上网课的需求。
朝九晚五、愈发固定化的生活不断激发着人们内心深处对自然与光阴的渴望,想把家装成静谧温馨之所。都市生活之外,享受慢生活的快乐。本案与以往所见的现代简约风不同,在自然之色与治愈氛围中,将生活与生活之外的罅隙完美分割,用突破的、带有真挚情愫的一笔一划,诠释自在生活。甫一进入客厅,目光便被铺满整面墙郁郁葱葱的自然森林所吸引,仿佛置身在林间小道,踏着松软的泥土,闻着草木的芬芳,听鸟鸣虫嘶,看栖禽相戏,让人感受到一种回归自然,返朴归真的境界。
悬空电视背景墙不只是单纯的线性叙事,乐大姐团队设计师打破常态面体模式,选用白色面板+原木色底板的收纳柜做背景,并于门、柜体上做了隐形处理,隐藏式灯带为空间营造立面的灵动感。由此,干净、整洁的家居氛围深入人心。
考虑到业主一家平时看电视不多以及整体的动线问题,沙发没有采用面对电视墙的常规摆放方式,而是面对面地安置了,这样可以保证客厅有良好的流通感。


阳台并入客厅后,不只优化了采光,还拥有了超大的可直接接触室外的独有空间,加上绿植、阳光、休闲椅的点缀,单看着就是一种享受。
因本案的入户门是正对着客厅的,为了给予观感和缓过渡,在门厅、过道、客厅三大区域交界处的顶部采用弧形吊顶将三者连贯起来,从而以流动的状态催生出缱绻舒展的空间韵味,让家呈现出更多的视觉转化体验,同时中央空调也有了安放的位置。
餐厅与客厅、厨房空间相连,同样采用开放式布局,显得格外宽敞明亮。黑色大理石餐桌台面搭配藤编餐椅,温暖而浪漫,一家人一起用美食分享生活的喜悦。

为了增加餐厅区域的收纳,设计师把厨房门、餐厅门往外挪,然后内凹出一个餐边柜。中间的玻璃柜门+灯带的设计,使空间不会过于沉闷。

卧室对居住者而言是自我的放松场所,简洁自然不带任何情绪波动的浅色系,能瞬间沉淀城市的喧嚣,助人一夜好眠。绿植的点缀,又给空间增添了几缕生机。床头背景墙与吊顶交接的区域定制了浅木纹的木饰面,让空间更接近自然,且有层次变化。无主灯设计,协调顶部与家具的同时,也将夜晚的氛围感拉满~


每一个细节都暗藏着设计巧思,卫生间干湿分离,原木、爵士白与灰色打造上轻下稳的清爽卫浴空间。
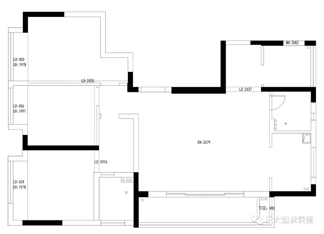
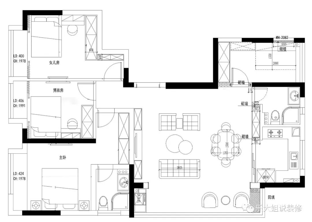
- 本案户型结构属于两厅两卫四居室,客餐厅连在一起的大横庭格局有利于增加进门后的视野开阔性,但是开发商生活功能上预留的空间不是很合理,餐厅缺乏收纳空间,所以乐大姐团队设计师把厨房门和边上卫生间的门往外挪,内凹出一个餐边柜来。
- 因业主希望后期餐桌可以在长桌与圆桌之间随机切换,而整体空间尺寸并不足以实现这一想法,所以设计师通过更换客厅沙发的摆放方式让出更多的空间,从而方便了餐桌在两种方式之间的切换。
- 考虑到空间感和动线问题,将阳台移门取消,阳台与大横庭连接在一起,从而扩大了活动区域,优化了采光。
- 和主卧并排的两个房间分别是女儿房和儿子房,考虑两个小朋友都正在上学,预留了书桌和收纳柜。
- 将另外一个小房间规划为多功能房,偶尔老人过来居住可以把床放下来,平时不住时则可以做储藏空间使用。
点击左下方“阅读原文”,即可在线免费看本案例全景图(360°)。https://vr.justeasy.cn/view/1jj620gy878987i2-1630555070.html