
乐大姐
FM104.8《家在苏州--乐大姐说装修》栏目特邀嘉宾,
赫博别墅设计创始人之一;
多次受邀成为院校家居的授课讲师;
98年至今,
为万千家庭打造幸福家居同时,也相互成为了好朋友。
任何与装修有关的问题,欢迎您添加乐大姐微信:13382103377,
乐大姐会为您做一对一解答。

本案业主现在住在80多平的房子里,因生了二宝加上还有老人一起,住起来不是很方便,就置换到了园区的泊云庭精装房。考虑到这套房子是准备一家人长期居住的,业主对开发商交付的精装房并不是很满意,想要重新软装改造一番。但是,不论是女业主还是男业主都不准备自己来操刀,因为前一套房的软装就是女业主自己置办的,花了很多心思,装完总感觉不协调,效果很不好,而男业主自己就是做工程的,身边也有很多做装修的朋友,他们的家效果也很一般,感觉像胡拼乱凑出来的,没有任何设计感,所以他们希望由专业的乐大姐团队来把控,在经济有限的情况下把效果做出来!

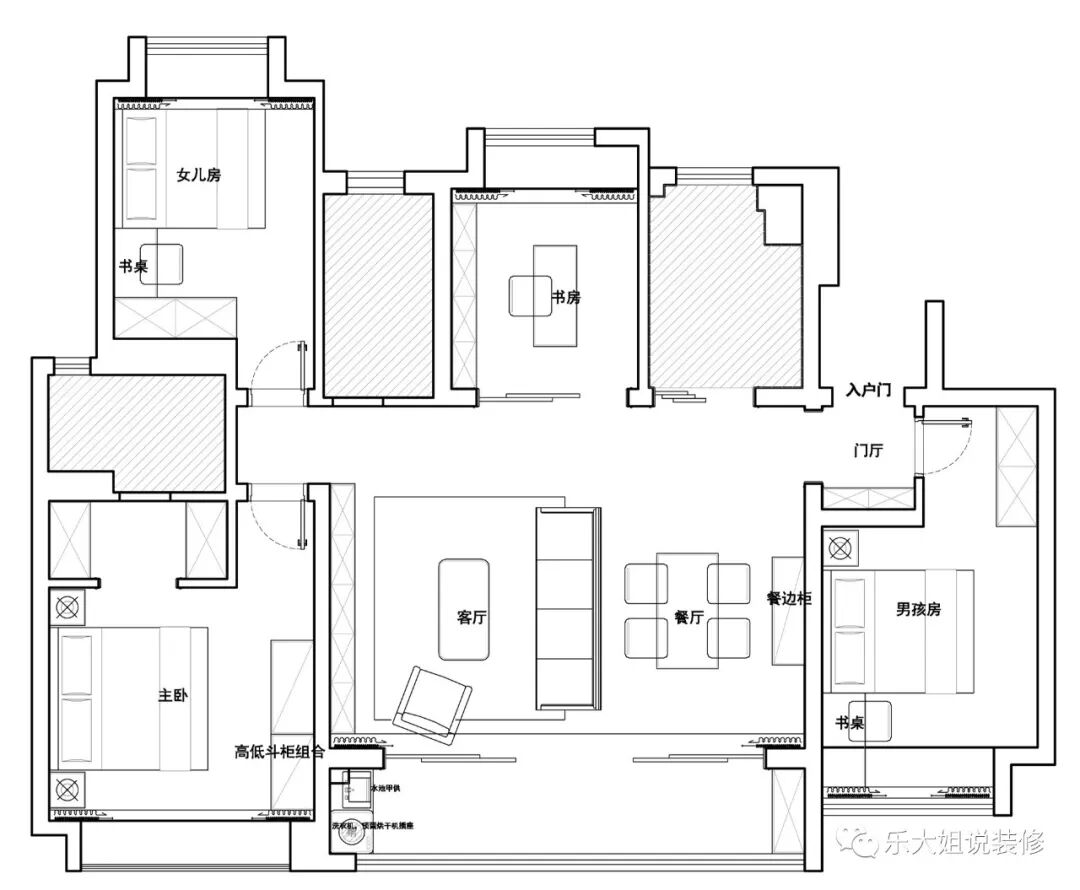
本案因为是套精装房,开发商交付时全屋已经贴了墙纸,地砖、地板、门套等基础装修也都做好了,基本上买些家具、打些柜子就可以入住了,但是这套房子是业主卖了原有房子买的改善住宅,以后一家人会长期居住的,这样简单的装修根本无法满足他们对居住环境的要求,所以业主找到乐大姐团队想做全屋软装搭配。
不过,同时业主希望在一定程度上尽量控制预算,所以设计师保留了原始格局,并没有对房屋进行大面积改造,而是用更细致的软装、更有调性的配色来弥补精致房硬装上的不足。



本案摒弃大拆大改,尊重原有空间格局与装修风格,巧设柜体,妙用色彩,布置软饰,于无声处为业主打造实用与颜值兼备的家。整体以白色、灰色、原木等比较自然的色系为空间主导色,间或点缀一抹黑色或棕色,自然色系除了让大人放松身心变得更加容易以外,也能让孩子感受到亲密温柔的安全感。无论是独处,还是陪伴家人的时光,都因此倍感舒适。
电视背景墙一改原有开发商用灰色墙纸铺满整面墙的单调设计,将电视柜融于整面储物柜当中,增加收纳保证空间整洁的同时,黑白分色的做法也凸显了空间层次,减少了视觉疲劳感。储物柜藏露结合的方式,不仅满足了女业主的储物,还满足了男业主的展示需求。客厅与书房、厨房之间以半通透的磨砂玻璃移门隔开,空间分中有合,各区域功能更为明确,空间的颜值也得以提升。
灰色地毯将整个客厅空间聚拢起来,透露着神秘的安心力量,柔软的皮质沙发,方正大气的简约风茶几,为视觉又增一分舒适,与优雅的棕色相得益彰,在一两枝绿植有条不紊的交织下,方寸之地内显得更加的朝气蓬勃,随手一拍便是时尚的沙发小景。
清风微拂,暖洋洋的光线透过薄纱洒入室内,让工作时紧绷的神经在归家的一瞬间得到放松。


餐厅、客厅两位一体,在开放式空间中,居者心情也不觉明媚起来。
餐厅背景墙的设计在原精装房墙面上以现代挂画+端景柜为装饰,清爽自然,保证了客餐厅基调的统一。顶部安装了线性吊灯,补充了餐厅的纵向层次感,同时也让空间更有格调。

因本案主卧套房有独立的衣帽间,所以卧室就被充分解放了出来,简洁大方的布局加上大面积的自然色系,营造出一个舒适静谧的睡眠空间。
浅绿色的墙布带来了温和的氛围,驱散了现代感带来的凉意,给人舒适惬意的感觉。少量的挂画、装饰,舒适柔软的床品,让空间更富有生活情感,不至于单调,彰显主人的品味与格调。
床头边安置轻巧的床头柜,放一些睡前读物,随手就能拿到,些许的绿植点缀,给生活加一点仪式感~本案业主女儿目前在上小学,已经有自己的想法与爱好了,所以房间以她喜欢的粉色为主色调,搭配白色、灰色等明亮淡雅的色彩,舒适而温馨。
虽说随着孩子慢慢长大,审美也会发生变化,不过也不用太担心,因为整个空间既有一点点小公主的气息,也不会太儿童化,即使长大了还可以继续使用,或是将床头背景墙布换掉,或是将现在用来学习的书桌换成梳妆台。

儿童房不只是一个空间,更是一段独一无二的时光,是承载整个童年回忆的地方。男孩现在暂时与奶奶同睡次卧,等他能独自睡觉了就搬过来,所以乐大姐团队设计师将床头墙面设计为宇航员遨游太空的场景,赋予男孩满满的想象力,飘窗一侧规划为独立的学习空间,上面的层板可以展示自己喜欢的玩具、照片。

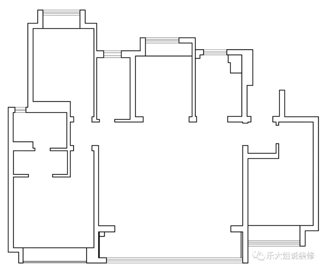
原始户型图
- 本案是一个四房两厅两卫的精装修户型,整体是可以满足业主一家五口(业主夫妻两、女儿、小儿子和老人)日常居住的,所以结构上不需要做太大的改动。
- 考虑到业主夫妻两有一儿一女两个孩子,所以规划儿童房的时候,在女儿房和男孩房内分别设置了独立的学习区,这样后期互不干扰。
- 考虑到业主是做医疗器材的,时间相对自由,平时可以在家办公,所以将本案朝北中间的房间规划为书房。
点击左下方“阅读原文”,即可在线免费看本案例全景图(360°)。
https://vr.justeasy.cn/view/f1o62c023s47vh65-1621419196.html