
乐大姐
FM104.8《家在苏州--乐大姐说装修》栏目特邀嘉宾,
赫博别墅设计创始人之一;
多次受邀成为院校家居的授课讲师;
98年至今,
为万千家庭打造幸福家居同时,也相互成为了好朋友。
任何与装修有关的问题,欢迎您添加乐大姐微信:13382103377,
乐大姐会为您做一对一解答。
项目地点:国瑞熙墅
项目面积:160㎡
项目风格:现代轻奢
项目性质:全屋整装
项目状态:已交付
这套国瑞熙墅从乐大姐在朋友圈分享设计全景图开始乐粉们就期待“她”成品的效果了,今天就一起来欣赏下完整的现场吧
~

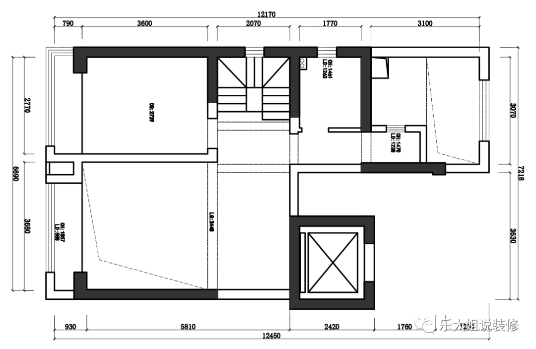
一层原始户型图

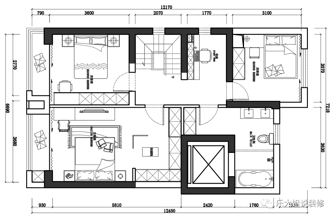
一层改造后户型图

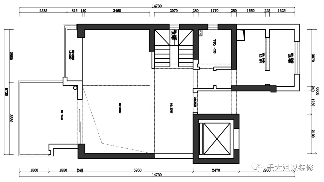
二层原始户型图

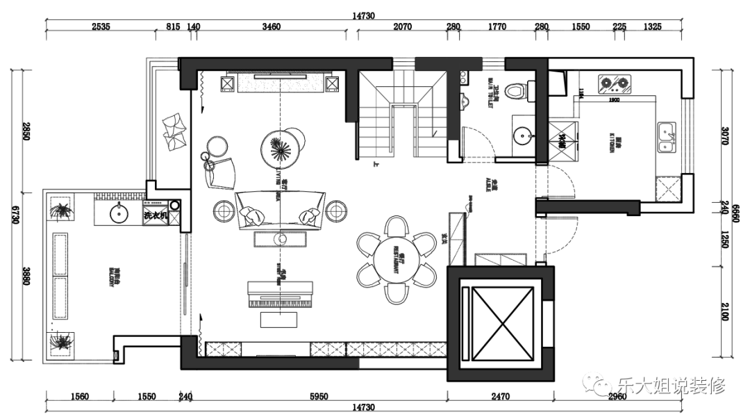
二层改造后户型图
设计全景图

点击左下方“阅读原文”,即可在线免费看本案例全景图(360°)。
https://vr.justeasy.cn/view/1w6u2j056649i946-1606222147.html
本案位于吴中区与新区狮山板块交界处,上下两层的叠墅户型,面积达到160㎡,完全可以满足这个幸福的四口之家,所以业主对这套房子有着长久居住的计划。满意度100%
在和乐大姐、苏州电视台《第一时间》拍摄老师等聊天的过程中,业主张女士表示自己和乐大姐团队的缘分是天注定的,因为自己在2018年就开始关注乐大姐说装修了,当时非常欣赏乐大姐直来直去、快人快语的性格,后来加了乐大姐的微信后发现她的朋友圈里有很多的装修作品,不论是设计方案还是竣工成品案例都数不胜数,而且其中很多作品都是自己非常喜欢的,所以自己闲的时候特别喜欢翻翻乐大姐的朋友圈看看这些作品,养养眼。这也是为什么自己一买这套房子就直接找乐大姐团队装修的原因,因为有这些案例摆在这,非常直观,让人放心!
▲ 乐大姐正在拍摄苏州电视台《第一时间》解析样板房装修知识点
现在装修完工了,她说非常庆幸自己的选择!为什么这样说呢?女业主张女士跟乐大姐说道:自己老公工作非常忙,根本顾不上家里,更不要说装修了,从买房到装修再到选择装修公司以及设计方案的敲定与选材,整个过程中都是自己全权对接的,而且自己还要带两个孩子,不管是时间还是精力都根本不够用,而乐大姐团队给了自己很大的助力,这一次装修自己完全不用像以前那样不放心天天往工地上跑,因为每天都有人在项目群里更新现场情况;也不用选软装选到头大,因为有专业的设计师帮自己做参谋;最关键的是无论是设计老师,还是一线施工管理人员几乎都是随叫随到,服务非常周到,让自己轻松地实现了完美的装修。
所以,女业主张女士说:“跟小区里很多邻居比起来,自己真是太幸运了,我们小区的邻居们装修我也去看了好多家,没有一家效果能跟我家媲美的!而且,小区里面的邻居们装修还发生了很多不可思议的事情,有的邻居装修过程中甚至跟施工人员大打出手,装修搞得乌七八糟的!还是自己家省心,效果还好!”▲ 乐大姐正在拍摄苏州电视台《第一时间》解析样板房装修知识点在样板房拍摄的过程中,前后还有3户邻居慕名而来看张女士家的装修,邻居们都说:我们国瑞熙墅业主群里都在说,整个国瑞熙墅装修效果最好的就是张姐家,我们特地过来参观学习一下。
参观中一个邻居大姐还跟乐大姐倒苦水,说:自己家正在装修,操心得一塌糊涂,找的也是一家大公司半包的,虽然装修现在已经快要结束了,但是设计师就出现过两次,所有材料及软装都是自己搭的,效果跟张姐家比起来简直是相差太远了!自己好失望!

▲ 国瑞熙墅业主一家四口设宴宴请乐大姐团队贺竣工之喜
竣工酒现场,业主张女士和乐大姐相谈甚欢,从装修聊到孩子,从孩子聊到夫妻,从夫妻聊到父母,聊到工作……,畅所欲言,无所不聊。而业主对乐大姐团队发自内心的表扬及所有工作的肯定,让乐大姐团队非常有成就感,觉得所有的付出都是值得的!
再次感恩业主
对乐大姐团队的信赖与认可
您的新家落成
我们来见证幸福、兑现承诺。