发布时间:2022-03-07
乐大姐
FM104.8《家在苏州--乐大姐说装修》栏目特邀嘉宾,
赫博别墅设计创始人之一;
多次受邀成为院校家居的授课讲师;
98年至今,
为万千家庭打造幸福家居同时,也相互成为了好朋友。
任何与装修有关的问题,欢迎您添加乐大姐微信:13382103377,
乐大姐会为您做一对一解答。

项目地点:吴江天铂(叠墅)
项目风格:现代轻奢
项目面积:191.8㎡
项目性质:全屋整装
项目状态:正在施工
本案业主两口子来自苏北,在苏州发展已经有十几年了,有一儿一女,大儿子已经快20岁了,长年在上海学习及工作,这套房子他们是要带着即将上小学一年级的小女儿一起住的。业主两口子一直表示这套房子不会住太久,因为他们的梦想还是要有一套顶天立地的别墅!
风格上,因女业主比较喜欢现代风格,同时又想有别墅的奢华感,跟乐大姐团队设计师商量下来最终选定为现代轻奢。
本案在空间布局上分工明确,每一层都安放下家人的身与心。一楼作为生活区以及会客厅,近11米的大横厅让所有空间都贯通,消弭了视野的阻隔,最大化地将自然采光引入室内。
电视背景墙采用硬包和大理石的相拼,阳光洒落,花纹若隐若现,随性之外,空间品质不减。一角的摩登女郎人偶,以独特亮眼的造型使空间提升了一个层次,更加奢华高级。
楼梯与客厅之间的设计可谓是点睛之笔,将楼梯原有的非承重实墙拆除,改成玻璃+不锈钢+大理石+灯带四种材质相结合的设计,楼梯保证安全阻挡的同时,也实现了整个客厅的通透性,空间中多了朗阔轩敞。
简易的茶桌椅可在上面随心移动,柔软座包帮业主放松疲累身体、汲取宁静,感受时光洒下的痕迹。
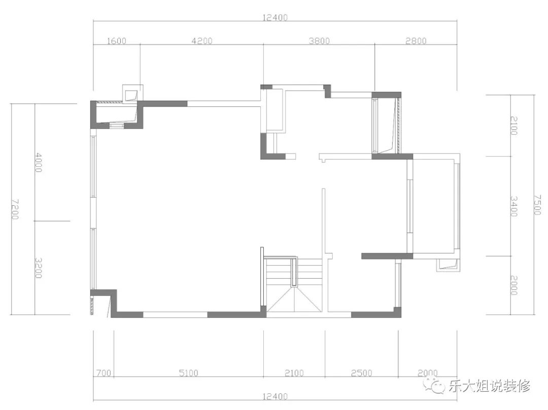
一楼原始户型图
一楼改造后户型图
二楼原始户型图
二楼改造后户型图
考虑到一楼的采光问题,乐大姐团队设计师将楼梯与客厅相连的墙体打通,从而使得原结构中憋闷不透光的楼梯与客厅产生关联,楼梯空间不再压抑的同时,也扩大了客厅的视线。
根据业主的需求,利用空调外机的凸出部分在二楼女儿房南侧做了一个地台,平时女儿可以在上面看书、玩耍。
因本案卫生间的落水管道很多,出于整体美观度和空间利用率的考虑,将卫生间门背后的空间利用起来,内嵌了一个柜子。
点击左下方“阅读原文”,即可在线免费看本案例全景图(360°)。
长按二维码添加乐大姐微信号
装修不烦 大姐来谈