
乐大姐
FM104.8《家在苏州--乐大姐说装修》栏目特邀嘉宾,
赫博别墅设计创始人之一;
多次受邀成为院校家居的授课讲师;
98年至今,
为万千家庭打造幸福家居同时,也相互成为了好朋友。
任何与装修有关的问题,欢迎您添加乐大姐微信:13382103377,
乐大姐会为您做一对一解答。
本案位于昆山,是套叠墅户型,上下两层。业主夫妻两都是内蒙古人,性格十分直爽,买这套房子是为了改善一家人的生活品质,家中常住人口除了业主夫妻两,还有一双儿女,父母偶尔也会过来住住,照顾孩子,所以对装修的要求比较高,希望能享受到家居生活的自在惬意。在和乐大姐、苏州电视台《第一时间》拍摄老师等攀谈的过程中,业主白女士回忆起跟乐大姐团队的缘分时说道,自己家对这次装修非常重视、上心,在还没有拿房之前就开始找装修公司了,但迟迟都没有下定决心,因为平时生意很忙,完全没时间去打理装修上的事情,就想找个既能省心,自己又敢放心的装修公司,而昆山市场上很多的装修公司都无法做到这两点。后来,还是在一次偶然的机会下了解到乐大姐团队,觉得乐大姐团队全屋整装的模式非常适合自己家的这种情况,了解后就马上定了下来!当时房子都还没有拿!然后,拿房后就直接开工了!所以,现在自己家应该也是小区里最早竣工的一批!▲ 乐大姐正在拍摄苏州电视台《第一时间》解析样板房装修知识点说到装修过程,业主白女士说“其实,刚开始,也是有些担心的,所以最初的时候我和我老公也跑过几次工地,但是看下来不论是前期的现场还是后期的安装,服务都十分到位,让人很放心省心,后面我们就不怎么管了,都交给了乐大姐团队。果不其然,最终的效果,还原度很高,我们一家人都很喜欢!我上次还和我邻居、朋友介绍,如果装修想要不操什么心的话,一定要选你们!”这不需要言说的信任使乐大姐团队备受感激的同时,也激励这我们努力做出更好的作品。实际上,业主早已不只是我们的客户,还是可以一起聊生活的老朋友。当天业主是带着小女儿一起参加竣工酒的(老公突然出差,大儿子上学是住校的,二人未能参加),5岁的小女儿活泼又可爱,一会儿的功夫就跟乐大姐团队的伙伴们玩成了一团!还跟我们说,想马上住进新房子里来(*^▽^*)!
实景效果

一层原始户型图

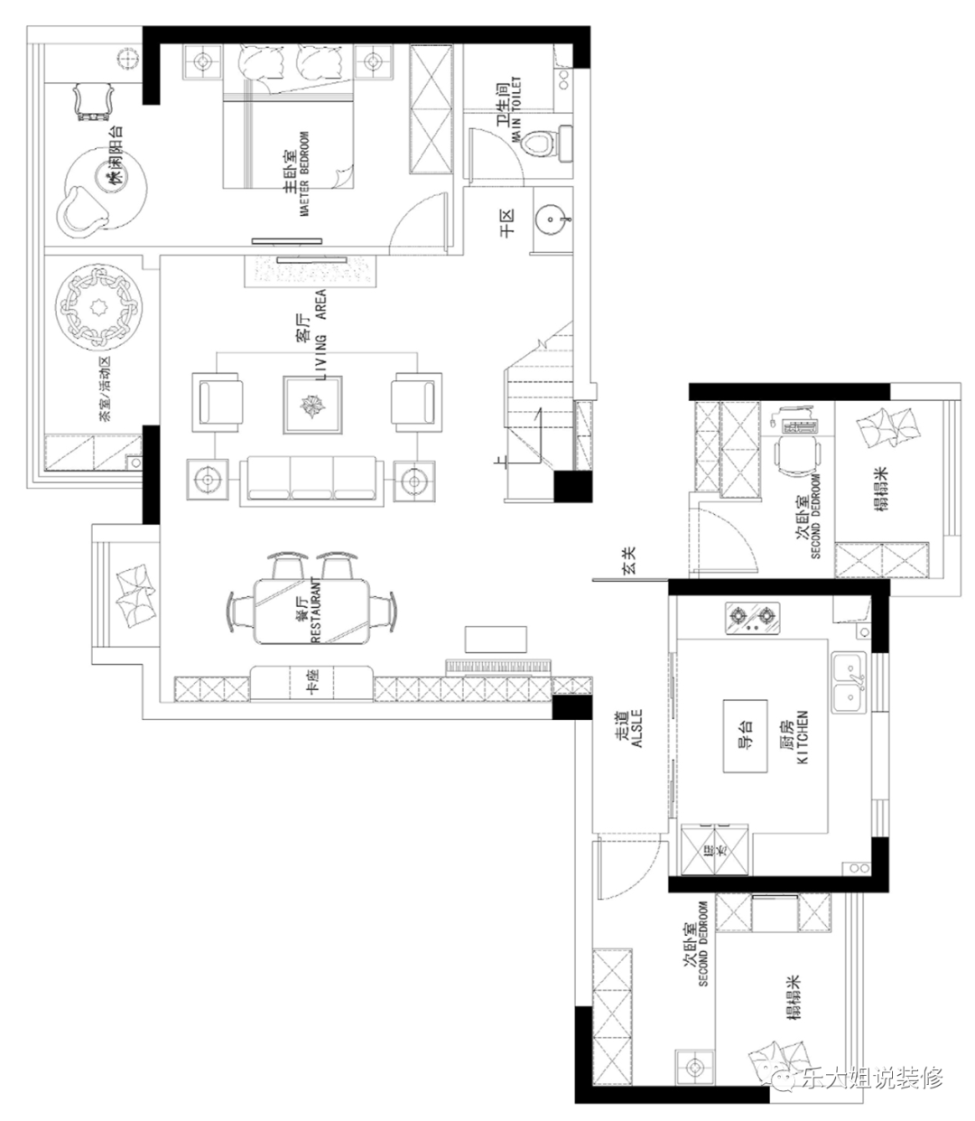
一层改造后户型图

二层原始户型图

二层改造后户型图
设计全景图

点击左下方“阅读原文”,即可在线免费看本案例全景图(360°)。
再次感恩业主
对乐大姐团队的信赖与认可
您的新家落成