清水江南别墅整装

设计说·第126期 | 236㎡人文雅居,将理想与远方安在家里!

发布时间:2022-03-07

图片

乐大姐

FM104.8《家在苏州--乐大姐说装修》栏目特邀嘉宾,

赫博别墅设计创始人之一;

多次受邀成为院校家居的授课讲师;

98年至今,

为万千家庭打造幸福家居同时,也相互成为了好朋友。

任何与装修有关的问题,欢迎您添加乐大姐微信:13382103377

乐大姐会为您做一对一解答。


画眸

图片

风过疏竹,风去竹不留声;雁渡寒潭,雁过潭不留影;故君子事来而心始现,事去而心随空。

——洪应明


【项目信息】

项目地点:吴江太湖东岸(下叠)

项目风格:新中式

项目面积:236㎡

项目性质:全屋整装

项目状态:正在施工


【业主需求】

本案业主一家人目前住在相城区,女儿已经十八岁了,买这套下叠是为了一家人长久自住,也是业主夫妻两未来的养老房,所以一家人对装修的要求比较高!业主之前有过几次装修经历,找过装修公司,也自己装过,但是不论是过程还是结果都不尽如人意,还花了不少钱!所以这套房子业主决定交给做全屋整装的乐大姐团队


本案业主喜欢新中式风格的稳重大气,但又怕中式风格装修出来太老气、死板,最后设计师帮他们家量身定制出了这样的一套设计方案,一家人看了都很喜欢!


客厅


图片

图片图片
中国人讲究含蓄,对优雅的生活始终有一种向往和追求。而新中式里浓郁的东方情调又带着强烈的文化自信,不浮夸,不谄媚,多了几分洒脱。泼墨成画,穿越时间和空间的罅隙,衍生出更灵动的居住空间。

踏入本案客厅,便能很好地感受到清新淡雅的居家氛围。沙发背景墙上的圆形装饰,只用了寥寥几笔就将寒山、霜枝、孤舟的清冷意境刻画地淋漓尽致,属于东方的文雅气场扑面而来。精致的金属线条和深灰色的护墙板墙面以它特有的质感相互成全,拉伸层次,拓展了新中式的创作边界。


图片

图片

图片

对称的事物能给人一种“安静”的严肃感,蕴含着平衡、稳定之美。沙发背景墙与电视背景墙在保有原有民族特性的同时,利用不同材质之间的对撞、反差感,规避掉了千篇一律的对称关系,重新解读东方文化的意境,近而不浮,远而不近。


图片图片

图片

整个空间色调素淡,缟白、原木、优雅灰、朱红与墨色,清朗雅致。现代形制的家具陈设糅合中式绵绵古意,贯穿于空间景致中,将俊雅悠然的氛围无声渲染。

别致的扇形灯、独特的江翁垂钓雕塑、清冽的寒江孤舟图等,这些中式意向映射着室内的雅韵,一同洗去外界的浮躁。


图片

图片

客厅与餐厅之间没有明显的分隔,目之所及畅通无阻,开放式的空间布局纳入了更多的自然清气。


餐厅


图片
图片
天圆地方,天人合一。中国人骨子里的谦逊和浪漫用到建筑结构上热烈而不张扬,于不经意间撩拨你的心弦,所闻所见之处全是不被世俗惊扰的韵味。

图片

图片
图片
为了让家居生活更有韵味,餐边柜采用虚实柜体的错位设计,将现代的玻璃材质与中式线条走边的白色柜门相结合,虚实相生,步步窥探流淌在东方血液里的仪式感。同时,也增加了收纳空间。

主卧


图片

图片

图片

图片

主卧延续中式禅意的精髓,背景墙上中式水墨画装饰与周围的木质元素默契融合,营造宁静致远的空间韵味,使业主可以在私人领域调节繁忙的步调,带来一丝疗愈力。

图片

图片

主卧衣帽间两侧采用衣柜代替移门的设计,中式元素的线条穿插其间,这样不仅保留了衣帽间的独立性,面向房间的一面也不显得单调,多了几分温润感。


图片
纹理自然的大理石墙地砖,耐脏好打理,与色调稳重的收纳柜产生碰撞,带出整片区域的精致。


次卧


图片
女儿房大量运用了现代元素,整体色调偏温柔淡雅,如徐徐的清风拂过。足够坦诚,也足够自在。

地下室


图片

图片
图片
图片
地下室,观影、玩乐、品茗、健身皆相宜,完全开放式的格局为整个空间带来无垠的视觉观感。目之所及,材质统一有度,在新与旧,雅致与质朴之间,传达居住享受与精神享受并存的奢雅气质。

楼梯过道处的中式镂空花格纳入了阳光与月色,引导着室内的清气肆意流通,是空间的区隔也是链接,将内外光景各自框成一幅画面,静谧而美好。


图片
图片
地下室采光井区域做了抬高处理,分割出独立的品茗区。

熹微般的日光滤过天井玻璃窗,空间里的物件生长出温润的影子来,微风徐徐入堂,与三两好友斟上半盏清茗相对而坐,宁静悠远的不只是空间,更是心境。

图片
平面方案
图片

图片
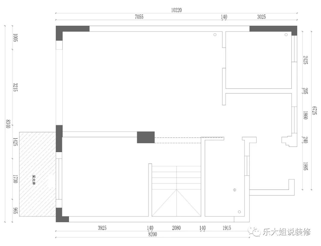
地下室原始户型图
图片
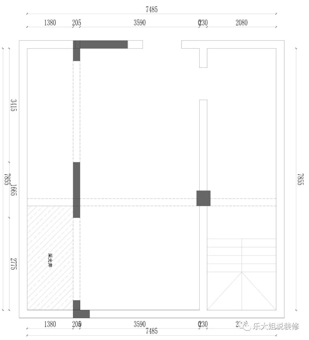
地下室改造后户型图
图片
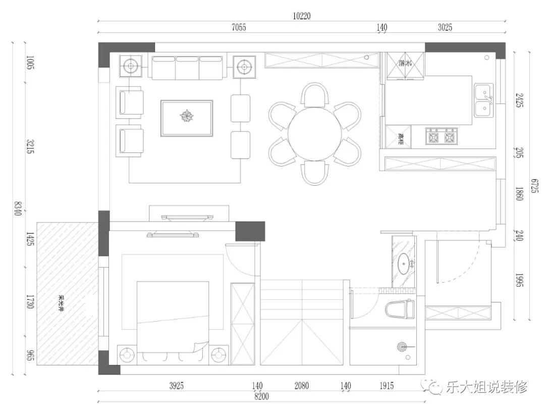
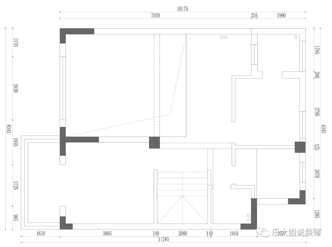
一楼原始户型图
图片
一楼改造后户型图
图片
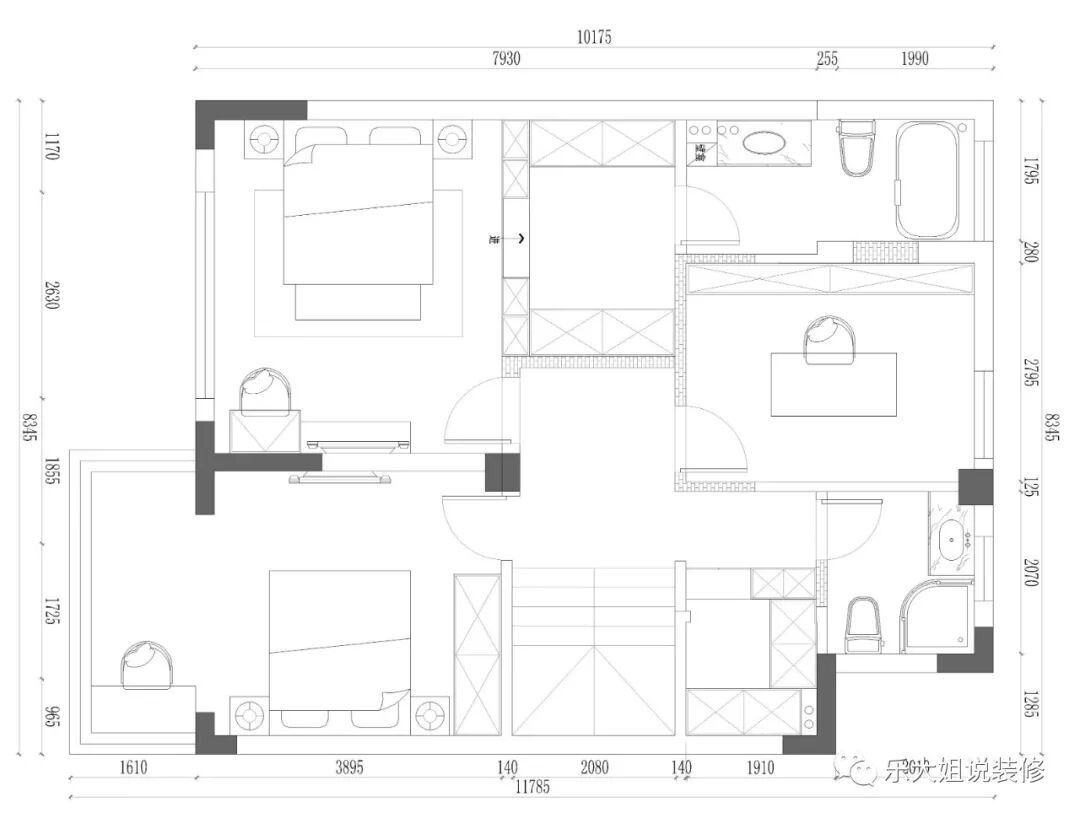
二楼原始户型图

图片

二楼改造后户型图

  • 原始户型中通往地下室楼梯的过道十分暗黑狭长,采光不好,乐大姐团队设计师将过道与影音室之间的非承重墙体凿出一个从底到顶的长方形通道来,并用中式木质花格将其隔开,这样既有利于地下室的采光通风,也增加了中式元素在空间的展现。
  • 一楼的卫生间日常使用频率很高,但它却是个暗卫,所以设计师采用了干湿分离的做法,将原墙体拆除,原卫生间一分为二,一部分用来安置马桶和淋浴功能,另一部分则把台盆独立出来,并且原墙体用装饰隔断取代,这样增加采光的同时,也保证了区域的划分。

全景图
图片

图片
点击左下方“阅读原文”,即可在线免费看本案例全景图(360°)
https://vr.justeasy.cn/view/161uulwb18399n37-1612495356.html


长按二维码添加乐大姐微信号

装修不烦 大姐来谈