发布时间:2022-03-07
乐大姐
FM104.8《家在苏州--乐大姐说装修》栏目特邀嘉宾,
赫博别墅设计创始人之一;
多次受邀成为院校家居的授课讲师;
98年至今,
为万千家庭打造幸福家居同时,也相互成为了好朋友。
任何与装修有关的问题,欢迎您添加乐大姐微信:13382100888,
乐大姐会为您做一对一解答。

/
业主说
项目地点:阿卡迪亚
项目面积:335㎡
项目风格:现代美式
项目性质:全屋整装
项目状态:已交付
▲ 乐大姐&阿卡迪亚业主刘女士
这是“我”的新家:
能想到吗?!
我们坐拥一院阳光与花草,
城市里,竟有了四季山居的感受。
工作中,我们是拼命三郎,
新家里,感受一树繁花带来的自由与释放。
在和乐大姐、苏州电视台《第一时间》拍摄老师等攀谈的过程中,业主刘女士告诉乐大姐,买这套房子已经好几年了,但是她一直下不了决心装修,因为身边的朋友、邻居都告诉她装修实在太烦了,自己之前也经历过好几次装修,确实,真的特别耗时间耗精力。她很多朋友不上班的,专门在家对接装修,但是每次见面一聊装修就不停地吐槽。而自己平时要管理公司,根本没有时间,找装修公司又不知道找哪家才能放心,特别纠结。但是每次过来小区这边,看到周边的环境又非常想住过来。
经过多方考察,刘女士最终找了乐大姐团队,装修完成后她说非常庆幸自己的选择,这一次她绝不后悔!为什么这样说呢?她说:因为乐大姐团队在帮我装修的过程中,我就没有操过心,第一次见面她们帮我规划的价格,一直到最后都是按计划完成的,真的是省心,周围邻居来看了我家装修都后悔装修早了,没有请乐大姐团队!幸福就是比较出来的!
/
确认过眼神
遇见对的装修团队
实景效果
◆ 花园
◆ 门厅
◆ 餐厅
◆ 主卧
◆ 小女儿房
◆ 厨房
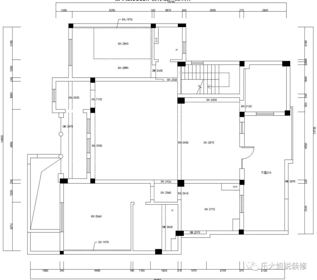
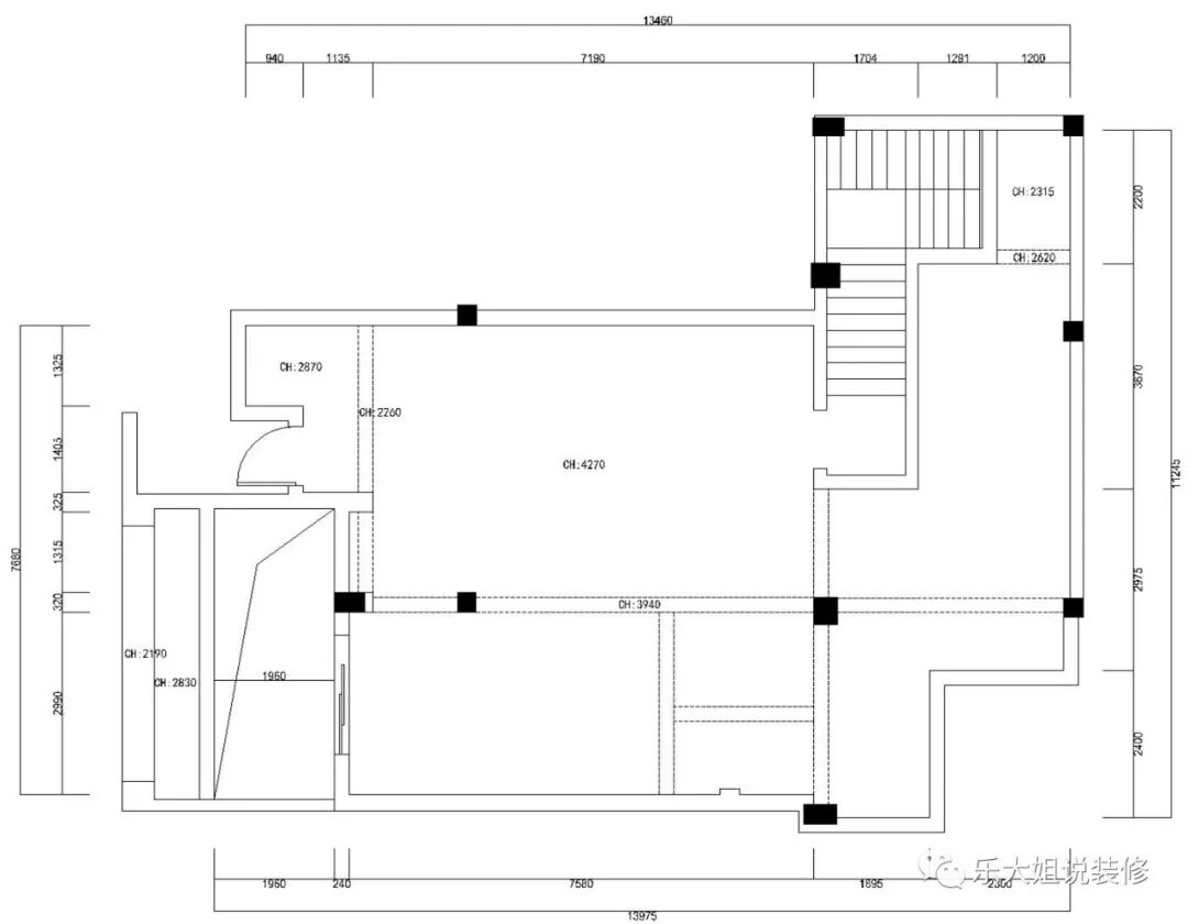
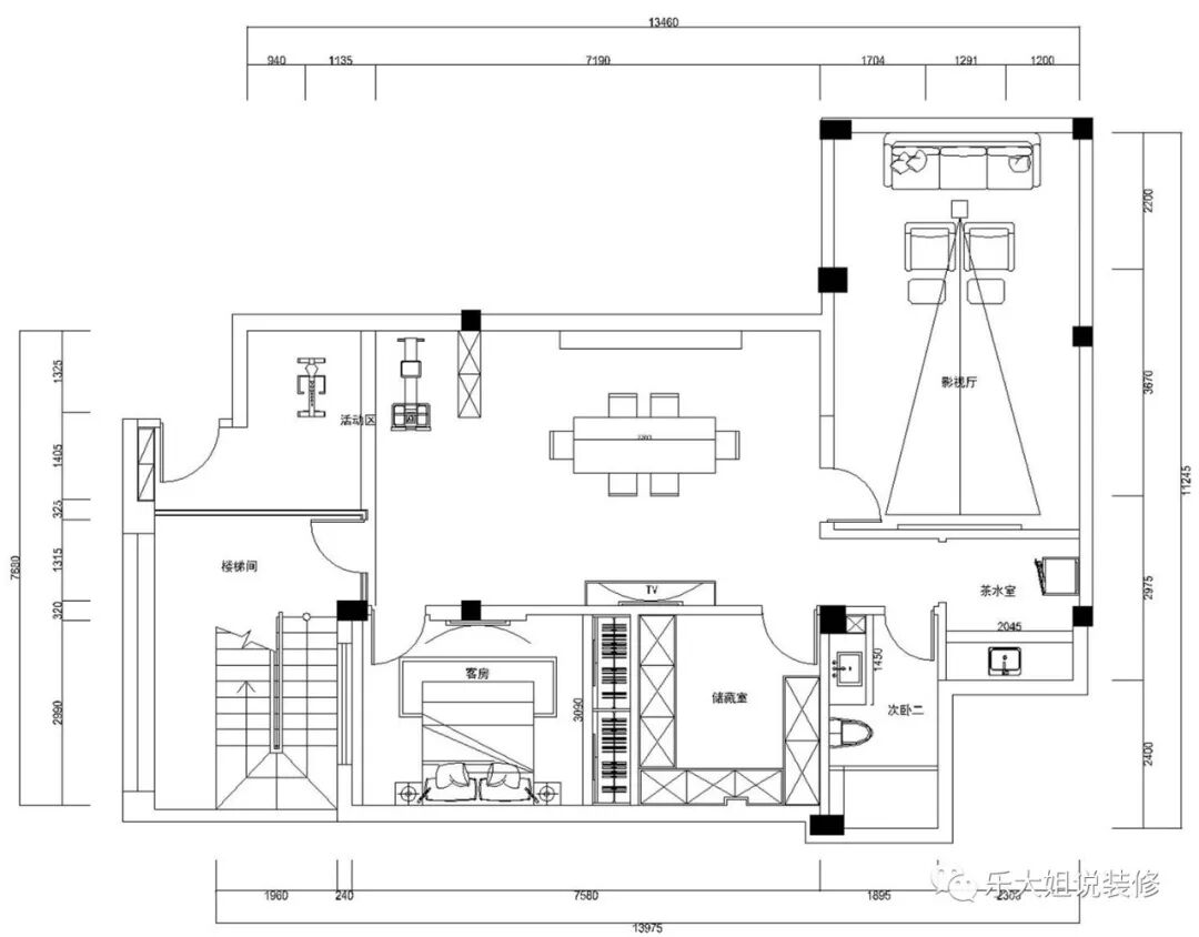
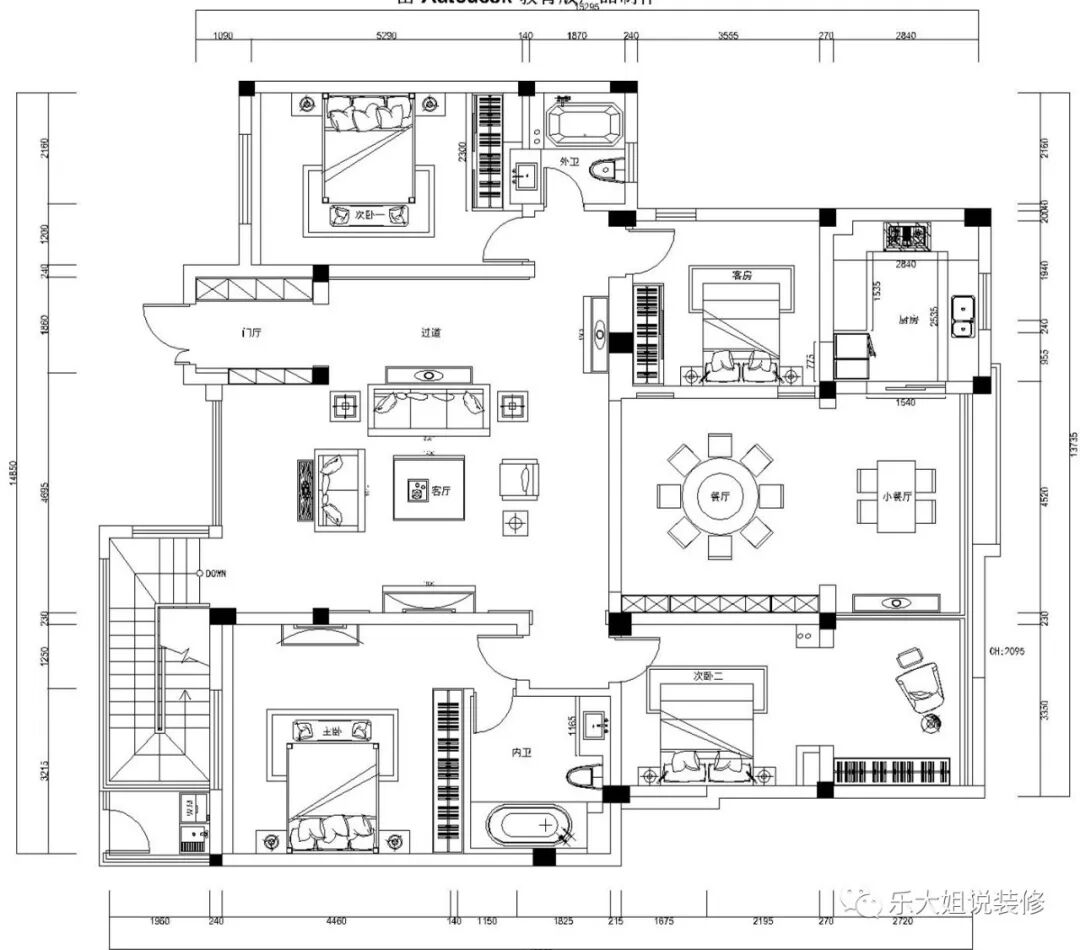
平面方案
设计全景图
点击左下方“阅读原文”,即可在线免费看本案例全景图(360°)。
https://vr.justeasy.cn/view/4505540-1548640036.html
当梦想变成现实,家有了情感,
我们的缘分也有了新的定义,
竣工才是我们服务的开始,
时间是检验我们服务的试金石。
我们一定不会辜负您的这份信任!
长按二维码添加乐大姐微信号
装修不烦 大姐来谈