
乐大姐
FM104.8《家在苏州--乐大姐说装修》栏目特邀嘉宾,
赫博别墅设计创始人之一;
多次受邀成为院校家居的授课讲师;
98年至今,
为万千家庭打造幸福家居同时,也相互成为了好朋友。
任何与装修有关的问题,欢迎您添加乐大姐微信:13382100888,
乐大姐会为您做一对一解答。

流年似水,
岁月如烟。
幸运的是,
不论是刻意等待
还是随性而至,
总会有那么多的美好
在日出日落的光阴里融进记忆。
本案是1999年的自建别墅,之前业主一家就一直住在这里,不过现在业主考虑到以后要跟父母一起长久住,一起享受养老生活,再加上女儿2021年5月份要结婚了,就想赶紧把这套别墅装修好,让女儿风风光光地嫁出去,所以时间上比较紧,后来经朋友推荐,业主了解到乐大姐团队非常省心靠谱,最终将装修定了下来!本案之前的装修风格偏美式一些,设计师在沟通中了解到业主喜欢新中式的优雅和原木风的感觉,所以最终确定为新中式原木风!

中国自古以来就比较注重门户隐私,特别讲究一种“藏”的精神。乐大姐团队设计师从整体的户型结构出发,去繁就简,在楼梯和进门过道之间设计了一个似透非透的木质格栅,并用艺术夹绢玻璃与之相拼,和同一水平线上的山水背景遥相呼应,现代设计和传统元素在这里完美结合。
在现代中带着东方思维去做空间探索,成就有别于刻板思维的新中式风格。餐厅、客厅和玄关均为互通的空间形式,运用了一些借景、造景、镂空等手法,展现当代东方含蓄的优雅艺术氛围。
因业主喜欢宽敞明亮的居住空间,所以设计师在中式的基础上并没有采用很深的色调,反而以清雅舒适的原木色、灰色为基色,再通过部分跳脱的软装来增加整个空间的趣味性,使整个空间显得舒适、大气、独特。电视背景打破常规,采用不对称的修饰手法,木饰面的温润质感与中国风的水墨山水壁画相契合,立柜上的迎客松和怪石与之恰到好处地融合,呈现出诗意轻逸的淡然之感。一层客厅采用无主灯设计,无形中增加了整个空间的高级感与现代感;顶面的错层叠级和抽缝处理,增加空间的精致度。阳台的窗户全部改成落地窗,室内的装饰和院内的风景形成呼应,不论是光照通风的效果,还是整体内外的景致,都非常好!在这里,仅用一颗枯枝、几粒砂石、一束柔和的灯光搭配盆栽、古玩等精妙小品,就能成为一处雅致的端景,让人感受到含蓄秀美又不失禅意的中国风。

无圆不成中式,圆有圆满之意,也是中国人藏在灵魂里的向往。相比于规整的方桌,圆桌更显亲切,也更符合中国人的饮食习惯。沉稳自然的木质餐桌椅与木质家具,清雅的色调与新中式线条融构于一体,在空间中铺陈出别有风致的原木风中式美学意涵。
餐厅和厨房之间,采用艺术玻璃,不封闭时可作敞开式的厨房使用,封闭时如同一个艺术隔断,兼美观与实用于一体。


餐厅位于整个一层的东边中部位置,不论是采光还是通风都最易受限,设计师采用开放交融式设计,通过门洞、采光玻璃等打通餐厅各个墙,让厨房、客厅、楼梯间、院子与餐厅之间联通,大大地提升了空间开阔度。特别是,餐厅的东面墙采用了对称式的夹绢玻璃设计,使之与院子相通。餐边柜上设计师点缀了壁龛+灯带,从而避免显得呆板,让整个空间更有层次。


主卧沿用了一楼的色调风格,比较温和,没做过多的装饰。
由灰色墙布+木质线条组成的床头背景拉伸了主卧的空间感,新颖的床头装饰吊灯给空间增添了一丝轻奢感,搭配跳色的软装,使空间温馨的同时,多了活跃的生动。


床头边安置轻巧的原木床头柜,放一些睡前读物,随手就能拿到,些许的绿植点缀,给生活加一点仪式感~
重新调整整体空间动线以后,父母房成为一个独立空间,可从落地窗或书房随意出入院子散步赏景,还增加了衣帽间,功能的多元化大大满足了父母老年生活的需求,提升了居家生活的品质。
床头背景以灰色墙布为底,用与家具同色的木质线条走边,给浅色调的空间增添温和稳重的气质,更加符合长辈房的沉稳大气。高山蓝天大雁为主题的装饰画让墙面不至于单调,营造出舒适惬意的休憩氛围。


女儿房,乐大姐团队设计师吸纳现代简洁的生活流线,用符合现代人生活习惯的室内居住空间呈现一个舒适的起居室。


设计上,并不过分渲染冷暖的感受,以简洁的灯光和温润的木质来营造舒适的睡眠环境,床头背景墙上木饰面和硬包形成材质的碰撞,腰部点缀的灯带和原木材质的衣柜具有强力的艺术感,简约大气之余不失设计的精致。
打造功能性强的三分离式卫生间,墙地面应用浅灰色大理石砖,明亮易清洁,柜体迎合整体风格采用同色系的木饰面装饰,使卫浴空间更沉稳。
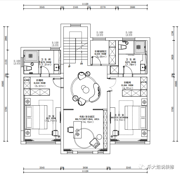
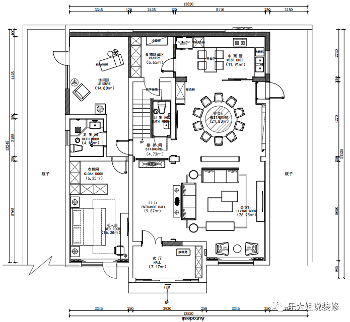
- 本案总共有三层,但是考虑到工期,三层空间暂不规划进来,只是把楼梯跟通到三层,一层和二层的面积一共有300平,一层为客厅、餐厅、厨房、卫生间,并将西边的所有空间规划成一个独立的空间给父母使用,可以通过书房或者卧室进出院子,十分便利;
- 因业主知道父母喜欢安静,不想被打扰,而原始户型中的外卫会阻隔父母的独立空间,所以在做设计的时候将外卫安置在了楼梯边上,这样既能满足西边父母的使用空间,同时也能方便客人使用;
- 本案的原始户型一进门就正对着楼梯,不仅空间的通透性不好,也不利家中风水,根据业主的需求,乐大姐团队设计师在楼梯间与进门过道之间设计了一个木质栅栏隔断,然后把客厅与餐厅之间的实墙敲掉,尽可能地把门洞扩大,这样大大改善了整体空间的通风和采光;
- 原始户型中厨房和餐厅是一体的,空间比较小,在和业主沟通后,设计师把原有的厨房位置往外扩,使整个厨房面积扩大,同时还在厨房内安置了早餐区和食物储藏区,功能十分齐全;
- 二层楼梯间附近空间的设计十分灵活,整个空间采取开放式格局——书房+起居室,日常将其布置成男业主的书房办公区,中间采用弹性隔断的形式将书房空间和起居室隔开,需要有私密性的时候就把空间阻隔,不需要私密性的时候,就是一个敞开空间。另外,平时一家人在二楼的起居间可以进行睡前的交流互动,还可以作为孩子小时候兴趣培训的空间,多重性的使用空间,十分便利;
- 根据业主需求,本案规划了两个套房——主卧+女儿房,并将阳台的位置扩入室内空间,扩大卧室使用面积的同时合理地分配空间,从而使得每个家庭成员都有自己的独立空间,也有各自的衣帽间,完全能满足每个人的日常使用。

点击左下方“阅读原文”,即可在线免费看本案例全景图(360°)。