
乐大姐
FM104.8《家在苏州--乐大姐说装修》栏目特邀嘉宾,
赫博别墅设计创始人之一;
多次受邀成为院校家居的授课讲师;
98年至今,
为万千家庭打造幸福家居同时,也相互成为了好朋友。
任何与装修有关的问题,欢迎您添加乐大姐微信:13382100888,
乐大姐会为您做一对一解答。
项目地点 / 吴江苏州湾天铂(中叠)
项目面积 / 182㎡
项目风格 / 现代风格
项目性质 / 全屋整装
项目状态 / 正在施工
—
本案是一套改善型住宅,位于吴江新城吾悦广场对面,周边配套设施非常齐全。业主现在的住房也在吴江,当时装修找的本地人,入住后发现不仅效果不达标,质量上也存在着很多问题,所以这一次业主希望通过乐大姐团队的专业设计与施工打造出适合自身需求的新家。
因本案是一套中叠,整体户型改变方式多样化,而主要居住人口是业主一家六口——业主夫妻两、父母还有两个小孩,且一个小孩目前还需跟业主夫妻一起住,所以设计上需要根据实际情况进行一些改造。


生活的环境起源于自我设定的环境,想要达到预设的环境就要对理想的生活态度有明确的格调...
本案注重光线的运用,乐大姐团队设计师打破原有的格局,采取开放式的大厅设计,将客厅与钢琴房合并,揉合空间中的视觉、空气、光等元素,用各种装饰材料、清晰的几何轮廓改变和丰富空间,营造出一种简约、舒适、轻松的居家氛围,令业主体验到通彻透辟的空间感受。
设计师对材料的选择十分用心,创造性地结合材料的颜色、质地、形状和使用规模,让其在空间的无限对比与调和中达到和谐。客厅电视墙面采用嵌入式设计,大理石拼贴线性木块,正好与相邻的餐厅墙面色调一致,达到平衡视觉比例,以原木色与白色的协调搭配展现雅致风韵,再透过绿意植栽、柔和灯饰丰富层次。融入几何造型的灯具作为装饰,加强了现代感。
色调上打破常规思维,在现代简约的非黑即白中,加入鲜明的暖色调进行点缀,平衡了空间色彩之间的明暗关系质感,增加空间层次感,形成一个充满活力的会客空间。
两个大大的落地窗,使空间在不同的时间段内都光线充足,沐浴阳光之下,一杯茶水、一本书可以坐享一天的悠闲时光。

客厅沙发背后是开放式的钢琴房,同时也是一楼东面小房间的入口处。钢琴房的空间虽然比较小,不过设计师将之物尽其用,在墙面上做满了简洁整齐的格子书柜,这样既充分利用了空间,还打破了墙面的单调乏味,一举两得。特别是,木质和玻璃材质的碰撞,减少了大面积收纳带来的压抑感。
在钢琴房窗户边的一隅,还用透明的钢化玻璃做了一个小小的晾晒区,从餐厅的位置一眼望去,空间有了更多的延伸与可能性。
转过客厅,通透玻璃的转折楼梯,黑白相间的踏步,装饰空间的同时,又引领着生活的幸福篇章继续铺展开来。
在有限的空间中创造丰富的感受,餐厅处于整个一楼的中心地带,连接着玄关、厨房、楼梯、客厅,设计师以相似的材质、相近的色调、成熟的线条打造富有层次的过渡空间,使整体视觉更立体。甚至,为了增强入户的视觉感和空间感,选用的餐桌高度只有80公分。餐厅保持了现代风格中的理性特质,以干净清爽的灰白为基调,搭配木白色的餐边柜、造型时尚的金属灯、色彩鲜艳的花束与装饰画,给餐厅添了一份温馨与精致。


主卧是夫妻俩的私人空间,包含卫生间、淋浴间、衣柜、梳妆台,其流畅的居住动线,极大满足了居者对空间的要求,如此简单纯粹的居住印象深入人心。
整个空间以饱和度较低的色调为基底,大量的木质材质,如地板、桌子、柜子,搭配灰色床与床品,时尚不失简约。
两侧整面的储物柜,收纳能力不亚于一个独立衣帽间。
孩子的喜好会随着不同的年龄段改变,所以儿童房装修不要过于花哨,一成不变,而应该具有成长性,可以通过更换软装的方式增加房间的流动性。优雅的淡粉色和清新的白色,是整个儿童房的底色,亮眼的黄色、橙色、深绿色点缀其间,冷暖色调的碰撞效果让人眼前一亮,大胆、端庄巧妙地融合在一起。悬挂型吊灯,拉长空间延伸感,打破传统空间桎梏,给孩子更加自由舒放的居住环境。
在窗边有一面书架方便阅读,另一边是定制的桌子方便书写,另外还有充足的活动空间。

一楼原始户型图

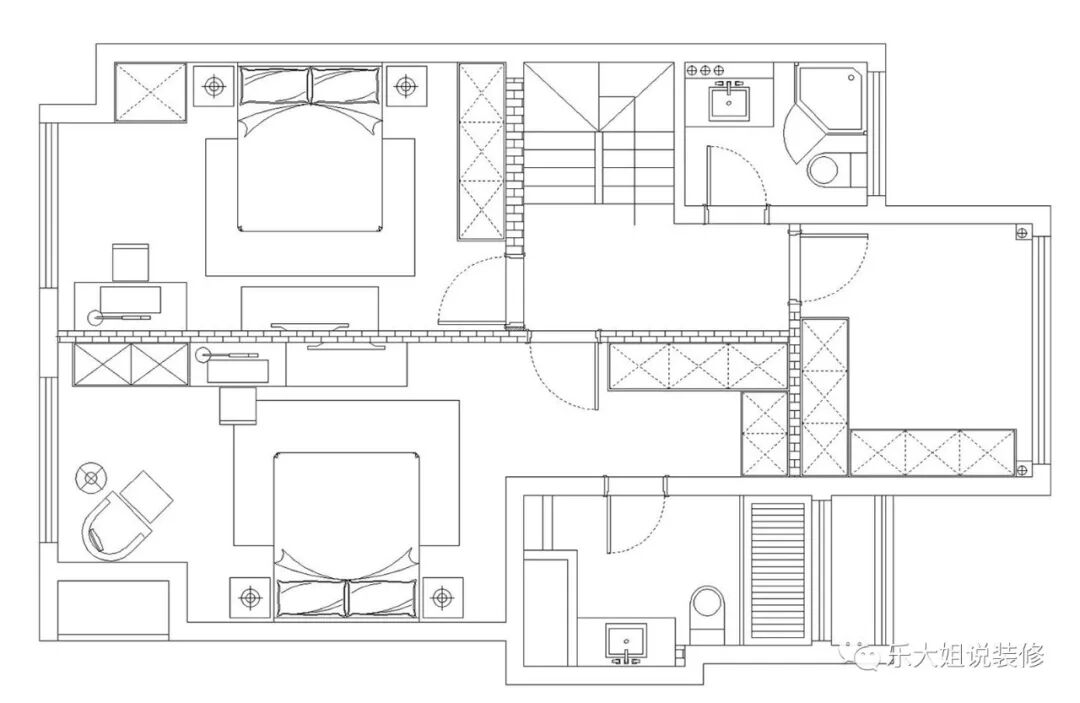
一楼改造后户型图

二楼原始户型图
- 本案是一套中叠户型,原始户型中客厅是挑高空间,考虑到业主对空间的功能性需求,乐大姐团队设计师将客厅的挑高空间全部现浇起来,二楼作为静区(私密性的睡眠空间)使用,一楼作为动区(各种功能空间,比如厨房、餐厅、客厅、卫生间等),这样使得整个空间动静分明、功能齐全;
- 一楼在原结构中并没有明确的阳台区域,而日常生活中却需要一个晾晒区,所以设计师只能将客厅的一个角落改造成晾晒区,且整体区域大面积使用玻璃和落地移门作为隔断来增加空间的通透感,同时与晾晒区相平行的区域则改作休闲区,这样既满足功能需求,又增加了客厅的视野;
- 原始户型中进门口就是厨房,且有一堵实墙正对着大门,入户空间比较局促,为了增大视觉感,设计师一方面将厨房北边的阳台和原厨房打通,把厨房往北侧移动,从而大大改善了厨房的采光与通风;另一方面,把进门口的那堵墙拆除,然后将拆除的空间和原厨房的剩余空间改造为餐厅,将厨房与餐厅连贯起来,这样更实用便利;
- 原始户型中一楼客厅的背后还有一个小房间,现因业主的需求将邻近小房间的部分客厅空间划作钢琴房使用,而钢琴房通往小房间的门则被设计师隐藏在墙面的整体柜体里,即打开柜门就进入到小房间内,这样不仅确保了整体的设计效果,还增加了储物空间;
- 因业主家有两个小孩,其中有一个小孩目前是跟父母一起居住,所以设计师特地将步入式衣帽间安置在二楼北侧的房间,将主卧的衣柜安放在进门的过道处,而主卧的睡眠空间则尽量保证大的空间以便可以放下一张小床。
点击左下方“阅读原文”,即可在线免费看本案例全景图(360°)。