发布时间:2022-03-07
乐大姐
FM104.8《家在苏州--乐大姐说装修》栏目特邀嘉宾,
赫博别墅设计创始人之一;
多次受邀成为院校家居的授课讲师;
98年至今,
为万千家庭打造幸福家居同时,也相互成为了好朋友。
任何与装修有关的问题,欢迎您添加乐大姐微信:13382100888,
乐大姐会为您做一对一解答。
做母亲,也要做自己,做他的女孩! 流年似水,岁月如烟。幸运的是,不论是刻意等待还是随性而至,总会有那么多的美好在日出日落的光阴里融进记忆。 项目信息 项目地点:拾锦香都 项目面积:125㎡ 项目风格:现代轻奢 项目性质:全屋整装 项目状态:正在施工
业主诉求
这是一个三口之家,女儿还小,女业主是幼儿园老师。在这个家里,唯二的女性都被宠成可爱的小公主。
女业主很喜欢卡通的元素,希望家里通透灵动、色彩明快,所以整体设计以粉色为主色调。业主对家居氛围很有要求,认为舒适度是第一位的,不喜欢家里的灯光太亮,所以乐大姐团队设计师在每个空间都设计了很多的辅助光源,即使不开主灯房子的光线也不会太差。
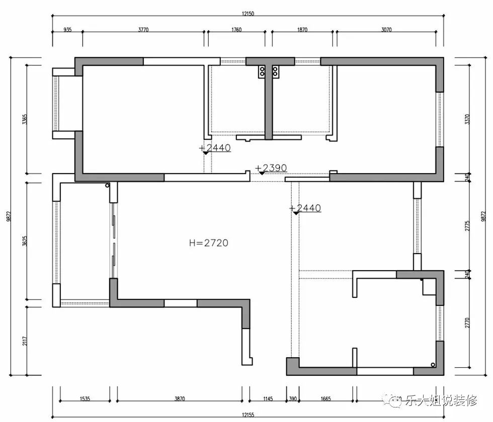
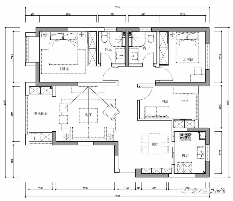
色彩是最直接性的“语言”交流,它能够在第一时间内吸引人们的注意力,使观者的“眼睛”得到放松或者警惕。 白色的整面到顶餐边柜中间镂空,不会显得笨重,增加更多的灵动空间,可放置业主喜爱的装饰物。大砖上墙的质感和纹理,打造通透洁白的“轻”空间。 原始户型图 改造后户型图 本案户型南北通透,采光很好,唯一的不足就是餐厅面积比较小,所以乐大姐团队设计师在不影响北书房和厨房使用的情况下借用了厨房和北书房的部分空间来扩大餐厅,以方便日常的用餐与行走; 为了遮挡因餐厅借用空间导致的北书房梁位暴露,设计师采用氛围灯带将其掩藏、弱化; 为了增加客厅的空间感,设计师将南阳台和客厅之间打通,加上阳台使用的是落地窗户,整个空间显得十分通透明亮。
https://vr.justeasy.cn/view/8925319-1603584818.html?from=singlemessage
长按二维码添加乐大姐微信号
装修不烦 大姐来谈