发布时间:2022-03-07
乐大姐
FM104.8《家在苏州--乐大姐说装修》栏目特邀嘉宾,
赫博别墅设计创始人之一;
多次受邀成为院校家居的授课讲师;
98年至今,
为万千家庭打造幸福家居同时,也相互成为了好朋友。
任何与装修有关的问题,欢迎您添加乐大姐微信:13382100888,
乐大姐会为您做一对一解答。
项目地点:科技城金茂府上叠 项目面积:168.9㎡+17㎡ 项目风格:现代极简原木风 项目性质:全屋整装 项目状态:设计已完成 极简是一种设计风格,更是一种让生活回归到简单与本真的生活态度。 玄关处色调简单统一,展示区、收纳区功能齐全,但却被巧妙地隐藏于墙体一角;简洁大气的场域,承载着丰满的“空”。 因二楼有独立的晾晒区,所以对一楼阳台的需求不大,故将阳台纳入大横厅(客厅+餐厅),设计成休闲区,这样既扩充了生活空间,又有一个可以和小孩一起玩耍或者和朋友家人之间沟通的场所。
餐厅为居家生活的重心,客厅餐厅连接式的布局提高了空间的利用率,原木的长桌搭配黑色的餐椅,加以现代风格的装饰画和艺术吊灯的烘托,增添一抹刚硬质感的亮色,最简单的搭配却有着回归真我的触感。
物质、情感、精神,这是家该有的三个维度,房子不仅是个容器,更是承载生活,治愈心灵的庇护所。
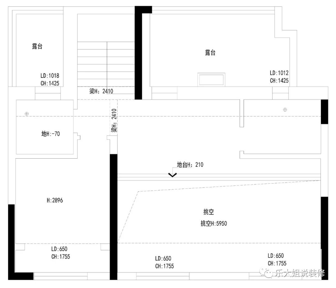
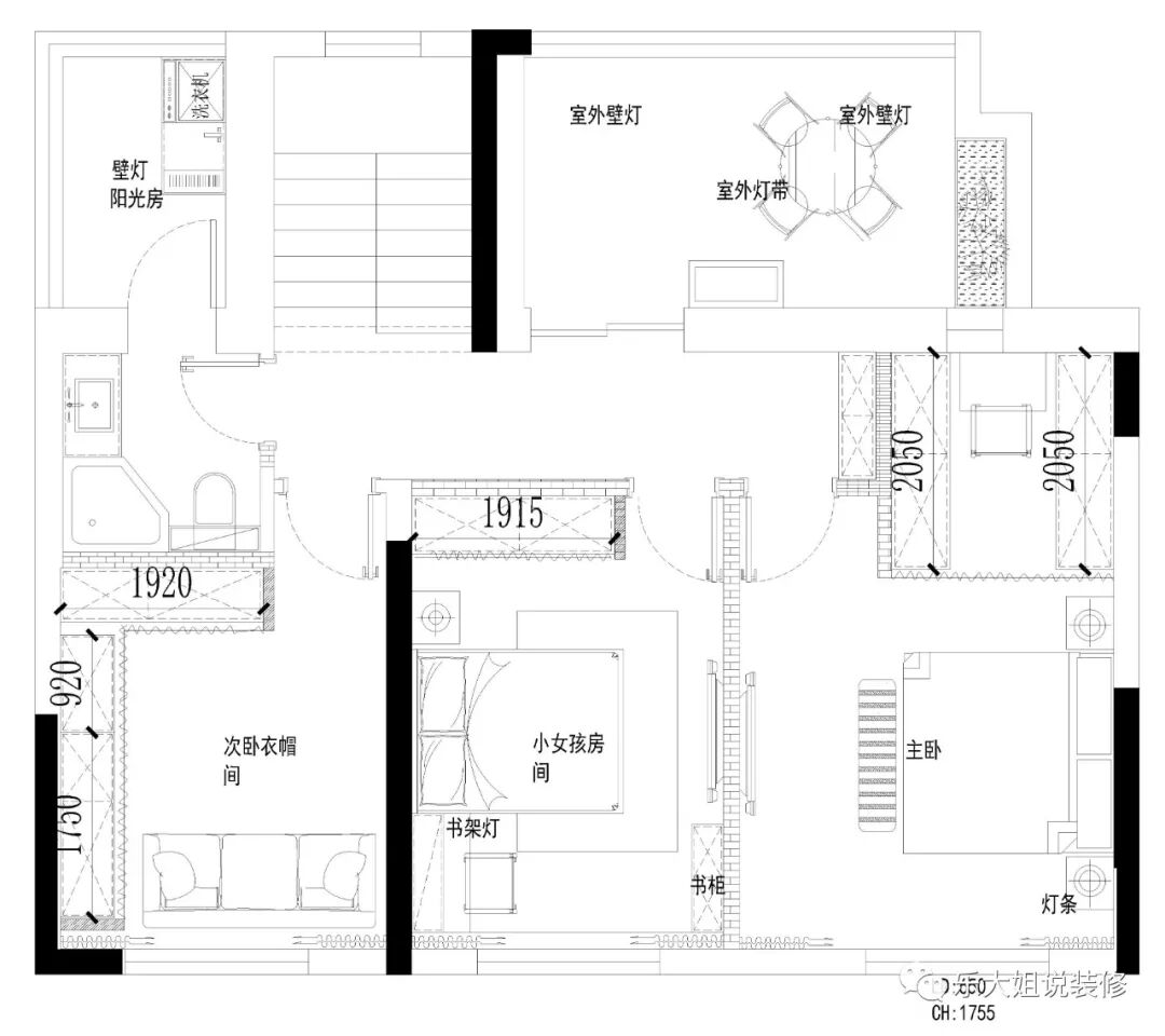
一楼原始户型图 一楼改造后户型图 二楼改造后户型图
本案是套叠墅,总共上下两层,客餐厅为挑高空间,另外赠送面积也很多,因考虑到父母要过来帮忙带小孩,所以整体空间规划是一楼以动区为主,有客厅、餐厅、厨房、外卫,外加一个父母房,二楼以静区为主,乐大姐团队设计师将原客餐厅的挑高空间现浇后改造为主卧和儿童房,配备一个外卫和一个洗衣房,还预留了一个客房;
将一楼客餐厅的阳台与客餐厅之间打通,合并在一起,这样不仅整体空间感更强,功能空间之间的互动性也更强;
因原户型中卫生间外面的小露台正好占西晒,位置非常好,所以将其改造为洗衣房,以便晾晒衣物;
原始户型中连接二楼大露台的是一扇小窗户,不但采光差通风差,且无法正常通行,所以设计师将其改造成开门,这样不仅改善了空间的采光通风,还方便利用外面的露台空间,将其打造为晾晒区;
为了方便主卧的收纳,把原户型中主卧卫生间的位置改造为步入式衣帽间。
长按二维码添加乐大姐微信号
装修不烦 大姐来谈