
乐大姐
FM104.8《家在苏州--乐大姐说装修》栏目特邀嘉宾,
赫博别墅设计创始人之一;
多次受邀成为院校家居的授课讲师;
98年至今,
为万千家庭打造幸福家居同时,也相互成为了好朋友。
任何与装修有关的问题,欢迎您添加乐大姐微信:13382100888,
乐大姐会为您做一对一解答。
项目地点:昆山三水萧林联排别墅
项目性质:全屋整装
项目面积:320㎡+地下室82㎡
项目风格:新中式
项目状态:正在施工
本案位于昆山核心区域——城西,业主夫妻两都是做生意的,目前住在老城区,周边环境比较老旧,交通也比较拥挤,再加上女儿已经结婚了,生活上没有太大的压力了,所以想换个舒适的环境提升自己及家人的生活品质,同时也可以用来以后养老,因非常喜欢三水萧林的环境、绿化以及周边的配套最终买了这套联排别墅。
业主夫妻两对于装修风格的要求点不同,男业主想要中式的风格,女业主喜欢简约风,两者之间很难找到平衡点,所以后来乐大姐团队设计师建议他们做新中式,最终设计效果获得业主夫妻的一直认可。


设计,并不是单一的复刻,而是在理性中凝练人文的蕴涵。尊重传统,追溯本源,以稳重、平和、和谐为特征,近而不浮,远而不尽。
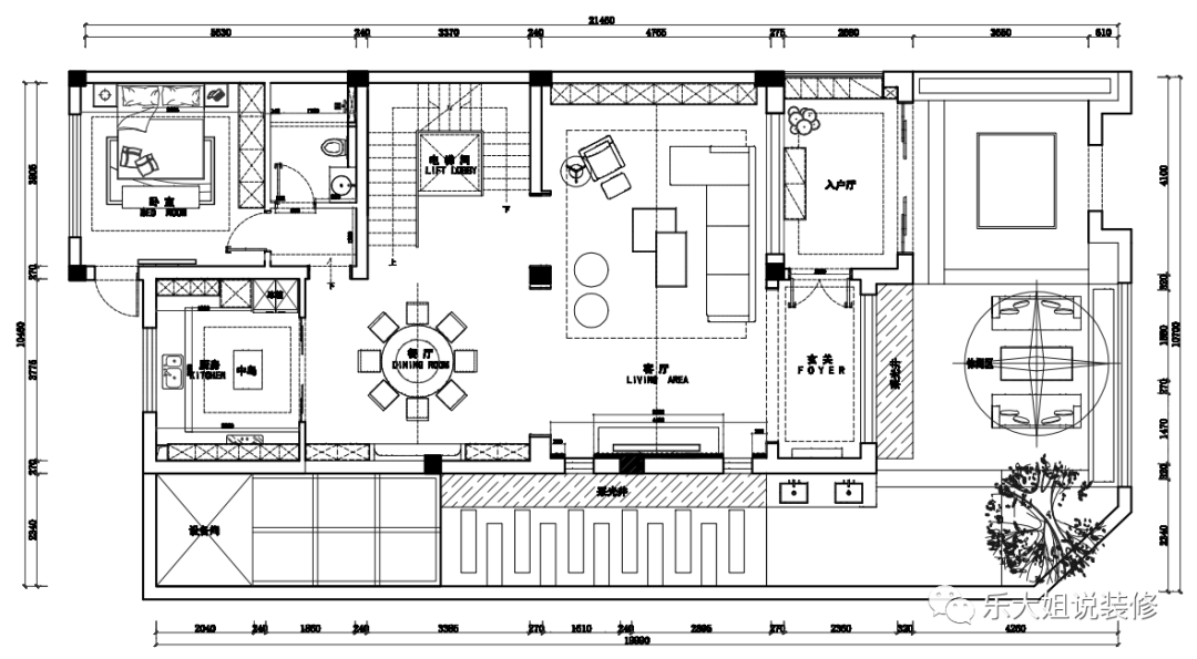
走进入户玄关,梅花框冷调定制的夹丝玻璃墙画与迎客松摆件相互映衬,柔与刚、动与静,轻描淡写着中式的素雅之美,与入户的水刀拼花地面搭配,营造了一种艺术画廊的体感,让人忍不住前往一探究竟。暗藏在细微之处的灯光,在进出时便能察觉到小空间的层次感。
客厅作为居家住宅中的公共区域的中心位置,展示了主人的品味与生活态度,以精炼的动线、量体、空间造形的延伸、交迭以及适度的留白,凝聚着空间的形与神,静谧的空间里流淌着浓浓的文化馨香与艺术氛围。
客厅黑色沉稳的茶几搭配云纹地毯、灰色的沙发,不同色彩和质感的器物有机组合,呈现自然生机与抽象精神的和谐共融,让空间从生命的律动与四时的流转中舒展跃动,安放沉浮于世的疲乏,唤醒更深层次的觉知。一旁灿烂浓烈的红叶与沙发背景墙上的艺术挂画形成呼应,搭配富含质感与光泽的瓷器、金属,东方意蕴与时尚质感形成鲜明对比,形成跳跃而生动的居家之美。
电视背景墙采用留白艺术,如丝绸划过的定制大理石搭配纯黑的电视,两侧窗户用金属线条走边,不仅起到缓冲、协调室内各要素的作用,空间的采光通风也更佳。
整体方正宽敞的布局既可众客以聚,亦可围合小叙,阳光透过白色纱窗,一切都笼罩在温暖之下,静谧、悠然,亦如生活的格调,舒张有度、淡然从容。


餐厅是家人们团聚交流情感的地方,乐大姐设计师在此处巧妙放置了圆桌。圆桌不仅符合中国人大家“围坐”的饮食习惯,也蕴含着“团圆”之意。黑色的桌椅脚搭配白色的大理石餐桌,一张一弛,丰富了色彩层次,给人以安定、平稳的感觉,营造出朴素、宁静的室内气氛。餐边柜以收纳为主,同时兼具展示功能,烟波浩渺的山水画与原木色木饰面恰到好处地融合在一起,让整个空间更协调。
楼梯、电梯与餐厅、客厅处于同一个开放式空间中,视野十分开阔,所以设计上采用了观光电梯和楼梯踏步灯带,这样不仅可以增加楼梯道的采光,还增加了趣味性、观赏性和安全性(尤其老人睡眠质量差,起夜频繁)。
Master room on the second floor
二楼主卧


二楼的主卧延续一楼的整体风格,气氛清雅而放松,赋予品位生活细腻的优雅,包裹着材质、纹理、触感的细节,无一不表达出生活品质的追求。
床头背景摒弃了传统中式讲究对称的思维格局,采用的是不对称的设计手法,山水千里绵延的景象如同一幅徐徐展开的画卷依附在床头墙上,剩余墙面则选用栅格式屏风木饰面包裹,令光影有了独特的肌理感。几抹蓝色与金色色彩的介入,为空间中融注了温润妍丽的诗意气氛。
乐大姐团队设计师非常注重光色的选用,考虑到光线强多少会影响睡眠,整体以暖光为主,同时根据业主和卧室整体环境的需求合理排布辅光源。床头四周的氛围灯带和床头灯让背景立体感十足,呼之欲出,意味深远。
Master room on thethird floor
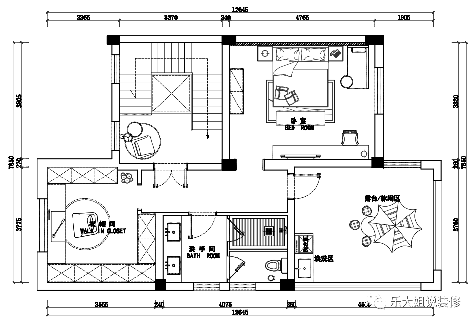
三楼主卧
三楼的主卧非常适合年轻人居住,舒适的配色整体呈递进式铺展,细致而温柔,暖色调的点缀运用,为空间注入生机与灵气,搭配简洁时尚的直线,以无形的力量呈现舒适而纯净的空间气质,营造出静谧闲逸的生活氛围,任何时段都是在家的理想时刻。设计师注重造型与比例的关系,背景墙采用硬包跟木饰面相结合的不对称式设计,时尚而前卫,木饰面上加了一段线性灯,起到画龙点睛的作用。
洗手盆采用嵌入式的双台盆,定制的一体浴室柜满足了业主卫生间的储物需求。大面积的雪花白大理石、钢化玻璃的运用,搭配简洁流畅的线条,丰富了层次,将空间装饰得时尚有格调。

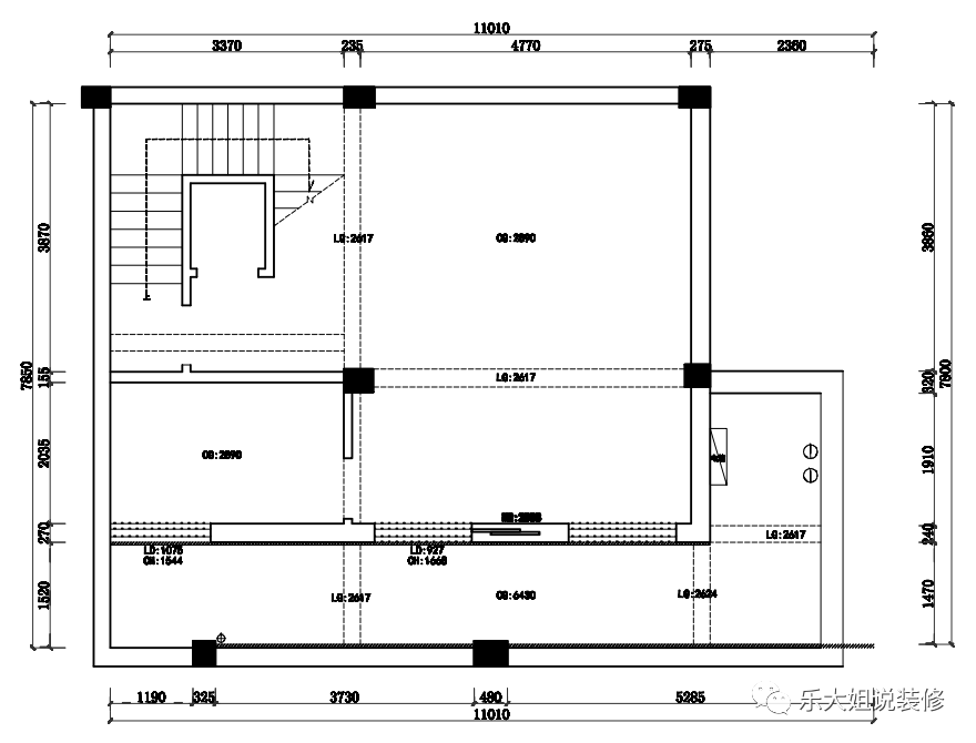
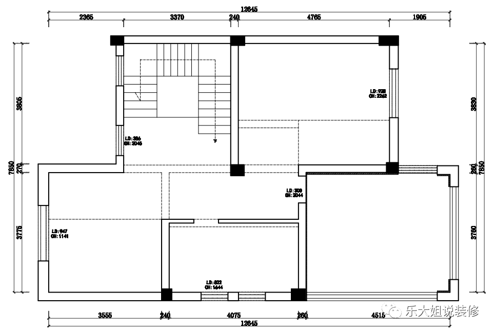
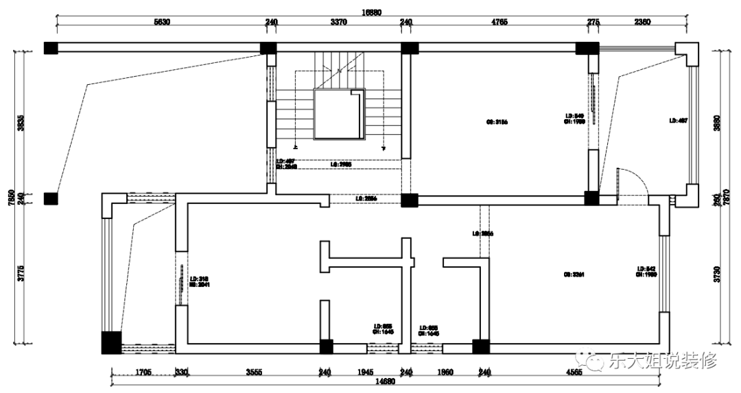
一楼改造后户型图

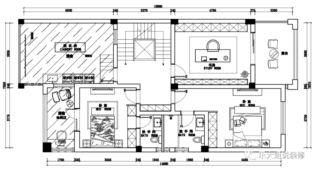
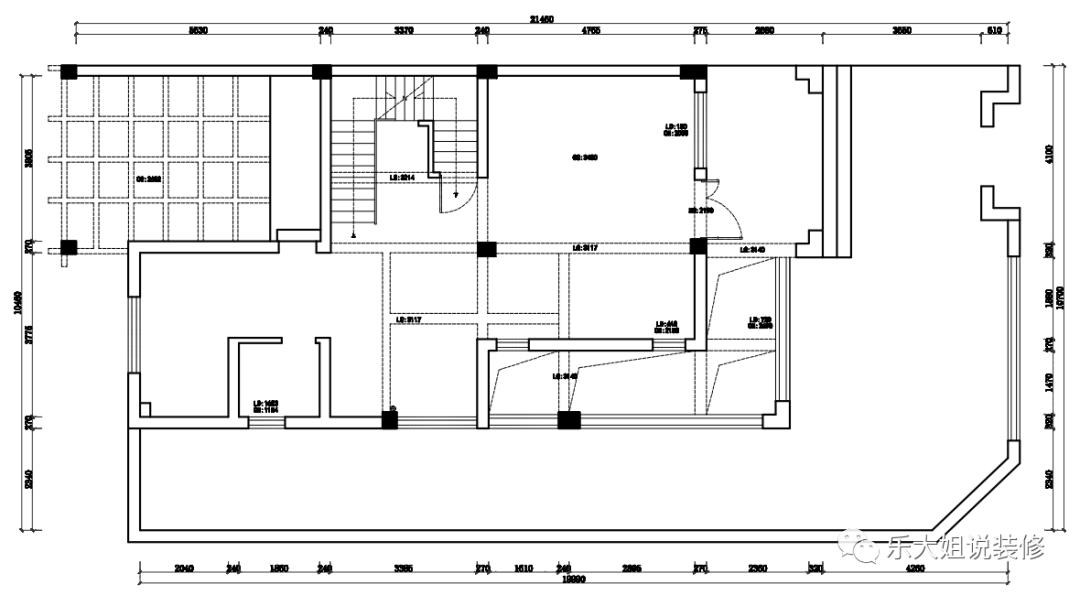
二楼原始户型图

- 本案常住的人口是业主夫妻两,老人偶尔会过来住,所以一楼增加了老人房;女儿女婿虽然有自己的房子,不过以后也会偶尔过来小住,所以三楼留有一个套房给他们;在二楼还预留了儿童房,整体设计满足了四代人的居住要求,一步到位;
- 由于本案的定位是套养老房,所以业主要求一定要做电梯,方便以后上下楼;
- 因本案小区边上有条中环高架,平时会有点吵,而男业主对噪音比较敏感,所以封窗采用的是密封效果最好的系统门窗;
原始户型中入户门是正对着客餐厅的,不利风水,设计师通过改造设计出一个入户厅和一个玄关,改变了入户门的方向,使得空间流线更加合理;
原始户型中客餐厅之间有一根600*600的称重结构柱,乐大姐团队设计师利用柱子把客餐厅自然地分割开,然后用大理石将柱子包裹,并沿着柱子的宽度做了两个大门套,木质与石材很和谐地组合在同一个空间,从而把缺点转化为优点;
因原始户型中客餐厅的顶梁数众多,纵横交错,很繁杂,所以客餐厅的吊顶采用的是满吊顶的布局,特别是电视背景墙的顶部有一个大梁,设计师采用了悬浮吊顶,四边下挂,中间凹上去,这样既完美地化解了突兀感,还能拉伸整体层高。
点击左下方“阅读原文”,即可在线免费看本案例全景图(360°)。