
乐大姐
FM104.8《家在苏州--乐大姐说装修》栏目特邀嘉宾,
赫博别墅设计创始人之一;
多次受邀成为院校家居的授课讲师;
98年至今,
为万千家庭打造幸福家居同时,也相互成为了好朋友。
任何与装修有关的问题,欢迎您添加乐大姐微信:13382100888,
乐大姐会为您做一对一解答。


本案属于老房子重新装修,之前的装修大概是在十几年前,业主自己找人装修的,半包模式,材料也都是自己买的,谈不上什么装修风格,比较暗沉老气,而且缺乏收纳空间,显得比较凌乱,甚至好多地方的乳胶漆现在都脱落了,再加上业主因自身身体的原因需要长时间呆在家里,对居住的品质要求还是比较高的,所以思虑很久最终决定还是重新装修。
经过乐大姐团队一番拆改装修,127㎡的家焕然一新,前后对比差距不是一般的大,暗沉老气的房子变得简约敞亮,入住很舒适!


本案在乐大姐团队设计师的合理规划下,空间手法延续了现代、纯粹的设计语言构建而成的内在静谧,雕塑出整个空间沉淀后的温润与朴实,给生活带来看不见的、内在的精神。因有精神,而凸显出空间的美好情怀。
客厅整体以现代大方的空间氛围,呈现出一个舒适宽松的空间感。电视背景墙造型简约,大理石与木色木饰面相拼,不仅使得整个空间精致大气,同时也柔化了空间的硬度。金属线条的点缀,既赋予了空间质感与温度,又不占客厅整体空间,方便业主行动。整个空间以低饱和度的色彩搭配为主,深灰色的地面、浅褐色的地毯、灰色的沙发带动了整体质感,间以绿色、粉色、粉紫色、金属色等跳色加以调和,柔软与刚硬交错糅合,在光线的映照下呈现出自然美观的光泽,现代的简约与克制在这方寸之间缓缓展现。
大大的落地窗,既方便业主日常临窗欣赏自然美景,也使得整个空间光线充足,搭配灰色的窗帘,很是惬意,其中以粉色的绒布单椅、白色的大理石小几点缀,简约时尚有韵味,给人一种宁静致远的舒适感觉。
餐厅是一日三餐的承载,见证着孩子的生长、父母奋斗的能量和一家人的其乐融融,所以它必然是充满活力、令人心情愉悦的氛围。
餐厅空间与客厅相连贯,整体宽度充足,居中摆放一个简约的圆形大理石餐桌,搭配皮质餐椅,质感十足。白色整面到顶的餐边柜两侧镂空渗出柔和的光线,为整个空间添上一抹温馨的色彩。
因一进门就是餐厅,为了增强空间的仪式感和风格定位,乐大姐团队设计师将餐厅靠入户门侧的墙设计成软包+玄关柜形式的门厅背景。又因餐厅右边顶上有横梁,故将背景造型与吊顶的处理相结合,两者交界处采用连通灯带的设计,这样不仅化劣势为优势,使其成为整个空间的点睛之笔,同时也打造出良好的用餐氛围。主卧整体墙面与大空间相协调,沿用了简约风格,凭借干净的线条、纯粹的色彩,呈现设计本身的美感,留下真正高品质的生活空间。
主卧的自然氛围得益于整体软装的搭配,木质地板、木色墙面的大背景,为整个空间打下沉稳的基调,地毯、床头板、床头灯、电视柜,丰满了整片空间,整体色系淡雅,低调而不失舒适感。纱帘微垂,微风徐来,带着纱帘舞动的画面。身心愉悦放松。每个人都有自己的童话,守护着忙碌的都市生活里仅存的柔软和温暖。
鲜艳的颜色对视觉及心理会带来冲击,不利于睡眠,而过于冷艳的颜色也会令人产生厌倦感,所以小孩房的主色调选用的都是纯度较低的颜色,再加上可爱的玩偶、小巧的家具给整个空间又增添了些许童趣。
主卫
Bathroom
卫生间原先是浴缸,不过对于业主目前的状况来说使用起来很不方便,所以乐大姐团队设计师在淋浴房里面设计了坐的地方,这样洗漱时就不会太累,通过巧妙规划带来合理的布局,完美实现功能与美感的结合。

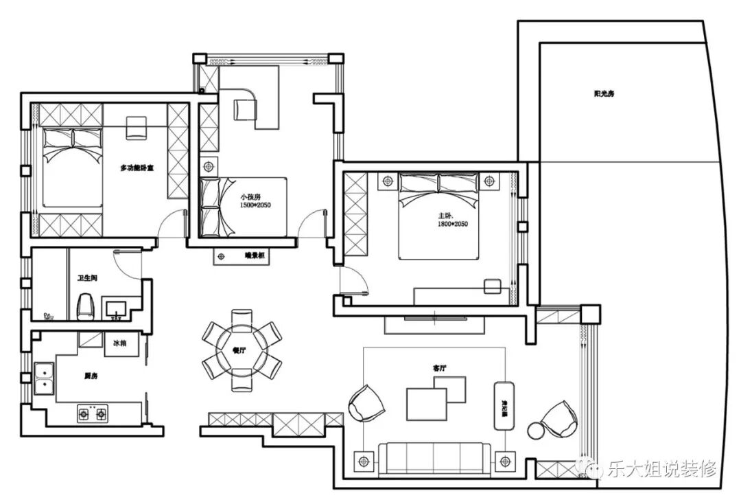
原始户型图

改造后户型图
本案为老房全部拆光重新装修,原始户型为三房一卫一厨,整个空间功能布局是比较合理的,需要改动的地方不大。- 不过因业主行动不便,所以需要根据业主自身的情况做了一些局部改动;
- 将原始阳台扩到客厅,增加客厅的活动区域,将阳台和客厅之间的地面打平,避免业主在家中活动被绊倒;
- 将小孩房的阳台也扩到卧室,安置了一排书柜和写字台,给初中的儿子营造一个安静的学习区域;
- 另一个卧室采用榻榻米的设计,这样不仅可以增加储物,也可以做客房使用。
点击左下方“阅读原文”,即可在线免费看本案例全景图(360°)。