
乐大姐
FM104.8《家在苏州--乐大姐说装修》栏目特邀嘉宾,
赫博别墅设计创始人之一;
多次受邀成为院校家居的授课讲师;
98年至今,
为万千家庭打造幸福家居同时,也相互成为了好朋友。
任何与装修有关的问题,欢迎您添加乐大姐微信:13382100888,
乐大姐会为您做一对一解答。

理想中的生活:
只闻花香,不谈悲喜,
喝茶读书,不争朝夕。
阳光暖一点,再暖一点,
日子慢一些,再慢一些。
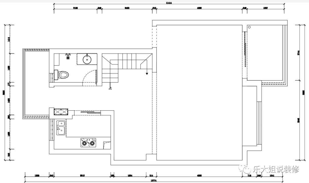
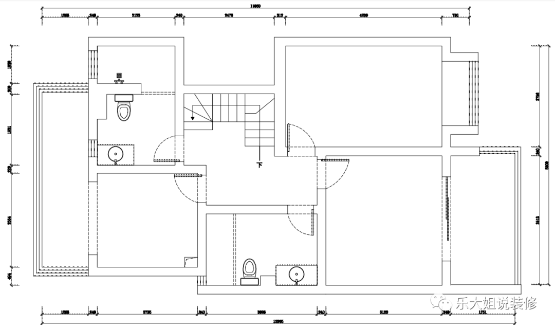
本案小区原本是以毛坯房为交付标准的,后因资金、政策等原因改为精装交付。但是,精装交付的标准(不论是户型结构还是用材、施工质量)比较低,导致业主觉得全部拆掉的话有点浪费,不拆的话又无法达到自己的入住要求,所以最终选择了找乐大姐团队做局改+软装。这套房子业主是准备以后养老用的,设计效果一出来,业主女儿就说第一眼看起来就是自己喜欢的样子,得到一家人一致认可。


精装房的时代,拿到房总有一种“好看的皮囊千篇一律,有趣的灵魂万里挑一”的既视感,打开房门,从顶到地,无限重复,缺少的这一味灵魂,今天就看看乐大姐团队设计师怎样给他注入进去。原始的屋况,样板房的气息非常浓郁,设计师在原始硬装未大改动的情况下,最大化地利用墙面的材质颜色和柜体结构的区分,增加空间的层次感,从主沙发到小配饰,不仅协调了原有硬装基础,更提高了空间的气质,每一个细节都体现了设计师的精心搭配。
色彩在空间里面起到了非常重要的作用,深浅灰的合理使用大大地提高了空间视觉感,木饰面的肌理和大理石相碰撞形成鲜明的对比,温柔又不失冷硬之感,浅灰色家具和局部橙色、蓝色的点缀,丰富了整个空间的层次,金属质感的配饰又增加了时尚轻奢的效果,玻璃元素穿插其中,最大限度地拉伸了视觉效果。

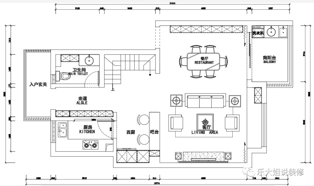
增加了与中厨相连的吧台,补充了西厨的功能,还额外获得了收纳空间,不仅能让业主拥有更好的烹饪体验,也为家中添上一处小酌之所,享受生活,从这一刻开始~
根据业主的需求和习惯重新梳理了空间布局后,公共区域的每个角落都拥有充足的光线,配合浅色系的暖色调,空间明亮而具有温度。


改造后的餐厅在增加储物与展示功能的同时,依然延续客厅、西厨的设计,白色的柜门与大理石餐桌彼此呼应,流线型灯饰个性而独特,搭配金属材质的餐桌桌脚、橙色的皮质靠背、繁华盛开的花艺,从色彩到配饰整体性地调整氛围,丰富层次。

餐厅边上原本有一个通往消防通道的门,被巧妙地改造为隐形门,让有限的空间发挥出更多作用。合理的设计是能化腐朽为神奇,添加细节后,一个完整、饱满的时尚温馨之家便诞生了~


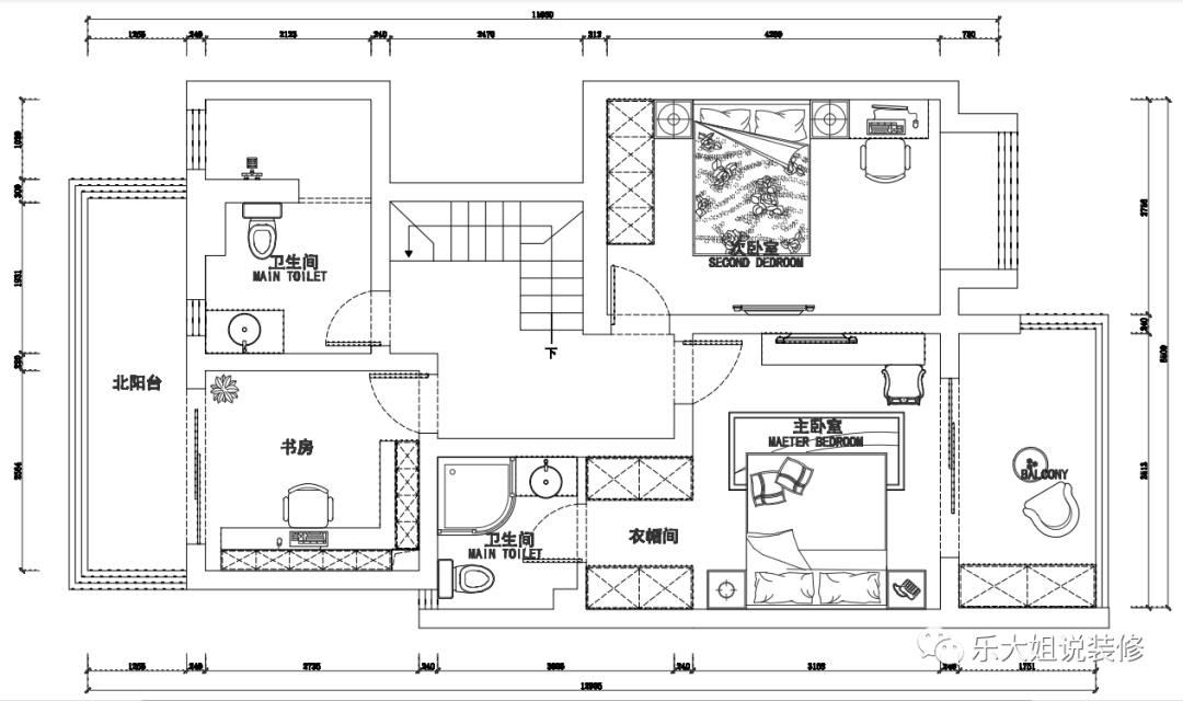
主卧室在保留原硬装基础之上,以家具和软装配饰充分体现空间的雅致和舒适感,床头背景用了木饰面,材质、颜色和氛围灯刚好中和了空间的硬朗,提升空间的视觉感。抱枕的跳色与整个空间的整体色调相呼应协调,将家的整体性设计完美表达出来。


阳台是业主最喜欢的角落,在这里可以看看书发发呆、眺望风景,是一个放松休闲的好地方。


孩子房依然通过颜色和材质的搭配扩大视觉的空间感,同时增加了学习空间,装饰画的眼睛图案和楼梯旋转造型,无形增加了空间的趣味性,几何形吊顶和茶色玻璃门衣帽柜更是在空间起到点睛的作用。
阁楼设计成家庭休闲区,舒适的沙发,质感温润的木地板,大大的天窗,阳光透进来,自在而惬意,晚上还可以和家人一起用望远镜遥望星空,一切都跟梦一样。
利用阁楼的特殊性,隔离了楼下的生活气息,放上书桌,自成一个学习的小空间,安静而自在,同时设计了很多靠墙的书架、收纳柜,极大地丰富了储物空间。
- 原始户型中餐厅朝西的墙上是有开个门通往消防通道的,物业不允许将其自行封掉,这样就导致了餐厅区域安全性极差,且这扇门与整体空间的颜色、效果、造型不协调,所以设计师采用了整面的硬包+隐形门设计,这样既保留了消防通道,同时隐形门和硬包之间形成一个整体的背景墙,另外平时还可以加上暗锁,增加了家里的安全性;
- 因原始户型中厨房门是开在过道上的,导致鞋柜空间很小,也不利于通风采光,所以设计师把门改到客厅方向,这样不仅增加了鞋柜的储物空间,还增加了西厨,让中厨跟西厨更完美地融合在一起;
- 主卧开发商留的不是套房的设计,这一点让业主很头痛(一个叠墅连个套房都没有),经过研究乐大姐团队设计师决定把二楼临近主卧的卫生间原有的门给封掉,并将卫生间的门重新开在主卧里面,又因原卫生间的空间比较大,改变内部格局,将其一分为二,一部分用来做衣帽间,一部分用来做卫生间,空间得以最大化的利用;
- 原始楼梯是瓷砖拉槽贴上去的,导致踏步有接缝,瓷砖的收口也不美观,后期改造中通过把原始的瓷砖拆掉换成大理石加拉槽,同时做下挂收边,这样既美观又实用,加上灯带的设计,楼梯空间十分通透。
点击左下方“阅读原文”,即可在线免费看本案例全景图(360°)。
https://vr.justeasy.cn/view/979f159g04d52690-1603333713.html