发布时间:2022-03-07
乐大姐
FM104.8《家在苏州--乐大姐说装修》栏目特邀嘉宾,
赫博别墅设计创始人之一;
多次受邀成为院校家居的授课讲师;
98年至今,
为万千家庭打造幸福家居同时,也相互成为了好朋友。
任何与装修有关的问题,欢迎您添加乐大姐微信:13382103377,
乐大姐会为您做一对一解答。
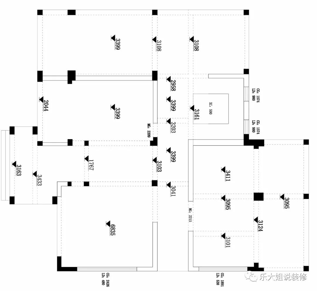
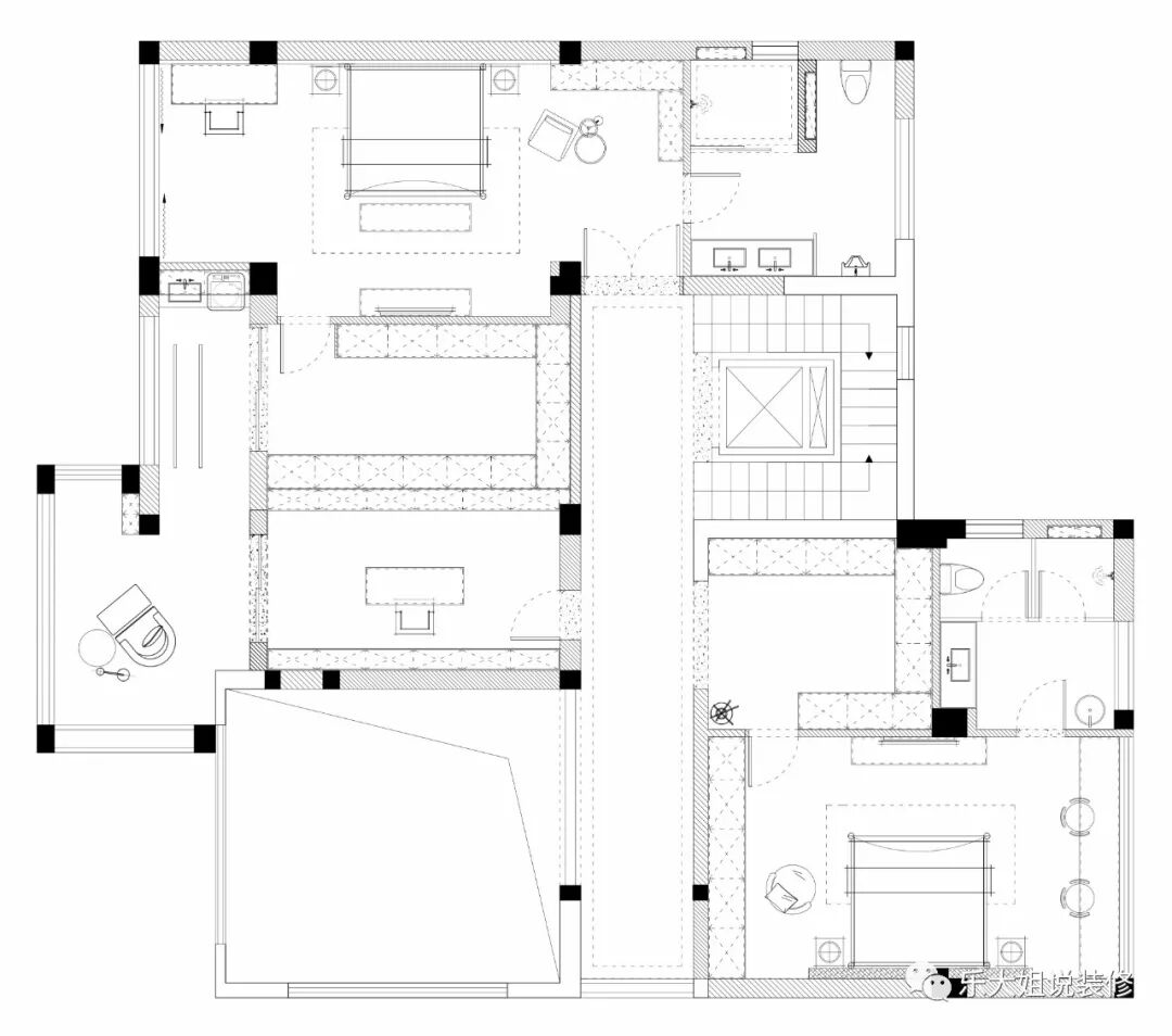
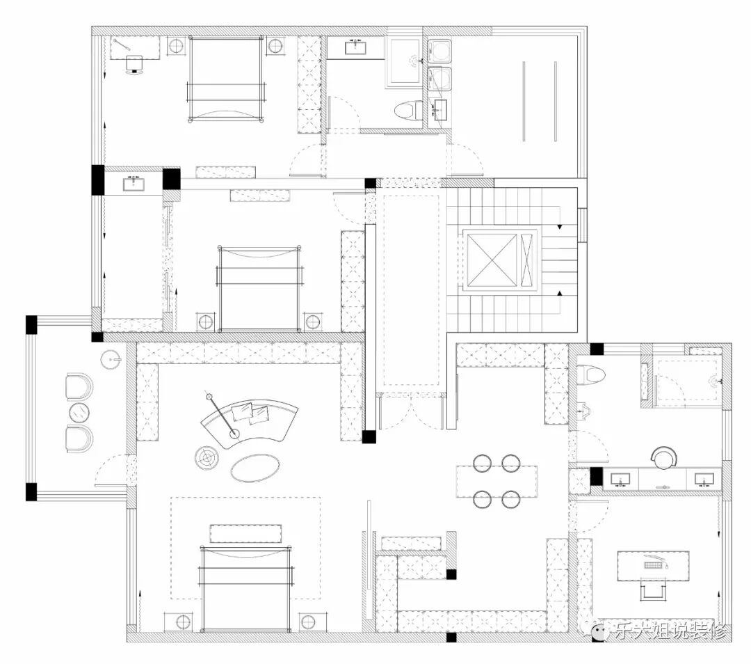
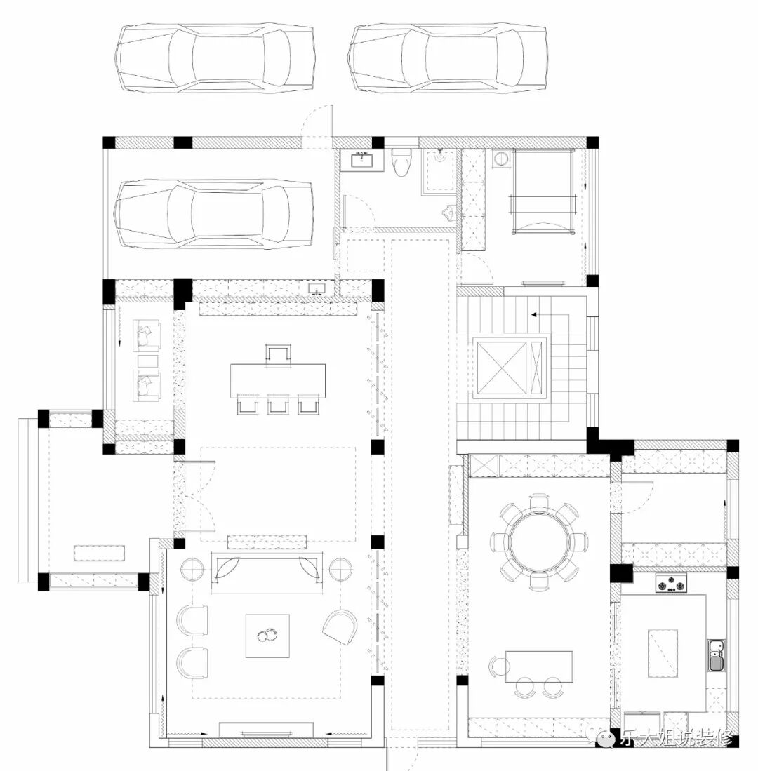
【项目信息】 项目地点:吴江菀平盛世花苑(独栋) 项目风格:新中式 项目面积:718㎡ 项目性质:全屋整装 项目状态:设计完成 【业主需求】 本案是位于吴江菀平的一套独栋别墅,因面积比较大,涉及的项目多,周期长,非常考究团队的实力及服务态度,所以业主夫妻两在市场上看了不少装修,设计、施工也让一些装修公司做过,但是就是达不到一家人对于这套房子的预期,兜兜转转、磕磕绊绊了很长一段时间,最终选择了找乐大姐团队重新设计、施工! 在选定设计风格时,男业主一直想要中式的庭院、回廊、八角亭、假山、鱼池等等,不过因这套房子是要和女儿女婿及孙子一起住的,所以注定男业主的梦想不能完全实现,毕竟少数服从多数,而除了男业主以外的其他成员都喜欢现代简约风,所以最终达成的共识是选定将二者相结合的新中式搭轻奢风格(70%的现代手法+30%的中式元素)! 本案设计师根据业主一家人的需求,将传统与现代拼贴在一处,在两者之间寻求一条中道,而这种对立融合,碰撞出不可名状的吸引力。 空间上充分运用718㎡大独栋的空间优势为设计考量,规整原始结构,以更开阔的尺度,展示生活的多元场景,打造精而静谧的沉稳空间,呈现有深度的生活美学氛围。 由门厅进入,两整排的金属框架夹层玻璃定制屏风映入眼帘,乐大姐团队设计师借鉴园林的借景之法,在室内空间中营造出通而不透、半隐半现的风景视线,展现空间的主题与雅致格调,渲染出丰富的层次感。 这些细节提醒着人们,那些日渐失落的东方优雅。 书柜背景的纹样图案与空间完美结合,搭配暗藏的灯带、典雅的大理石、山水造型的吊顶,更让空间充满质感,相得益彰。 随意端坐空间一隅,便可感受到一种清透的气息和幽微的节奏美,让人倍感安然自得。 厨房布局采用了中西厨的概念,与餐厅的开放式岛台不同,回归到传统U形厨房,同时设置操作性岛台,满足了不同家庭成员的烹饪习惯。浅色的橱柜使空间明亮宽敞,多功能一体设计,简约而又不失创造力及对实际需求的细致考虑。 二楼主卧卫生间采用双台盆、三分离式设计,肌理顺滑的灰色大理石搭配玻璃材质,打造高便捷性、私密性的环境。 家不单单是一隅屋檐一床两柜,大宅格局拥有大规格的主卧,乐大姐团队设计师构想使用者(业主女儿女婿小夫妻两)在空间的各种生活场景,描绘独一无二的居住空间,勾勒出轻奢雅致的空间情绪。 床头背景采用分隔设计,里侧为弧形石膏板加灯管设计,弱化直角冲突感,为空间带来延伸感。外侧则用原木色的木饰面加藏光与金属线条勾勒墙面层次,简单直接。中间的圆形发光装饰挂件,点出圆满大方的姿态,写意无限。顶面的无主灯设计,充分展现3米层高带来的空间感。 三楼主卧卫生间采用的是挂墙式双台盆柜,减少了卫生死角。同时,应业主的要求,在双台盆中间加入梳妆台,功能划分明晰,内敛而精致。 三楼次卧是儿童房,色调上采用简单的蓝色与白色相拼,加上活泼童趣的造型设计,使得整个空间更能激发孩子的想象力与探索欲望。衣柜采用无把手按压式设计,小朋友不会磕碰,细节处见实力! 三楼改造后户型图 本案是一套独栋别墅,总共三层,一层以动区为主,有客厅、餐厅、会客厅、厨房、卫生间,还配有保姆房、公共车库等,风格上以新中式为主;二层、三层以静区为主,其中二层是业主夫妻两的主卧套房及客卧套房,风格上以新中式为主,三层是业主女儿女婿小夫妻两的主卧套房及儿童房,风格上以现代简约为主。整体空间功能十分丰富,居住舒适度高。 除了独立的厨房、餐厅外,设计师还根据业主的需求,设置了餐厅吧台区和独立的食品储存室,这样不仅中西厨分开,油烟不扰,还增大了食物储备功能,使得厨房餐厅整整齐齐。 厨房餐厅区域共放置了两台冰箱,厨房的冰箱用于储藏食品、饭菜;酒柜处的冰箱用于储藏蔬果、酒水饮料,不会串味。 二楼主卧南侧共有两个阳台,其中一个直接打通纳入房间,扩大主卧的通透性,另一个用来做生活阳台。 三楼主卧卫生间采用防水石膏板做吊顶,做了一个小的阶梯高度差,用不锈钢封边,增加层次感。
END
长按二维码添加乐大姐微信号
装修不烦 大姐来谈