清水江南别墅整装

设计说·第123期 | 在这套400㎡联排别墅里,恋上欧式的流金岁月!

发布时间:2022-03-07

图片

乐大姐

FM104.8《家在苏州--乐大姐说装修》栏目特邀嘉宾,

赫博别墅设计创始人之一;

多次受邀成为院校家居的授课讲师;

98年至今,

为万千家庭打造幸福家居同时,也相互成为了好朋友。

任何与装修有关的问题,欢迎您添加乐大姐微信:13382103377

乐大姐会为您做一对一解答。


And I Love You So


每一个房子都在记录一个故事

图片
图片
从一间房子变成一个“家”
这过程需要付出很多的心血,
开工仪式还历历在目,
样板房拍摄已如期而至,
这不仅仅代表着一份成果,
更代表着
完成业主梦想中家的承诺,
有始有终才算圆满!
——by 乐大姐团队原创


/

业主说

   装修背后的故事   

项目地点:太湖上景(联排)
项目面积:400㎡
项目风格:欧式
项目性质:全屋整装
项目状态:已交付


满意度100%


欧式,真的过时了吗?

在很多国人眼里,欧式就是“奢华”“土豪”的象征。

但实际上,欧式风格和中式风格一样,都源远流长,代表着他们所属的文化
那么,欧式风格,怎样设计才能不落俗套


BACKGROUND:


今天跟大家介绍的这套“太湖上景”联排别墅就属于“欧式”风格的装修,太湖上景位于太湖国家度假区内,整个小区的外观偏欧式,女业主周女士一直对欧式有很深的向往,男业主则最早偏向的是中式风格,最终男业主选择了尊重女业主的愿望,装修了这套欧式风格。


那么,乐大姐团队是如何靠硬装软装让大家印象里“土洋土洋”的欧式咸鱼翻身,变成高端、精致、上档次的别墅呢?这中间又遇到了哪些问题,有什么样的故事呢?下面跟随乐大姐一起见证不差钱儿的土豪风如何一步步蜕变成精致有品位的摩登贵妇style!


图片
▲ 乐大姐团队&太湖上景业主周女士合影留念
业主周女士告诉乐大姐:自己虽然一直有一个简欧梦,但是不喜欢传统的欧式,自己堂姐家装的就是那种比较老式的欧式风格,每次去都觉得色调特别重,线条也很复杂,在里面呆的时间长了会压抑。所以,乐大姐团队设计师根据业主的需求,从繁杂到简单、从局部到整体,一方面保留了传统欧式风格的材质、色彩的大致走向;另一方面又摒弃了过于复杂的肌理和装饰,简化了线条,从而让整体装修更为清新、也更符合现代中国人内敛的审美观念。所以这套简欧房子装完业主夫妻两都很喜欢,就连儿子的婚房也都规划在这里

图片

▲ 太湖上景业主周女士&乐大姐正在交谈

乐大姐和业主一起参观了现场,发现本案硬装部分的设计都符合欧式风格,但软装搭配上因男业主本身比较喜欢中式风格,在硬装完工后,家中的挂画及摆件都是自主选择的(设计老师准备了全套的软装方案,业主没有采纳),所以最终家中出现了美式乡村及中式风格的元素,十分遗憾!


在现场,乐大姐在跟业主的沟通中还发现了一个细节问题(乐大姐团队的成品交付现场从未出现过的细节问题),乐大姐立马提出要整改,不过业主怕乐大姐团队麻烦,几次说算了,但乐大姐认为不能就这样算了,一定要及时解决,因为乐大姐团队一直坚持的就是“以客户为中心”的服务理念。业主对乐大姐团队处理问题的态度十分满意,直说“我们当初选择你们看重的不仅是乐大姐团队的设计施工实力,还有你们对客户的态度,后续的维修保障,你们果然没有让我失望!等第二套房装修的时候我还找你们!


图片
▲ 竣工验收单上业主的评语


图片

图片

图片

图片


图片

图片



图片

图片



图片

图片


▲ 乐大姐正在拍摄苏州电视台《第一时间》家装栏目


图片
▲ 业主周女士设宴宴请乐大姐团队贺竣工之喜
另外,业主在竣工酒上还跟乐大姐说,我的下一套房不装欧式风格了,要装现代简约风。因为自己的欧式梦在这套房子里已经圆了,下一套房子想换一种生活方式。乐大姐说:做了这么多年的装修,人生好像选择一次欧式风格就够了,一般很少有家庭会再次选择欧式风!


/

确认过眼神

    遇见对的装修团队   



实景效果


现在请横屏来看哦~

90度旋转


图片
图片
图片
图片
图片
图片
图片
图片
图片
图片
图片
图片
图片
图片
图片
图片
图片
图片
图片
图片
图片
图片
图片
图片
图片
图片
图片
图片
图片
图片
图片


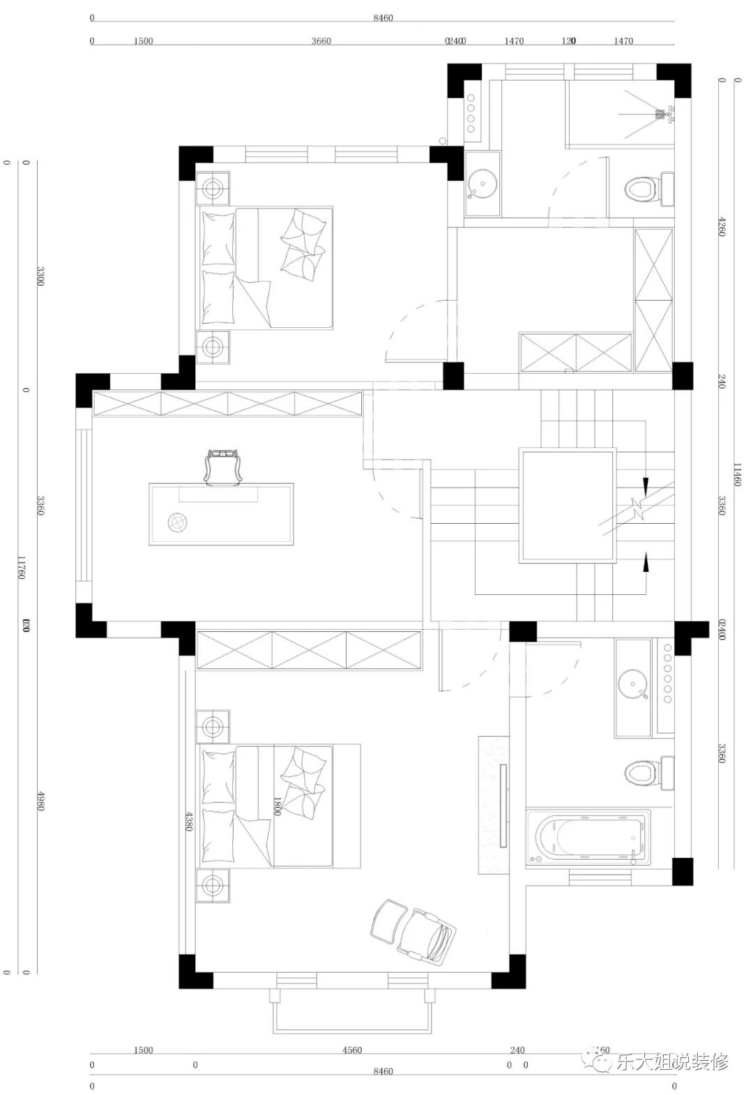
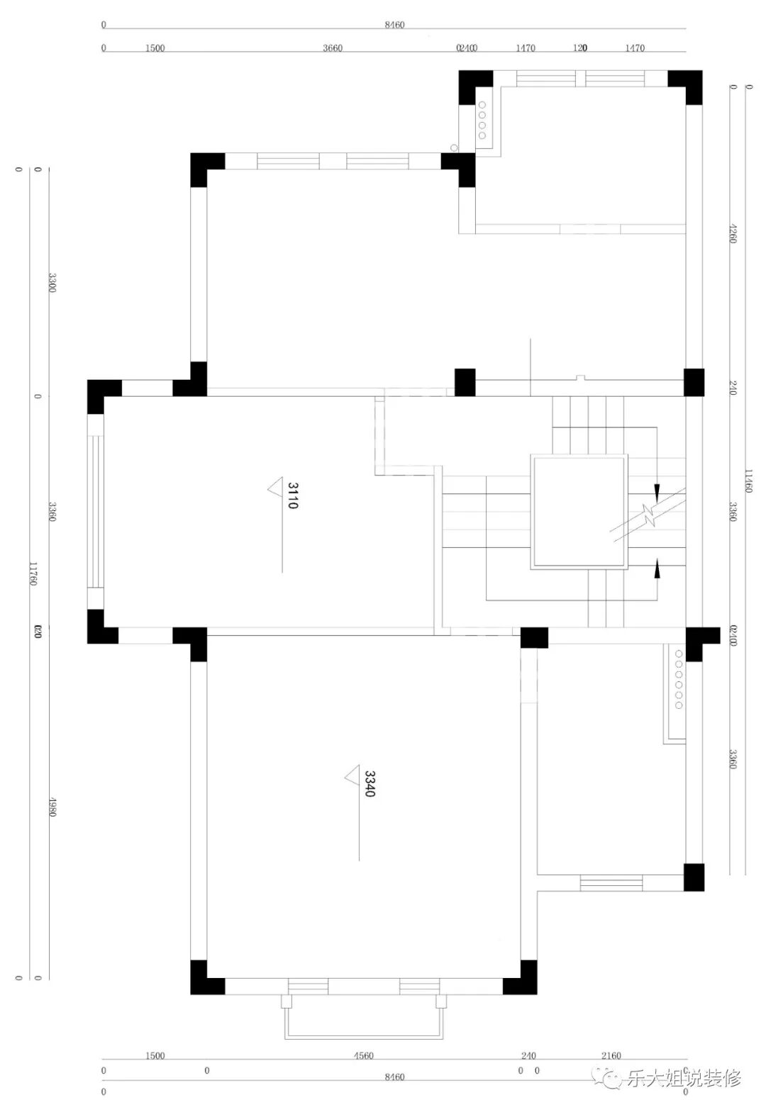
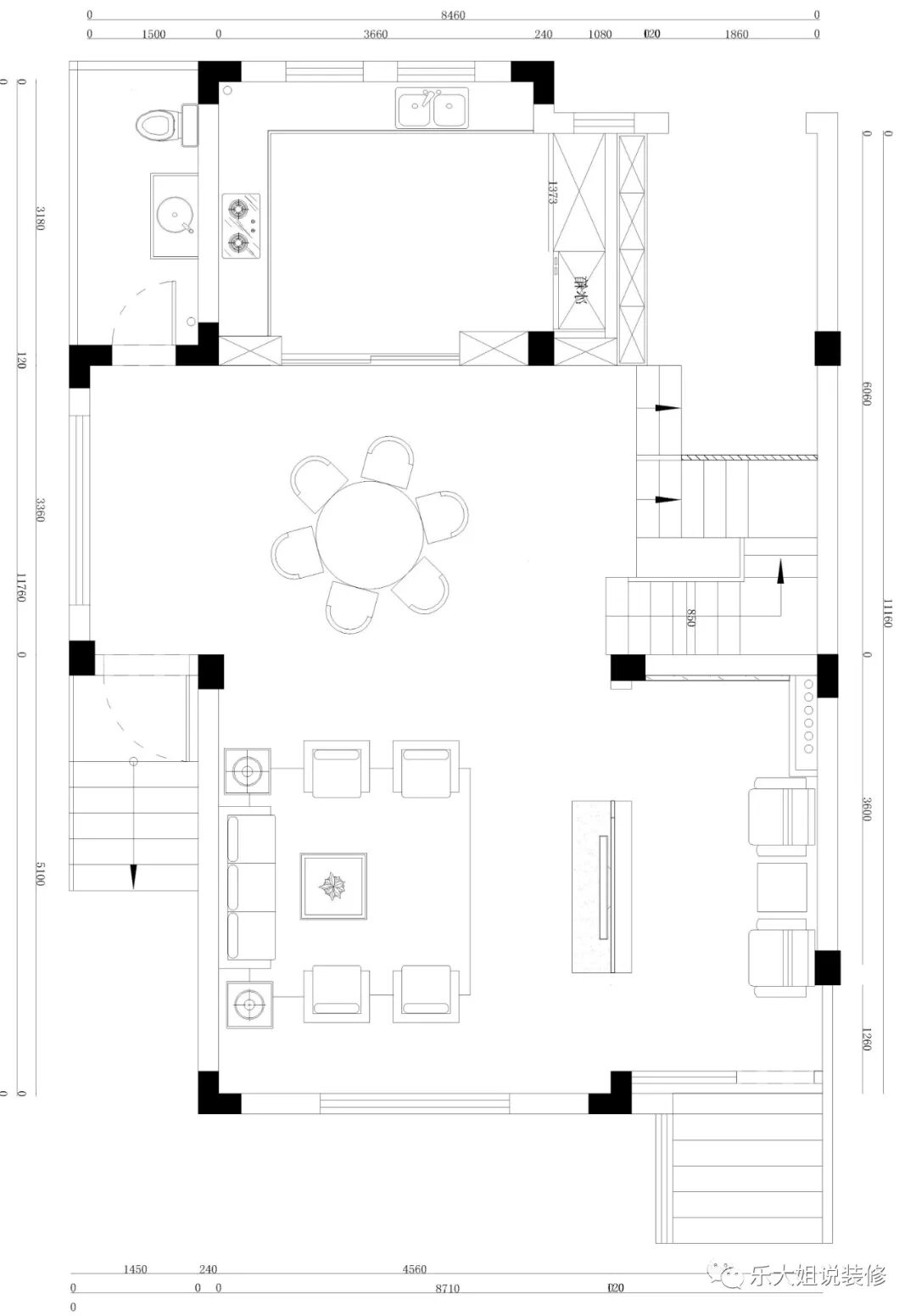
平面方案


图片
图片
图片
图片
图片
图片
图片
图片


设计全景图
图片
点击左下方“阅读原文”,即可在线免费看本案例全景图(360°)。
https://vr.justeasy.cn/view/6518120-1603585134.html

再次感恩业主

对乐大姐团队的信赖与认可

您的新家落成

 我们来见证幸福、兑现承诺。

当梦想变成现实,家有了情感,
我们的缘分也有了新的定义,
竣工才是我们服务的开始,
时间是检验我们服务的试金石。
我们一定不会辜负您的这份信任!


长按二维码添加乐大姐微信号

装修不烦 大姐来谈