
乐大姐
FM104.8《家在苏州--乐大姐说装修》栏目特邀嘉宾,
赫博别墅设计创始人之一;
多次受邀成为院校家居的授课讲师;
98年至今,
为万千家庭打造幸福家居同时,也相互成为了好朋友。
任何与装修有关的问题,欢迎您添加乐大姐微信:13382103377,
乐大姐会为您做一对一解答。
我们看过喧闹的都市,
生活就这样在大染缸面目全非。
而如今的我们望洗净纤尘,
在人生的又一个阶段找寻内心的安稳。
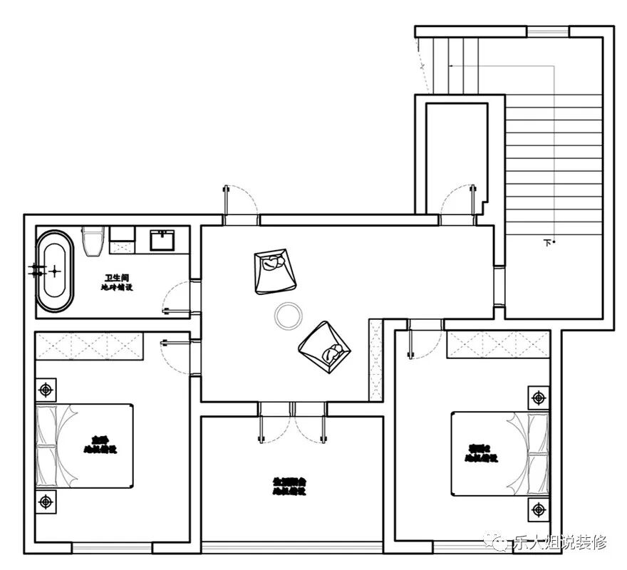
本案是套近30年的老房子,之前还是父母辈装修的,后来就一直出租着,中途也整修过一次,不过这么多年过去了,房子各方面损毁比较严重,所以业主就想找乐大姐团队局部改造下再租给优质的家庭租户。结果,设计出来后,一家人又犹豫了!舍不得了!想着有时间就带孩子过来度假住住,感受一下苏州老城区的生活气息(业主一家目前住园区)!- 本案位于姑苏区,房龄有近30年了,2002年重新修整过,但到现在房屋损毁严重,装修风格也老旧了,所以这次主要是针对性地进行局部改造。
- 整体保存了相对完好的一些地板和吊顶,剩余的基本拆掉重做了,二楼的房屋结构也没有改变,这样不仅可以控制预算,也有效地避免了资源浪费。
- 从设计风格上,设计成业主想要的现代简约,以黑、白、灰、原木为主色调,与原始老旧的装修形成鲜明的对比。
设计时应结合居住人口的情况去针对性优化,不同的居住群体,优化的方向是不一样的,本案的设计重点是在基础装修尽量保持不改变的前提下,通过部分建新、软装搭配等营造一个全新的空间。客厅空间保留了大部分硬装,只粉刷了墙面,更换了窗帘、灯具,所以为了协调色调偏红的原地板,地毯、茶几、沙发背景墙等都选用的黑白灰色系,从深到浅依次排列,皆是考究,搭配清新自然的原木色门套、稳重的棕色皮质沙发、亮眼的黄色毛毯、简约的线条挂画,增加空间的层次感的同时,彰显无华的纯净气质,呈现利落而纯粹的都市氛围感。
客厅改造的重点主要是电视背景墙,拆除原有设计,运用非常实用的收纳柜来做,将电视机嵌入安置,配合无把手的白色柜门,看起来干净又利落。顶天立地的收纳柜拥有超强的储物功能,细心的设计师还在电视正下方的位置做了悬空处理,用来收纳电视遥控等一些小物件,让业主可以轻易地控制空间的整洁美观度。客厅阳台区域黑色开放式的竖格,与电视柜形成强烈的色彩对比,让整个墙面层次丰富起来。另外,也集展示、收纳为一体,将储物空间打造得更具趣味性。
穿过城市,穿过微寐的窄巷,日光温温地、从容地照进屋内,窗子的一面是淡淡的绿叶香,另一面则是夏天...
用餐时光是一家人能够团聚在一起的美好时刻,它承载着生活的琐碎,也承载着真实的自我……
在餐厅空间的设计之中,乐大姐团队设计师化繁为简,以一组柜体+装饰画为主题,营造出轻松悠闲的就餐范围。

为了增加整个空间的南北通透性,将原餐厅与厨房之间墙体上两侧的老式柜体拆除,做了一个大大的落地移门,从而更有效地把光线引入室内。
厨房的烟火气不是一个人的锅碗瓢盆,面宽长达6米的厨房,整面墙都是窗户,不仅能容纳2~3人同时料理,采光还非常好,且即使没有吊柜,地柜的储物空间及操作台面也是足够用的。色彩的选择可以提升女主人对于做饭这件事情的乐趣和心情,根据业主的喜好选择了墙面浅色、地面深色,柜体是木纹,时尚大气,节奏清晰分明。
大女儿房/Eldest's Daughter's Room
大女儿房以原木色、白色为主,点缀几点粉色,打造轻熟少女的起居室。浅灰色绒布质感的软包靠背、抱枕、窗帘相互呼应,整体感非常强。
大女儿房的墙面做了刷白见新,但地板保留原有的不变。
根据孩子的需求和习惯为其定制了足够的收纳空间和学习区域。学习桌选择靠飘窗,同时利用两侧的空间安置书架,这样在有限的空间里可以让孩子有一个非常宽敞舒适的学习环境。对面靠墙位置用来收纳衣物和摆件展示,长大后可收纳更多的衣服鞋子和包包。
小女儿房/Little Daughter's Room



粉色代表着可爱、甜美、温柔和纯真,在小女儿房的规划中,床靠背、床头柜、床品、书桌等都运用了粉色,眼见的便是天真、童趣、美好,满满的都是父母对小女儿(年纪较小)的宠爱。
原有门套是老式偏红的,设计师将其改造成与整体风格相匹配的原木色系的,尽量靠近原有装修,但又让孩子能有一个完全不同的生活空间。



小女儿房在电视柜的位置设置了一个北欧风的书架,与阳台区域的书桌书架一起,不仅满足了学习与休闲功能,还释放了孩童的想象力,给予五彩斑斓的童年。
二楼主卧的卫生间,主要是业主夫妻二人使用的,采取地面深色砖+墙面浅色砖的铺贴方式,让整个空间层次分明,台盆柜的深浅搭配加深了这一印象。根据业主的需求,在靠墙处放置了一个独立浴缸,台盆柜及边上的高柜,满足了卫生间的日常收纳需求。- 因本案是老房子局部改造,所以乐大姐团队首先尽可能地不改变基础装修,能保留的就保留,能翻新的就翻新,实在不行再考虑拆除重做,其次通过在软装搭配上下功夫来改变整个空间面貌。
- 因要保留基础装修,所以整体格局也不需要做太大的改动。一楼朝南的两个卧室留给两个女儿住,考虑到孩子的年纪及以后的成长规划,在阳台/飘窗区域都设置了学习区;主卧则规划在二楼。
- 原始户型中本案共有三个阳台,考虑到时间长了老旧了以及风格的统一性,全部拆除重装,门套也换成了原木色。
- 将原厨房与餐厅之间的门及门两侧的老式柜体拆除,并扩大门的宽度,做了一个大大的落地移门,从而更有效地把光线从厨房长达6米的窗户处引入餐厅,增加了空间的通透性。
点击左下方“阅读原文”,即可在线免费看本案例全景图(360°)。