发布时间:2022-03-07
乐大姐
FM104.8《家在苏州--乐大姐说装修》栏目特邀嘉宾,
赫博别墅设计创始人之一;
多次受邀成为院校家居的授课讲师;
98年至今,
为万千家庭打造幸福家居同时,也相互成为了好朋友。
任何与装修有关的问题,欢迎您添加乐大姐微信:13382103377,
乐大姐会为您做一对一解答。

项目地点:太湖上景
项目面积:274.8㎡+50㎡(联排)
项目风格:法式
项目性质:全屋整装
项目状态:正在施工
本案位于吴中太湖度假区边上,业主买这套房子已经有七八年了,刚开始是准备用来投资的,所以一直闲置着,现在考虑到太湖边上环境越来越好,配套设施也逐渐齐全起来,再加上女业主非常喜欢小动物,家里有三只狗狗、一只猫咪,担心家里宠物影响到邻居(现住园区的一套平层),于是业主夫妻两决定把这套房好好装修一下以后养老用!
整套设计方案都是以女业主为主导(男业主完全尊重爱人的想法),女业主本身喜欢有情调的生活方式,跟乐大姐团队设计师沟通后最终选择了浪漫优雅的法式风。方案出来后,大大超越了女业主的期待,一见倾心!男业主一看老婆这么喜欢,也欣喜不已!
法式,一分一寸都是精致,那种骨子里的浪漫总能让人想到生活里的细碎温暖,比如,冰激凌很甜,鲜花很美,红酒杯摇曳生光,觥筹交错间仿佛是一场流动的盛宴。
考虑到空间户型足够宽敞,设计师打破传统客厅的布局,选用弧形沙发,采用围合式设计,更便于家人之间的情感交流。
为了让整体动线更加流畅,除了沙发选择弧形设计,还有各种茶几、地毯,包括椅子都存在一定的弧度,简约有品质的软装搭配,创造轻奢化的法式浪漫,非常有空间的艺术感。
色彩搭配上,摒弃了传统法式的繁复、冗杂,大部分设计以浅色为主色调,再用女业主钟爱的明度不高的莫兰迪色系进行点缀,使空间在和谐统一的基础上更具视觉层次感。
艺术是生活的再现、是情感的表现,一蔬一饭,亦是人们对生活饱含热情的表达。在餐厅的设计中,设计师以通透的美学洞察强化法式浪漫的空间意向,高级定制的餐具与桌椅、有着纵深视觉吸引力的墙面挂画、品味卓然的餐边柜、璀璨晶莹的灯饰,充盈了细节上的独到之处,细腻圆融的空间气质凝练于此。
男业主比较喜欢下厨,做一顿家人都爱吃的大餐,也是非常享受的一件事情。
旋转式楼梯,是本案最大的设计亮点之一。楼梯整体呈螺旋式上升,黑色金属材质的扶手和金色金属材质的栏杆贯穿别墅的各个楼层,踏步则根据各楼层空间地面材质的不同用黑色裂纹大理石或深色木质进行铺排,既变化又统一。
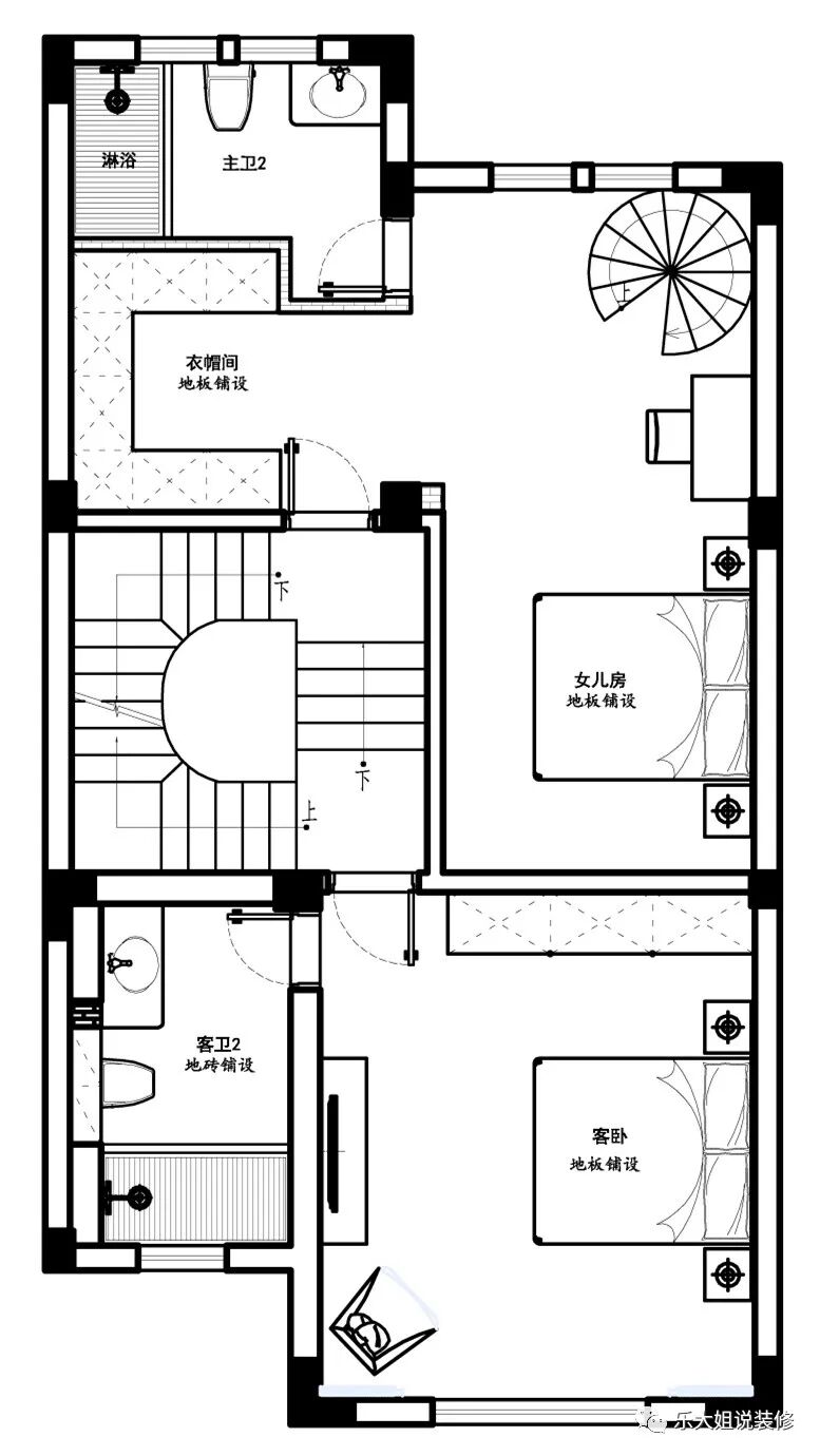
女儿房有一部分的层高达到6米多,所以做了一个内置楼梯,上面有一个小阁楼,借光的同时也丰富了女儿房的私密空间。
进入主卧,乐大姐团队设计师将优雅格调以质感温润的素色诉诸于人的知觉,墨绿、金褐、橙色复古点缀,营造诗意化的布局效果,用一种音乐艺术与空间设计共感、交响的呼应关系衬托出休憩空间的舒适氛围,提供一个新颖的审美视野,升华了生活意趣的体验深度。
保留原有的斜顶设计是主卧室的一大亮点,以充满艺术感的石膏线条做装饰,与背景相呼应,搭配无主灯设计,突出时尚、大方的气质氛围。
主卧卫生间整体采用偏现代的设计,地面深色,墙面浅色,也与整体的法式风格相符。镜柜跟通的做法,既增加了储物空间,又扩大整个卫生间的空间感。马桶采用挂墙式的墙排。
如果说地上空间是居住所需,那么,地下室则是生活的延展。
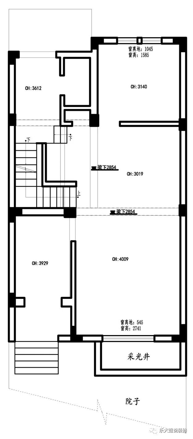
三层原始户型图
三层改造后户型图
原始户型中本案一楼客厅边上有个卧室,但因业主家中常住人口不多,所以将其与客厅打通,从而使得整个客餐厅的空间显得通透大气。
因本案是套联排别墅,对入户门厅的要求是大气上档次,而原户型中北入户门厅空间相对比较狭小,所以乐大姐团队设计师将一楼的卫生间规划为公卫(本案共有4个卫生间),只保留马桶与洗手台功能,这样一来就可以腾出部分空间给北入户门庭,从而扩大了入户门厅的使用面积。
由于原始户型中厨房餐厅空间有限,所以在餐厅靠墙的餐边柜上设置了一个小水槽,可以作为西厨使用。
二楼主要是卧室的功能区,南边做了客卧,父母偶尔会过来小住;北面整个空间打通做了女儿房,女儿房部分空间较高,里面做了内置旋转楼梯,阁楼上是读书区,整个空间功能丰富,层次分明。
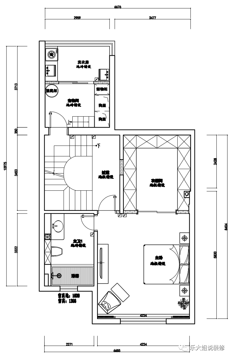
整个三楼是主人房,另外露台搭建起来做猫猫狗狗的地盘。原本主卧的门位于一上楼的位置,过道十分狭窄,现在通过空间改造,将狭长过道取消,与楼梯间融合,这样楼梯的空间更显大气宽阔。
点击左下方“阅读原文”,即可在线免费看本案例全景图(360°)。
https://vr.justeasy.cn/view/61618181093s04j5-1619759892.html
长按二维码添加乐大姐微信号
装修不烦 大姐来谈