
乐大姐
FM104.8《家在苏州--乐大姐说装修》栏目特邀嘉宾,
赫博别墅设计创始人之一;
多次受邀成为院校家居的授课讲师;
98年至今,
为万千家庭打造幸福家居同时,也相互成为了好朋友。
任何与装修有关的问题,欢迎您添加乐大姐微信:13382103377,
乐大姐会为您做一对一解答。

从一间房子变成一个“家”,
这过程需要付出很多的心血,
开工仪式还历历在目,
样板房拍摄已如期而至,
这不仅仅代表着一份成果,
更代表着
完成业主梦想中家的承诺,
有始有终才算圆满!
——by 乐大姐团队原创
满意度100%
本案是一套联排别墅,位于苏州吴中,业主邱先生之所以买这套房子除了地理位置合适以外,最主要还是想拥有一个真正符合自己心意的家,毕竟在过去短短的十多年里他有过五次的装修经历,但因各种各样的原因住着都很不舒服,最终只能重新买房,重新装修,十分折腾!在和乐大姐、苏州电视台《第一时间》拍摄老师等攀谈的过程中,业主邱先生跟乐大姐团队回忆起自己之前的五次买房装修经历,第一套是2000年左右装修的,自己的婚房,在里河新村,住了几年,觉得住得不舒服,就卖掉了;然后,在2006年左右买了第二套房——胥江府140㎡精装修的房子,住了几年也觉得不舒服,就把胥江府的房子也卖掉了,于2011年左右买了第三套房,招商小石城230㎡的毛坯大平层,装修好住了几年,又觉得不舒服,不得已又卖掉了招商小石城的房子,2012年左右买了太湖边上相王府的别墅,装得欧式风格,住了几年还是觉得不舒服!最终,卖掉了相王府的别墅,买了这套石湖湾的联排!这样平均下来,差不多4年就要换一次房,就要装一次修,不仅累,环境也不稳定!所以,业主邱先生跟乐大姐说:我们当时找乐大姐团队就是想把石湖湾的这套房子好好装装,装出自己想要的样子,这样以后就不用再搬家了,毕竟这么多年一家人搬家也都搬够了!然后,经过一年多的时间,你们交到我们手里的家,也确实实现了我们的这个愿望,我、我老婆还有我儿子都很满意,商量不准备再换了!拍摄当天,业主家边上的邻居还过来参观,说之前刚装修完她在外面看了看,觉得非常不错,很喜欢,就想过来参观一下,但是一直没碰到业主在家,今天赶巧了。自己家也正在装修,想各个空间都看看,借鉴借鉴,特别是选材和软装方面!业主跟邻居说,这次装修不论是装修过程还是结果,都很满意,特别是设计,和当初的效果图基本上是一致的,有些不一样的也是自己要求改变的。设计师左老师很不错,选材和软装那一块儿,她几乎是一点一点帮我们看,找到合适的就推给我们看,然后我们最终定下来。软装到现场后还过来帮我们摆,非常用心!据说,还有终身的后续维修保障,虽然现在还没感受到这个服务,但乐大姐团队毕竟是靠口碑生存的,所以对这一块还是很放心的!
▲ 乐大姐正在拍摄苏州电视台《第一时间》解析样板房装修知识点
▲ 业主邱先生设宴宴请乐大姐团队贺竣工之喜
白天乐大姐团队一起拍摄了石湖湾的样板房,晚上团队跟业主一起吃了竣工酒,我们跟业主各种畅聊,从业主第一次来乐大姐团队了解装修时相识到竣工交付,哪哪都是美好的回忆,业主反复强调这次装修的幸福感!
实景效果
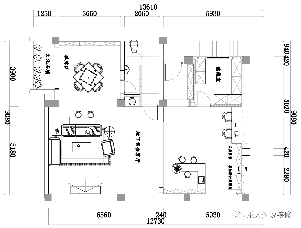
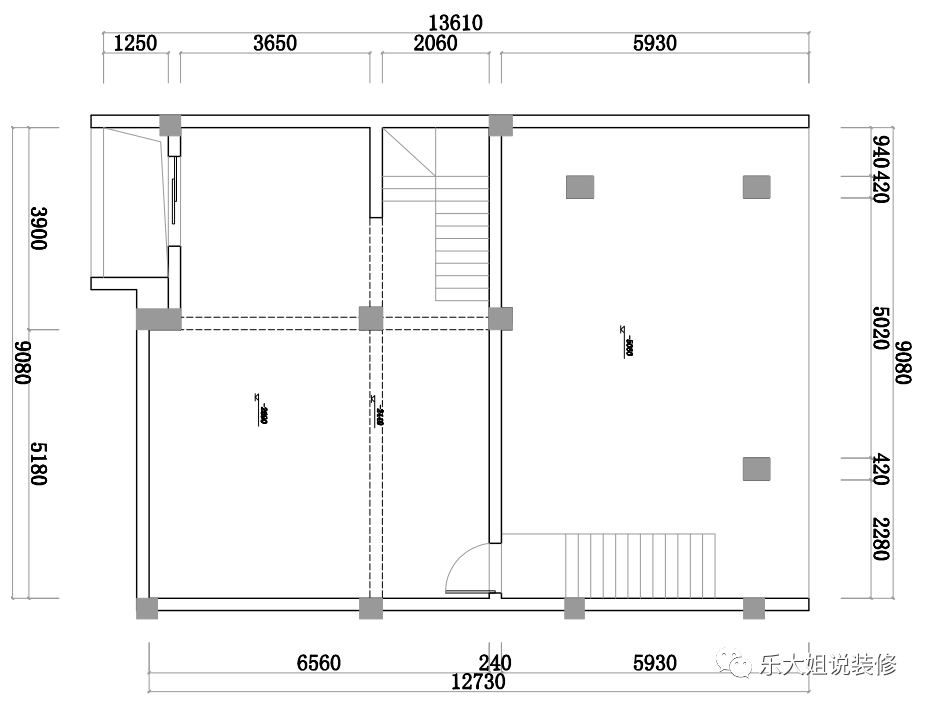
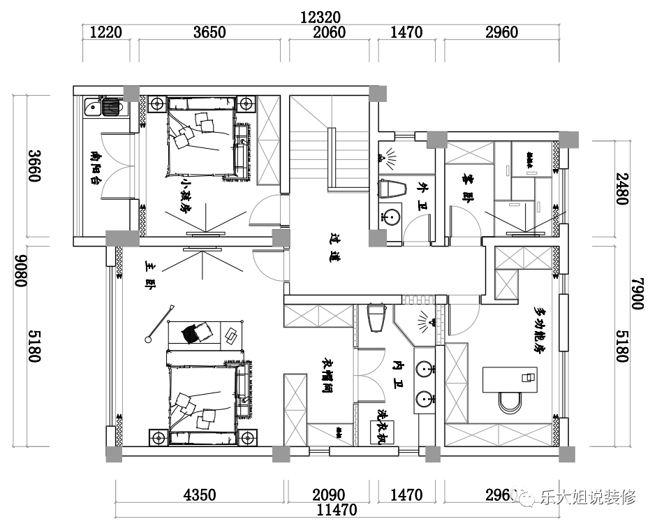
平面方案
设计全景图

点击左下方“阅读原文”,即可在线免费看本案例全景图(360°)。
再次感恩业主
对乐大姐团队的信赖与认可
您的新家落成
我们来见证幸福、兑现承诺。