
乐大姐
FM104.8《家在苏州--乐大姐说装修》栏目特邀嘉宾,
赫博别墅设计创始人之一;
多次受邀成为院校家居的授课讲师;
98年至今,
为万千家庭打造幸福家居同时,也相互成为了好朋友。
任何与装修有关的问题,欢迎您添加乐大姐微信:13382103377,
乐大姐会为您做一对一解答。
我们已经
为夏天准备就绪,
到处是
娇嫩和翠绿。
——托马斯·哈代
THE CUSTOMER DEMANDS
业主需求
设计如何平衡不同年龄层的需求?
本案业主买这套叠墅,前期是用来改善一家人居住环境的,后期则准备给大儿子做婚房用,所以在装修上希望不论是空间格局还是风格色调,既要考虑父母的喜好,也要加入年轻人的观点,需要在两者之间寻找平衡点。乐大姐团队设计师以优雅灰调为基础,融入不同的材质、肌理,为业主呈现出一个温馨、舒适与私人空间兼具的现代之家。
LIVING ROOM
客厅



每一处细致入微的设计都是为了让居住者感受到舒适的生活氛围。连通性的客厅、餐厅、书房、阳台、西厨,使得主空间更为宽敞。客厅以灰色调作为打底,褪去浮华的装饰,小面积的物件不同色系带起空间的节奏感。各种性格鲜明的线条、形状和肌理,充斥在空间的细节处,用简洁的视觉效果营造出时尚前卫的家居氛围,使得整体空间显得高雅、深邃、宁静、性感。电视背景墙依着一楼的两根结构柱而建,一整块的爵士白大理石加上有规律的黑色开放格,将整个共享空间分为客厅与书房,不仅功能分区十分分明,且两个空间之间光线也可以自由穿梭,通透大气,同时还留有适当的储物空间。
结构柱使用了浅色的木饰面包裹,搭配金属线性灯,简约不单调。


开放式阳台墙体内嵌灰色展示柜,与沙发背景相呼应,辅以柔和灯带,明暗对比突出,形成角落一景。顶面采用当下比较流行的线条灯处理,打造出见光不见灯的效果,神秘浪漫之中多了朗阔轩敞。DINING HALL
餐厅
原始结构中餐厅的开间小,进深长,加上客厅中的承重柱阻挡,采光面小,使得整个氛围很压抑,乐大姐团队设计师把墙体打开,将餐厅与西厨规划在同一开放空间内,令自然光畅行无阻,一扫围合空间的压抑、低沉,并于不动声色间,加强餐厅、客厅、书房之间的联动。
特别值得一提的是,木质餐桌与西厨岛台采用一体式设计,这样不单有效地利用了空间,为日常生活提供了便利,整体性也更强,更美观。
MASTER BEDROOM
主卧
有了独立衣帽间后,二楼主卧空间(儿子房)被充分解放出来,简洁大方的布局加上大面积的浅灰色调,营造出一个舒适静谧的睡眠空间。少量的挂画装饰让墙面不至于单调,黑色金属吊灯的加入则为空间增加一丝俏皮,房间更有温度。
窗前的懒人沙发,摆放得自由而随性,既可以满足休闲放松的需求,又不会占用太多地方,些许的绿植点缀,给生活加一点仪式感~SECONDARY BEDROOM
次卧
次卧延续纯灰用色,加入温润木质进行调和,空间的情绪更加柔软。银灰、墨绿等时髦元素装点其间,空间的包容力更强,充满鲜活感。
窗外之景,在窗帘的遮掩下,若隐若现,仿若一幅清浅的山水画,辅以轻柔的床品,疲惫的身心在这里治愈、安歇。
CHILDREN'S ROOM
儿童房

二楼的儿童房,是留给业主儿子未来小孩用的。墙面铺贴了蓝色的宇宙星空墙纸,再加上各式各样的装饰品,让儿童房从全房的沉稳气质中跳出来,还给小朋友一个有趣可爱的童年。BATHROOM
卫生间

卫生间每一个细节设计暗藏着设计巧思。台盆柜采用台下盆+下方挑空的设计,不易溅水,也没有卫生死角。淋浴区地面还设置了大理石拉槽,下水速度快,不存积水,有效保障卫生间的干透。
FLAT PLAN
平面方案

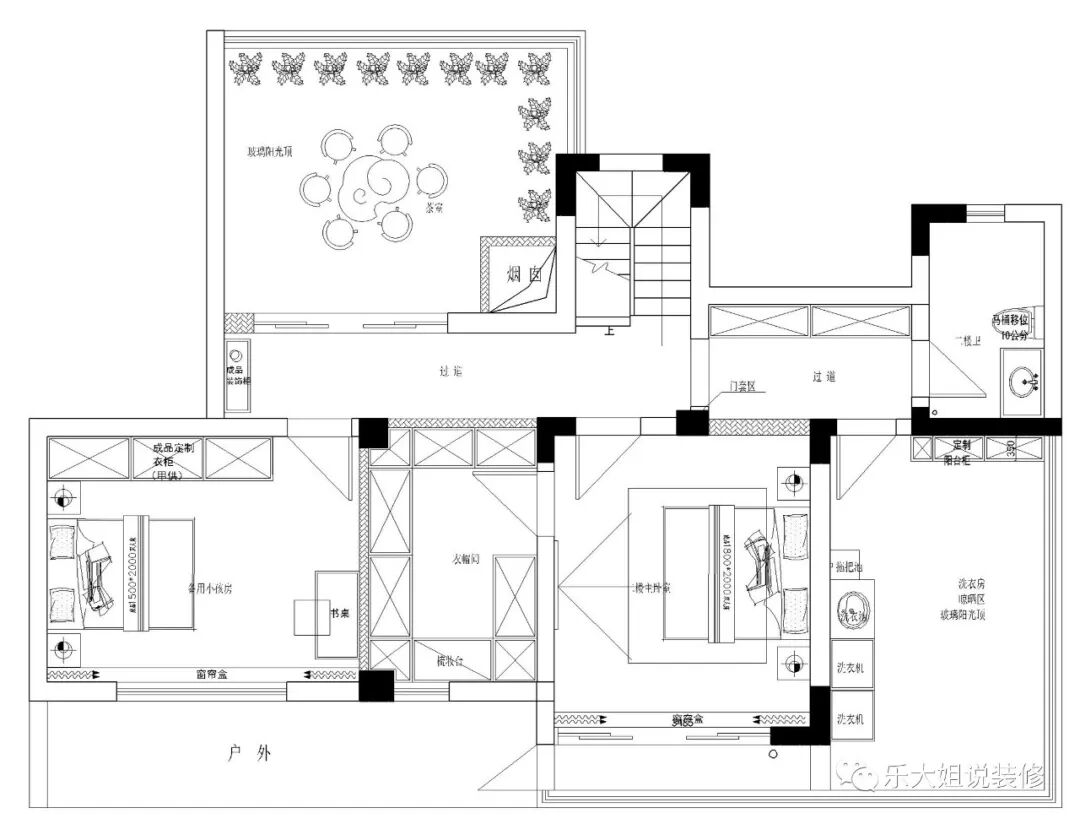
二楼改造后户型图
- 因本案入户门正对着客厅,为了阻挡视线,增加隐私性,在客厅与入户门之间设计了一个屏风+实墙的半镂空隔断,并结合墙面、地面、顶面打造出一个独立的门厅空间;
- 原始户型中客厅有两根结构柱是无法拆除的,所以乐大姐团队设计师把柱子和电视背景相结合,电视背景的北面则规划为开放式书房,这样不仅将结构柱隐藏起来了,还满足了空间功能上的划分;
- 为了加大客厅的空间感和舒适度,把客厅朝南阳台的墙体全部拆除,将阳台空间全部纳入客厅;
- 原始户型中餐厅是南北朝向的,厨房紧邻着餐厅,两者空间都比较狭长,根据业主的需求重新规划一楼朝北的功能空间,将北阳台改造为中厨,原厨房改造为餐厅+西厨,这样不仅增加了厨房餐厅的实用性,也使得整个客餐厅空间更加通透、舒适;
- 考虑到后期这套房子是给儿子作做婚房用的,所以把儿子房规划在二楼,并做成套房的设计,内置了一个衣帽间。
PANORAMA
全景图

点击左下方“阅读原文”,即可在线免费看本案例全景图(360°)。
https://vr.justeasy.cn/view/16v11801mp58a3f4-1619668589.html