发布时间:2022-03-07
乐大姐
FM104.8《家在苏州--乐大姐说装修》栏目特邀嘉宾,
赫博别墅设计创始人之一;
多次受邀成为院校家居的授课讲师;
98年至今,
为万千家庭打造幸福家居同时,也相互成为了好朋友。
任何与装修有关的问题,欢迎您添加乐大姐微信:13382103377,
乐大姐会为您做一对一解答。

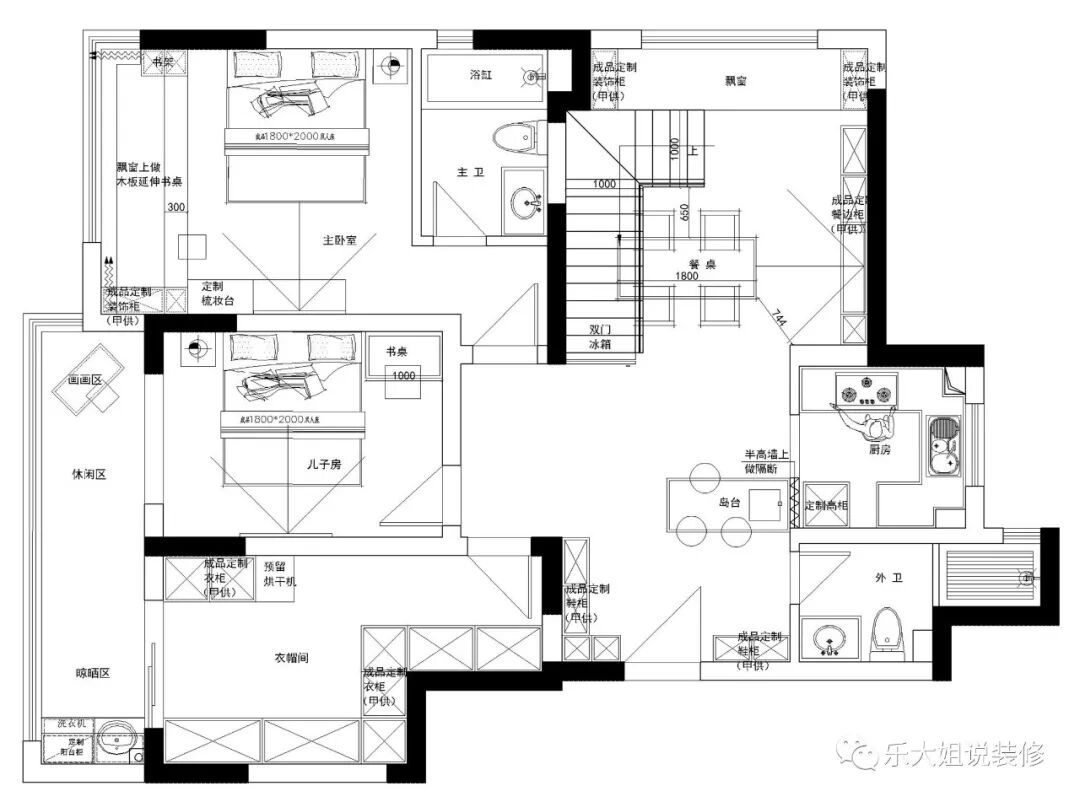
本案开发商精装修的基础是深色系的,而业主夫妻两喜欢的却是MUJI无印良品的色调、风格,考虑到这套房子以后要长久自住,最终选择了重新装修。
整体空间墙面都改造为大白墙,地板、门框、柜体等采用的是原木材质;为了让客厅与主卧的大飘窗融入整体空间,采用与房门一样的木饰面制作飘窗,形成一个回字型面。
餐厅处于整个房子的中心位置
是其余各空间交流互动的枢纽
乐大姐团队设计师在空间结构处理的时候
在厨房与玄关之间划分出了一部分区域做了一个岛台
为家庭成员构造了一个互动娱乐的空间
在这里
可以喝茶、品酒、聊天……
特别定制的餐边柜
已不单是个储物空间
更像是业主陈列“艺术品”的展示柜
起到餐厅背景的装饰美化功能
考虑到动线问题
造型温润柔和的原木色餐桌椅
靠着通往阁楼的楼梯放置
原木色编织吊灯的巧妙点缀
将阳光碾碎成细密的温柔
给空间注入柔和自然的日式风情
一层地面用原木色地板铺就而成
顶面用原木线条走边
让空间多了一份暖意
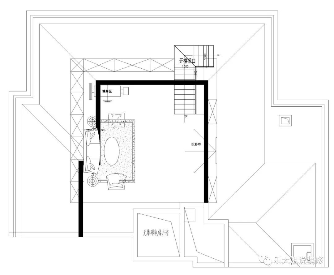
开发商现场交付的户型是平层
同时赠送了阁楼
不过人在阁楼上能自如行动的面积
只有30平左右
其他部分都是斜坡
只能做成储物空间
但对于业主来说
赠送的面积哪怕是一平也要利用起来
所以设计师在餐厅开了楼梯口
将客厅规划至阁楼
次卧保持与整体一致的风格
素白、原木色与亚麻色
让人身心放松
一楼原始户型图
一楼改造后户型图
阁楼原始户型图
阁楼改造后户型图
根据业主的需求,在厨房外一侧的空地设计了现在比较流行的吧台,不仅不影响整体的空间动线,同时还增加了西餐的使用率。
原精装房的厨房是正常的单开门,后期改造时把厨房的门拆掉,做成开放式的厨房,增加了与外界的社交与互动,并将厨房一侧的非承重墙体敲掉一半,做成镂空木质隔断,从而把厨房里的光线借到吧台,整个空间更通透明亮。
原始户型中主卧有一个很大的飘窗,但是出于对后期安全性和防止漏水的考虑,大理石飘窗是无法拆除的,所以乐大姐团队设计师在大理石台面上做一面面板,将其设计为书桌,边上再设计了几个书柜,从而实现了书房与卧室的相结合。
原始户型中次卧的阳台是有一个移门的,将其拆除,把阳台规划进房间里,打造成画室,两全其美。
点击左下方“阅读原文”,即可在线免费看本案例全景图(360°)。
https://vr.justeasy.cn/view/j2s1x6r0890031f9-1628781083.html
长按二维码添加乐大姐微信号
装修不烦 大姐来谈