发布时间:2022-03-08
乐大姐
FM104.8《家在苏州--乐大姐说装修》栏目特邀嘉宾,
赫博别墅设计创始人之一;
多次受邀成为院校家居的授课讲师;
98年至今,
为万千家庭打造幸福家居同时,也相互成为了好朋友。
任何与装修有关的问题,欢迎您添加乐大姐微信:13382103377,
乐大姐会为您做一对一解答。
项目地点:新希望锦麟府 项目面积:176㎡+18㎡ 项目风格:现代极简 项目性质:全屋整装 项目状态:正在施工 本案业主是一对80后创业小夫妻,有一个3岁的女儿,目前在浙江嘉兴做餐饮,创立了自己的品牌,接下来几年会陆续把生意转移到苏州来,买这套房子是因为业主十分喜欢这里的地理位置、小区环境以及户型。 客厅/Living Room
客厅、餐厅、厨房一体化的通透布局刚好适合极简风的设计,营造出极简空间的秩序感。顶面的无主灯设计、厨房和客餐厅之间的通透玻璃隔断,都让空间做了延展。
客厅整个空间不过多矫饰,以现代主义的高度理性,减少陈设的构成元素,色彩的冷静气质,于现代极简主义中流露出写意之美,简雅而素淡,搭配精致的家具、利落的线条,开阔的空间,为整个设计带来极致舒适的感觉。除了满足正常的生活需求以外,也将对艺术的审美展现得淋漓尽致。
当我们赞叹空间细节迸发出的美感,才更应该去关注由材质带来的细部美学,木饰面、皮革、绒布、玻璃、黑色金属线条等,丰富的空间材质,充满着艺术的层次感,诠释着极简的真谛。
餐厅/Dining Room
主卧/Master Bedroom
儿童房/Children's Room
卫生间/Toilet 榻榻米/Tatami
露台/Balcony
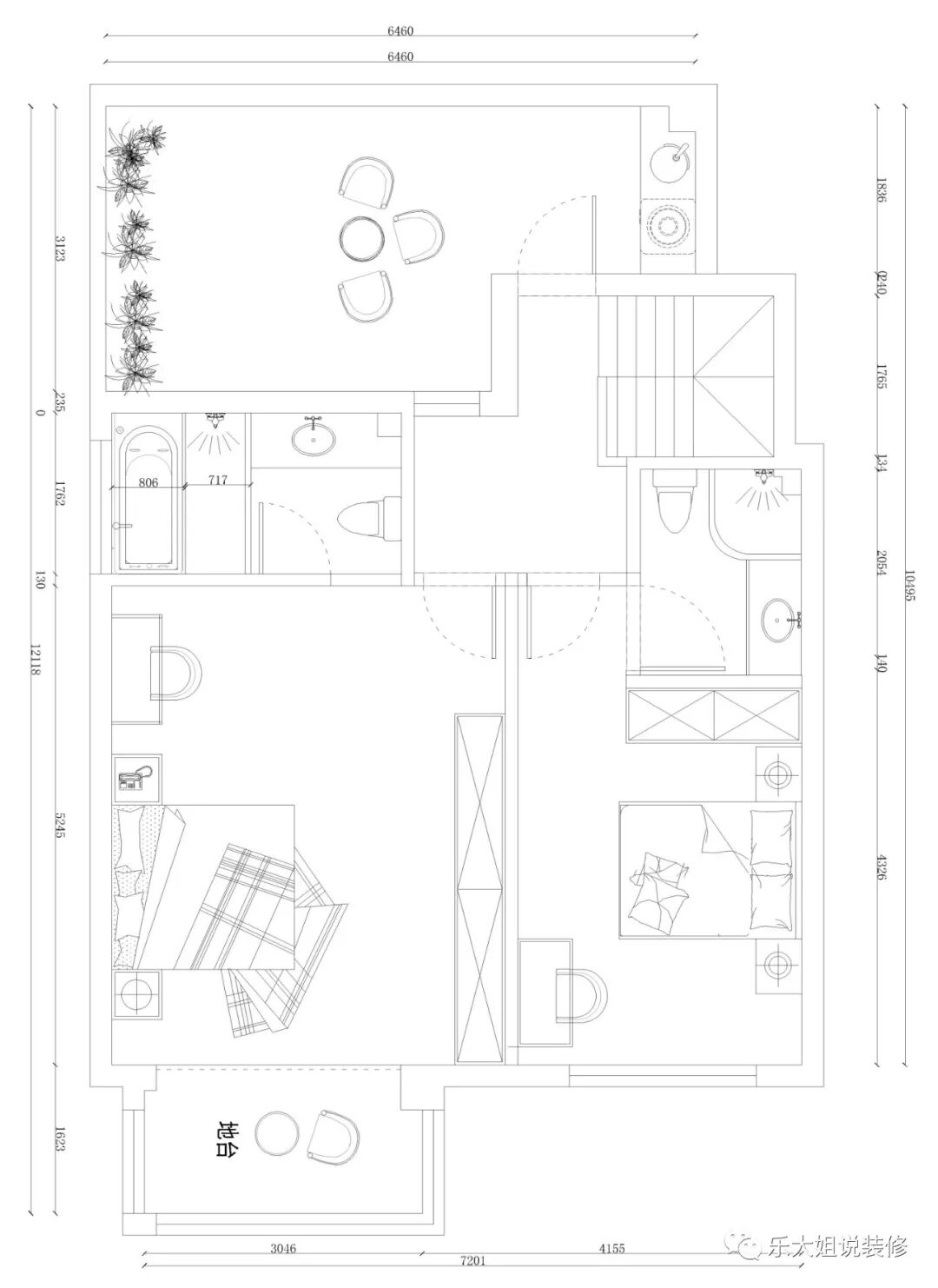
平面方案/Flat Plan
二楼改造后户型图
本案的原始结构比较合理,户型方正、南北通透,所以并没有做太大的改动;
乐大姐团队设计师打破原有空间格局,采用开放式厨房设计,将原厨房的墙体打掉,做L型玻璃移门,这样不仅让厨房与客餐厅相互融合,空间更加通透,还避免了后期油烟问题;
考虑到空间感和采光等因素,将楼梯墙体打掉,改用玻璃扶手,这样不仅将楼梯空间纳入客厅,增强了采光,还让楼梯成为设计的亮点之一;
将原始户型中的阳台打通至卧室,再采用地台抬高的设计,从而让其变成了独立的休闲区,增大了卧室的空间。
全景图/Panorama
点击左下方“阅读原文”,即可在线免费看本案例全景图(360°)。
https://vr.justeasy.cn/view/1pc6504z970m6m52-1609233645.html
对于设计的形式,
很难在市场上找到平衡。
有的迎合,有的扎根生活,
可贵的是,
乐大姐团队坚持选择了后者,
从而避免掉千篇一律的毫无烟火气的水泥空格子。
真正的设计,
是需要用心去探寻的,
它能从线条中找到生活的痕迹,
从布局上体现自由和个性!
有兴趣和需求的朋友们欢迎留言!
长按二维码添加乐大姐微信号
装修不烦 大姐来谈