
乐大姐
FM104.8《家在苏州--乐大姐说装修》栏目特邀嘉宾,
赫博别墅设计创始人之一;
多次受邀成为院校家居的授课讲师;
98年至今,
为万千家庭打造幸福家居同时,也相互成为了好朋友。
任何与装修有关的问题,欢迎您添加乐大姐微信:13382103377,
乐大姐会为您做一对一解答。
(PS:接下来,我们还会推出该小区上叠户型现代极简风的设计,让大家在对比中感受设计的魅力)项目地点:新希望锦麟府(吴江)
项目面积:180㎡+147㎡(下叠)
项目风格:美式轻奢
项目性质:全屋整装
项目状态:正在施工

本案业主是同里人,一直居住在同里的宅基地自建房,买锦麟府这套房子是准备装好一家四口住,将来则留给大女儿。业主有两个女儿,大女儿现在正在上初中,还有一个小女儿,正在上小学。这套房子业主一家想换一种与同里古镇不同的风格,跟乐大姐团队设计师沟通后,最终选择了将上层设计为美式轻奢的风格,地下室为现代轻奢,这样既沉稳又不失时尚靓丽,满足不同功能的视觉享受。
美式是自由的、惬意的、奢华的,轻奢是简约的、精致的、讲究细节的。乐大姐团队设计师以雅奢为设计核心,塑造空间专有调性与视觉气质。起承转合中,关于“家”与“爱”的生活场景铺展开来。客厅区域美式黑色皮质沙发搭配石材背景墙、石材茶几,柔软与硬朗的碰撞,在温馨的灯光氛围下令人感到温馨与舒适。蓝色布艺沙发作为亮色点缀,很好地调节了整个空间的色调,不沉闷,也不扎眼。各色花纹抱枕为空间增添一些时尚的气息。
两扇通透的大玻璃窗,将阳光引入室内,实现与环境完美融合,光、线、空间序列感交错,简约线条配合软装陈设,细腻细部介入空间,超大化挖掘相邻域的渗透与交互,成为空间共同语汇,亦与周围绿意盎然环境进行一场生态的对话。
木质餐桌在沙发的后方放置,顶面的灯具,皮质的餐椅,金属露边的餐具,为空间带来轻奢的视觉冲击感,净雅的质感完美呈现。安静伫立于一方的定制美式玻璃储物柜,除了收纳,还将西厨容纳其中,这样不仅给中厨腾出空间,且西厨离餐桌更近,使用方便。



主卧整体理念是优雅&尊贵,设计上更重视的是实用与舒适,以浅灰为主色调,保留了古典的高贵气质,简单线条与几何图形又给人一种精巧感。
在软装上,设计师更多地用少许金属以及温馨布艺装点,烘托出简约而典雅的卧室氛围。
主卧的内卫墙角,由直角改为斜面,既避免阳角的碰撞,又让进门的空间变得开阔。



次卧,米色、灰色相拼的硬包背景嵌入金属条,在灯光下有着柔和的光晕,仿佛凉凉的月色,华美而清浅,莫兰迪蓝的床品,温柔又俏丽,诉说着女孩房。



主卫双人洗漱池是业主非常喜欢的设计,没有采用传统的瓷砖拼贴,而是运用光泽细腻的两色大砖覆盖整个卫浴,白色陶瓷点缀其中,雅奢质感油然而生。
书房是独处的场所,需得沉下心来。简约的木色书桌和美式绒布靠背椅巧妙融合,打造出一个适合阅读的空间,内部格局合理的灰蓝色书柜将主人家的藏品尽收“腹内”,近看方便存取,远看美观大方。
地下室保留了原户型的挑空优势,负一层用来储藏和休闲,负二层挑高区则用来做健身区、酒吧区、观影区……,集多项功能为一体,大气开阔。且风格为现代轻奢,换一种感觉,更符合年轻人的审美,轻松舒适。
为了让地下室的每个功能区划分得更加明显,除了以地面的拼花、顶面的石膏线条/角花从立面结构上来区分,在墙面设计上,乐大姐团队设计师还非常大胆地采用了四种不同的设计元素来呈现出不一样的美感。采光井处墙面设计使用了文化砖,斑驳的粗犷感搭配从室外引入的阳光,为空间注入了一种旧时光的随意慵懒;文化墙对面的背景墙采用了飘窗式的卡座设计,结合美式田园风情壁纸的运用,不仅让整个空间更为柔和,浪漫慵懒,还增加了储物空间,在亲戚朋友多的情况下,可以容纳更多孩童,体验不同的乐趣。茶区背景和电视背景虽然墙面材质相同,都是整面的护墙板,气势十足,但是茶区背景将美式的吊顶造型用到了墙面设计上,在视觉上制造景深效果,让空间显得更为深邃。

负二层改造户型图

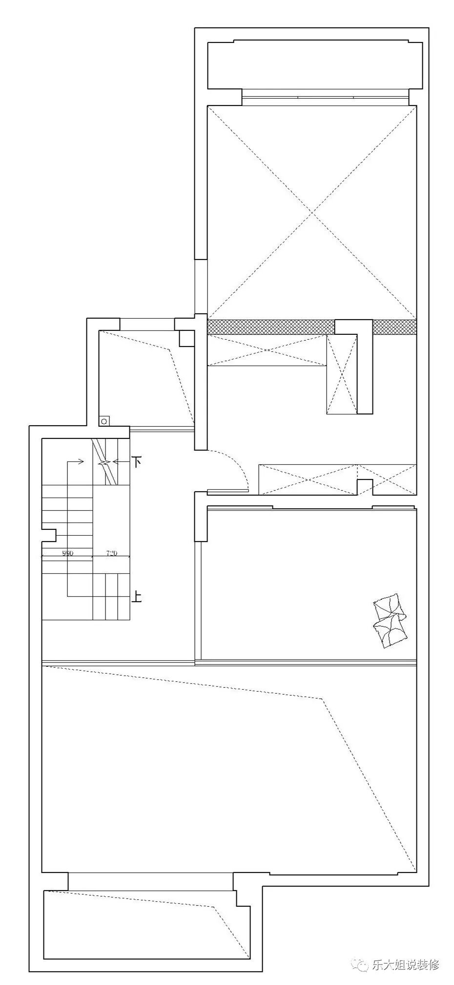
负二层原始后户型图

负一层原始户型图

负一层改造后户型图

一层原始户型图

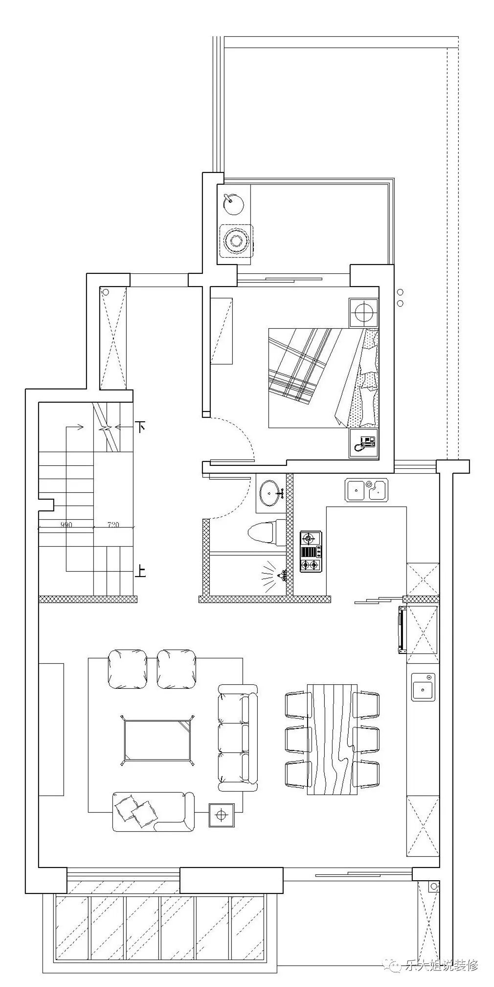
一层改造后户型图

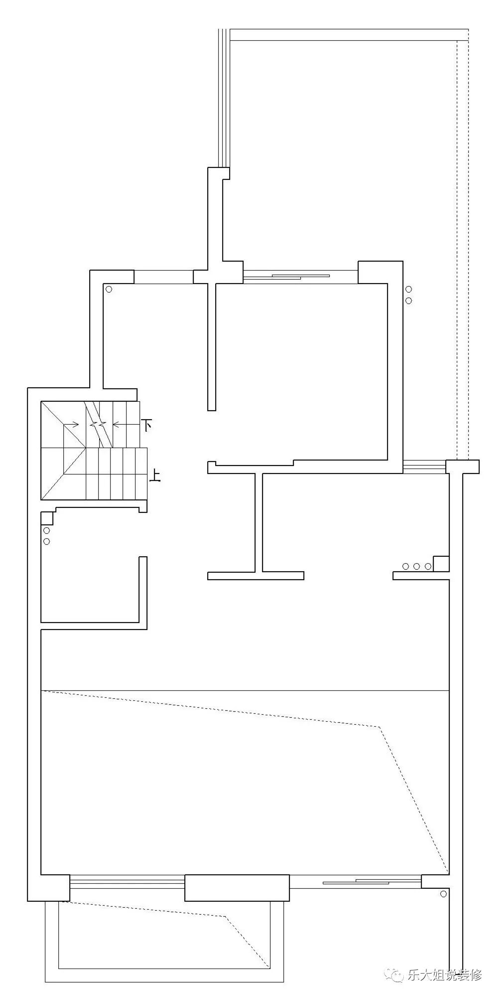
二层原始户型图
- 此案是一家四口常住居所,房屋结构为下叠,地下室带挑高空间,部分空间可搭建成两层,是设计的重点,不仅充分规划实用功能,还需美观享受;地上两层,下层为客厅餐厅、厨房、卫生间、老人房,上层为主卧套房和两个女儿房。
- 为了增添厨房的功能性,乐大姐团队设计师在餐厅的位置设计了西厨,西厨与酒柜合为一体,不仅实用,且美观。
- 为了与整个房子的体量更匹配,楼梯也做了扩建,改造后不仅大气美观,且宽敞的空间让行走更宽敞。
- 二楼主卧,把阳台外扩进房间,增加空间的延展性,舒适又敞亮。
点击左下方“阅读原文”,即可在线免费看本案例全景图(360°)。
对于设计的形式,
很难在市场上找到平衡。
有的迎合,有的扎根生活,
可贵的是,
乐大姐团队坚持选择了后者,
从而避免掉千篇一律的毫无烟火气的水泥空格子。
真正的设计,
是需要用心去探寻的,
它能从线条中找到生活的痕迹,
从布局上体现自由和个性!
让我们一起期待【新希望锦麟】上叠现代极简风的设计
有兴趣和需求的朋友们欢迎留言!