
乐大姐
FM104.8《家在苏州--乐大姐说装修》栏目特邀嘉宾,
赫博别墅设计创始人之一;
多次受邀成为院校家居的授课讲师;
98年至今,
为万千家庭打造幸福家居同时,也相互成为了好朋友。
任何与装修有关的问题,欢迎您添加乐大姐微信:13382103377,
乐大姐会为您做一对一解答。
乐大姐一直说
“设计没有最好与最坏,适合自己的才是最好的”,
那么,
今天,给大家分享
同一小区【吴江新希望锦麟府】的3套叠墅设计,
只因业主的需求差异,设计的定位不同,
最终设计方案千差万别!
不仅,不同的户型不同的家,
同一户型,我们呈现的也是完全不同风格的家!
(PS:其中,两套是下叠,结构完全一样,分别是现代轻奢和美式轻奢,另一套是上叠,现代极简风。)
本案业主夫妻两口子是大学同学,在北京读大学时相识相知相爱的,女业主是内蒙古人,为了爱情来到了苏州,现在两人的儿子已经10岁了,目前一家三口跟公婆住在吴江乡下的自建房里,各方面都不太方便,女业主也很想把父母从内蒙古接过来住住,毕竟离父母太远,心里牵挂得很!
设计方面,男业主非常在意老婆的感受,所以私下找乐大姐团队设计师好几次,特意交代地下室一定要做一个影音室,有一个可以唱歌的地方,老婆喜欢唱歌,希望在设计上给老婆满满的幸福感!



本案定义为现代轻奢风,乐大姐团队设计师将材料、色彩、灯光及元素进行简化,以实用的功能性家具为主,用简洁的视觉效果营造出时尚前卫的家居氛围,用优雅低调最受青睐的高级灰把持全局,使得整体空间显得高雅、深邃、宁静、性感。家具注重形体比例与物料搭配,为简洁细致的硬装氛围注入不同层次的触感。中性而又低奢的黄铜拉丝材质一直伴随着主旋律而存在,大面积的高级灰会稍显缺乏生活气息,所以在不同的空间加入了不同的亮色来点缀,在拉开空间层次感的同时赋予了每个空间不同的灵魂。


电视背景墙采用整面大理石、真火壁炉和原木色木饰面的相拼,营造出一种克制的现代奢华感,用线条勾勒出一个干净简单的画面。靠窗户一侧的木质格栅线条,满足功能同时丰富了空间的层次感。大尺寸落地窗无限放大景观界面,光景被最大化地保留于空间之中。纱帘掩映,简单纯粹之余又塑造朦胧开阔的画面。客厅、餐厅、厨房采用一体化开放式布局,气氛利落贯通,视线一览无遗。融合的同时依然保持功能分区的独立,清晰流畅的线条层次营造了流动性的空间氛围。厨房黑框玻璃移门最大化地引入自然光的同时,有效改善后期油烟问题。


厨房是一个家的核心,通过高级灰和质感白的色彩构成来渲染氛围,描摹了城市精英阶层向往的休闲生活场景。大理石、岩板、金属、玻璃,诠释出空间的精致质感。



开放式用餐空间,舒张通透,宁静的餐边柜配色跳跃零星灯光,以点与线的层次递进,点缀与家人围桌而食的美好记忆。现代都市干练简洁的浅奢气息,居家烟火气的温馨写意,在此空间徐徐弥漫。




二楼主卧内不同质感材质混搭刻画延展出不同情调的空间视觉,不刻意,不夸张,舒适自在,令人不自觉的释放出真实自我。背景墙柔软的肌理线条内嵌的灯带发出柔软微妙的灯光,为空间增添细腻灵动的情调。



纱帘将视觉空间延伸至朦胧的室外,一天中的光线随日月更迭产生微妙的变化,交汇出动静相间,富有活力的定格画面。

花白大理石墙面、盥洗台和灰色地砖的简单搭配让卫生间显得干净清爽,通透明亮,雅致有趣。贴心的分离式设计,卫生间淋浴、坐便独立分离,非常实用便捷。

素雅之中不乏细腻的生活笔触,瓶艺杯盏,俯拾即是,温馨生动。




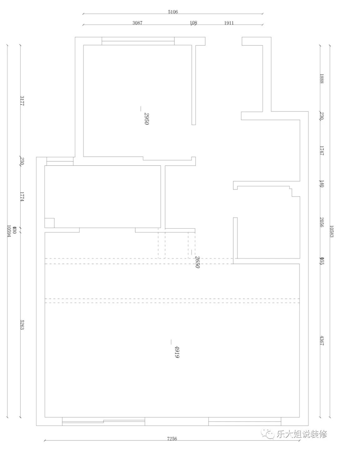
327㎡的房屋,地下室竟占了147㎡,适宜居住的空间变得有些局促,当设计师第一次看到这房子,地下室就像是个冰冷的仓库,空间初看被墙壁分割的零零碎碎,动线也非常混乱,丝毫感觉不到大House的气度。首先把所有不必要的墙全部拆除,对空间进行重组。空间的布局讲究主次节奏感,最好的环境给最重要的空间,其次再考虑各个空间之间的互动关系,这样能让居住者之间更加和谐。改造后,这里是一个娱乐集合站,聚会、水吧、影音、书房、休闲区,满足家人不同的爱好和需求,更是亲友聚会的理想场地。

负一层挑高的空间让地下室通透感十足,不同以往地下室低矮的压抑感,通透玻璃的栏杆、时尚摩登的玩偶、竹编的椅子,高达5米多的爵士白大理石和背景柜,搭配空中几何造型的主灯和星星点点的辅光源,整个空间充满了奇幻趣味感。
正如合院别墅强调的室内生活空间跟室外空间统一的一样,设计师沿用该想法,外景内做,在采光最好的天井位置布置了一个休闲区,巧妙地把自然环境融入室内,用现代的表现手法诠释家庭生活之美。
影音室在设计师的巧妙布置下,仿佛是置身星辰大海下五彩斑斓的梦境,灯光和材质完美呈现各自的魅力,从细节到氛围充分展现给业主一个理想的体验空间。将原本天井与影音室之间的玻璃移门拆除,让室外的阳光、风景肆无忌惮地进入到室内,在这里,可以静享生活的闲暇时光,安然自得。
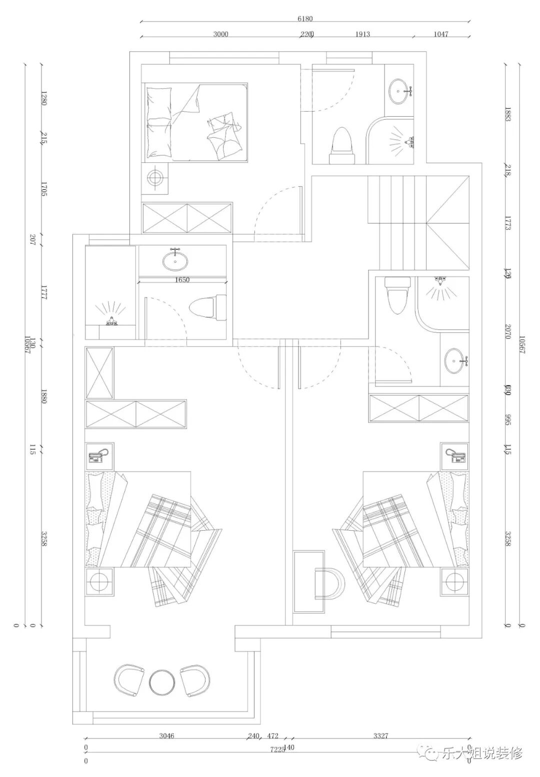
- 本案的原始结构比较合理,户型方正、南北通透,所以并没有做太大的改动;
- 考虑到空间感和采光等因素,乐大姐团队设计师打破原有空间格局,采用开放式厨房设计,将原厨房的墙体打掉,做L型玻璃移门,这样不仅让厨房与客餐厅相互融合,空间更加通透,还避免了后期油烟问题;
- 考虑到居住的舒适性,地下室并没有完全采取传统现浇两层的格局,会客厅整体采用挑空设计,十分大气。
点击左下方“阅读原文”,即可在线免费看本案例全景图(360°)。
对于设计的形式,
很难在市场上找到平衡。
有的迎合,有的扎根生活,
可贵的是,
乐大姐团队坚持选择了后者,
从而避免掉千篇一律的毫无烟火气的水泥空格子。
真正的设计,
是需要用心去探寻的,
它能从线条中找到生活的痕迹,
从布局上体现自由和个性!
让我们一起期待【新希望锦麟府】其他的两套案例
有兴趣和需求的朋友们欢迎留言!