发布时间:2022-03-08
乐大姐
FM104.8《家在苏州--乐大姐说装修》栏目特邀嘉宾,
赫博别墅设计创始人之一;
多次受邀成为院校家居的授课讲师;
98年至今,
为万千家庭打造幸福家居同时,也相互成为了好朋友。
任何与装修有关的问题,欢迎您添加乐大姐微信:13382103377,
乐大姐会为您做一对一解答。
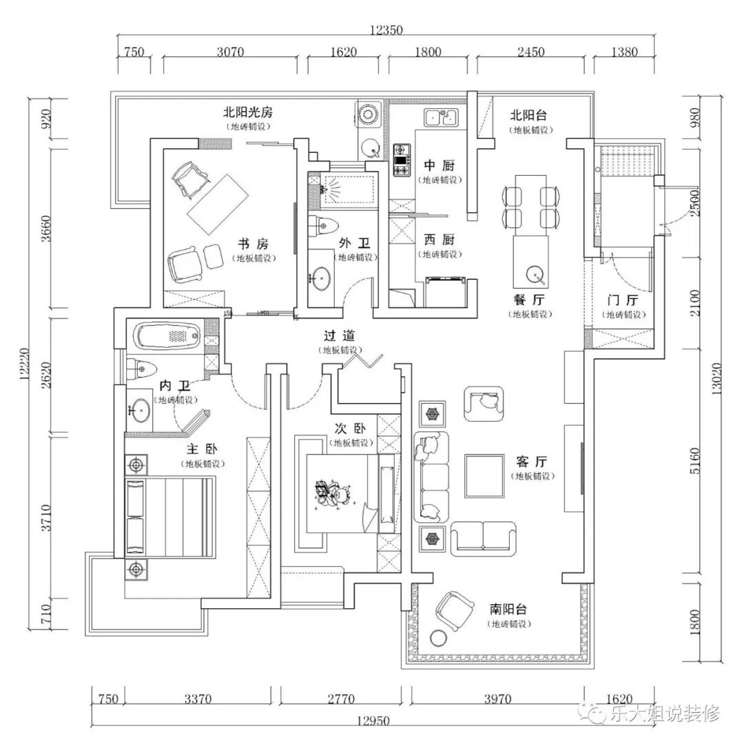
人和人之间舒服的关系,是可以一直不说话,也可以随时说话。 ——张嘉佳 本案是套改善型住房,业主目前也是住在白塘壹号这个小区内,目前所住面积为100平以内,计划新房装好以后目前所住的房子就给父母住,方便以后互相照顾。 另外,本案还是套二手房,但因业主夫妻两都是对于生活品质有追求,对设计有向往的人,喜欢听黑胶唱片,喜欢比较小众的复古美式风格,拿房后业主觉得现场跟自己对生活的品质要求相差甚远,最终决定拆除重装! 二手房改造前后对比 客厅空间的设计,通过块面和线条有规律的穿梭、交替、重复,使其更具包容性。而电视背景墙与沙发背景墙的设计手法,在对称与不对称之间切换、呼应,也让空间有了层次的变化。 占据整体居所视觉重心的,是大胆用色的沙发背景墙,暗色调的绿色给人一种经典而不廉价的复古感,大色块的运用无疑跳脱出了安全的色彩范围,用深色去赋予视觉冲击,外加金属吊灯和绿植的点缀,为整个空间带来生机活力。 鱼骨拼木地板,以丰富而细腻的木纹理,错落有致的图形细节,赋予整个空间更强烈的立体感。几何图形设计的地毯铺设其中,加以金色勾勒的家具与灯饰,让整个空间更显精致。 白色百叶窗让客厅在色彩上变得更加舒缓,同时也可以适度调节户外采光,让光感更显柔和舒适。 一个真正舒适的客厅,需要有几个可以坐下来的安静角落,承载一家人的共同记忆的同时也可以平衡每个成员的需求。 主卧整体用色偏灰调,咖色格纹床头背景、灰色的墙纸与白色的柜体、吊顶,明暗对比呼应着音符的节奏,跳动着优雅的曲调,让舒适与宁静围绕整个睡眠空间。同时,用绿、黄、金、紫等饱和度高的色调加以点缀,增添了空间的灵动趣味。 L形的大飘窗,让阳光透过百叶帘充沛地照进屋内,回味过往一段段美好的画面,感受流年烟火、人间幸福。 主卧内卫的阳角特别凸出,不仅使过道空间狭窄,还给人一种不舒服的尖锐感,所以乐大姐团队设计师将其改为斜面处理,且在斜面上开装饰窗,百叶帘的运用也是美式必不可少的风格元素。 卫浴大面积使用灰色墙地砖,白色的洗漱台搭配雾霾蓝的柜体、两面百叶窗,在灯光作用下透出美式的优雅气质。 卫生间淋浴房或者浴缸区做壁龛并不特别,但是在整个墙面做壁龛的并不多见,本案主卧内卫就是这样的设计。且壁龛内还安装了灯带,既美观又实用。 平面方案/Flat Plan 改造后户型图 此套户型的利用率特别高,整个北面都是可用的阳台区域,根据空间需要,乐大姐团队设计师将北阳台往餐厅和厨房分别都规划了一部分;厨房空间足够大,采取中西厨分开的设计;餐厅也有足够的空间,安置一个岛台进去,这样多功能的布局不论是做饭还是用餐都特别舒适。 南阳台的移门拿掉,和客厅区域结合,不仅使客厅空间变得宽敞,还有专门的休闲空间,特别惬意。 北阳台为工作阳台,进出要通过敞开的书房,为了通透和主动线的便捷,故把双移门设计在一个方向上。 因主卧内卫墙角比较尖锐,将其切割,去除尖锐化,从而使进门变宽敞,且墙面加装饰窗,与卧室空间增添互动,也显通透。 全景图/Panorama
长按二维码添加乐大姐微信号
装修不烦 大姐来谈