
乐大姐
FM104.8《家在苏州--乐大姐说装修》栏目特邀嘉宾,
赫博别墅设计创始人之一;
多次受邀成为院校家居的授课讲师;
98年至今,
为万千家庭打造幸福家居同时,也相互成为了好朋友。
任何与装修有关的问题,欢迎您添加乐大姐微信:13382103377,
乐大姐会为您做一对一解答。
一个人能观察落叶,羞花,从细微处欣赏一切,生活就不能把他怎么样。
——毛姆
项目名称:相城东原千浔(下叠)
项目面积:174.9㎡+69㎡
项目风格:现代简约
项目性质:全屋整装
项目状态:正在施工
本案是套改善型住宅,计划长期居住,所以对于装修的品质要求特别高,空调、地暖、新风等设备都要求配备齐全。因男业主平时工作比较忙,两个女儿大的在上大学,小的年纪还在上小学,所以这次的装修是女业主负责。拿房后,女业主并没有马上装修,而是看看同小区别人家的装修情况,取长补短。
风格上,业主选定的是现代轻奢,但是要求不要过于华丽,要有内涵,空间要开阔明亮,基于这一需求,乐大姐团队设计师将空间打通,能做开放式的就做开放式的设计,能用通透材料的地方就用通透材料,同时色调上以中性的灰色、白色为底色,以橙色、黑色为点缀。

由于现代社会快节奏、高频率以及满负荷的生活节奏,业主想要一个简约型的空间来得到一个心灵的放松。走进玄关,深长的过道中,几何纹抛光砖地面搭配冷酷的木饰面营造了一种艺术画廊的体感,让人忍不住前往一探究竟。

整体空间以直线线条,白色、灰色、黑色建筑体块,交扣组成,60%的灰色面铺满整个空间,运用不同材质,呈现不同光度的灰,37%的白色和黑色打底与白色互称对比,余下3%用温暖灵动的橙色作点缀,将客厅的简单优雅展现得淋漓尽致。
米色系的皮质沙发,格子纹的地毯,金属走边的线条,留白的吊顶搭配灰色的地砖,阳光透过白色纱窗,一切都笼罩在温暖之下,静谧、悠然,亦如生活的格调,舒张有度、淡然从容。
电视墙采用大理石作为背景,嵌入式电视机与墙面融为一体,设计精致大方;运用悬空的台面代替电视柜,看起来更轻盈简约,丰富了空间的层次感,同时又具备电视柜的收纳功能。墙上设置一整列的内嵌柜子,有开有合,增加了视觉审美效果,而不同的尺寸与功能规划也增加了柜子的实用性。客厅、餐厅、厨房三者的布局,流畅灵活,采用“盒子”划分空间——以两处玻璃移门的开合形成独立组合和邻接组合的空间。关上门,这里是充满日常烟火的地方,可为家人准备美食;将门打开,它就变成了客厅、餐厅的延续,增加了家人之间交流互动的美好生活氛围。多处落地透景窗设计,充分将阳光、绿植引入到室内,延展着室内的视线,实现居住空间与自然空间的互通共融。


客餐厅之间开放式的设计格局,连通一体的空间格调一致,显得更加宽敞舒适,使家人之间的沟通更加顺畅。搭配大理石长条形餐桌和现代奢华感的餐边柜,增加视觉重心,气质鲜明优雅。
卧室的调性与整体空间,保持高度的一致性,依然采用大块面的设计,灰咖和米白的交错给人如云般温柔的错觉,金属线条是简约中带着的轻奢的小插曲,让整个空间显得宁谧柔和。
沿边飘窗的设计,既美观又实用。
阳光穿过主卧的窗户,进入衣帽间的夹丝玻璃,让明亮自然挥洒。
大面积的亮白色使主卧卫生间看起来宽敞通透、整洁又清爽;用玻璃移门做了干湿分离的处理,实用却不影响采光;洗手盆采用台下盆的设计,不易溅水,方便清洁;黑色细边框的镜子,黑色实木的储物柜,简约精致。
女儿房用淡粉色和灰色,打造出了更加轻快活泼的氛围;星星造型的贴纸、月亮造型的床头灯和花枝造型的吊顶,形成的画面简单却饱满,给人一种梦幻的感觉。在卧室与衣帽间之间增加了书桌,美观实用。

步入地下室,圆形吊顶的结构尽显开阔与层次,这里也是能为每位家庭成员制造快乐记忆的场所。材质上冷暖结合、刚柔并济,视觉上纵横有序、流动自如。嵌入式酒柜在隐形灯带的衬托下愈发精致,畅谈相聚、品酒作乐的喜悦随之氤氲开来。环抱式休闲组合沙发,搭配投影幕布,周末约上三五好友,在家中便可享受影院版的观影感受,生活增添了许多幸福感。
采光井为地下室引入充足的光线,形成“户内”与“户外”的差别。在这里,时光仿佛在不知不觉中慢下来,形成有内蕴的当代生活氛围,让我们品味与咀嚼,余味丰韵。
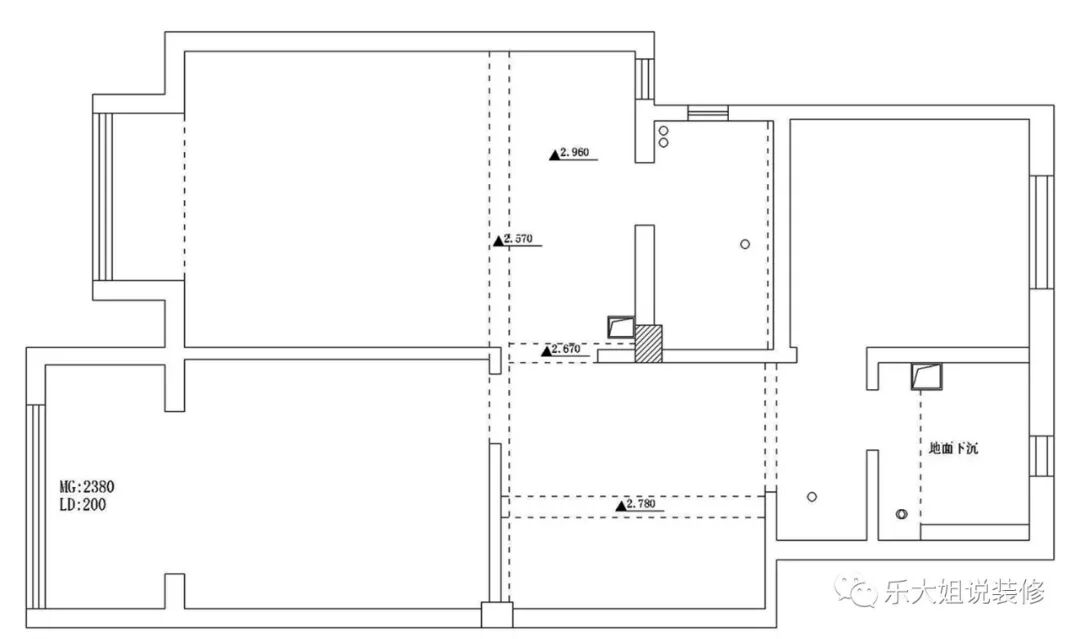
地下室原始户型图

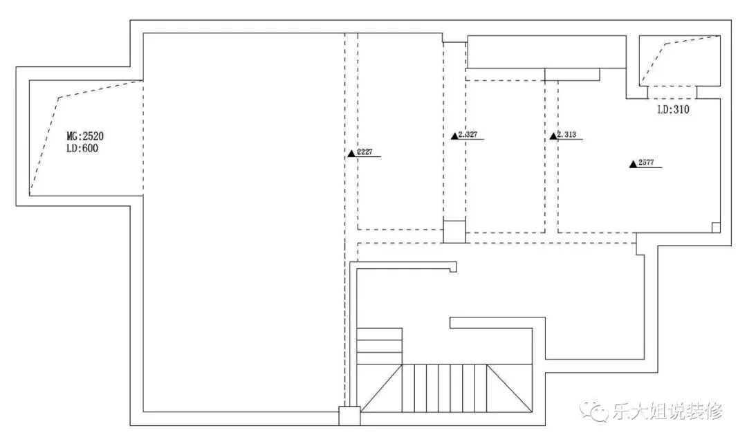
地下室改造后户型图

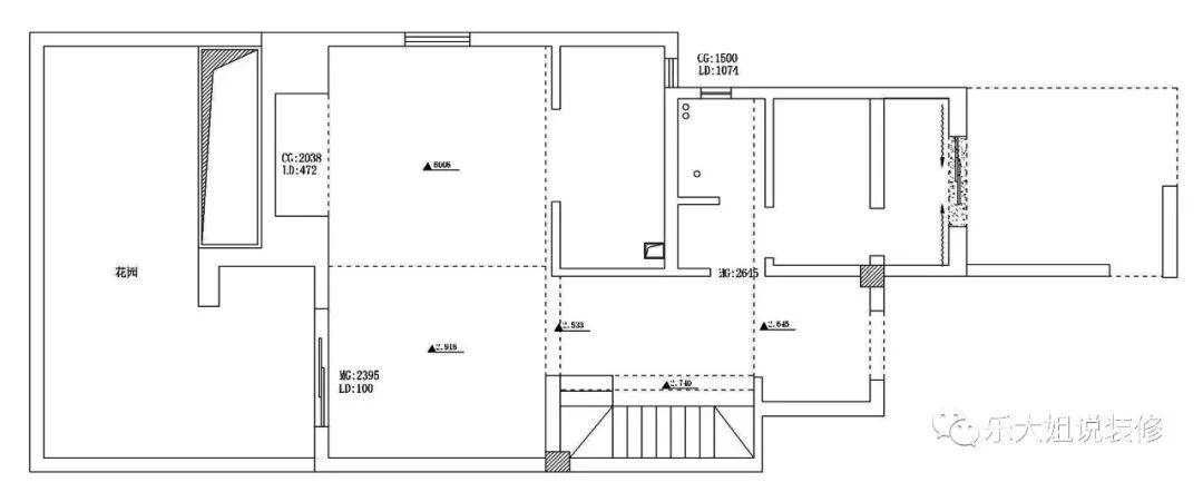
一楼原始户型图

- 本案地上两层,面积174.9平方,地下室为69平方,共有四个房间,四个卫生间(含地下室内),南北各有院子,南院子为观赏,北院用来洗衣晾晒;因家中常住的人口比较多,所以业主要求房间一定要合理且舒适,另外储物的空间一定要多,满足一大家子的居住需求;
- 地下一层结构改动主要是开阔空间的合理规划,乐大姐团队设计师把非承重墙全部拆除,楼梯拆除重新搭建,楼梯拆除后多余的空间做成卫生间;因南侧空间相对更开阔,做成开放式的娱乐室,北侧空间则做成开放式储物间,放置钢琴,书桌等;
- 一层设计方案主要是对南侧客厅区域进行扩建,增加客厅区域的宽度,让客厅显得更宽敞,而地下室的采光井依旧保留;厨房区域的墙体全部拆除做成玻璃移门,在平时不做饭的时候就可以打开移门扩大空间感,同时厨房内吧台也可以内外公用;楼梯拆除进行重建,减少楼梯占有的空间,用楼梯节省下来的空间做成储物间,用于放置一些杂物;北侧房间打通做老人房,北阳台搭建阳光房做洗衣房,也放置了遮阳伞、休闲桌椅,生活休闲两不误;
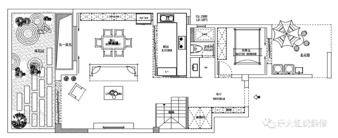
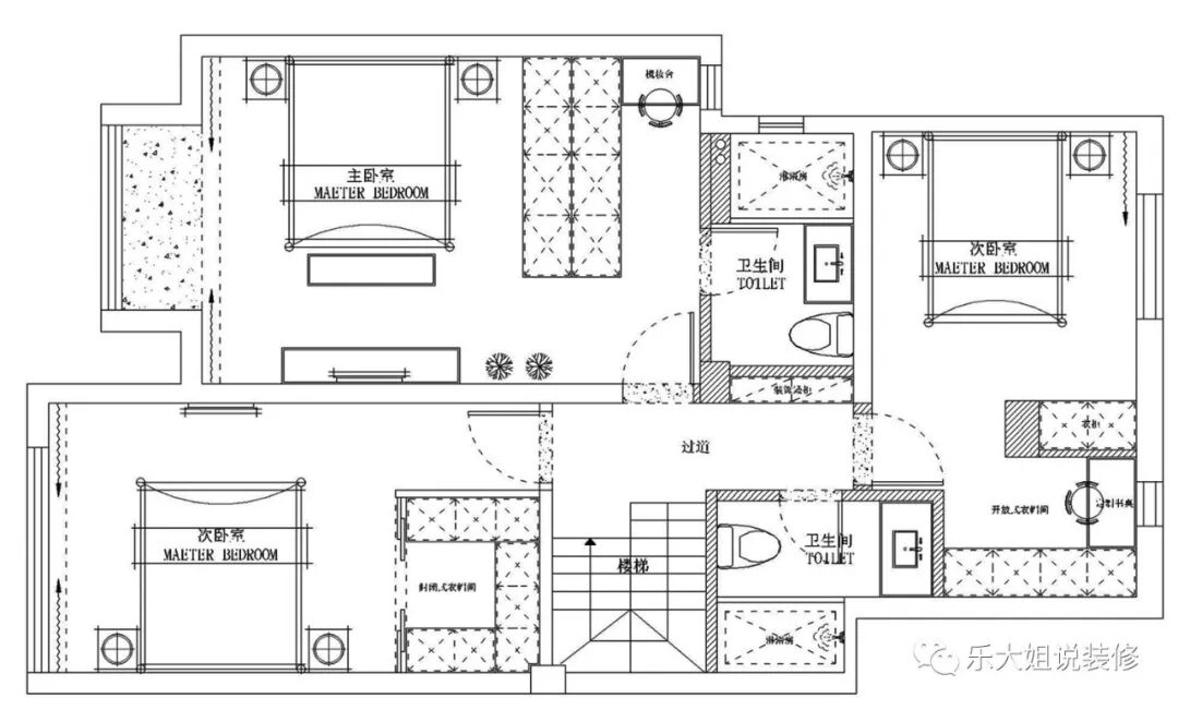
- 二层平面布置,因业主不想把外卫做在北房间,不然北房间的空间利用会比较差,所以设计师将外卫改至因楼梯的改建而空余出来的位置处,从而满足了二层两个次卧的卫生间使用;而原有卫生间的位置则改为北房间的衣帽间,从而增加了储物休闲等功能;现浇二层主卧地面,与内卫做成套间;二层南次卧与南阳台打通,整体房间往南侧移动,北边做衣帽间,这样规划二层的储物空间基本足够,空间划分也更加合理。
点击左下方“阅读原文”,即可在线免费看本案例全景图(360°)。