发布时间:2022-03-08
乐大姐
FM104.8《家在苏州--乐大姐说装修》栏目特邀嘉宾,
赫博别墅设计创始人之一;
多次受邀成为院校家居的授课讲师;
98年至今,
为万千家庭打造幸福家居同时,也相互成为了好朋友。
任何与装修有关的问题,欢迎您添加乐大姐微信:13382103377,
乐大姐会为您做一对一解答。

我们骑着单车,
本案是套精装房,141㎡的复式,男业主是在企业里做人事管理工作的,为人谦虚有礼,女业主是软件工程师,在外企,人特别温柔,平时夫妻两上班也是朝九晚五的。家里有一个6岁的男孩和一个4岁的女孩,目前儿子是男方父母帮忙带,女儿是岳母帮忙带,业主夫妻两一直想要一家人生活在一起,所以买了这套复式。因是要长期居住的,所以对房子的装修要求比较高!
在设计上,由于要和父母一起居住,所以整体的居住环境和功能划分要考虑到协调性和舒适性,要满足整个家庭成员的居住情况;风格的话,在和乐大姐团队沟通后选定为现代轻奢(偏现代一点)。
身在繁华都市,我们内心更想要一个安稳舒适的居所和心灵的寄托,住宅不止是居住空间,更应该是心灵的港湾。
小空间里面做出大视觉,这个需要设计师的巧思,整体的开放式格局、客厅往阳台的外扩、用柜子将梁柱藏起来的手法、房间隐形门与电视背景融为一体的设计,打造开阔视觉的同时,更符合一家人温馨互动的生活情景。
电视墙和沙发墙都巧妙地采用了镂空设计,增加了空间实用性的同时也使得整个背景更有多变性和视觉冲击力。
格子纹的单椅和ins风的落地灯活跃了空间的氛围,感受着阳光穿过白纱洒满屋子,一切干净而美好。
楼梯作为空间的闪光点之一,设计师在初期反复推敲演练,寻觅出这个集功能、景观于一体的理想位置,且不直对着入户门。
楼梯的第一踏步,采用踏步灯的形式,使整个楼梯间轻盈美观,更有层次感。
主卫的设计时尚有格调,干湿分离的设计,墙排式的马桶、一体定制的洗手台,台盆柜深蓝色的开放格,竖砖错拼铺贴的墙面,辅光源的运用,丰富了空间层次。
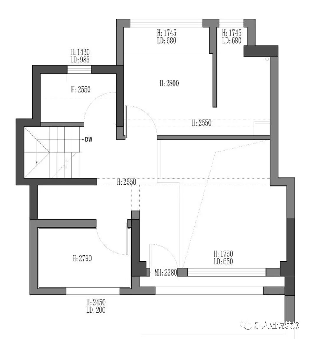
【户型改造】
原始客厅的进深只有2.5m,考虑到视觉感和空间比例,把阳台的部分区域扩进客厅,这样整个空间显得更加开阔;
原厨房和餐厅之间打通,厨房墙体与餐厅墙体、入户门保持在同一水平线上,做成一个四樘移门的大餐厨空间,增加空间感和通透性;
为了让整个空间更加通透开阔,将楼梯与入户门之间的非承重墙拆除,这样沙发背景墙与西南方向的房间保持在同一水平线上;同时将楼梯的上下方向对调,以避免楼梯直对着入户门;
电视背景墙后面的老人房采用隐形门设计,保证背景的完整性;
二楼平台处有一个很长的过道,为了充分利用空间,将其一分为二,一部分用来做装饰性储物柜,一部分划到主卧空间用来做衣帽间;
将主卧南阳台扩进来卧室,增加了整体的空间感,同时将主卧和北面卧室的卫浴空间打通,做成带衣帽间、卫生间的套房形式,符合业主生活需求,原来内卫改变传统,做成浴缸、洗漱台、淋浴、坐便器四分区。
点击左下方“阅读原文”,即可在线免费看本案例全景图(360°)。
https://vr.3d66.com/vr/index_detail_406429.asp
长按二维码添加乐大姐微信号
装修不烦 大姐来谈