
乐大姐
FM104.8《家在苏州--乐大姐说装修》栏目特邀嘉宾,
赫博别墅设计创始人之一;
多次受邀成为院校家居的授课讲师;
98年至今,
为万千家庭打造幸福家居同时,也相互成为了好朋友。
任何与装修有关的问题,欢迎您添加乐大姐微信:13382103377,
乐大姐会为您做一对一解答。
项目地点:晋府水巷(独栋)
项目风格:意式轻奢
项目面积:590㎡
项目性质:全屋整装
项目状态:正在施工
本案位于姑苏区北园路,与苏州著名园林拙政园相邻,属于闹中取静的景区独栋别墅。男业主是外地人,当初一个人来苏州开厂创业,娶了苏州媳妇(女业主是老师),夫妻两人感情很好,女儿目前在国外读书,在当地也是非常让人羡慕的一对!业主一家现在住在一套140平的房子里,所以对这套独栋别墅寄予了非常大的期望。
风格上,因业主比较喜欢现代风格,但是又想有别墅的奢华感,跟乐大姐团队设计师商量下来最终选定为意式轻奢。

安藤忠雄说“奢华的家要有安静的感觉,能触动心灵深处。”一个精致的居住空间不应只是视觉的享受,更应体现于心灵上的成熟与内敛。前厅进门,迎面而来的是时而大面积分布、时而细腻如丝的大理石灰地面和木饰面,高雅大气的艺术吊顶在其间若隐若现地浮动起来,将对称性、平衡性与现代审美的创新性融入其中,展现着一场纯粹的人与空间之间的灵魂对话。


客厅、茶室、餐厅、西厨采用一体化开放式,布局利落贯通,视线一览无遗。融合的同时,依然保持着功能分区的独立,清晰流畅的线条层次营造了流动性的空间氛围。
大尺寸落地窗无限放大景观界面,光景被最大化地保留于空间之中。纱帘掩映,简单纯粹之余又塑造朦胧开阔的画面。

意式家具注重形体比例与物料搭配,为简洁细致的硬装氛围注入不同层次的触感。军绿色的多人绒布沙发、角几和电视柜,印象珠峰般的大理石茶几,在自然光线的映射下产生连接,注入条纹状的蓝色系地毯,诠释着极致奢华。
在大面积深色护墙与墙布的基础上,融入了一些金属材质,如吊顶的压边、房门及柜门的拉手、主灯、还有一些小的装饰品等都出现了类似的金属元素,适当的金色点缀让沉稳的空间显得更加生动有层次,自带光芒而张扬!
客厅采用的是无主灯设计,但是为了营造有主灯的奢华感,采取挂件预埋吊顶的做法,顶上的筒灯光源洒在琉璃定制挂件上,熠熠生辉,无声地诉说着高雅低调的空间语言。
繁华都市里,于居所客厅西侧设一个地台,置一间茶室,大片的落地玻璃让室内与室外的景观融为一体,仿佛置身于花园中。在这里,坐卧随心,诗书随情,与知己对坐闲谈,好不惬意。
餐厅延续了客厅的配色材质,使整个空间更显开阔宽敞。月桂女神花冠般的灯饰缓缓垂落,与客厅似满天星辰般的琉璃挂件遥相呼应,点缀着与家人围桌而食的美好记忆,让整个空间更富有感染力与艺术表现力。
大理石圆形餐桌带来的浑厚,黑色与白色、军绿色与金色带来的强烈视觉观感,如同跳动的光晕,打造的不仅是奢华,更是一种永恒经典与贵族气质的品质生活。
室外光线流泻进来,衬出大理石自然的肌理,橱柜里的灯光活跃着气氛,勾勒出独有的高贵气息,让制作美食和用餐变成一件愉快又优雅的事。业主夫妻两的卧室套房在二楼,与以往的设计风格有所不同,乐大姐团队设计师定制了弧形的银灰色床头背景,包围式的设计很好地拉升了空间比例,让休息睡眠区显得更加大气有安全感,同时又能很好地将屋顶融入到护墙背景中,使整个背景整体性更强更有张力。整体空间用橙色与灰色作为主色调,点缀着金属感的流动线条,现代都市干练简洁的浅奢气息在此间徐徐弥漫。暖色的灯带来明与暗、光与影的效果,给室内空间披上一层柔和的外衣,使空间更平和静谧,芝兰之室,蓬生麻中。纱帘将视觉空间延伸至朦胧的室外,一天中的光线随日月更迭产生微妙的变化,交汇出动静相间,富有活力的定格画面。
主卫对话着简约冷冽的大理石、纤细的金属装饰,大气而又精致无比,充满优雅质感,散发出不可抗拒的魅力。镜面采用传统的竖挂造型,让整个空间添了几分艺术感、层次感,时尚大方有档次。卫生间采用的是三分离式,各个功能区运用大面积透明的玻璃合理地划分开来,洗漱台采用男女分割式双台盆设计,点、线、面的完美结合,丰富了空间的艺术形态但又保持着最本真的生活需求。
高尔基曾说:我读的书愈多,就愈亲近世界,愈明了生活的意义,愈觉得生活的重要。
因二楼朝北的两个房间基本不使用,只是作为临时备用的房间,所以书房设置在了中间敞开式区域,没有做隔断,使得整个二楼的空间感更加开阔。在书房的设计中,书柜对话着横竖穿插的板材,它们互相咬合,形成墙面肌理,将高雅和厚重交相辉映在一起。



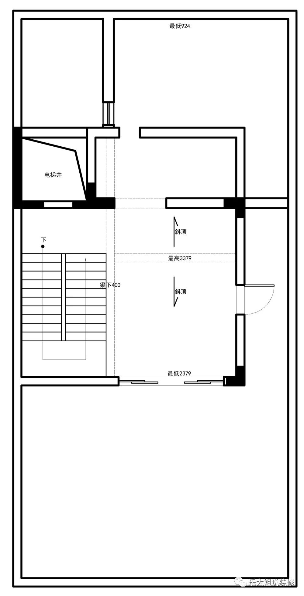
顶部线条不规整的三楼作为女儿的私人空间,更是一份惊喜,乐大姐团队设计师在大开大合的意式轻奢风中,为女儿保留了一角甜蜜温馨的北欧风小天地。同时,利用限制的层高,根据人的坐卧习惯,将整个空间划分为卧室区、学习区、休闲娱乐区。
顶部,用独具设计感的吊顶隐藏中间梁体,化解视觉的突兀感,搭配内嵌灯带和暗装筒灯,增添浪漫气质。
女儿房利用麻灰色的墙布作为背景,降低了空间的彩度,带来静谧的休憩环境,同时用床头柜的黄色、床的粉色与地板的原木色进行点缀,巧妙避免了空间的压抑与乏味,无论色调还是材质,都展现出卧室简约精致的风格。卧室区与休闲娱乐区之间的收纳柜,既满足了对储藏的需求,又划分了功能空间,有些柜体做成敞开式的,有些做成封闭式的,方便拿取。
电视打破了常规的套路,采用的是可以180°旋转的设计,可转动,能满足不同角度的观影需求,可移动,能实现两个空间共用一机,花样百出,酷炫十足。
朝南设计一排地台,暖暖的冬日午后,喝喝茶,看看书,十分惬意。
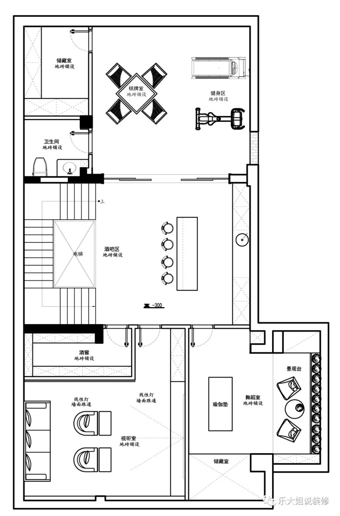
阳光透过天窗斜照进来,绿植静默地生长着,时光慢慢地爬过,空间沉凝在一片安然闲适之中,聆享静谧和谐的生活意境。几何异性的线型灯饰为引导,开始进入新的空间,在层层递进的过程中,流动的线条、艺术的灯饰、撞色的摆件将整个地下休闲空间展现在眼前。电梯采用的观光形式,增加了整个空间的通透感与现代感;楼梯的每步都有灯的设计方案,扶手下、踏步下有暗藏的灯带,哪怕不开灯,一样可以循着光线上下楼梯。顺着楼梯下来正对面设置了一个酒吧台,后面是酒吧柜,配合奢华的水晶灯,昏暗的灯光营造出家庭酒吧的感觉。另外,还有趣味的棋牌室设计、舒适的影音室设计、放松身心的健身区/瑜伽区/舞蹈区设计、储藏室……,乐大姐团队设计师赋予每一个地下空间不同的主题,来延展这个空间的作用,引领、提升生活品质。

三楼改造后户型图
- 本案是一幢独栋别墅,虽然面积很大,但空间的构架却并不舒展,需要重新梳理,以体现大宅该有的格局;
- 为了让整个别墅空间更通透大气,把原结构中的电梯井拆除,做成一到三楼的卫生间,而原一楼卫生间的位置则与客厅打通,做成了一个茶室;同时,将原结构中占地面积很大的楼梯整个拆除,与电梯一起做了重新规划;
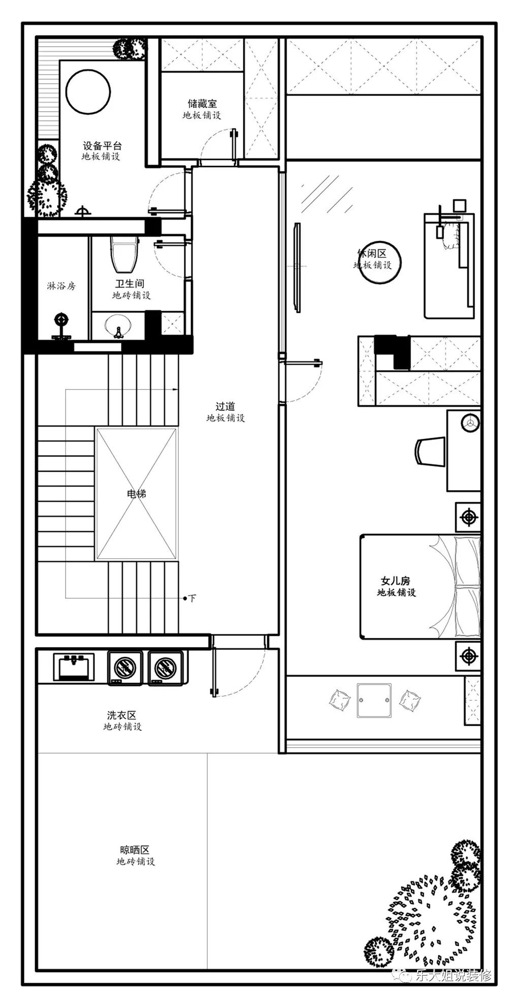
- 一楼的功能区主要以客餐厅为主,对厨房做了一个外扩的处理,这样可以满足再做一个西厨出来,业主的女儿比较喜欢在西厨做一些简餐;
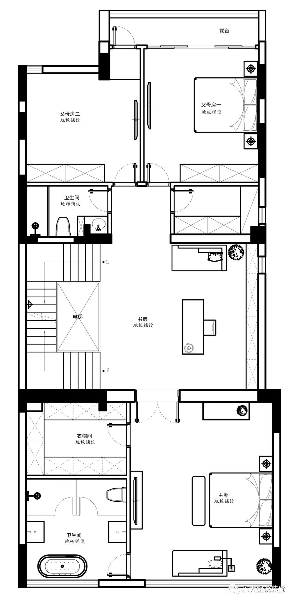
- 二楼主要以休憩区为主,朝南一个套间为业主夫妻两的主卧室,集卫生间和衣帽间为一体,卫生间采用的是三分离式,互不打扰;
- 三楼为女儿的独立空间,设计风格明显区别于下面三层,选择的是北欧风,女儿个人非常喜欢。
点击左下方“阅读原文”,即可在线免费看本案例全景图(360°)。
https://vr.justeasy.cn/view/146h0135o8c8w3l5-1646186533.html