发布时间:2022-03-08
乐大姐
FM104.8《家在苏州--乐大姐说装修》栏目特邀嘉宾,
赫博别墅设计创始人之一;
多次受邀成为院校家居的授课讲师;
98年至今,
为万千家庭打造幸福家居同时,也相互成为了好朋友。
任何与装修有关的问题,欢迎您添加乐大姐微信:13382103377,
乐大姐会为您做一对一解答。
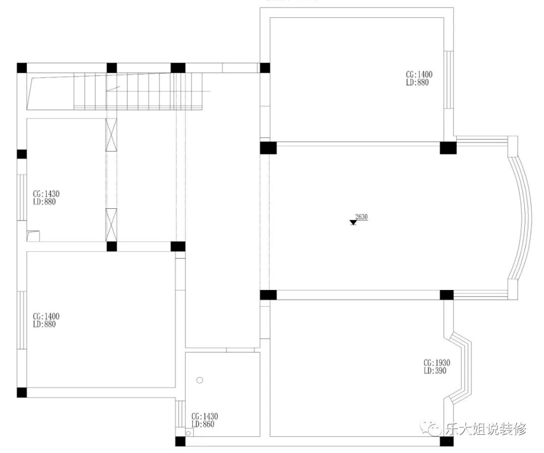
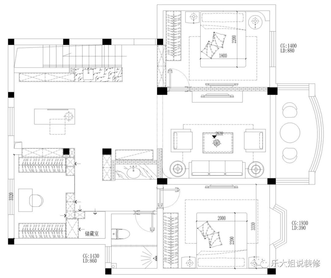
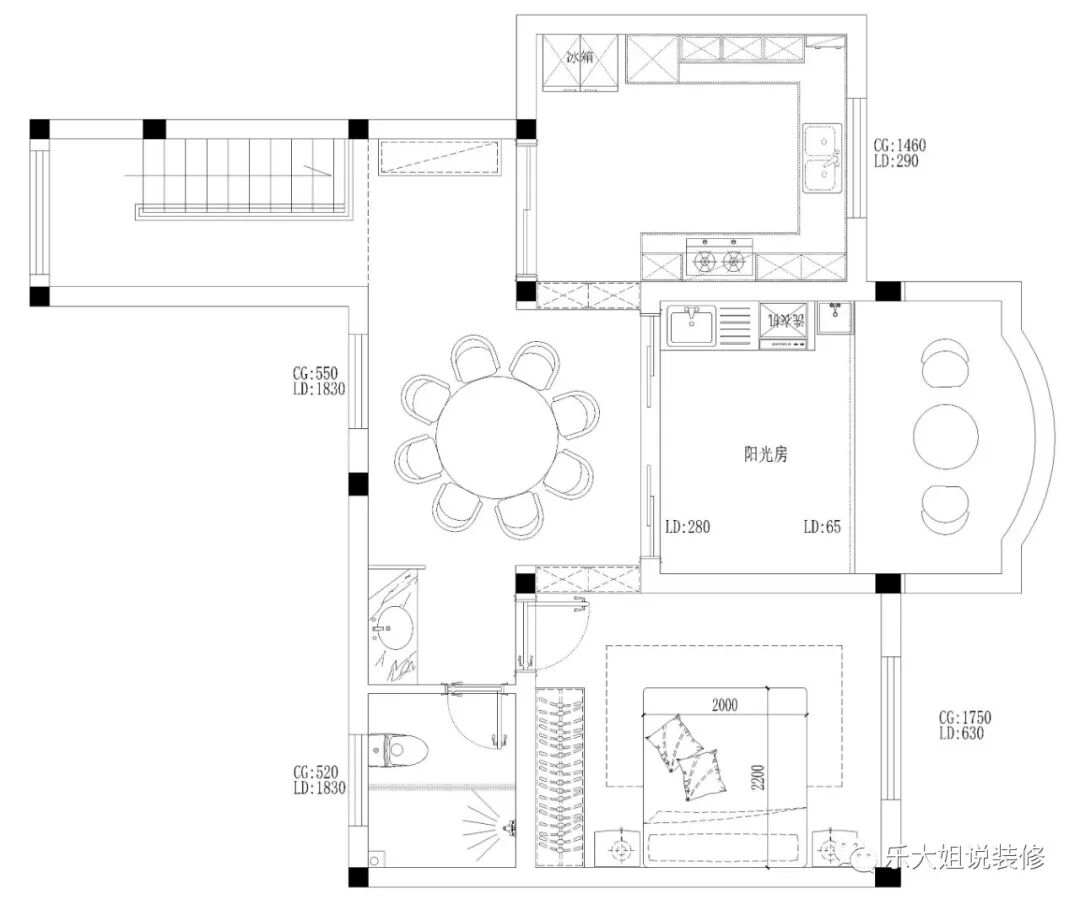
项目地点:金之枫花园(上叠) 项目性质:全屋整装 项目面积:201㎡ 项目风格:现代 项目状态:正在施工 乐大姐设计团队在第一次上门测量这套老房子的时候,进门第一感觉就是特别的昏暗(虽然本案是南北通透的格局),之所以出现这种情况,有以下几个原因: 空间承载的是一种实实在在的生活,通过巧妙地运用物料的“质”以及不同程度的色系相间来感知人的情绪,是存放身心的居所。 本案客厅以白色打底,清爽干净,大大提升了采光效果,同时,橙色的轻暖,灰色的气质,现代感的家具,点、线、面的规则与不规则,在乐大姐团队设计师巧妙的搭配组合下,有一种默契和互动关系在其间酝酿,让置身于其中的人感受到协调而自然的现代诗意。 硬装上以大理石、木饰面、金属线条为空间提供“硬”,家具上以棉麻、绒布为空间提供“柔”,软装与硬装的鲜明对比,强化了空间感的同时无限提升了时尚感。还有无数灯光充满在空间纵横中,把整个空间都撑起来了。 设计师借用原厨房和餐厅的空间改造出一个与客厅共处于开放区域的书房,留出了吧台的位置,使整个一层功能更丰富。且吧台黑色的台面和墨绿色细格纹的金属脚高凳,营造出独有格调的现代美学意境和现代时尚的生活。 书房两侧靠墙的部分和吧台的底部全部都做成了储物柜,增加了整个家的收纳功能。白色和原木色的纹理无限蔓延将画面塑造地简洁大气,又充满着无限的想象力,没有喧宾夺主的夸张,也没有单调朴素的木讷。 简约却不简单,扑面而来的现代优雅,简简单单的感觉也可以打造出很有质感的家。 主 卧 BEDROOM 次卧竖纹墙布的床头墙面配上棕褐色的床靠背,营造了一个宁谧自然的氛围,简约的正方形镶嵌圆形的组合装饰,不仅与整体色调相呼应,还使整个空间的设计感顿时提升,成为卧室里的点睛之笔。 露 台 BALCONY 二楼改造后户型图 本案原始户型中的入户门是正对着卫生间门的,不过这样的格局既不美观,又不利风水,所以乐大姐团队设计师在卫生间与入户门之间设计了一处入户门厅的对景来规避这些弊端,同时在对景的背面安置了一楼卫生间的干区台盆,干湿分离,方便日常使用; 老房子原来的厨房间,不仅遮挡掉了背面窗户的采光和通风,还占据了餐厅的位置,让餐厅缩在了楼梯边上,设计师根据需要将原厨房的位置设计为开放式的书房,不仅增强了室内的采光和通风,还让整个房子格局更加方正宽敞; 将原来的餐桌区域设计成水吧,方便楼下泡茶、洗水果等用水操作; 把原来的次卧门从入户位置改至电视背景墙处,做成了隐形门和电视背景墙融为一体,而原次卧门的位置则改造成鞋柜,方便进出家换鞋; 顶楼餐厅的位置原本是空置的一块区域,非常地浪费空间,现在将其设计为餐厅,大大提高了房子的利用率,而且整个餐厅也非常地方正大气,可容纳一个八人的圆桌; 将顶楼原本闲置的一个房间设计为厨房,这样一来厨房就在餐厅的边上,动线方便合理,空间宽敞明亮。同时,二楼的整个空间也完全合理利用起来了,让生活空间不再仅限于一楼。
点击左下方“阅读原文”,即可在线免费看本案例全景图(360°)。
https://vr.3d66.com/vr/index_detail_345593.asp
长按二维码添加乐大姐微信号
装修不烦 大姐来谈