
乐大姐
FM104.8《家在苏州--乐大姐说装修》栏目特邀嘉宾,
赫博别墅设计创始人之一;
多次受邀成为院校家居的授课讲师;
98年至今,
为万千家庭打造幸福家居同时,也相互成为了好朋友。
任何与装修有关的问题,欢迎您添加乐大姐微信:13382103377,
乐大姐会为您做一对一解答。
幽静亦或嘈杂,捧一本好书,啜饮一本清茶,诗意栖居,方寸净明。书之雅,茗之香,品之尚,尽在其中。本案是套下叠户型,带一个比较大的院子,房子的功能十分齐全。男业主是小学老师,女业主一直做财务工作的,由于是知识分子家庭,对孩子的培养很有方法,从幼儿园到高中,业主儿子成绩一直名列前茅,孩子以后前程似锦,将来在哪里发展,目前还不太明确,所以这套房子就以业主夫妻两长久自住为前提作得打算,装完后是要带着老母亲一起住的!
由于男业主特别喜欢书房,喜欢收藏古玩字画,以文会友是他最喜欢的事情,所以乐大姐团队设计师特地将地下室做成了他的工作室!地上的装修则以女业主的要求为主,分工明确!
乐大姐团队设计师遵循本案的整体环境风貌并挖掘建筑内在之美,注重格局及仪式感,以体块穿插的设计手法,纯粹的材质细节和虚实错落的表现形式,营建出清宁澄净、古朴秀雅的空间气质美学。



客厅是最能表达整屋的风格调性的,水墨版的黑白灰与中国红交织,典雅别致的气质一下子就凸显出来,结合镜面的大理石电视背景墙为空间增添了现代艺术气息,在移步中,光影恍惚,仿佛置身中古的水墨画中。顶部灯光的层叠变化,让空间的质感在低调中透出精致与奢华,侧面透过玻璃门视觉延伸到庭院,光影的渲染又给空间注入了力量和生命灵性。原始户型中客厅是挑高空间,光线十分明亮,但是为了功能需求做了现浇,这样客厅整体通透性会受到影响,所以设计师从平面出发到立面到软装色彩等等,非常注重虚实的结合。
除了客餐厅采用开放式格局外,电视背景、沙发背景都进行了空间的黄金比例分割,也就是面结构的划分,使得背景有了空间的延伸,扩大视觉效果。
同时在墙面装饰上,注重虚实的结合,有些地方用装饰画来点缀,有些地方做“留白”处理,有些地方利用镜面的折射原理来借景,丰富了空间层次,体现了中国传统的空间精神和韵味。


餐厅延续了客厅的设计意志,采用了“方圆”结合的经典手法,圆吊、圆桌、精致的餐盘与清新的花艺摆设交织出自然的诗意与东方的风雅。
圆桌之上,有依偎相伴的温情充盈,可望可守。厨房以内,有香浓诱人的烟火弥漫,可盐可甜。
餐厅与入户门厅、楼梯之间采用中式花格、开放式装饰柜做分割,这样既开敞又联合,有效地拓展了公共区域的活动范围与分区层次,最大化挖掘相邻场域的渗透与交互,显得空间大气通透,有层次感,同时也满足了业主要求的茶壶、墨盒展示。柜体内也做了灯光处理,增添了空间的视觉意境,高尚典雅的气质弥漫其中。
自古以来,每个中国文人心中都有一个“山水梦”。淡雅灰调,暖光铺韵,尘世繁华间隐匿着的宁静祥和由画及室,延展至整个卧房,一时竟分不清到底是人在画中,还是画在房中。主卧室乐大姐团队设计师通过造型与装饰点睛居住者的个性气质,采取了中轴对称的设计手法,以深色沉稳为主,同时搭配了一些中国红以及米色绒布进行色彩融合,在素雅的空间内装点出情绪色彩,艺术上的神韵油然而生。
床头矮柜上的花艺与床头灯烘托的氛围,将人们从喧嚣的都市节奏里带慢下来,进入轻松写意的家庭亲密空间。

二楼次卧是男孩房,因业主不确定以后儿子将来在哪里发展,所以整体设计以现代简约为主,采用不同深度的灰色和温馨的深蓝拼色,糅合深沉的黑色、清新的雅白,赋予空间明亮而沉稳的氛围,以及纯粹至简的气质格调。
一器一物,一花一木中,温润气质尽显。悠然自得的品质生活由此展开,带动居住者对于居家浓情的无限神往。


因男业主一直有“寄情于山水之间,雕琢于笔墨书卷”的心志向往,故乐大姐团队设计师将本案的地下室打造成他的个人工作室,在这里,男业主的爱好需求全部得以实现。


根据业主的需求,将地下室楼梯正对着的墙体,设计成凹凸有致、虚实结合的收纳柜,作为业主的茶壶、墨盒、书籍等展示区,柜内留有的光源成为整个空间的视觉重点,既具有收纳功能,又起到装饰的作用。在方圆之间,来者被空间这种韵律引领至生活的另一境地,有节奏的跳动着,每件器物拥有情感,每次呼吸都变得缓慢和有意义,这样一处静心思考与深度交流的空间,不仅是现代都市里忙碌者的精神需求,更是安放自身心灵的栖息地。地下室靠近天井的位置,视线开阔明亮,做了一个品茶区,既可以用来做朋友来访时品茶的地方,也可以作为男业主日常的工作台。看一眼角落的绿意,品一杯热茗,读两页诗篇,伴随着温暖的阳光和书墨的香气,小心品味着东方四季。
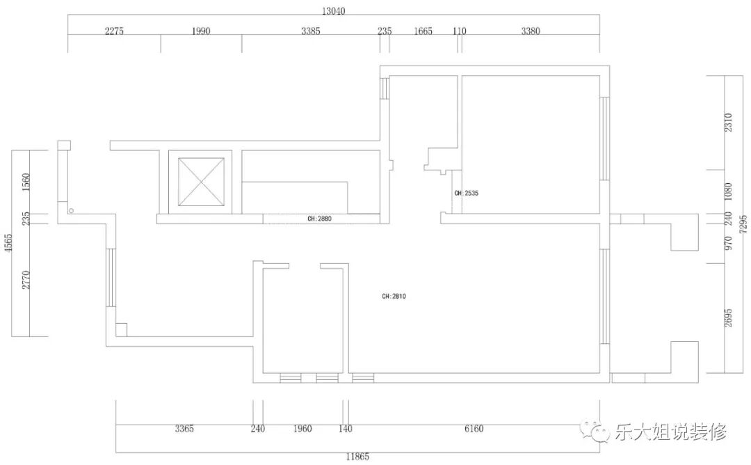
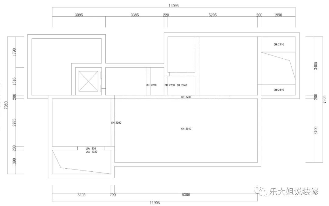
地下室原始户型图
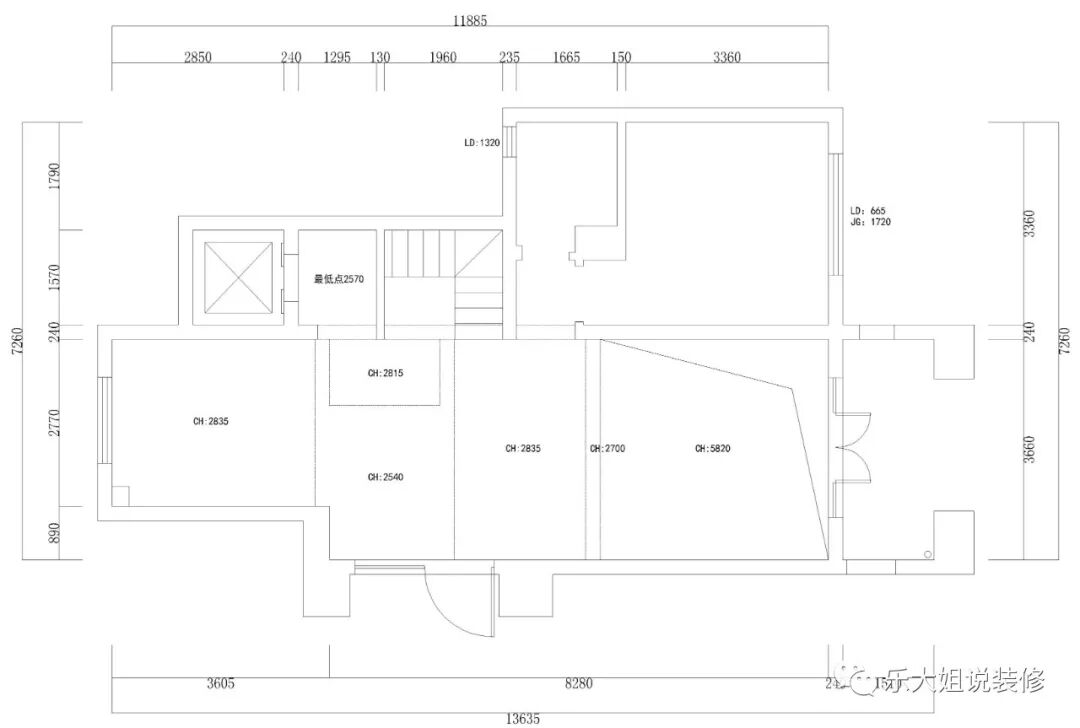
地下室改造后户型图

一楼原始户型图

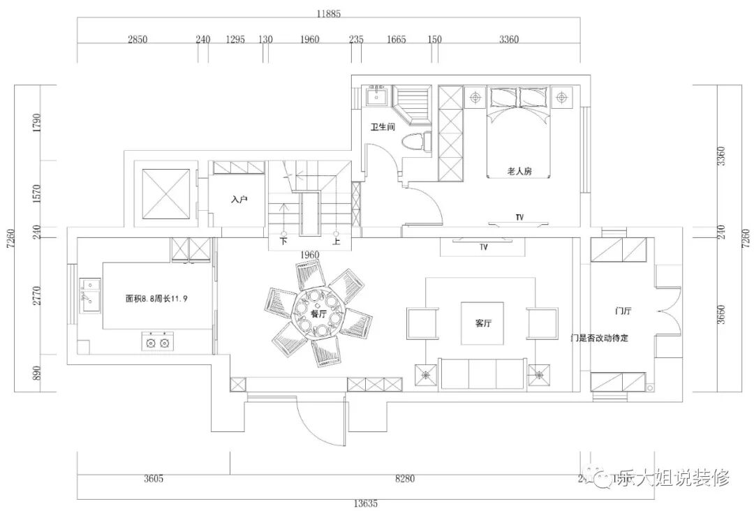
一楼改造后户型图

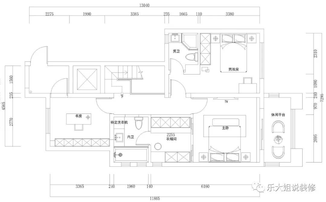
二楼原始户型图

- 原始户型中一楼和二楼之间有一个共享区域,即挑高空间,根据业主的家庭结构需要,将其做了现浇,现浇后的二楼空间结合该层的公共卫生间打造成一个主卧套房,完善了功能需求;
- 因客厅的挑高空间现浇改造后整体通透性受到了影响,为了扩展一楼的空间感,将一楼院子的门移至原阳台下,再加上餐厅的落地窗、厨房的玻璃移门、楼梯处的花格等,整个空间的视觉被完全打开,大大增强了通透性;
- 本案一楼电梯入户处门厅很窄,阻挡了入户的视线,显得空间很局促,所以乐大姐团队设计师将入户处的墙体及邻面的墙拆除,改成花格和展示柜,营造了中式若隐若现的视觉效果,也让业主的收藏有了巧妙的展示空间。
点击左下方“阅读原文”,即可在线免费看本案例全景图(360°)。