发布时间:2022-03-08
乐大姐
FM104.8《家在苏州--乐大姐说装修》栏目特邀嘉宾,
赫博别墅设计创始人之一;
多次受邀成为院校家居的授课讲师;
98年至今,
为万千家庭打造幸福家居同时,也相互成为了好朋友。
任何与装修有关的问题,欢迎您添加乐大姐微信:13382103377,
乐大姐会为您做一对一解答。
项目信息
二手房“重新装修前”
业主诉求
本案是一套位于园区湖西的学区房,业主买这套二手房是为了孩子上学用的,不过对各种功能及设备配置要求还是很高的,中央空调、新风系统、全屋软水都要配,毕竟接下来十几年都要住在这。目前业主一家人住在青剑湖附近400多平的别墅里。
拿到这套房以后业主就开始为装修发愁了,因为之前已经经历过3次装修了(青剑湖的别墅刚装修完没几年),半包、全包两种方式都试过,最终的感受却是装修简直烦不胜烦,投入了大把的时间、精力,最后效果还不好,所以现在一提到装修就怕……,后来女业主提出找朋友装,男业主马上否决了,他说:熟人装修,效果跟质量更加没办法掌控了,连验收标准估计都没有,以后装修好坏没法说!弄不好朋友也做不了!要找就找专业的乐大姐团队!设计方案出来之后,业主一家一见倾心!
二手房“焕然一新” 客厅/Living Room 电视背景墙采用大理石纹岩板+木饰板+投影幕布,多材质的碰撞刚柔并济之中达成了一种微妙的材质平衡,让空间更有质感。大理石里面还采用了镶嵌线条灯的处理手法,不仅让空间有了层次感,更增添了几分温馨氛围。 因本案是二手房,老房子的层高不是很高,所以采用了无主灯设计,从视觉上拉伸整体层高。 餐厅/Dining Room
餐桌是低调的白色大理石台面,蓝色、橙色的绒布餐椅刚好稀释了这种白色带来的清冷感,增添了烟火气息。
本一览无遗的餐厨空间在线型灯门框造型的修饰下,朦胧而婉转,既丰富了视觉感受,又巧妙地将空间一分为二。靠窗的西厨区和餐桌并联,让整个客餐厅更加光线通透,制作美食也不再成为一个人的独享。
主卧/Master Room 衣柜设计了多种形态,封闭的柜子用来存放反季节或者不常穿的衣物,玻璃柜门的区域则可以挂一些常穿的上衣以及包包,可视化的界面方便快速拿取,节省更多时间。
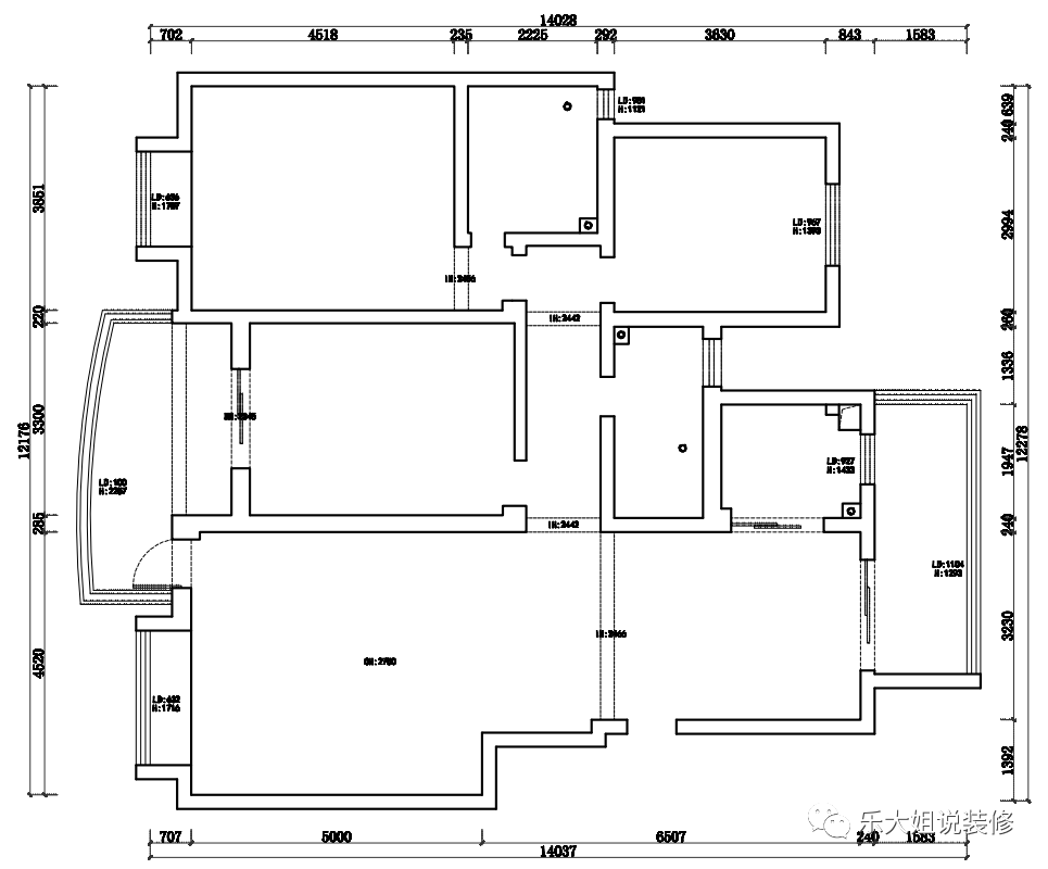
次卧/Second Room 卫生间/Toilet 户型改造 改造后户型图
全景图
https://vr.justeasy.cn/view/i1ih6300gb242832-1603584351.html
长按二维码添加乐大姐微信号
装修不烦 大姐来谈