发布时间:2022-03-08
乐大姐
FM104.8《家在苏州--乐大姐说装修》栏目特邀嘉宾,
赫博别墅设计创始人之一;
多次受邀成为院校家居的授课讲师;
98年至今,
为万千家庭打造幸福家居同时,也相互成为了好朋友。
任何与装修有关的问题,欢迎您添加乐大姐微信:13382103377,
乐大姐会为您做一对一解答。
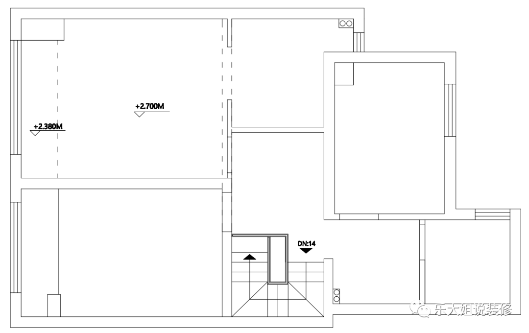
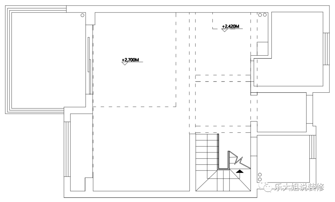
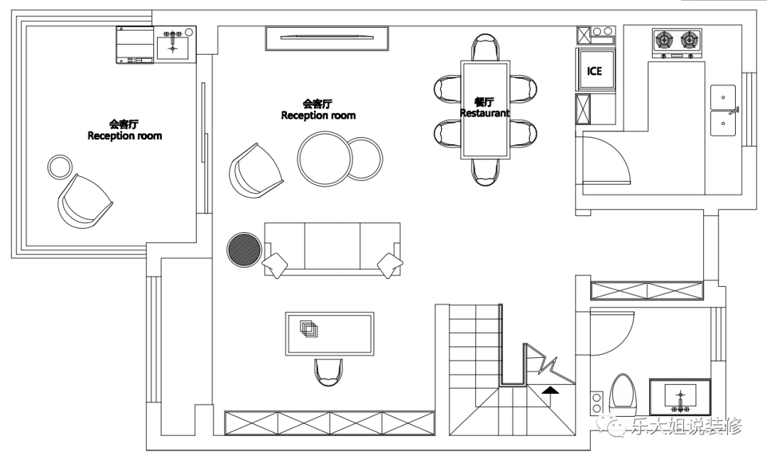
很多人认为一定要去理解什么是美。 其实, 真正的美无需理解, 只要学会去爱惜, 就已经很足够了…… —— 莫奈 结构上,将整个一层的公共区域打开,采用开放式布局, 让室内各个功能区域之间独立、关联,增强构造穿插和引入自然光线,让室内外融合的更为舒适自然,同时动线上也更为流畅舒适。 大面积落地窗将光与景自然的漫进空间,融入生活,温暖质地带到家的每个角落,光影成为家中美好的光景。 开放式的书房,使场景更加灵动,慵懒的阳光洒进室内,聊天、阅读、品茶、玩耍,平淡的生活中增添了许多趣味,让空间和人都呈现最舒适的状态。 玄关与客餐厅之间的门洞采用的是圆弧、拱形切线,带着戏剧感、复古情调,雾霾蓝的玄关柜与餐边柜、书柜之间色彩遥相呼应,柜内隐藏灯的设计,让入夜的晚餐变得浪漫。 主卧也延续了整体的设计语言,原木色的地板、雾霾蓝的床头背景、精致的石膏线装饰,柔软舒适的床品,以温润优雅的色调诉诸于人的视觉,营造出宁静轻松的氛围。床头的圆形装饰品为空间注入个性趣味,也利于氛围的烘托。 二楼改造后户型图 本案是套叠墅户型,常住人口不多,就业主夫妻两加两个儿子,所以结构上没有太大的改动,上下两层动静分开,一楼以玄关、客厅、餐厅、书房、厨房、卫生间等功能性空间为主,公共空间十分宽敞、大气,二楼以一家四口的睡眠空间为主; 考虑到业主对玄关收纳的需求及一楼卫生间只需留有马桶和台盆柜,所以将进门的墙体往卫生间挪了点位置,留出鞋柜的空间; 原始户型中厨房间与餐厅之间的墙体是留有冰箱位置的,不过冰箱两侧一边是下水管一边是烟道,所以整体墙面不规整不美观,乐大姐团队设计师将在这个位置做了一个整体餐边柜,冰箱嵌在中间,两侧一边做开放的一边做带门的,这样无论从美观度和实际使用功能上都非常不错; 二楼的三个卧室正常保留,把主卧的内卫改成了衣帽间,外卫做成干湿分离,使用起来更加方便。
长按二维码添加乐大姐微信号
装修不烦 大姐来谈