清水江南别墅整装

设计说·第156期 | 180㎡精装叠墅大改造,重构空间新格调!

发布时间:2022-03-10

图片

乐大姐

FM104.8《家在苏州--乐大姐说装修》栏目特邀嘉宾,

赫博别墅设计创始人之一;

多次受邀成为院校家居的授课讲师;

98年至今,

为万千家庭打造幸福家居同时,也相互成为了好朋友。

任何与装修有关的问题,欢迎您添加乐大姐微信:13382103377

乐大姐会为您做一对一解答。


项目地点:吴江熙华雅苑(叠墅)

项目面积:180㎡

项目风格:现代轻奢(混搭)

项目性质:精装修软装搭配

项目状态:正在施工


|180㎡精装叠墅的华丽变身

美好设计,是一次次的双向奔赴。

本案灵感来源于业主对于优雅浪漫的追求,通过设计艺术的语言来诠释出家的温馨浪漫。


业主需求

The owner needs


本案在吴江属于高端住宅,开发商的装修标准蛮高的,交付时房子就自带三恒系统,但是业主一家人都觉得精装的效果太普通了,跟自己想要住的环境相差很大,所以决定在不影响三恒系统的前提下,乐大姐团队整体重新规划!

180㎡精装叠墅改造前VS改造后


客餐厅

Living room+Dining room


图片

图片

图片

“内卷”盛行的时代,越来越多的人开始重视居住空间的舒适与温馨。在外奋力打拼,归家后希望能让身心得到彻底的放松。


本案在原精装的基础上以灰咖色为基底,清爽自然的底色,让空间拥有足够的包容度,去承载居住者的精神需求。配合温润的木饰面、通透的玻璃、精致的雕花、轻奢的金属走边,使得整个空间充满了清新而优雅的气息。家再也不是一个只能吃饭睡觉的地方。


图片


图片

本案电视背景的设计是整个空间的重点,尤其中心位置的定位很重要。


原结构中,电视背景整面墙的宽度是含了过道的距离的,如果撇开过道单独做背景,电视背景只占整墙一部分,就会显得小气;如果整面墙都做电视背景,电视的中心、沙发以及主灯就会偏掉。那么,怎样才能让两者既统一又各自独立是设计的关键!为此,乐大姐团队设计老师除了在整体的材质上做了统一的护墙板以外,还通过跳色来区分区域,顶上也采用了平线条来做区域分割,使主灯的位置既对应了电视背景,又在沙发中心,十分协调。


图片

图片


图片

楼梯间的位置,大部分家庭会全部用来做储藏柜,很少考虑美观性。但是在这样一个体量的房子里,并不缺少储藏空间,所以设计老师在楼梯底部打造了一个空间小景,并运用灯光与之相照应,形成错落有序、更具质感的空间。


我们要打造的是既拥有大宅风范,又藏着细腻点缀的家。


图片


图片


图片


图片

位于厨房与餐厅之间的定制岛台,是提升整个餐厅档次的亮点之一,不仅可以当备餐台,还可以用来放置鲜花点缀环境,与自带暖色灯光的餐边柜形成呼应,营造出温馨的用餐氛围。


图片


图片

阳台,绝对是幸福生活的重要组成部分。本案是双阳台,空间十分宽敞,所以设计时兼顾了休闲与洗衣晾晒功能,集美貌和实用于一身。


茶室

Tea room


图片


图片


图片

中国人的茶室,不仅限于品茶,更是一个静心放松、修养身心的空间。忙碌中因为有了茶室的存在,生活的脚步也会随之放缓,获得片刻的沉思与宁静。


所以整体空间基调以淡雅为主,不论是中式的屏风背景造型,还是意境深远的中式景观图,都给人一种放下疲惫,人室合一的感觉。


图片

图片

展示柜,也是茶室空间的亮点之一,设计老师摒弃了传统的博古架式设计以及沉闷的柜门设计,转而在储藏柜柜体的中心位置挖出一组展示区来,并大胆运用中式的传统色:红色,让人眼前一亮,十分惊艳。


主卧

Master room


图片


图片


图片

设计,很多时候不能只考虑单面,不然整体设计出来不止单一,还没有连贯性,空间的气场随之也就弱了。


本案主卧,设计时就非常注重把整个空间作为一个整体来设计,床头背景通过木饰面与侧面墙自然衔接过渡,空间瞬间达到分割比例上的平衡,同时搭配通而不透的长虹玻璃,一进门整个空间的气场就出来了,简约而不简单。


图片


图片


次卧

Second room


图片


图片

图片
次卧室的面积并不宽裕,但是业主对空间的设计却很是期待。

所以,设计老师在做这个房间的设计时一反常规,把传统衣柜造型的下半部分割出部分空间用来做床头柜,这样就节省出了一个床头柜的距离,从而释放了空间,而柜体与床头背景之间的自然衔接,柜体灯带与背景灯带之间的巧妙联通,让整个空间连为一体,设计感满满。

图片

图片

孩子房

Children's room


图片


图片


图片
女孩房非常注重个性化的设定,追求童话世界的纯真,繁星、北极熊、人偶、羽毛吊灯......,天马行空,驰骋想象,打造出粉嫩温馨、甜蜜梦幻的公主世界。

阁楼

Attic


图片

图片


图片
阁楼,有天然的高层优势,远离其他空间区域,在这里做自己想做的事情,不会有任何打扰。

所以,本案的阁楼,不仅是家里的储藏中心,同时还兼带了书房与休闲功能,真正做到了实用与美观并存。

图片

图片

值得一提的是,设计老师并没有单纯地只做衣柜、书柜,而是通过灯光设计消除压抑感,让人即使在这里办公或休闲也不觉得沉闷,且高级感十足。

图片

踱步至阳光房,邂逅春日美好时光。乐大姐团队设计老师为业主设置了一个“阁楼度假区”,阳光充足,绿植充沛,金属质感茶几和布艺软垫让居家的午后小憩更加优雅舒适。


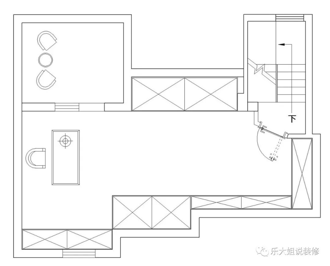
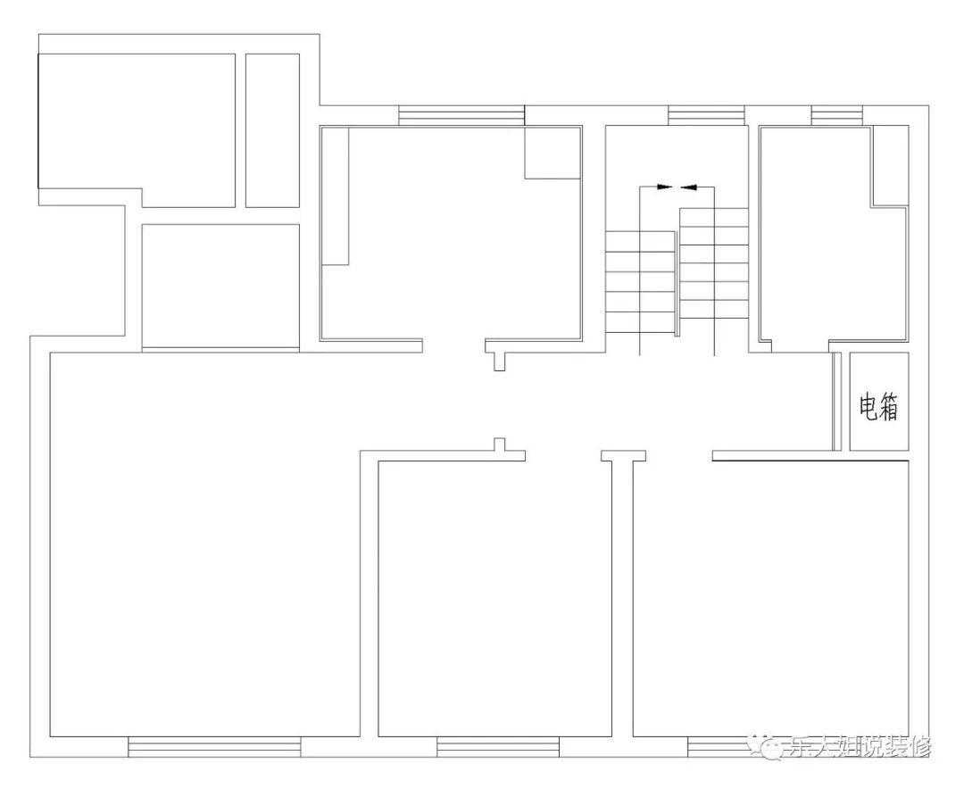
平面方案

Flat plan


图片

一层原始户型图

图片

一层改造后户型图

图片

二层原始户型图

图片

二层改造后户型图

图片

阁楼原始户型图

图片
阁楼改造后户型图
本案是套精装房软装搭配项目,故户型改造部分涉及得不多,主要是在精装房原始布局基础上根据业主的需求完善各区域功能与配置。


全景图

Panorama


图片

点击左下方“阅读原文”,即可在线免费看本案例全景图(360°)。

https://vr.justeasy.cn/view/16297r597td34082-1635419800.html

长按二维码添加乐大姐微信号

装修不烦 大姐来谈