
乐大姐
FM104.8《家在苏州--乐大姐说装修》栏目特邀嘉宾,
赫博别墅设计创始人之一;
多次受邀成为院校家居的授课讲师;
98年至今,
为万千家庭打造幸福家居的同时,也相互成为了好朋友。
任何与装修有关的问题,欢迎您添加乐大姐微信:13382103377,
乐大姐会为您做一对一解答。
每一套作品,都是私人定制
本案位于姑苏区,是老城区里比较稀缺的叠墅户型,日常是一家三口居住,买这个位置主要是考虑到家里的老人也住在这附近,老人舍不得离他们太远。因是要长久自主的,业主对装修的品质要求比较高,不想自己的家成为批量生产的产物。后来,乐大姐团队的设计方案出来以后,业主夫妻俩非常喜欢,并表示"如果这个效果能通过施工还原出来,肯定是我们小区里最靓的仔!"
客厅 | Living room



家宅的门外如同链接了两个世界,正如加斯东·巴什拉在《空间的诗学》中写道:“空间并非填充物体的容器,而是人类意识的居所,建筑学就是栖居的诗学。”家宅,作为最初的混沌宇宙,唤醒人们心中的诗意。


本案的客餐厅以重组布局的方式重新定义空间的功能和尺度,放大空间景观和面积的优势,优化空间的动线,并将多余的柱体和遮挡,消融于立面的体块构成与美陈之中,让安静、优雅和包容成为空间的三个关键词。从细节上来说,首先是入户门后退,与阳台齐平,空间更加规整;其次,客厅、餐厅、厨房之间相互打通,采用一体式设计,释放了空间,形成大气开放的会客厅;然后,在客厅、餐厅、厨房的墙面上运用不同材质来划分功能空间,让空间之间的层次变得更加立体有序。



材质为室内带来温暖触感的同时,亦是乐大姐团队设计老师匠心独运的诗意表现。鱼肚金岩板背景墙与木饰面色彩变化平缓且过渡自然,且与深灰色石材地面遥相呼应。皮革面料沙发极具质感,深浅色系之间衔接自如,增添视觉层次。电视柜转角处的弧形处理,让空间动线更加流动、柔和,彰显几何秩序之美。
因本案楼梯比较窄,仅78公分,比较压抑,故设计老师采用了与地面反差极大的白色石材作为踏步,拉开对比度,视觉上更显宽敞,不压抑。踏步上“步步生辉”的灯光设计,让空间有了无限延伸。而楼梯侧墙的木饰面+灯光处理,既弱化了沉闷的墙体,还起到修饰、提亮空间的作用。
餐厅 | Dining room

客餐厅一体的布局自然贯通,呈现互动递进的礼序感。长方形的白色大理石餐桌、不规则的吊灯与空间的深灰色基调形成鲜明的对比关系,层级张力由此而生。白色烤漆板、灰玻与深色石材构建的组合橱柜、餐边柜,增加了收纳空间。岛台的运用,加强了厨房与餐区互动的流畅度,烹饪与用餐场景融为一体,成了家里的另一个社交空间。


父母房 | Parent's room

父母房采用无主灯设计,没有往日的直接,带给居者的只有家的温暖。深浅不一的色阶层次,配合多元材质肌理,传递温馨舒适的家居格调。
主卧 | Master bedroom

二楼原本有三个房间,由于家里日常居住不需要那么多房间,所以就把二楼的一大一小两个房间合二为一,做成极致奢华的主卧套间形式,释放舒适度。

在卧室的设计上,乐大姐团队设计老师尽量将色彩、材质简化,用简洁精致的软装将实用与美观做到完美的平衡。空间主体色调为黑白灰,简洁大方,唯二的“色”是由绿植带来自然纯粹的“绿”和床头装饰上跳跃的“橙”,赋予了居室一种低调沉静而又柔和灵动的气质。



双台盆、淋浴区、落地浴缸和独立的马桶间,简洁、现代的空间因为尺寸的加持获得了极大的舒适体验。深色的柜体与白色的瓷砖搭配,也十分经典。

步入式衣帽间是男女主人雅致生活的惊鸿一瞥。
多功能柜体的组合满足了收纳的需求,同时兼具陈列的秩序与美感。橙色开放格的加入打破了沉闷,让人眼前一亮。柜体内部暗藏的灯带提升了使用便捷性,也让空间更加利落,光影交错。


女儿房 | Daughter's bedroom



女儿房在完成基本功能需求的前提下,设计老师更注重去营造一个安稳、丰富、舒适的情感空间,让孩子拥有丰盈美好的内心。床头背景打破常规思路,采用灰色木饰面与石材的拼接(石材不仅只局限于公共区域),整个空间现代感十足,没有太多女孩子的气息,这也是小主人的个人喜好。
室内飘窗、灰玻展示柜、石材书桌和抽屉穿插式床头柜的设计诠释了这个空间的少女气息,倚光而读,时光的宁静便刻在了书本里,空间随居住者而成长,却带来了一种恒久的安全感。

女儿房的卫生间延续了卧室的整体设计风格,台盆柜的颜色搭配了点莫兰迪脏脏粉,让空间看起来感觉温暖柔和。侧面利用柱子的空间做了高柜,满足日常收纳。
地下室楼原始户型图

地下室改造后户型图

一楼原始户型图

一楼改造后户型图

二楼原始户型图

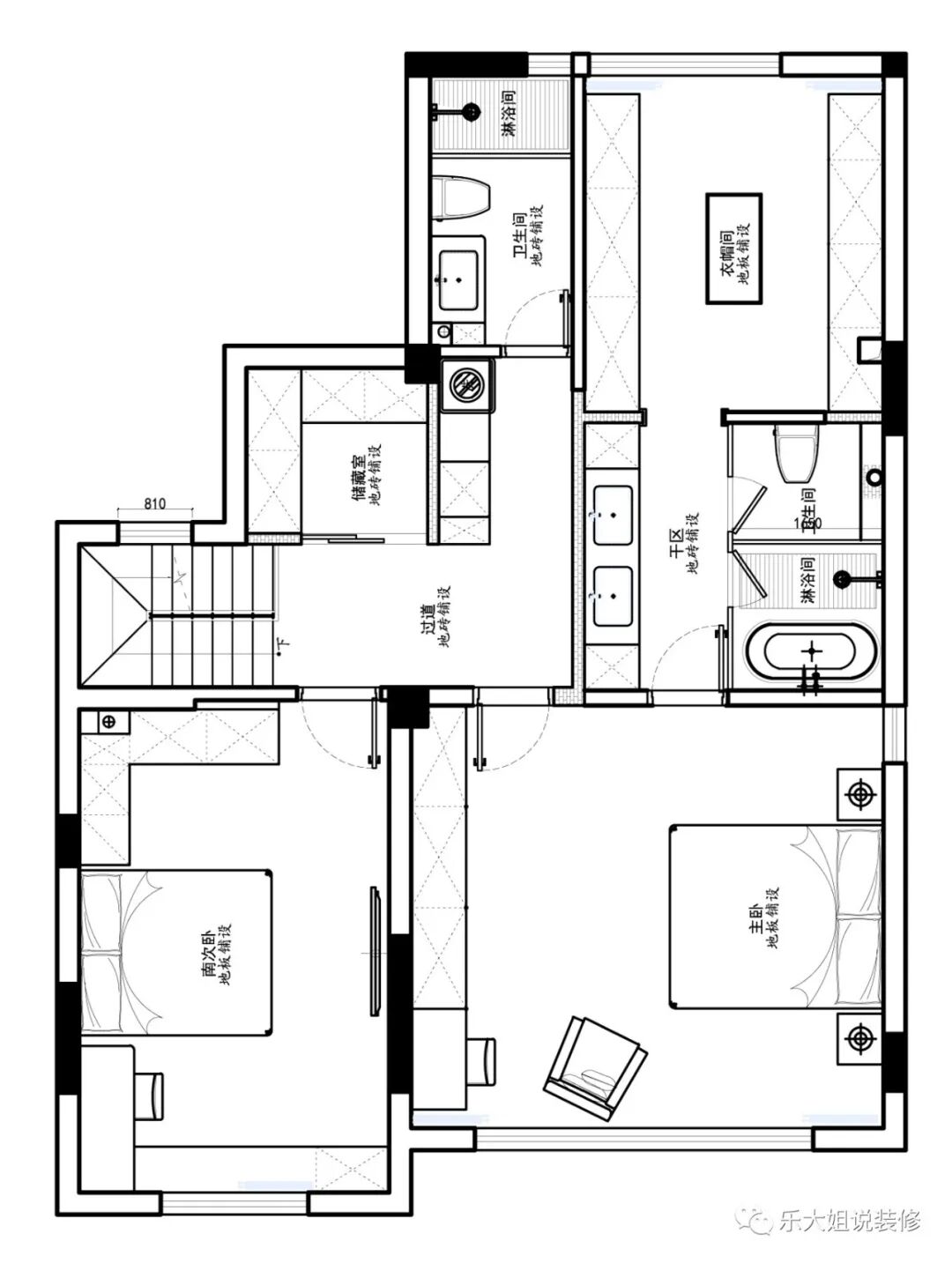
二楼改造后户型图
- 本案这套下叠墅原户型结构方正,功能布局比较合理,需要改造调整的区域不多。
- 因业主要求空间一定要宽敞,所以乐大姐团队设计老师将客厅、餐厅、厨房打通,让三者整体连成一条线,这样一来就实现了南北通透,视觉得到最大化延伸,整个一楼公共区大气宽敞。
- 为了增加实际使用空间,将客厅的挑高空间现浇掉,然后在楼上增加了主卧室。
- 因业主女儿希望卧室空间更大些,所以将女儿房原结构中的内卫(也是个暗卫)取消,改造成衣柜,扩大室内面积,同时把二楼原来的储藏室改成了卫生间,这样一来二楼就有两个卧室,两个卫生间,也算是互不干扰。
- 本案地下室的功能以实用为主,主要考虑做储物及书房。不过因一楼院子较小,业主不想再占用仅有的景观区,所以设计老师把地下室的露台改造成洗衣区,采光没有问题,也不影响楼上的美观。
点击左下方“阅读原文”,即可在线免费看本案例全景图(360°)。

如果您觉得乐大姐说的内容很有价值
欢迎分享转发至您的朋友圈
让更多的朋友都能轻松装修,自在生活!
当然,您也可以添加乐大姐微信号13382103377
或扫描下方的二维码
说出您的装修难题、让乐大姐为您答疑解惑
不管您是装修完工了
还是即将装修的
或者正在装修的
乐大姐一定知无不言,言无不尽