清水江南别墅整装

设计说·第164期 | 226㎡老房重装,打造摩登都市的优雅格调!

发布时间:2022-06-24

图片

乐大姐

FM104.8《家在苏州--乐大姐说装修》栏目特邀嘉宾,

赫博别墅设计创始人之一;

多次受邀成为院校家居的授课讲师;

98年至今,

为万千家庭打造幸福家居的同时,也相互成为了好朋友。

任何与装修有关的问题,欢迎您添加乐大姐微信:13382103377

乐大姐会为您做一对一解答。




每一套作品,都是私人定制



项目信息


项目地点:吴江明珠城罗马苑

项目面积:226㎡(192.3㎡+33.6㎡)

项目风格:现代简约

项目性质:全屋整装

项目状态:正在施工


业主需求


本案是一套老房子重装项目,房子之前装修后住了十多年,业主住的时候陆续发现一些之前规划不合理的地方,加上硬装软装设计方面也过时了,就想把之前的装修全部拆除重装。


根据业主的要求,乐大姐团队设计老师在不影响房屋承重结构的情况下,对本案一楼的客厅、餐厅,包括二楼书房门洞开门方向做了重新规划,改造后功能使用更加方便合理。


吴江明珠城罗马苑重装前VS重装后

效果呈现



餐厅  


图片


图片
一个绅士的气质,往往从他着装的硬朗线条和柔和的材质便能一探究竟,而一个房子的优雅常常融于克制的色彩和极净的形体中。

本案原始结构动线繁杂,空间划分零散不合理,乐大姐团队设计老师根据业主的家庭结构及需求,将原始空间中的诸多细节进行了拆分重组,化零为整,或丰富或简化,饱满结构。入户玄关和餐边柜在同一线面上相互交汇,相互延伸,以光化影,以色闯境,姿态千般


图片


图片

柴米油盐的充实、灯火阑珊的温暖,可抵世间遥不可及的向往。在这间纵深感极强的餐厅内,光影成为了自由穿梭的使者,当外界与内部交织一体,自然与艺术便打破质壁,立于此间。


厨房  


图片


图片

美好的设计让烹饪变成了一件惬意的事。厨房以黑白灰色调作为基底,干净又整洁,让空间有了更大的发挥余地。就连厨房垃圾桶位置,也是跟业主沟通后预留的,细节处见用心。


客厅  


图片


图片

图片

好的空间规划是在满足业主需求的基础上又保证了空间的美感,乐大姐团队设计老师把业主对生活品质的追求融于细节之中,处处用心,处处是风景。


客厅以现代感十足的黑灰白三色为主色调,结合自带氛围感的低矮沙发和造型独特的装饰画,整体搭配利落且和谐,既拥有张扬的既视感,又不乏别样的宁静美感。


图片


图片

图片

电视背景,选用了一块与地砖花纹类似的石材,它美得并不张扬,却带有一种与生俱来的气场,不经意间撩拨着所有人的眼球,将时尚高雅的姿态充分表达,创造更高品质的生活体验。背景墙内嵌的隔板展示柜,搭配射灯渲染,避免了造型的死板,凸显了现代效果,低调而自然顺畅。

楼梯作为点睛之笔,设计老师利用材质、纹理、光影打造微妙差异,为空间注入明亮的视觉感受,于细微处感知家的温度。

图片

图片


图片

考虑到楼上有足够的房间,将一楼的次卧改造成开放式书房,这样不仅拓展了使用功能,还增加了客厅的进深,大横厅的格局让空间更显大气。


图片


图片

空间需要阳光和温度,充裕的光影变化转呈于室内,记录着一天的变换。白沙朦胧遮掩下呈现出超凡脱俗的静谧氛围。


二楼次卧  


图片


图片


图片
次卧是儿子房,并不过分渲染冷暖的感受,而是用深度的灰铺陈出简洁大气而又不乏时尚个性的空间,以简洁的灯光营造舒适惬意的睡眠环境。

床头艺术挂画、黑玻材质的衣柜和投影幕布具有强力的艺术感,呈现了当代设计的张力,摩登感十足。


图片


图片


次卧卫生间  


图片


图片
因次卫通往马桶区的过道比较狭窄,阳角凸出,故设计老师将相邻的台盆柜和墙体都改为斜面处理,释放出部分空间,更加人性化。

图片


二楼主卧  


图片


图片

卧室采光条件优越,大露台丰富了光线入室角度,空间中的温暖氛围不言自明。


床头背景沿袭客餐厅的木饰面,疏密有致的线条搭配米灰色硬包来跳色,营造出安静且精致的适睡氛围。垂挂的金属吊灯向任意方向散发浪漫的光晕,梦境的大门就隐匿在指尖的触碰中。


图片


图片


主卧卫生间  


图片


图片
主卫,通铺灰色大理石砖,营造视觉上的整体感。黑灰色壁挂式盥洗台搭配发光镜面,轻松解决卫生死角问题,打造时尚优雅的卫浴空间。淋浴房地面采用大理石做拉槽,以防洗澡时跌倒。

图片


设计方案


图片
一楼原始户型图
图片
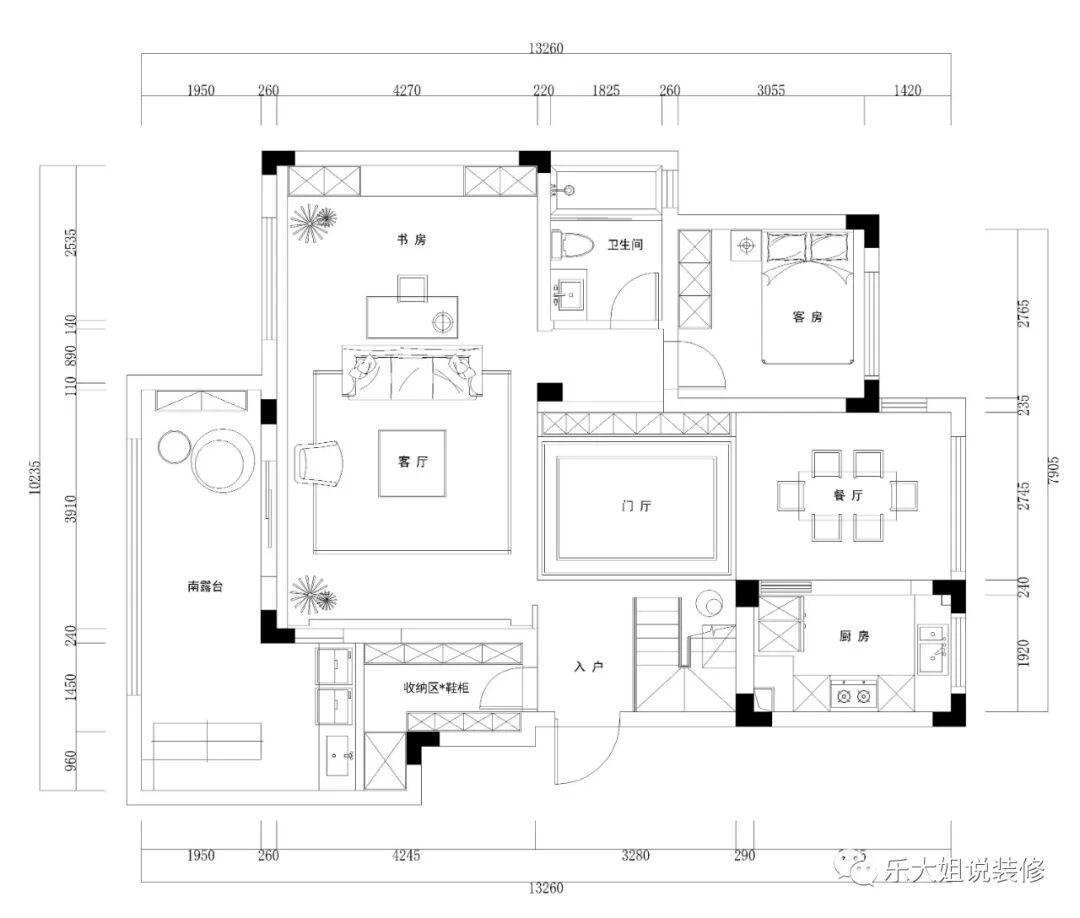
一楼改造后户型图
图片
二楼原始户型图

图片

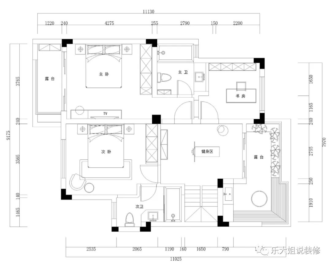
二楼改造后户型图

  • 本案原装修入户没有独立的门厅,不够正气,重装后设计了单独的门厅,并做了一整排的玄关柜,既实用又美观大方。

  • 乐大姐团队设计老师将原户型中进门处南侧的暗室,改造成衣帽间,最大化地利用了空间。

  • 考虑到业主只需要三房,故将一楼南侧的客房与客厅打通,改造成一个大横厅的结构,整个空间显得大气通透。

  • 将二楼的上楼平台改造成健身区,并用玻璃移门隔离出日常可以用来休闲放松的露台,从而丰富了家居的功能空间。

  • 考虑到空间的最大化利用,将主卧北侧的空间单独隔离出来,打造成独立书房,以满足业主一家人对学习办公的需求。

  • 为了避免次卧卫生间的门正对着床的尴尬,将次卫原有的门封掉,在靠次卧进门的位置重开了个门,不过这样一来卫生间内部的过道就有了两个阳角,显得比较逼仄,设计老师通过斜切设计来加以改善。


设计方案


图片

点击左下方“阅读原文”,即可在线免费看本案例全景图(360°)。

https://vr.justeasy.cn/view/61fa463169q1o423-1633618281.html

图片


如果您觉得乐大姐说的内容很有价值

欢迎分享转发至您的朋友圈

让更多的朋友都能轻松装修,自在生活!


当然,您也可以添加乐大姐微信号13382103377

或扫描下方的二维码

说出您的装修难题、让乐大姐为您答疑解惑

不管您是装修完工了

还是即将装修的

或者正在装修的

乐大姐一定知无不言,言无不尽


图片

图片
图片

图片
在看是一种鼓励|分享是最好支持
点击右下角 写留言 发表你的心声
我们期待与您的交流 

长按二维码添加乐大姐微信号

装修不烦 大姐来谈