发布时间:2022-07-14
乐大姐
FM104.8《家在苏州--乐大姐说装修》栏目特邀嘉宾,
赫博别墅设计创始人之一;
多次受邀成为院校家居的授课讲师;
98年至今,
为万千家庭打造幸福家居的同时,也相互成为了好朋友。
任何与装修有关的问题,欢迎您添加乐大姐微信:13382103377,
乐大姐会为您做一对一解答。
优秀的设计,
也要靠优秀的交付来实现。
从设计蓝图到家的最终落成,
从畅想家的样子到纵享家居生活,
离不开的是客户的信任与配合,
离不开的是交付团队的辛勤付出。
完美的交付,
就是最好的自宣!
/
实景赏析 看别人的家 装自己的生活
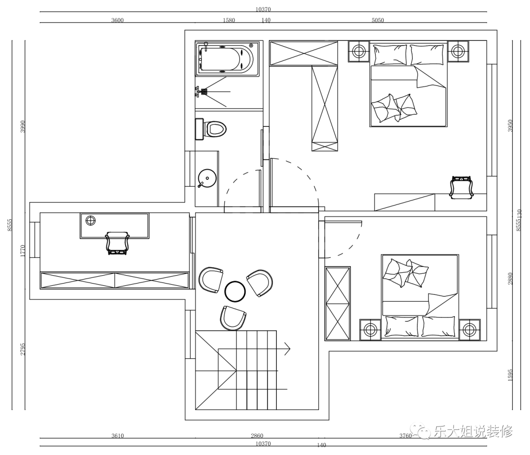
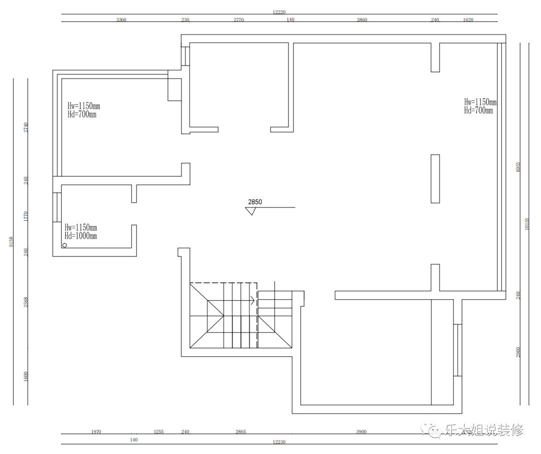
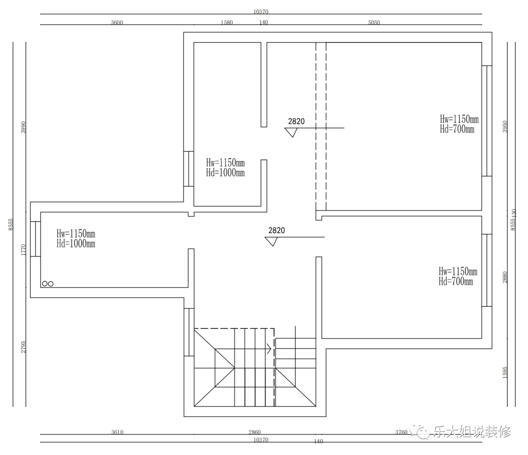
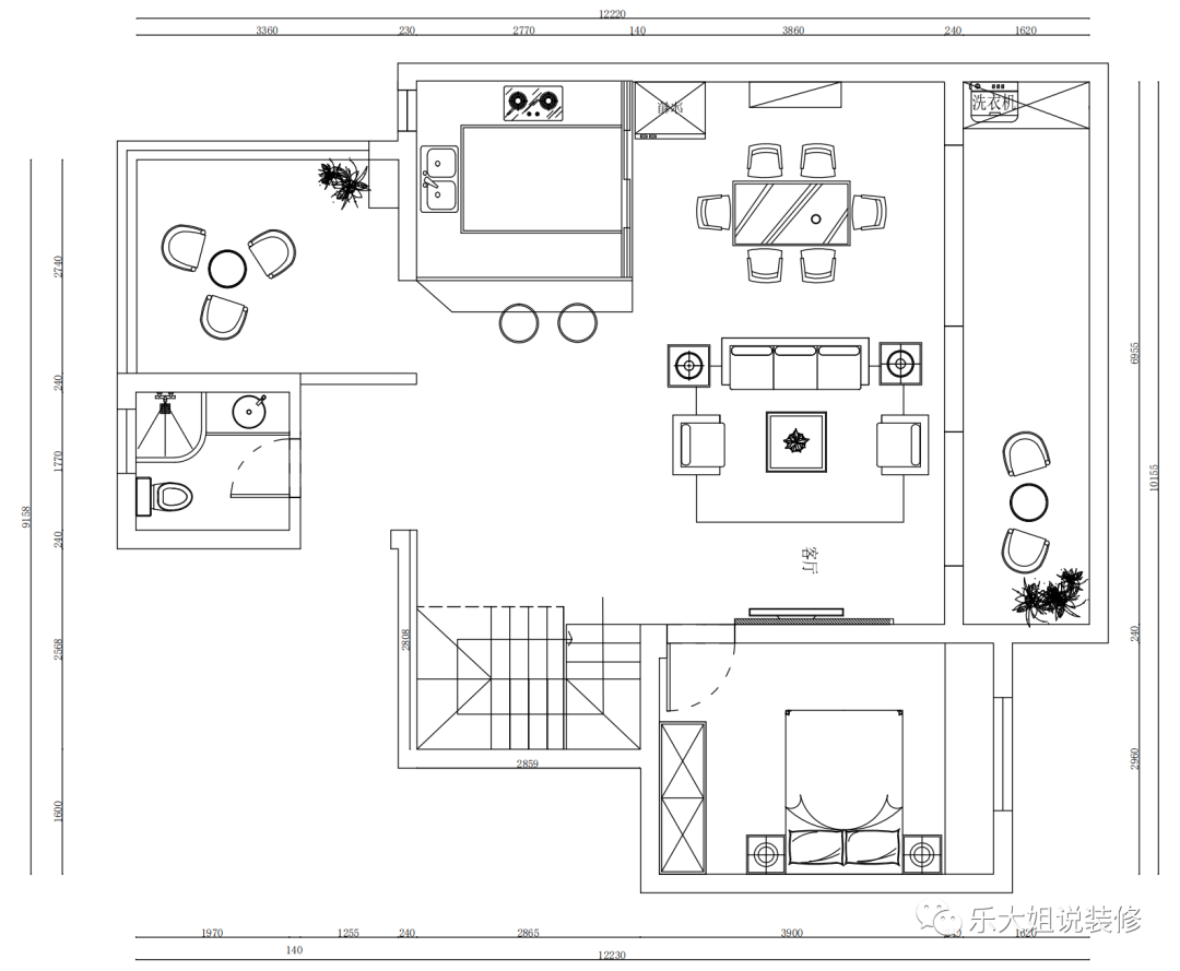
项目地点:张家港中南樾府
项目面积:185㎡
项目风格:现代轻奢
项目性质:全屋整装
项目状态:已交付
~


































设计全景图 点击左下方“阅读原文”,即可在线免费看本案例全景图(360°)。 / 业主说
满意度100%
▲ 乐大姐团队&中南樾府业主一家合影留念
在和乐大姐、苏州电视台《第一时间》拍摄老师等聊天的过程中,女业主俞女士表示这次的装修经历对她来说既有些意料之中,也有些意料之外!之所以这么说是因为当初找乐大姐团队就是为了装修过程少操心,为了最终成品效果好,最后这些目标都实现了,自己很满意很开心!
但是,后来经过乐大姐团队的重新规划设计,自己家一楼原本只有40多平米的公共空间,看上去却有七八十平米的敞亮感,空间完全被打开了,几乎改到了极致,特别是厨房间的全通透设计,让做饭都是在享受生活!亲戚朋友邻居们看了也都说装修得特别好,改造得很巧妙!
▲ 乐大姐正在拍摄苏州电视台《第一时间》解析装修知识点
▲ 乐大姐正在拍摄苏州电视台《第一时间》解析装修知识点
▲ 中南樾府业主一家设宴宴请乐大姐团队贺竣工之喜
业主一家三代5口人都参加了当天的竣工酒(男业主下班晚,晚到了一会),特别巧的是当天正好是男业主的生日,乐大姐团队跟业主一家人一起向他送上美好的祝愿。
再次感恩业主
对乐大姐团队的信赖与认可
您的新家落成
我们来见证幸福、兑现承诺。
如果您觉得乐大姐说的内容很有价值
欢迎分享转发至您的朋友圈
让更多的朋友都能轻松装修,自在生活!
当然,您也可以添加乐大姐微信号13382103377
或扫描下方的二维码
说出您的装修难题、让乐大姐为您答疑解惑
不管您是装修完工了
还是即将装修的
或者正在装修的
乐大姐一定知无不言,言无不尽
长按二维码添加乐大姐微信号
装修不烦 大姐来谈