清水江南别墅整装

设计说·第166期 | 133㎡美式轻奢风,人人都爱的浪漫之家!

发布时间:2022-07-14

图片

乐大姐

FM104.8《家在苏州--乐大姐说装修》栏目特邀嘉宾,

赫博别墅设计创始人之一;

多次受邀成为院校家居的授课讲师;

98年至今,

为万千家庭打造幸福家居的同时,也相互成为了好朋友。

任何与装修有关的问题,欢迎您添加乐大姐微信:13382103377

乐大姐会为您做一对一解答。


项目地点:阳光天地翡丽湾

项目面积:133㎡
项目风格:美式轻奢
项目性质:全屋整装
项目状态:正在施工


每一套作品,都是私人定制


业主需求

The owner needs


本案是套湖景房,周边环境、配套都很不错,业主几年前买来做养老房用的,放在手上一直没有装修,现在孩子们都大了,就想好好装修下

业主希望空间大气,有奢华感,软装色调喜欢美式的稳重,家具上偏重现代的舒适,所以乐大姐团队为他们量身定制了这套美式轻奢风格。

玄关

Entrance


图片

步入室内,映入眼帘的是

优雅的雾霾灰玄关柜,

满足日常收纳的同时,

变换出时尚摩登家的初印象

让居住者放下疲惫,

感受归家的愉悦。


客厅

Living room+Dining room


图片


图片


图片

本案客厅
用线框木饰面、定制护墙板、岩板和浅色墙布的叠加,
做出了美式的对称美和层次感,
从而解决了客厅进深小的问题。
豁然开朗的客厅,
时尚的设计风格,材质的协调,
高级感十足。


图片


图片

色彩是空间醒脑的香氛,
温润的雾霾灰延展视觉深度,
清澈的白色奠定舒盈视感,
活力橙如投石入湖,
激荡客厅鲜活气场。


餐厅

Dining room


图片


图片

乐大姐团队设计老师的巧妙布局下,
不仅餐厅的进深得到了延伸,
还增加了餐边柜的功能。
靠窗定制的餐边柜,
加入灰玻、灯带等现代元素,
显得大方而又高级,
与大理石餐桌一起,
打造精致、浪漫的用餐空间。

主卧

Master room


图片


图片
主卧空间的设计,
延续了整体风格,
以浅灰、奶咖为主,
搭配女主人喜欢的橙色,
提供一个宁静舒适浪漫的睡眠环境,
身心都得以放松。
带着软包靠背的床,给卧室增添一缕优雅感。



图片

图片


从顶到地的衣柜线条,
与摇曳的水晶灯一样垂直向下,
和极具包裹感的软包靠背床一起,
赋予美式轻奢空间特有的雅致情怀。

图片


图片


图片
主卫空间以白色为主,
瓷砖上的花纹与线条让墙面不至于太单调。
定制柜体带有储物格,
保证了日常使用时的舒适度。
业主选择浴缸代替淋浴,
希望在家也能有一个很好的泡澡时光。

图片


图片


女孩房

Girl's room


图片


图片
大女儿房整体色调
以白色、灰色打底,粉色做出视觉跳色,
流畅的石膏线条勾勒轮廓,
气质与品味缓缓流露。
虽然大女儿房空间不是很大,
但还是单独做了阅读区域,
后期也可以作为梳妆台使用。


图片


平面方案

Flat plan


图片
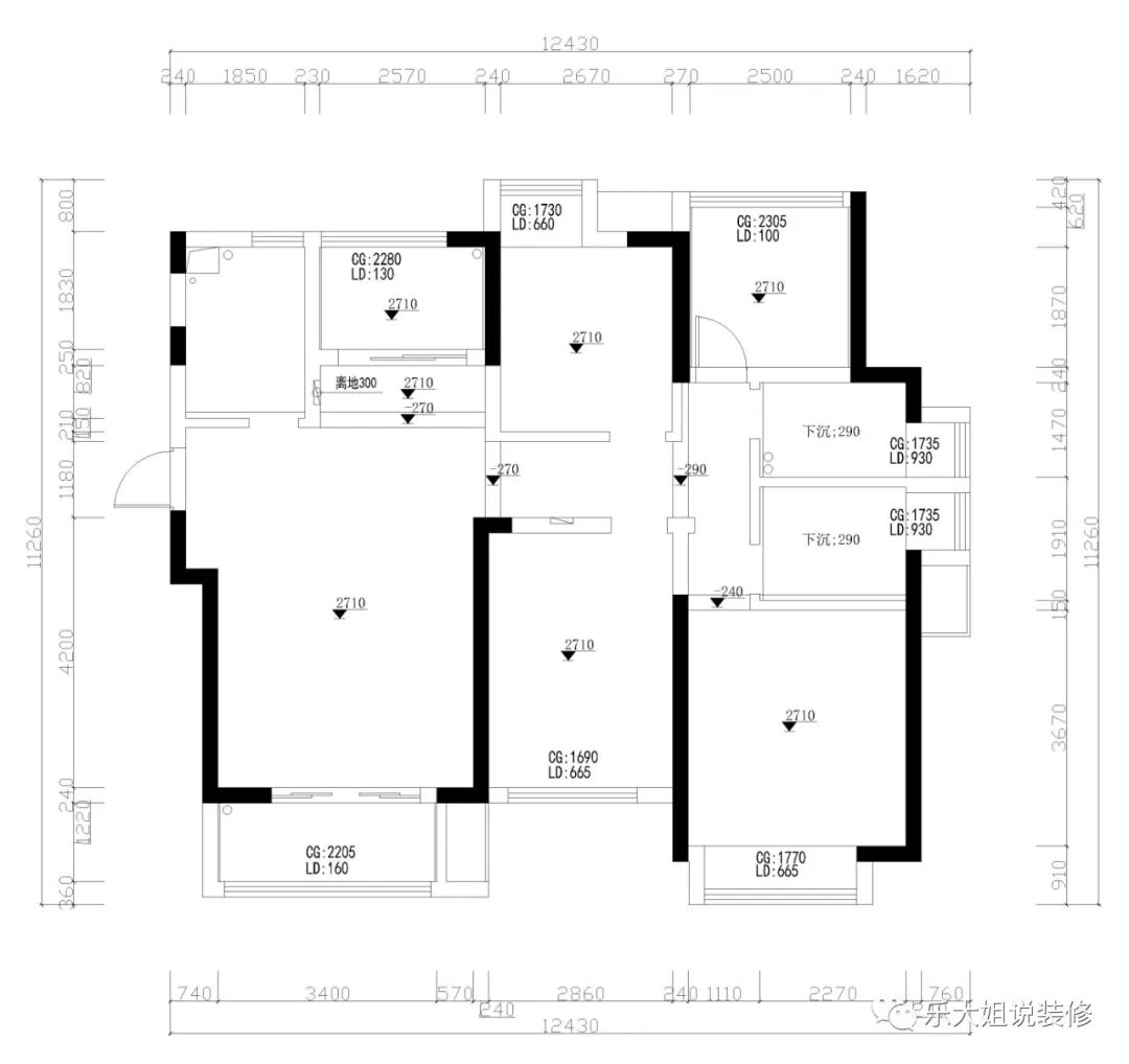
原始户型图

图片

改造后户型图

  • 因本案常住人口是业主夫妻两和两个女儿,大女儿目前在读大学,小女儿在读初中,所以功能方面保留了四房两厅,三个房间+一个多功能书房。
  • 本案改动最多的区域是客餐厅,因为客餐厅的进深不够,显得十分拥挤,所以乐大姐团队设计老师在确认北阳台的墙体为非承重墙体后,将其纳入到餐厅,并把南阳台的移门拆除,这样整个空间南北通透,不再拥挤。


全景图

Panorama


图片

点击左下方“阅读原文”,即可在线免费看本案例全景图(360°)。


图片


如果您觉得乐大姐说的内容很有价值

欢迎分享转发至您的朋友圈

让更多的朋友都能轻松装修,自在生活!


当然,您也可以添加乐大姐微信号13382103377

或扫描下方的二维码

说出您的装修难题、让乐大姐为您答疑解惑

不管您是装修完工了

还是即将装修的

或者正在装修的

乐大姐一定知无不言,言无不尽


图片

图片


图片
在看是一种鼓励|分享是最好支持
点击右下角 写留言 发表你的心声
我们期待与您的交流 


长按二维码添加乐大姐微信号

装修不烦 大姐来谈