清水江南别墅整装

设计说·第167期 | 全案时代,420㎡联排别墅的正确打开方式!

发布时间:2022-07-14

图片

乐大姐

FM104.8《家在苏州--乐大姐说装修》栏目特邀嘉宾,

赫博别墅设计创始人之一;

多次受邀成为院校家居的授课讲师;

98年至今,

为万千家庭打造幸福家居的同时,也相互成为了好朋友。

任何与装修有关的问题,欢迎您添加乐大姐微信:13382103377

乐大姐会为您做一对一解答。


项目地点:旭辉壹号院(联排)

项目面积:420㎡
项目风格:现代简约
项目性质:全屋整装
项目状态:正在施工


每一套作品,都是私人定制


业主需求

The owner needs


随着时代的发展,越来越多的别墅业主不再局限于传统的大宅标准化设计,开始追求空间的质感和精神呈现。而所谓的“大宅设计”,也不仅仅关于设计。空间体量的变化、生活功能空间的延展,都在考验着设计师的设计书法和思维方式。


本案这套420㎡的联排别墅,业主买来是准备一家人以后长期居住的,所以对居住的品质要求很高,但因业主夫妻两工作都很忙,没空管装修,就把房子托付给了一个朋友装修,可是装修没多久就发现了很多问题(比如说格局不合理、窗户打不开、吊顶太低等等,根本没有联排别墅的大气感,还多次要加价),业主十分果断地选择了及时止损,然后直接找了他们关注了很久的、朋友推荐的乐大姐团队!那么,今天就来看看乐大姐团队是如何实现业主的理想大宅的呢?!


效果呈现

Action rendering


客厅  |  Living room


图片


图片


图片

奥斯特洛夫斯基曾说:幸福,就在于创造新的生活。而在某种意义上,新的生活有赖于一个舒适的空间,从功能、美学、体验上都能满足人的需求。


本案地上一层保留了原有的大横厅格局,并采用了开放式的布局,客厅与餐厅、餐厅与厨房两两互通,纵向延展,整体空间显得十分阔朗大气,同时也便于家人间的交流,营造和谐的居家氛围。


图片


图片


图片

设计的力量,蕴藏在巧思中,表露在细节里。本案的入户门正对着客厅的侧墙,即这面墙就相当于入户玄关大背景,那么怎样设计才能既大气又不与整个客厅环境冲突呢?


乐大姐团队设计老师用同色的木饰面与电视背景格栅相连,并用与电视背景大理石颜色相近的硬包作为主背景,搭配拱形建筑挂画和网红的线性灯,将线与面的装饰美学诠释得淋漓尽致,多种材质的穿插增加了空间的丰富性,无处不体现着业主的非凡品味。


图片


图片


图片
家具的摆布有种简约、随性的格调,大而软的绒布沙发与落地窗相对,带来绝佳的采光和庭院景色,同时也留下更多的位置给自由的风,温暖的光,以及一切大自然的访客。

图片


图片

质绸缎的抱枕,优雅的墨绿色单椅,编织纹理质感的地毯,头顶泛着金色光芒的几何形吊灯,为素雅的空间增添了几分贵族气息。阳光穿过薄纱倾注暖意,绿植正在散发清新的气味,生活如此美好。


餐厅  |  Dining room


图片


图片

图片
餐厅作为一层开放式空间的中心,串联着客厅、中西厨、楼梯等功能区,弧线的规划让空间变得稳定又灵动,同时也体现了中国人骨子里“团圆就餐”的温度与礼序。


图片


图片


图片

西厨与餐厅在延续客厅优雅的米灰色基调之外,用棕色、橙色唤醒视觉生机,冷暖和谐。大理石圆桌、布艺餐椅与金色的灯饰,点亮空间,三餐四季也要充满格调。


白色的中岛与吧台,既可与家人一起体验日常备餐的幸福,又可独自享受一杯咖啡、一杯红酒,生活自由而随性。


厨房  |  Kitchen


图片


图片
厨房采用U型布局,将空间利用率发挥到极致,大面积铺陈白色、浅灰色,使厨房看起来干净敞亮。烤箱蒸箱皆被嵌在柜体之中,保持空间的统一性,空间显得简约又有功能感。


图片


图片


男孩房  |  Boy's bedroom


图片


图片


图片

男孩房的设计,注入了一些富有跃动力的元素。

床头一侧选择几何形状的吊灯,床品融入千鸟格的元素,符合少年心性的活力感呼之欲出。打破常规的弧形木饰面面板与浅灰色硬包拼接而成的床头背景墙,拉伸了房间视觉上的宽度;特地保留下来的床头小窗,增加了室内的采光;中间的抽象风挂画,赋予空间一种简约又不失艺术感的格调。 


图片


图片

床尾处的组合衣柜与书桌相连,高大的展示柜,纵横交错出丰富的空间层次,却不显杂乱。开放格摆放着居者喜爱的各类物件儿,它们是关于流逝时光的记录和美好重现,空间的诗意由此而生。
 

女孩房  | Girl's bedroom


图片


图片

图片

女儿房不同于其他空间,在原有的现代简约基调上增添了美式元素,风格鲜明的石膏线条、设置巧妙的吊顶造型(利用吊顶造型将原次卧顶面横梁“隐藏了起来”)、拼色与几何相融合的床头装饰、造型精巧的吊灯、浪漫的钢琴,细节之处体现对少女梦想的呵护。


图片


图片

背靠背开放式衣帽间的设计,轻松地将内卫与卧室空间相隔开来,既充分利用了原独立衣帽间墙体所浪费的空间,又使得整体更显开阔。

主卧  |  Master bedroom    


图片


图片


图片
三楼主卧套房内设衣帽间、书房、主卫、洗衣房等,各功能区呈递进式布局。在氛围上,整体色调以灰咖色、原木色为主,优雅蓝与活力橙平衡两者的同时又强调着自身的个性,它们共同营造出时尚而不浮躁,典雅却不乏浪漫的感觉。


图片


图片
乐大姐团队设计老师在每一处细节中,用多维的生活体验让居住者去感知生活的舒适。

主卧电视背景采用大理石与隐形门相结合的设计,巧妙地将小书房和独立衣帽间的“门”隐藏其中,这样一来,整个空间看上去非常地大气规整。而主卧内卫,则是用衣柜巧妙遮挡,从而避免卫生间门正对着床的尴尬。


图片


图片


图片

三楼书房顶面横梁的处理别处心裁,设计老师将横梁、吊顶造型与空调内机相结合,并在两侧增加灯带,从而从视觉上打破了平顶的单调感,拉升了层高,增加了顶面的开阔性。

图片


图片


图片
石材的硬朗质感和功能空间的合理布局,让卫浴空间显得干净利落、明快洗练。浴缸区域增加台阶,使用更方便、更安全。马桶上面增加大理石板,方便放置日常用品,智能浴室镜带来未来家居之享。 

图片


图片


平面方案

Flat Plan


图片
地下二层原始户型图
图片
地下二层改造后户型图
图片
地下一层原始户型图
图片
地下一层改造后户型图
图片
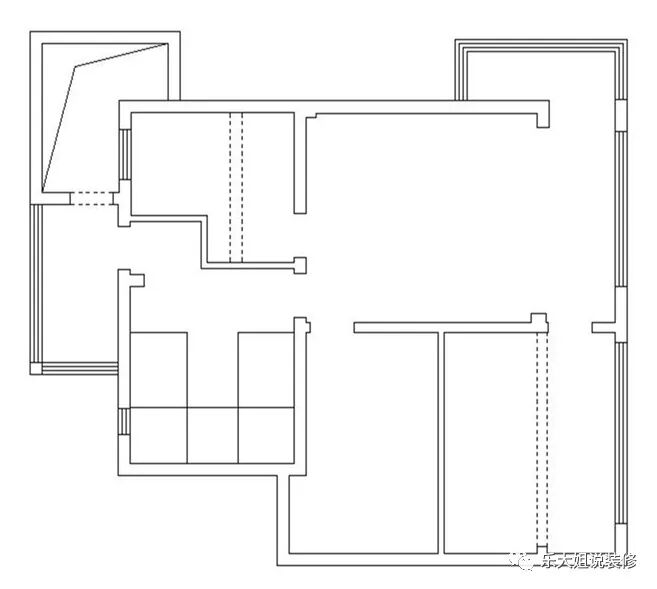
一层原始户型图
图片
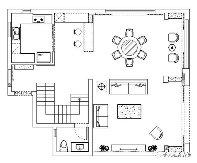
一层改造后户型图
图片
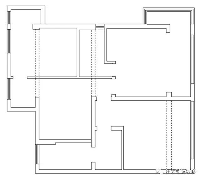
二层原始户型图
图片
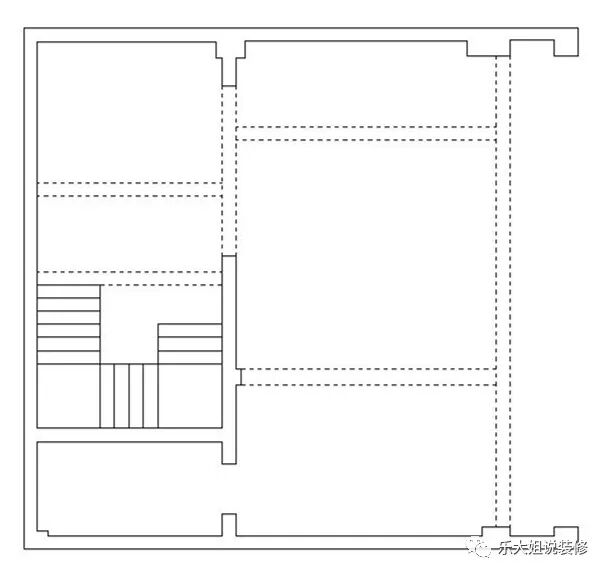
二层改造后户型图
图片
三层原始户型图

图片

三层改造后户型图

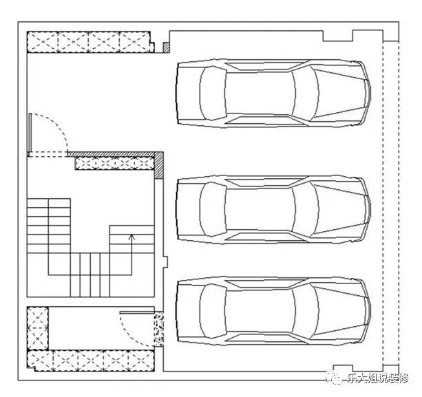
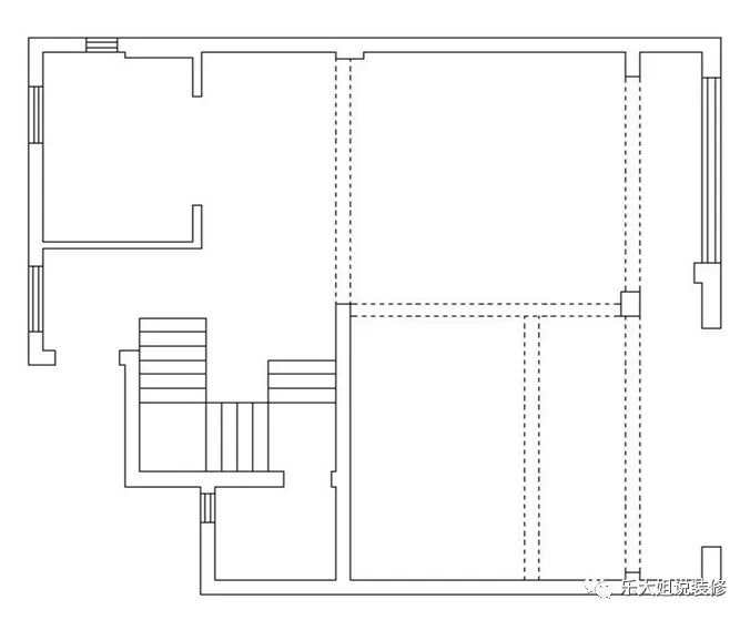
  • 本案是套地下两层、地上三层的联排别墅,不仅面积大,格局的包容度、可调整性也极高,所以乐大姐团队根据业主的需求对别墅的空间布局做了较多的优化和调整。

  • 本案的地下二层,属于地下车库,南边地面做环氧地平;北面楼梯位置新砌墙体做防盗门,增加安全性;东侧墙体做铝板用来放置一些杂物;西面储藏间改做酒窖,并增加设备间,车位附近墙体预留电车充电桩。

  • 本案的地下一层,由于业主本身工作的原因,需要预留了一个比较大的空间用作直播带货,所以设计老师在东侧的大横厅安置了一个临时的乒乓球桌(可折叠)和一处小茶台,以方便短时间内腾出空间。西侧则规划了麻将室和储物柜。

  • 本案作为一个有大横厅联排别墅(一层),如何将这个横厅的效果做出来就非常重要了,首先顶面部分尽量做到不影响层高,原中央空调内机放置位置在客厅,中间做了下出下回,这样就会显得压抑,所以设计老师将空调内机改到南侧区域,然后把客厅中间位置的吊顶做了拉高处理,并增加了灯带、挂边等丰富层次性。其次,厨房区域比较大,南北开见足,就规划了中西厨以增加空间实用性与画面饱和度。其三,拆除餐厅东面非承重结构墙体,然后开了一个大大的落地窗,从而增加了餐厅区域的采光,还可以欣赏到东面院子的风景。

  • 原有二层结构划分比较单一,一个房间配置一个卫生间,但却没有实际考虑到房间的尺寸大小,也没有考虑卧室与阳台中间梁的处理,经过调整后,东南主卧取消了一个卫生间,改到了公共区域,然后把东侧小窗纳入到房间里来,衣柜书桌组合放到床尾去,这样整个东南卧室的格局就会显得非常开阔通透;其次,将西南卧室的独立式衣帽间改为开放式衣帽间,用背靠背的柜子分割内卫与卧室,既利用了原有墙体的厚度,又开阔了整个空间。

  • 本案三楼原有主卧的内卫拐角比较多,设计老师通过对过道区域部分空间进行现浇,将内卫区域的墙体拉直,然后通过主卧侧面衣柜将卫生间的门隐藏起来,既美观又实用。其次,主卧西侧的衣帽间与书房是通过电视背景墙的隐形门联通的,保证通过不受任何阻碍的同时,也更整体。北侧还预留了洗衣房,方便业主日常使用。


全景图

Panorama


图片

点击左下方“阅读原文”,即可在线免费看本案例全景图(360°)。


图片

如果您觉得乐大姐说的内容很有价值

欢迎分享转发至您的朋友圈

让更多的朋友都能轻松装修,自在生活!


当然,您也可以添加乐大姐微信号13382103377

或扫描下方的二维码

说出您的装修难题、让乐大姐为您答疑解惑

不管您是装修完工了

还是即将装修的

或者正在装修的

乐大姐一定知无不言,言无不尽


图片

图片
图片

图片
在看是一种鼓励|分享是最好支持
点击右下角 写留言 发表你的心声
我们期待与您的交流 


长按二维码添加乐大姐微信号

装修不烦 大姐来谈