乐大姐
FM104.8《家在苏州--乐大姐说装修》栏目特邀嘉宾,
赫博别墅设计创始人之一;
多次受邀成为院校家居的授课讲师;
98年至今,
为万千家庭打造幸福家居的同时,也相互成为了好朋友。
任何与装修有关的问题,欢迎您添加乐大姐微信:13382103377,
乐大姐会为您做一对一解答。
项目地点:新区泉山39°(双拼)
项目面积:334.8㎡+地下室83.3㎡
项目风格:新中式
项目性质:全屋整装
项目状态:正在施工
本案是套改善型住宅,需要满足业主一家三代同堂5口人居住,所以设计时业主要求既要有他们自己喜欢的中式风格,也要加入年轻人喜欢的现代元素,另外业主还想把之前老房子里的红木家具带过去,那么这样一套双拼别墅乐大姐团队该如何设计才能实现业主的所有需求呢?
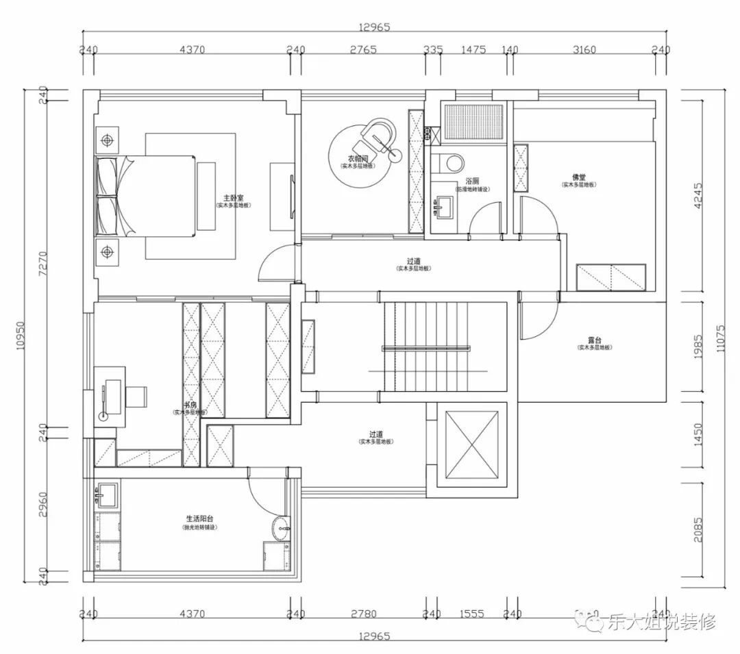
南入户玄关处的玄关柜由来于“方中有圆”的古典设计智慧,取“开门见圆,合家团圆”之意,在规则之中寻求多变,既蕴藏处事的哲学,又寄予诚挚的希冀。




因景互借,移步换景。
因本案的客厅与玄关之间没有明确的功能分区,沙发的位置不好摆放,所以乐大姐团队设计老师运用大理石、花格、玻璃等材质在两者之间做了一个镂空隔断,这样两个空间之间既彼此独立,又可以通过圆形门洞、花格互相借景,圆中有景,景中生情,将中式美学内敛的一面表现得淋漓尽致,令空间仿佛随着这份自然的气息无限展开。
缓缓步入客厅,铺面而来的是气势磅礴、变化莫测的山水画卷,设计老师从中国古画的气韵中寻求当代的设计语言,巧妙地将山水的意境与诉求铺陈在空间里,让置身其中的业主感受到千里江山的情境体验。

“苍翠”“枯枝”“祥云”“朱砂红”“黛蓝”等不同的元素在空间中随意切换,将新中式的人文气质与业主家的老红木家具巧妙地结合在一起,不但不突兀,还营造出“画中有景,景中有境”的丰富层次,给人以视觉上的惊喜。


在中国,“圆”无处不在,早已成为传统东方文化的一种象征。餐厅的圆形吊顶与桌面,除了代表着“团圆”的美好祈愿外,更是居住者对于生活的理解,是圆融处世的人生态度。
深色实木面板与玻璃门构建的餐边柜,增加了收纳空间。象征中国色的红落于四周留白的画幅中,张力由此而生。


与一般的厨房不同,本案厨房的布局采用了中西厨相结合的概念,回归传统U形,同时满足不同家庭成员的烹饪习惯。深色的橱柜搭配浅灰色的墙砖,既沉稳大气,又明亮宽敞。多功能一体的设计,简约而又不失创造力以及对实际需求的细致考虑。



色彩的世界有着多重意义,它不仅仅是一种表层的润色和修饰,也代表着长辈对待生活的认真态度。茶香源远,安宁沁神,悠扬境地,返璞归真;饮一啖茶,岁月静好,悠然自得。




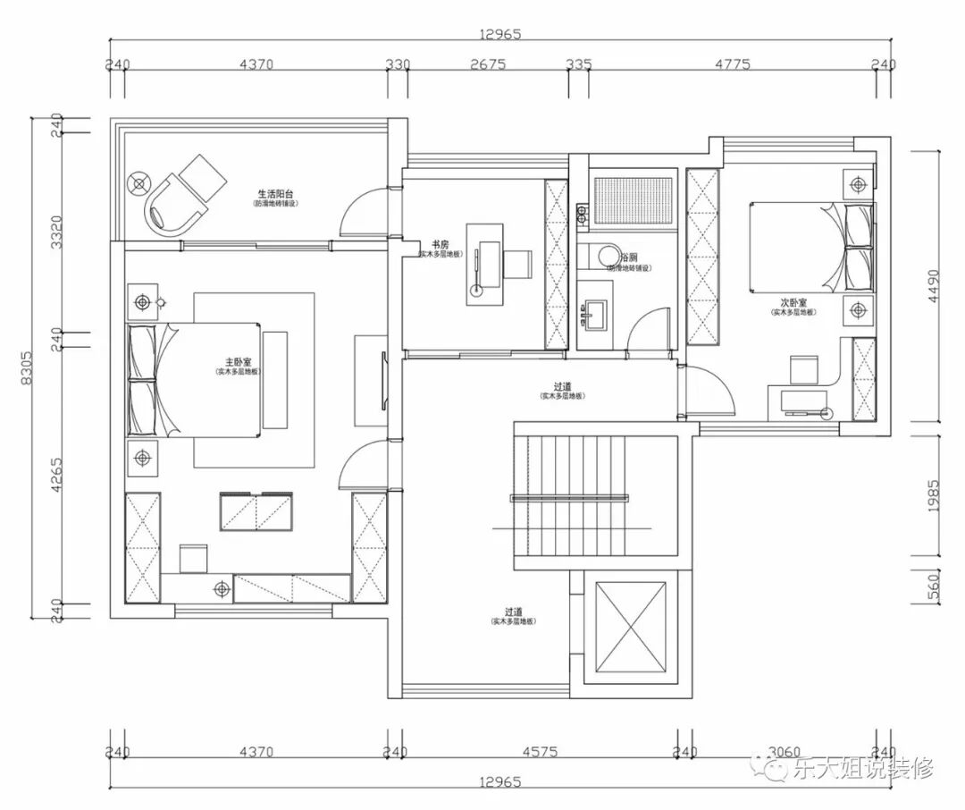
二楼主卧,是业主夫妻两的休憩空间,所以整体延续室内空间的清雅韵味。在这里,设计老师利用层级背景的视觉特性,以深色硬包打底,撷取山水之意作壁画,并叠加柔和的灯光,起伏之间不仅扩大了空间的视觉延伸感,还给人一种“仿若置身山水之间”的审美感受,韵味悠长。



弧形吊顶是二楼主卧空间的点睛之笔,原顶面上有一根不论怎么规划布局都无法错开的梁,故设计时用弧形造型将其包宽隐藏,然后两侧吊顶上升,这样不仅让空间有一个舒适的高度,且弧形吊顶更具柔情与浪漫,让空间不再显得闷。


二楼卫生间整个空间是由高级灰托底的幅面,空间感更开阔,观感更纯粹简洁。采用悬空浴室柜,没有卫生死角,精致与整洁兼容并蓄。


拾级而上,便是三楼。三楼因是年轻人(业主儿子)居住的,所以整体设计以现代简约为主。整个主卧空间,格调与质感并存,经典的黑+白+灰的格调配色,木饰+石材+皮革+玻璃的质感用材,在灯光的渲染下拉伸出空间的纵深感,实现张力与美感同时逆袭,高定空间的独属艺术气息尽显。

因主卧套间借用了阳台的部分空间,而原阳台移门顶上有一根大梁,故将梁的位置整体拉平,并与原主卧的顶面之间做了一个弧形处理,这样既有设计感,又轻松了化解两个顶面之间的落差。

半开放式衣帽间充分利用柜体比例与灰色夹丝玻璃打造最佳隔断,既实现了区域的划分,又不影响采光和通风,扩大了空间的视觉感受,在掩与不掩之间自成风景。其间开放格设计在注重便利性的同时,增加视觉变化,令层次分明。

书房与卧室相邻,因此,乐大姐团队设计老师在这里利用材质的不同肌理串联相似的色彩,地板、书桌、书柜、窗帘等,黑白灰色调循序渐变,深浅有度。两面长虹玻璃门窗的运用,带来最佳动线的同时,也最大程度地保证了空间的采光通风,为私密的氛围加持。


三楼次卧几乎在以一种白描的方式叙事,柔和的米灰色,温润的木色,清雅的薄荷绿,设色十分清和淡泊,阳光透过窗户撒进房内,形成细腻温暖的空间。顶棚跌级式的吊顶设计,更显次序与条理。

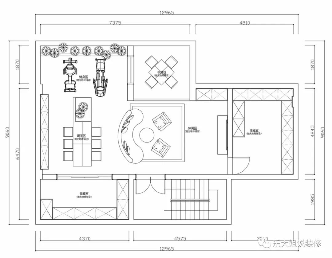
本案地下室以多样且丰富的形态匍匐于地面,金属、石材、木质、玻璃等材质的强烈对比引人置入艺术交叠的绝妙之境。多功能会客厅、品茗区、绿植区、健身区、棋牌室等一应俱全,满足了业主一家的多样性需求。
采光井引自然光线折射入室,光影婆娑中生活的诗意流泻其中。四周绿植与书籍藏品井然有序,明亮通透的空间里如同行走于户外白昼,让人身心舒畅,自然怡情。
- 本案是套双拼别墅,独门独院,通风、采光良好,不过内部结构相对来说比较零碎,所以乐大姐团队设计老师又对内部格局做了局部调整,以满足业主一家五口的居住需求。
- 本案地下室原结构比较琐碎,采光差,所以设计老师利用原有天井引光入室的同时,拆除不必要的墙体形成开放空间,并利用各种材质的特性让光线可以在空间中自由穿梭,从而打造了一个明亮宽敞通透的地下空间。
- 因本案餐厅面积比较小,故设计时将厨房的富裕空间让一部分给餐厅使用,另外,考虑业主到侧院去的频率比较低,将原餐厅通往侧院的移门砌成墙,然后靠墙做了一排U形的餐边柜来增加收纳,且为了不影响采光通风,在上方留有开窗。
- 本案三楼原主卧空间比较小,业主想要一个衣帽间的要求在原有结构上很难实现,所以设计老师将原阳台整体前移,从而增加了卧室面积。不过,主卧虽然借用了部分阳台的空间,但仍旧不宽敞,所以主卧衣帽间采用的是半开放式设计以便光线的流通。
点击左下方“阅读原文”,即可在线免费看本案例全景图(360°)。

如果您觉得乐大姐说的内容很有价值
欢迎分享转发至您的朋友圈
让更多的朋友都能轻松装修,自在生活!
当然,您也可以添加乐大姐微信号13382103377
或扫描下方的二维码
说出您的装修难题、让乐大姐为您答疑解惑
不管您是装修完工了
还是即将装修的
或者正在装修的
乐大姐一定知无不言,言无不尽