乐大姐
FM104.8《家在苏州--乐大姐说装修》栏目特邀嘉宾,
赫博别墅设计创始人之一;
多次受邀成为院校家居的授课讲师;
98年至今,
为万千家庭打造幸福家居的同时,也相互成为了好朋友。
任何与装修有关的问题,欢迎您添加乐大姐微信:13382103377,
乐大姐会为您做一对一解答。
项目地点:常熟湖语尚院(联排)
每一套作品,都是私人定制
本案这套联排别墅是父母为孩子准备的婚房,位于常熟尚湖风景区边上,周边环境优美,交通便利,十分宜居。因是婚房,所以业主希望有一定的奢华感,要有生活品质的考究,最终选定了时尚大气的意式轻奢风。业主夫妻两之前也装修过几套房子,有自建别墅,也有大平层,都是欧式风格,结果装了没两年就不想住了,觉得过时了。所以,这次特地从常熟找过来,将所有装修事宜都全权托付给乐大姐团队,包括一幅挂画、一双拖鞋,都要求一比一还原效果图。客厅 | Living room


风格是独一无二的,这种独特是因特定的人、地点和环境而形成的。而设计就是为居者寻找个人风格的有趣味的过程。
在实用主义与现代设计感之间找到最佳平衡的意式轻奢风历久弥新,是本案这套婚房贯穿始终的设计主线。
客厅、餐厅与西厨的自由互通,让开放的大场景能轻松容纳思考、交流与互动。多元素的碰撞则带来奢华的质感,极度诠释现代主义家居空间的高级感。黑、白、灰三色自然过渡,完美平衡了美学感性与空间质感的关系,升华了空间的格调。一抹温柔的莫兰迪蓝绝对地掠夺了人们的视线,彰显了客厅的存在感,而与之相对的长条形布艺沙发,则呈现出了另一道风景线。
不规则色彩的潘多拉大理石与温润的木饰面相拼,艺术的光泽与大自然鬼斧神工的肌理将华丽雅致的气息尽数释放,呈现意式现代的奢华高雅质感。悬浮顶无主灯的设计,延伸空间尺度,赋予空间灵动的气息。宽境落地窗引入自然光线,居于此,览一院绿意,拥四时美景。
由于本案总共5层,考虑到居住的舒适性,业主想要增加一部电梯。不过因每一层的面积有限,电梯空间也随之较局促,宽度只有1.1米,所以最终选择做观光电梯,这样不仅增加了整个空间的通透感,还让电梯也成为家中的一道风景。电梯的金属质感和楼梯的灯光设计,增加空间的轻奢感、豪华感,作为孩子的婚房毫不逊色。餐厅 | Dining room


餐厅,没有过多繁琐的装饰反而赋予空间更多的自由流畅,深色木饰面背景衬托出就餐的仪式感。大理石面长餐桌线条简洁,奢华中不失温暖,与湖蓝、米白绒布餐椅和谐统一。餐桌上方的曲线吊灯,如云朵,如花冠,温润了居者的三餐四季。
设计老师利用餐厅与厨房中间的过道空间,增加西厨+餐边柜的功能,以补充原始厨房空间不足的缺陷。

整个餐厅区域因为结构问题,采用大平顶设计,加上轨道磁吸灯+线性灯+筒灯+灯光槽的灯光组合,增加空间层次感的同时,光线的趣味性也成为可被欣赏的一部分,现代时尚感十足。
厨房 | Kitchen

本案厨房是U型布局,整体空间偏小,再加上要保留采光面,所以只在灶具一侧的顶上做了吊柜,不过地柜+操作台+吧台区的设计,让小空间也同样可以拥有超强收纳功能。
厨房延续了客餐厅统一的基调,木色的地柜,配上白色干净的吊柜,明亮又整洁。


一个高颜值又实用的厨房,能让下厨的人身心愉悦,更高效地完成一道道美食,让做饭也成为一件令人享受的事情。
二楼主卧 | Master bedroom
二楼主卧专门为家里老人设计的,方正的格局符合老年人的使用习惯,床头背景墙与依次错落的衣柜构成多层次的局部空间,让简单的结构不单薄。床背的深红色绒布与金属吊灯/壁灯碰撞,精致而优雅。悬浮式床头柜做法让人眼前一亮,让人感受到卧室的独特慵懒,同时又极好地与衣柜衔接,增加收纳的细节功能。


因老人房位于二楼朝南的房间,光照十分充裕,故设计时把户外的阳台纳入到室内,做成了地台,既增加房间的面积及趣味性,以后家里有小宝宝,父母帮忙带孩子,这里也是很好的一个游乐区。
二楼次卧 | Second bedroom

二楼次卧的设计整体从简,以实用功能为主。床头背景墙以中灰色硬包与抽象挂画结合设计,丰富了空间层次,搭配床头小吊顶与金属线条,让休憩空间更添一份奢华与温馨。床头柜侧面的敞开格,使得衣柜看起来不呆板。天花吊平顶+无主灯的设计,简约不失设计感。
三楼主卧 | Master bedroom


在三楼近八十平的超大主卧空间中,汲取度假酒店的套房空间设计灵感,以三进的方式将卧室、书房、男女主人衣帽间、三分离卫浴进行构设,使空间具备更好的秩序感与私密性,丰富体验的层次。不出家门,便能随时享受酒店级的精致生活。


三层主卧主要是针对年轻夫妻审美及生活习惯展开,居者追求生活品质,却不随意浮夸。所以,设计师以柔和的手法塑造空间节奏,原本简洁的房间通过色彩、肌理、明暗逐层丰富,室内的韵律也因此变为主人专属的空间意趣。主卧借原有斜顶设计出人字形叠级吊顶,增加空间的层高的同时,层次感现代感凸显。向外将室外景色纳入室内,以落地窗拉近人与自然的距离。

主卫,三分离卫浴空间,双台盆的设计,嵌入式台盆龙头,超大的落地浴缸,为生活带来舒适尊享体验。黑白根大理石与古铜拉丝不锈钢的搭配相得益彰,对比鲜明,散发出内敛轻奢的高级质感。儿童房 | Children's bedroom


这是预留的一个儿童房,由于面积比较小,所以采用的榻榻米设计。不同于一般的榻榻米设计,本案儿童房实用与颜值并重,以粉色系软装贯穿起“梦幻童真”的空间主题,赋予居者丰富的视觉体验,为孩子打造出一片专属的童趣天地。
地下室 | Basement


地下室,巨大的挑空带来空间的广阔性,让人不再被闭塞的空间束缚住,而是拥有一种更宏大的心境,强烈的秩序感和开放性造就了空间的对话互动关系,思绪轻盈,压力释放,获得内在精神与外在身体的放松。天顶垂落的灯饰,在绰影间将地下室引入自然之境。主材和色调的平衡连贯,提高了空间质感,内在张力抒写其上,用当代材质与自然/抽象意象间的对话,显露出独特的意味与美感。


想要在空间里营造惊喜与浪漫,从不在于大开大合的布局中,而是基于审美与艺术中的体验与直觉,在层层递进的空间节奏里梳理着居住的维度。
品茶区的巨幅红色楼梯挂画,如热情似火的绝色侠女般伫立于半空中,使本来平淡的空间如画龙点睛般活了起来,且与沙发区的红色单椅暗合,并无突兀感。然而冥冥之中,又和空间中的楼梯环环交织,连绵如乐曲般优雅精致。

由于本案地下室只有一个采光井,且面积不大,所以我们在采光井的侧墙上采用发光灯膜+金属花格的设计,这样整个空间的光亮度及延伸感都得到非常大的提升,植物的纹理清晰可触,给人一种仿佛置身于热带雨林中的感觉,皎然而自由。

挑空为地下空间提供了更为丰富的功能区域和良好的透光条件,满足家庭娱乐和接待朋友的需求。视听室、书吧、客房、卫生间等功能空间位于夹层,活跃的线条显露在不同材质间,使交互有了自然的索引。

地下二层原始户型图

地下二层改造后户型图

地下一层原始户型图

地下一层改造后户型图

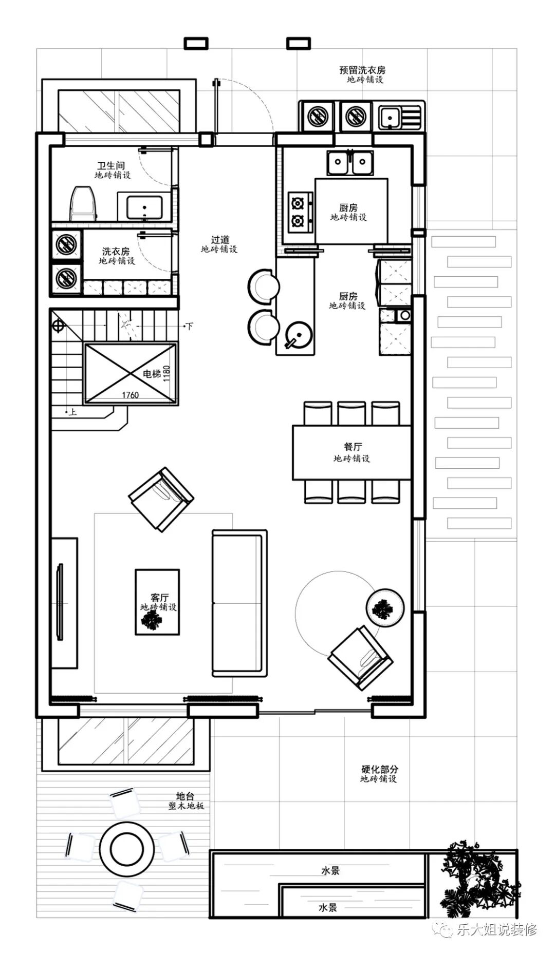
一层原始户型图

一层改造后户型图

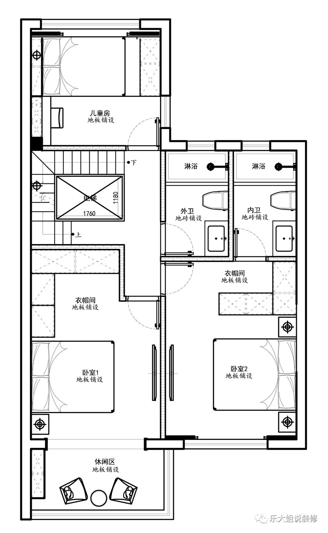
二层原始户型图

二层改造后户型图

三层原始户型图
- 本案这套联排别墅原结构方正,功能布局比较合理,需要改造调整的区域不多。
- 本案地下室是一个挑高空间,层高达到4.9m,面积在60㎡左右,十分宽敞。考虑到整体的实用性和居住的舒适度,地下室只做了局部搭建,并没有全部封掉,从而塑造了空间的对话互动关系,彰显了别墅的大气。
- 为了让本案拥有别墅空间的大尺度感,设计老师将餐厅与客厅完全打通,做成开放式格局。
- 考虑到小业主结婚后要有小朋友,将二楼北阳台纳入到北房间,打造成儿童房。
- 考虑到居住的舒适性,将二楼正对着楼梯的大卫生间一分为二,一部分用来做外卫,一部分用来做二楼主卧的内卫,并利用衣柜做隔断,保证了卫生间的门不对着卧室的床,私密性更高。
- 本案三楼都是主卧空间,为了避免空间大而不当,乐大姐团队设计老师利用电视背景作隔断来划分空间,设有衣帽间、书房、睡眠空间,还有三分离卫浴,功能划分十分清晰。
点击左下方“阅读原文”,即可在线免费看本案例全景图(360°)。
https://vr.justeasy.cn/view/19625b112f526468-1655024239.html

如果您觉得乐大姐说的内容很有价值
欢迎分享转发至您的朋友圈
让更多的朋友都能轻松装修,自在生活!
当然,您也可以添加乐大姐微信号13382103377
或扫描下方的二维码
说出您的装修难题、让乐大姐为您答疑解惑
不管您是装修完工了
还是即将装修的
或者正在装修的
乐大姐一定知无不言,言无不尽