
乐大姐
FM104.8《家在苏州--乐大姐说装修》栏目特邀嘉宾,
赫博别墅设计创始人之一;
多次受邀成为院校家居的授课讲师;
98年至今,
为万千家庭打造幸福家居的同时,也相互成为了好朋友。
任何与装修有关的问题,欢迎您添加乐大姐微信:13382103377,
乐大姐会为您做一对一解答。
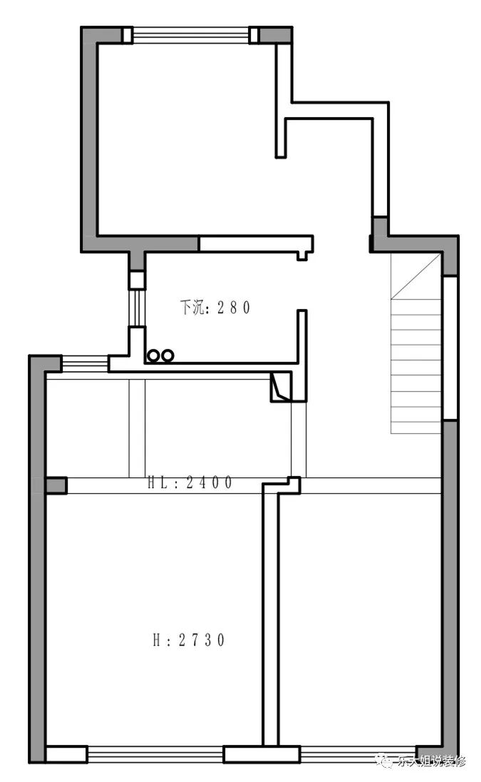
本案是套“迷你型”的下叠墅,205㎡,地下地上各两层,也就是说每层只有50㎡,减掉必备的楼梯外,每层就剩40多平了,那么,怎样设计才能打破户型本身的局限性,既满足业主一家四口的日常居住需求又拥有叠墅的大空间感呢?
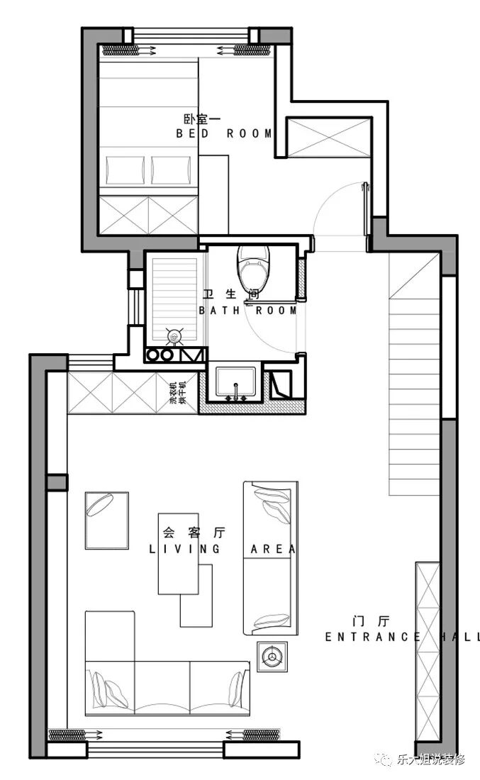
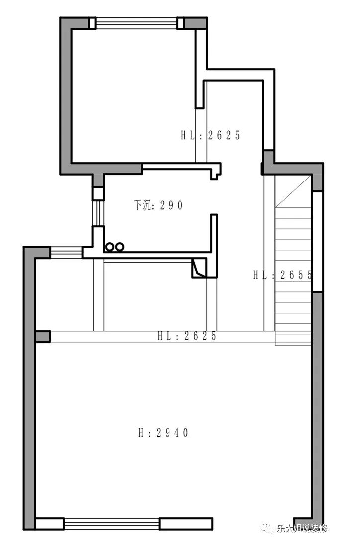
乐大姐团队设计老师一改常规的设计思路,考虑到小区是人车分流的设计,业主每天回家都是从地下室入户的,所以把厨房、餐厅规划在地下二层,且为了确保地下室的采光通风,地下一层跟地下二层之间只做了局部现浇,保留共享空间;地面一楼则规划成客厅、卫生间加男孩房,地面二楼是主卧套房及女孩房。四层的迷你空间,被规划得功能齐全且空间感十足!
如何构建人与空间的良性互动与和谐共生关系,让其居住者从身心的放松与满足中上升到精神层面的幸福感,这一直是乐大姐团队设计老师所思考的。本案虽然是套205㎡的下叠墅,却有4层,所以每一层只有50㎡左右,那么这么小的面积,如何合理布局不同功能空间呢?首先,我们把餐厨从建筑首层“搬”到了负二层,将位于地下室的客厅改到一楼,这样不仅可以最大程度地发挥客厅作为公共区域的功能(一楼采光更好,更适合日常居住、会见亲朋),且每一层空间也得以最大化利用。

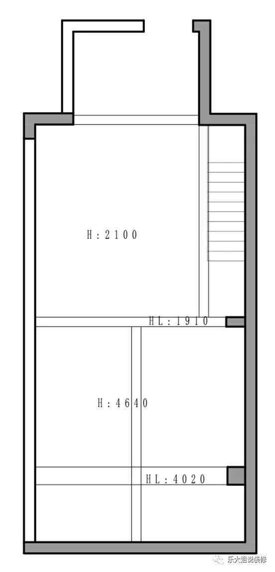
其次,因地下室只有一个正方形的天窗采光,所以负二层只现浇了一半,这样保证地下每一层采光的同时,挑高空间的存在也将就餐的仪式感拉满。小小天井,让日光肆意洒进室内,当清晨第一束阳光漫射而下,平添一份畅快的自由感。

挑空空间的秩序感,建立在对各种材料与物件的熟练运用上。大理石、木饰面、玻璃、金属、皮质等不同的材质碰撞着最纯粹的色彩,空间丰富却不繁杂;各种现代美学的线条,组合重叠,纵向延伸,空间通透开阔、大气沉稳,又不失艺术气息。

现代感十足的楼梯和艺术摆件提亮了整个区域,营造出一种连贯的美感。


顺着楼梯往上是专门为孩子们打造的学习娱乐区,位于餐厨空间正上方的夹层,视线十分开阔,充满了趣味性和互动性。设计老师以灯光为引导,在这块区域放置了书桌、架子鼓、书架,营造轻松舒适时尚的氛围。


与餐厨交换空间后,客厅的设计以重组布局的方式重新定义空间的功能和尺度,放大空间景观和面积的优势,去掉多余的非承重柱体,并将凸起的承重结构消融于立面的体块构成与美陈之中,让安静、优雅和包容成为空间的关键词。
黑色的PU材质文化石作电视背景,让墙不再是一堵简简单单的“墙”,黑色象征着一种神秘宁静的力量,加上石头清晰可见的凹凸肌理,渲染出充满生命力的空间氛围。
背景的粗糙纹理和精致的展示柜之间产生了强烈的反差,让自然的光线流淌在室内的每个空间。
灰色在客厅的墙面和地面大胆铺陈,空间的延续性得到很好的保证。米色沙发组合与白色大理石茶几相得益彰,透出轻简之意,让硬朗的空间瞬间柔软了起来。墨绿色的沙发单椅与凹凸有致的挂画,令人眼前一亮,极致的优雅就这样在细节处流露,幻化为精致的审美。
沉稳内敛的深灰色地砖搭配灰咖色系墙砖,优雅温馨,浓淡相宜。再搭配上黑色的铝框玻璃门以及木质的悬浮洗漱柜,视觉上整体效果更加强烈。
二楼主卧套房,从大处观有着男士气质的硬朗,于小处观也有女士的精致与浪漫。整个空间,延续整体的现代风格调性,以中性色——灰咖为基调,营造出静谧悠然的环境。床头背景的设计,是空间的点睛之笔。温润而色泽明亮的大理石,在暖光下显得温柔饱满。同色系饰面板和床头柜的弧形设计,十分巧妙,既增加了空间的延展性和包裹感,又柔和了空间调性。床头装饰品旋转扭曲,空间感十足,个性与品味兼具。无把手的柜体立面,让空间更显优雅细腻。



小朋友们的生活从来都不是一成不变的,个人喜好也时常发生变化,所以本案的女孩房以小朋友当前喜欢的淡粉色和百搭的灰色调为基底,营造轻松活泼的氛围。不过,色彩、软装、配饰上虽然体现了一些儿童化属性,但并没有做过度的装饰限制,以便后期根据孩子喜好变化更换。墙面的洞洞板设计,更是让女孩房增加了未来发展的可能性。
男孩房相较于女孩房多了几分硬朗和随性,整个空间巧妙运用蓝、红与白的色彩碰撞,背景融入各种几何图形,丰富的层次空间和饱满灵动的色彩交融,觅得一室静谧灵动。







- 原户型中餐厅和厨房在一楼,客厅在地下室,不过考虑到业主日常生活习惯,乐大姐团队设计老师将餐厨空间放到了负二楼,买菜回家从地下车库进出,十分便捷;然后,把客厅放到了一楼,这样采光更好,也方便待客。
- 考虑到居住的舒适性,将一楼原厨房的部分空间划分给客厅,部分划分到卫生间。
- 在一楼的南入户门厅处,靠墙做了一排收纳柜、装饰柜,用来放置进出南花园的鞋子。
- 本案总共有三个卧室,二楼主卧是个大套房,包含衣帽间、卫生间,女儿因为年纪比较小,卧室也规划在了二楼;儿子房设计在了一楼,两个孩子房都有独立的学习区域,且都利用进门处的凹面墙设计了洗手台,便于日常洗漱。
点击左下方“阅读原文”,即可在线免费看本案例全景图(360°)。
https://vr.justeasy.cn/view/11yl6s6481267n12-1648298003.html

如果您觉得乐大姐说的内容很有价值
欢迎分享转发至您的朋友圈
让更多的朋友都能轻松装修,自在生活!
当然,您也可以添加乐大姐微信号13382103377
或扫描下方的二维码
说出您的装修难题、让乐大姐为您答疑解惑
不管您是装修完工了
还是即将装修的
或者正在装修的
乐大姐一定知无不言,言无不尽