发布时间:2022-07-30
乐大姐
FM104.8《家在苏州--乐大姐说装修》栏目特邀嘉宾,
赫博别墅设计创始人之一;
多次受邀成为院校家居的授课讲师;
98年至今,
为万千家庭打造幸福家居的同时,也相互成为了好朋友。
任何与装修有关的问题,欢迎您添加乐大姐微信:13382103377,
乐大姐会为您做一对一解答。

优秀的设计,
也要靠优秀的交付来实现。
从设计蓝图到家的最终落成,
从畅想家的样子到纵享家居生活,
离不开的是客户的信任与配合,
离不开的是交付团队的辛勤付出。
完美的交付,
就是最好的自宣!
——乐大姐团队原创
/
实景赏析
看别人的家 装自己的生活
项目地点:木渎合润御府
项目面积:486㎡
项目风格:现代中式
项目性质:别墅整装
项目状态:已交付
中式情结渗透在每一个深谙中国文化内涵人的骨子里,他们在家居风格上大多会选择中式。然而,时代在变,人的审美追求也在变,一些接受了时尚洗礼的国人则喜欢在中式的基础上结合现代元素。那么,今天就跟乐大姐一起到这套486㎡现代中式独栋别墅里寻找属于现代人的中式魅力吧~


















































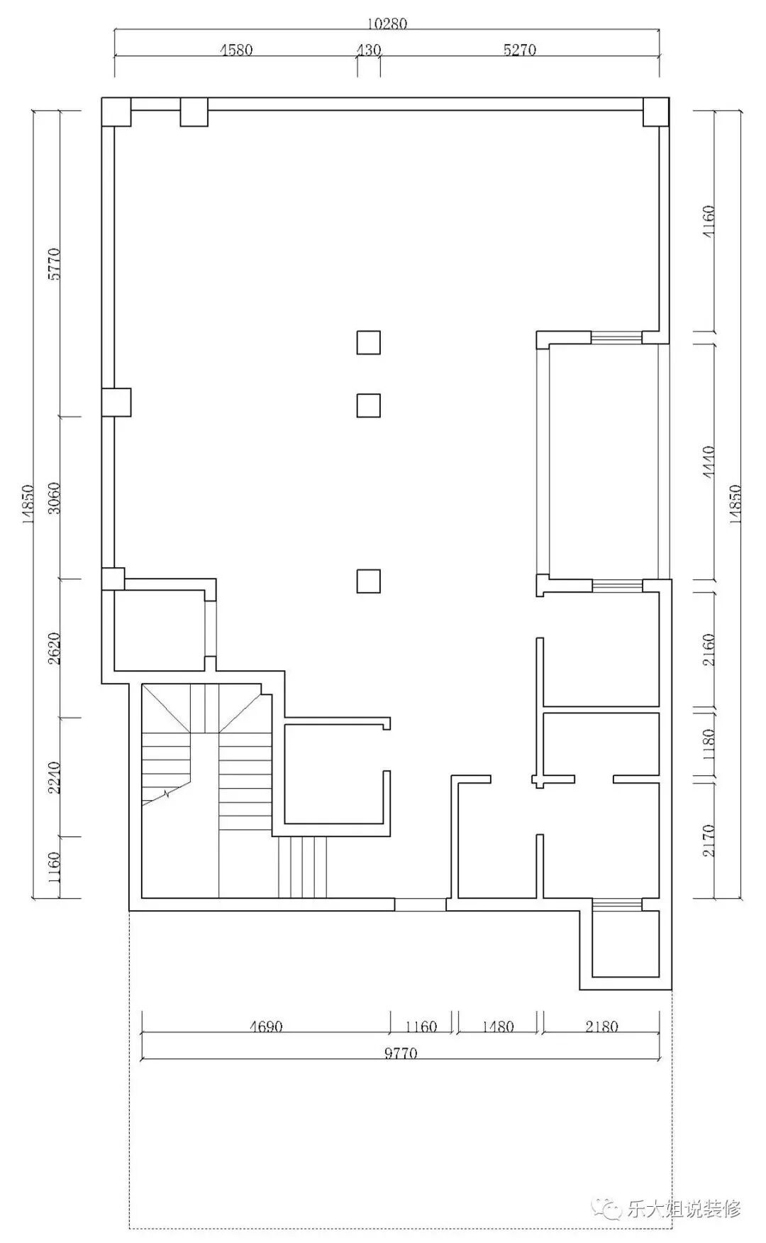
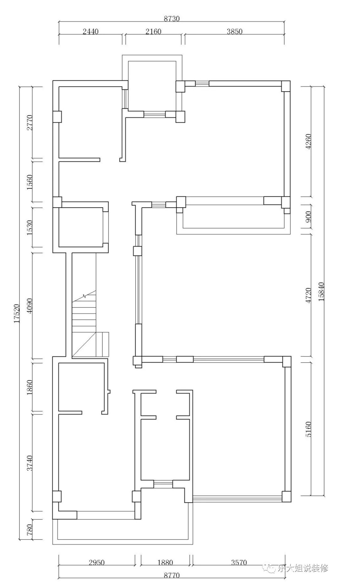
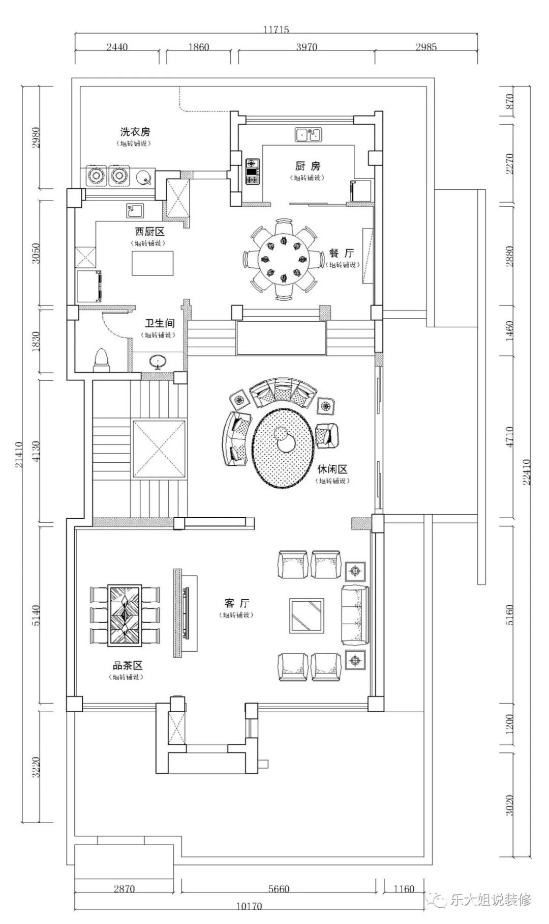
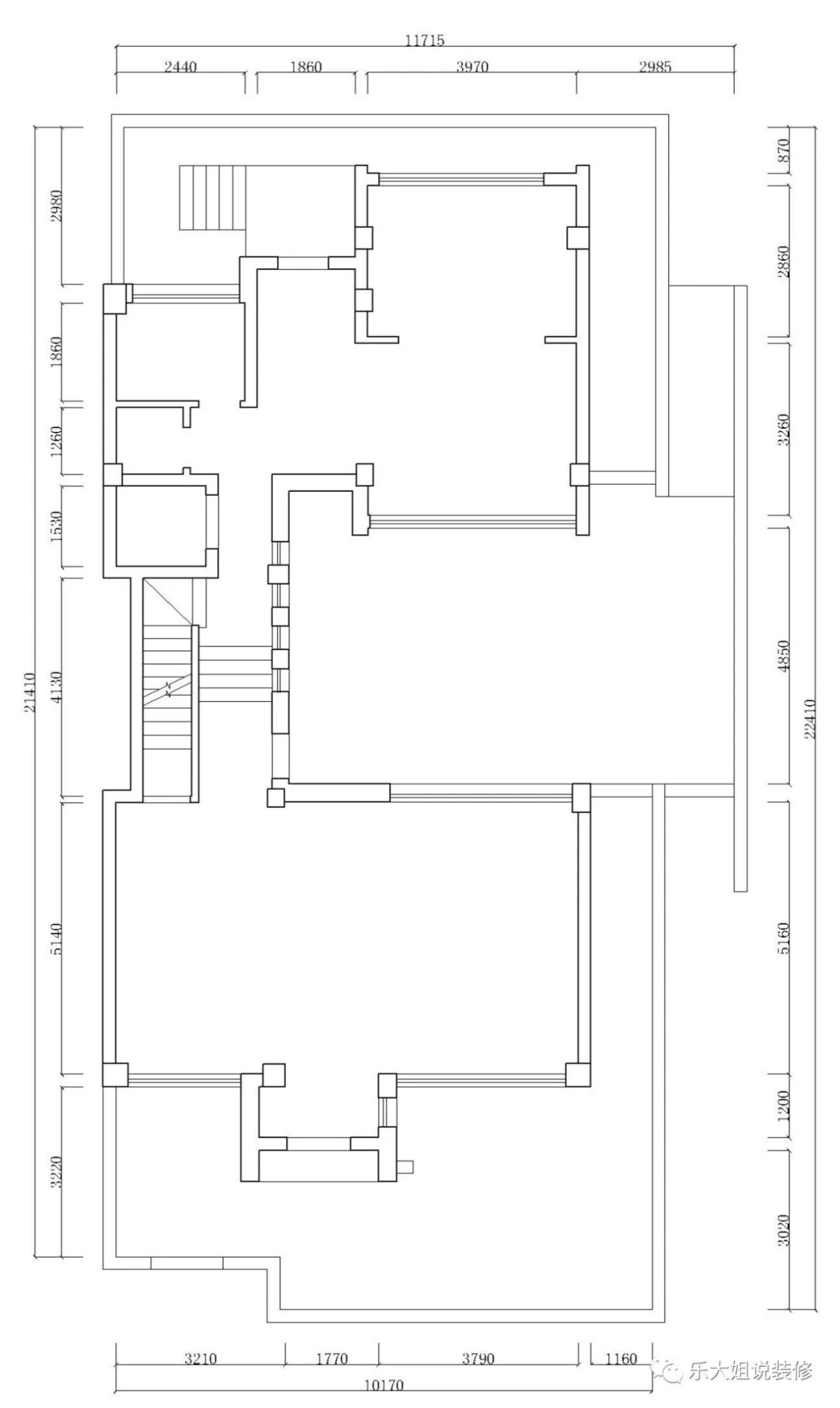
平面方案
二楼改造后户型图
设计全景图
点击文章底部左下方“阅读原文”,即可在线免费看本案例全景图(360°)。
https://vr.justeasy.cn/view/1589rn9720r587g8-1603278065.html?from=timeline
/
业主说
本案是套独栋别墅,地下一层,地上两层,还有60㎡的院子,小区环境优美,非常宜居,业主买这套房子是打算长期居住的,对装修的要求比较高。风格上,业主虽然也喜欢中式的意蕴与禅意,但却不喜欢家中氛围过于厚重,希望现代元素更多些,注重居住的舒适性与美观度,所以最终选择了现代中式风格。
▲ 乐大姐团队&合润御府业主夫妇合影留念
拍摄现场,在和乐大姐、苏州电视台《第一时间》拍摄老师等聊天的过程中,业主穆先生提到“这次装修幸亏选择了你们乐大姐团队!我们家从开始规划设计方案到土建改造,到硬装(全部的设备安装),到全案的软装搭配,再加上碰到疫情导致的停工,前前后后总共花了21个月,才真正装修结束(ps:这套独栋从2020年开始装修,2022年终于可以入住了)!比怀胎十月都长!这么大的一个项目,就算我自己之前装修过3套房子,有些经验,也不可能搞得定!更何况我工作很忙,根本顾不上装修,如果让老婆操心的话真的是太辛苦了!所以说,专业的事情还是要交给专业的人来做!”
▲ 乐大姐正在拍摄苏州电视台《第一时间》解析样板房装修知识点

▲ 乐大姐正在拍摄苏州电视台《第一时间》解析样板房装修知识点
竣工酒上,谈到自己的装修心路历程以及最终的效果呈现时,业主穆先生说道“当初选择乐大姐团队之前,我们也接触过好几家装修公司,其中不乏苏州的一些大规模的装修公司,有些装修公司为了让我们签约甚至报出了非常低的价格,但我是一个很理性的人,细想下就知道里面存在的问题,所以并没有因为低价而选择托付,反而是你们乐大姐团队分享的竣工落地效果打动了我,感觉很靠谱,这次装修下来果然如此!不论是酒店式卫生间的设计、“外景内做”的细节,还是从院子整体布局考虑建议我们不要选柿子树,要选四季常青的造型树(黄杨),都十分用心!”



有感:
“装修对于我们团队来说只是忙活了一阵子,业主一家人却可能要住一辈子,所以任何一套装修项目,我们都要全力以赴,必须对得起业主当初对乐大姐团队义无反顾的选择!”
如果您觉得乐大姐说的内容很有价值
欢迎分享转发至您的朋友圈
让更多的朋友都能轻松装修,自在生活!
当然,您也可以添加乐大姐微信号13382103377
或扫描下方的二维码
说出您的装修难题、让乐大姐为您答疑解惑
不管您是装修完工了
还是即将装修的
或者正在装修的
乐大姐一定知无不言,言无不尽
长按二维码添加乐大姐微信号
装修不烦 大姐来谈