
乐大姐
FM104.8《家在苏州--乐大姐说装修》栏目特邀嘉宾,
赫博别墅设计创始人之一;
多次受邀成为院校家居的授课讲师;
98年至今,
为万千家庭打造幸福家居的同时,也相互成为了好朋友。
任何与装修有关的问题,欢迎您添加乐大姐微信:13382103377,
乐大姐会为您做一对一解答。
项目地点:姑苏名著(下叠)
项目面积:198.2㎡+地下室171.5㎡
项目风格:现代简约(混搭轻奢)
项目性质:别墅整装
项目状态:正在施工
01
THE CUSTOMER DEMANDS
业主需求
本案是套改善型住宅,业主准备一家三口长久自主,小孩目前才5岁,所以设计时既要考虑长久性,又要考虑孩子成长过程中不同阶段所需要的功能与审美,那怎样设计才能满足呢?乐大姐团队设计老师以现代简约为基调,再加了些轻奢的元素在里面,两者相互交融,相互融合,整体呈现出简洁明快的居家氛围。另外,彩色在空间里的大面积巧妙运用,也是本案的一大特色。
-
02
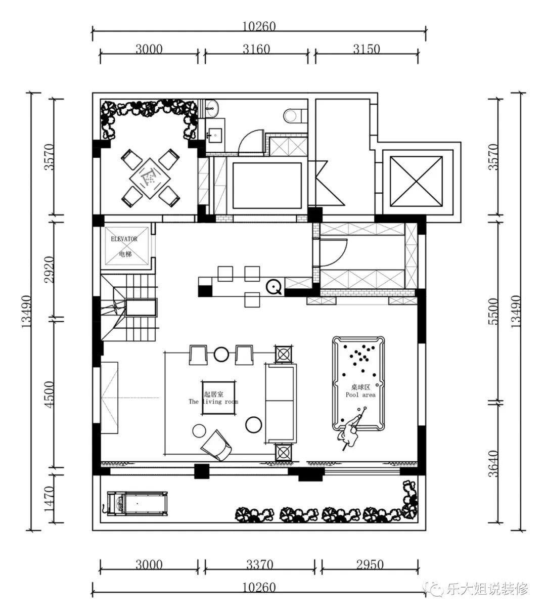
Lobby
门厅

地下室入户玄关,是整个地下空间故事的开场白,设计老师仅用一抹红色,就让玄关呈现出最强烈的冲击效果,热情洋溢,搭配个性的玩偶造型和挂画,开启归家的仪式感,构筑一种属于年轻群体的精神世界。
03
LIVING ROOM IN BASEMENT
地下客厅



本案一反常规的设计,采用双客厅的布局,楼上楼下各有一个客厅,楼上的客餐厅主要是业主一家三口日常使用的,而地下5.43米的挑高大客厅,却是业主为亲朋好友来家里小聚准备的主要空间。
所以,整个地下室只做了局部的现浇处理,保留了大部分的挑高空间,以此来扩大视觉空间感,营造出恢弘的气势。同时,还改善了地下的采光通风,加强了与户外空间的连接感。



挑高5.43米的客厅,电视背景线板一贯而上,透过对面的夹丝玻璃与夹层的儿童游乐区相望,楼上楼下不再是独立的空间,设计老师通过挑空的客厅,把楼上楼下整个串联起来,增加了空间之间的互动感和交互性。此外,客厅亦与吧台、台球区开敞联合,有效拓展了公共区域的活动范围与分区层次。



地下会客空间在设色上非常丰富大胆,乐大姐团队设计老师在黑白灰的硬装基调上把湖蓝、朱红、肉粉、黄橙等作为空间的点缀色,搭配奢感十足的金色,达成了一种时尚与温馨的平衡,含蓄而内敛地显出低调的奢华,优雅之处尽显生活品味。整个空间,散发出一种不可言说的魅力。环视所见,硬朗与柔软、方正与圆润、直线与曲面、大与小、高与低、明与暗……交融共舞,这一切背后皆是对设计老师精准拿捏室内感受、比例关系、构图审美、细节质感的印证。
![/uploads/image/2022/07/30/288f525952f93194b234a16b6346206f.png OG~9EGG0@NL9H36Z38G]Y9U.png](http://www.ledajie.cn/storage/uploads/image/2022/07/30/288f525952f93194b234a16b6346206f.png)
以穿插的构造手法巧妙设置吧台,无论从使用功效,还是情感交流上,均为生活增色。
-
04
CHILDREN'S PLAY AREA
儿童游乐区



设计老师不浪费每一寸空间,让每一位家庭成员都能拥有专属自己的小天地。地下夹层的一角作为儿童游乐区,本案小主人的年纪还小,喜欢画画,所以墙面上做了磁吸水性黑板墙,使用无尘粉笔,可以满足小孩子的绘画需求。另外,还可以用积木在墙面做拼图,童趣十足。
![/uploads/image/2022/07/30/7f27597a0370544a77259adab349ea31.png X8]]K}Q]SRQAT$V8GB5H1)4.png](http://www.ledajie.cn/storage/uploads/image/2022/07/30/7f27597a0370544a77259adab349ea31.png)

在夹层空间里,高饱和度的色彩又一次出现,藉由造型和色彩的纯粹性,与线条分明的硬装相契合,给原本的中性色彩空间,带来鲜明而有趣的丰富度。-
05
LIVING & DINING ROOM
客餐厅



“美”之于艺术和设计的意义,是一种多维度的尝试,也是一种对生活的思考。
地上客餐厅的设计,完全不同于地下公共空间的大胆用色,而是以经典的黑白灰为主题色,恰好平衡了客餐厅内的明度与质感。从茶几、餐椅、抱枕到挂画,几抹秋日橙的点缀又拉升了空间的温度。整体呈现出一种内敛不张扬的艺术基调,以完整的场景感和材质的肌理美,令空间由内而外释放着直透人心的纯粹力量。


设计的力量,蕴藏在巧思中,表露在细节里。电视背景墙以质感冷冽的大理石与温润的木饰面相配,碰撞出时尚的都市风,而与之相承接的是大理石玻璃楼梯的现代感,电子壁炉的应用则将这些冷意一一消融。
在这里,材质与线条不仅是空间艺术的组成部分,也成为了设计语言和情感的表达媒介。



餐厅与客厅呈开放之姿贯连,将空间尺度拉升到极致。高质感的冷暖色皮革餐椅颇具设计感,剔透的白色壁柜充分满足餐厅收纳之需,高颜值的岛台让居者更加享受生活的乐趣和用餐的愉悦。
两面大大的落地门窗,带来绝佳采光和庭院景色的同时,也留下更多的位置给自由的风、温暖的光,以及一切大自然的访客。



主卧套房的床头背景没有做复杂的装饰,墙面与地板、柜体的色彩接近统一,窗帘、床品也选择了同色系或者相近色系的,从而延伸了卧室空间的视觉效果,更具完整性。同时,以橘色作为点缀色,活力十足又不显张扬,演绎得恰到好处。
悬浮床头柜多了一丝轻盈,满足基本功能又不至笨重。床头板灯带的设计,折射出灵动氤氲的光线,给人简洁温馨的质感。



主卧采取“内外”双衣帽间的设计,对男女主人的当季衣饰、过季衣物、次净衣等进行了精细分区,轻松实现满分收纳。外衣帽间选用半透明的灰玻作柜门,让空间不压抑的同时,氛围感拉满;内衣帽间门和主卧门,位于电视背景墙上,故采用隐形门设计,再配以硬包材质的处理,看上去就是一个整体。
-
07
BATHROOM
卫生间


移步至主卫,大面积深灰黑色石材的铺贴,营造出清冷、雅致、静谧的高级质感。几抹橙黄的点缀,增强了空间的层次感。悬浮台盆柜的设计,以细节显露人性化设计考量;柔和的灯光消解了繁忙都市人的疲惫。

-
08
CHILDREN'S ROOM
儿童房



儿童房,是一个承载着美梦的空间,将童话搬进现实,洋溢着全家人的万千宠爱。整个空间采用遨游天空的卡通主题,蓝天、白云、高山、热气球等设计元素,配上活泼的色彩,契合儿童天马行空的浪漫想象和活泼可爱的天性。
且,床与柜、电视背景与衣帽间门,两两结合,环环相扣。家具与空间,装饰与功能,一气呵成,小小空间,童趣满满。


考虑到孩子学习的需要,将南阳台纳入到儿童房内做成独立书房。不过,房间与阳台之间有一道“梁”,比较突兀,所以设计老师通过弧形设计来降低“梁”带来的压抑感,让空间更加柔和。另外,阳角的弱化也提高了孩子居住的安全性。
-
09
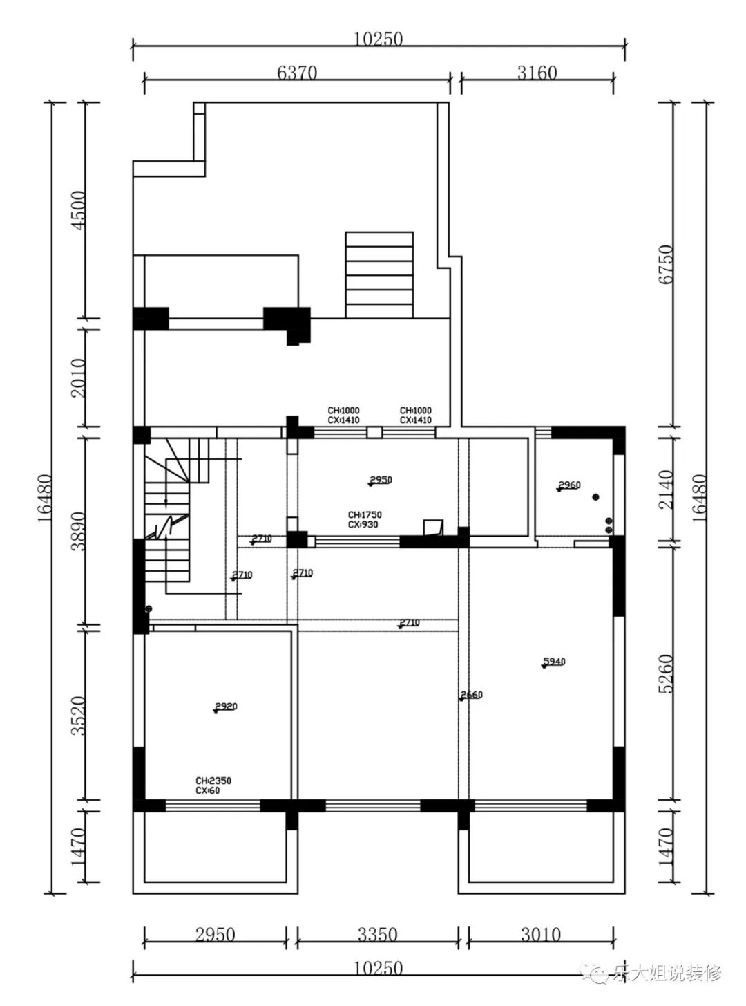
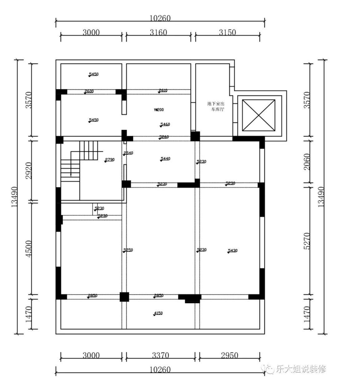
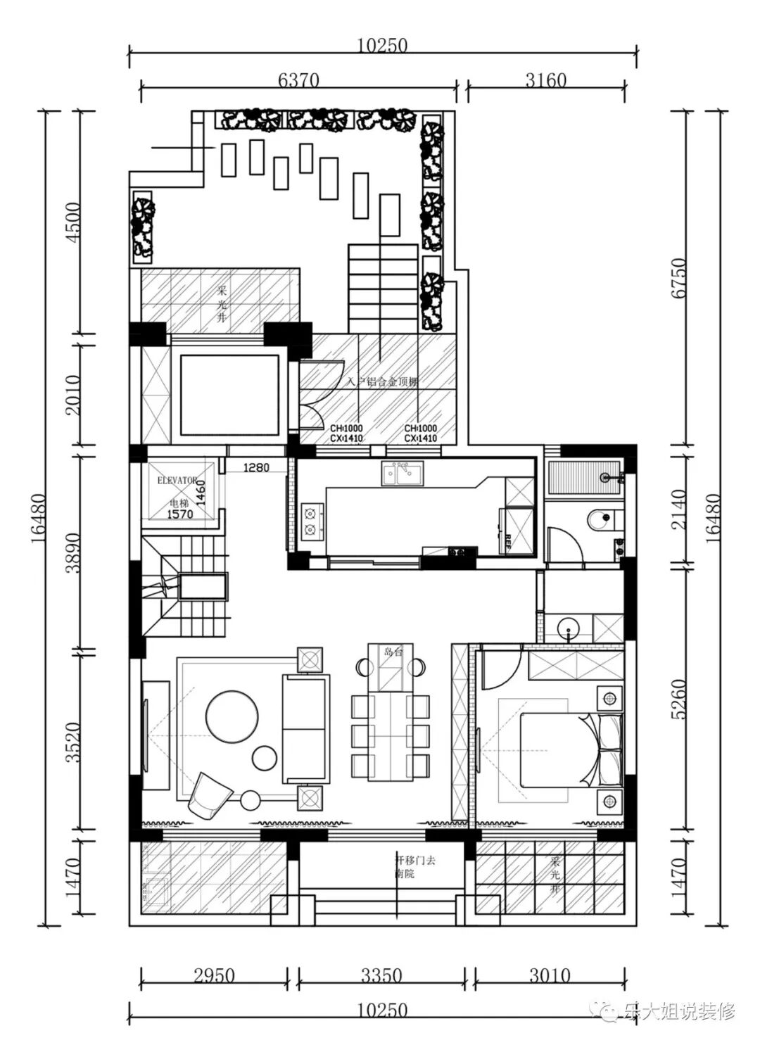
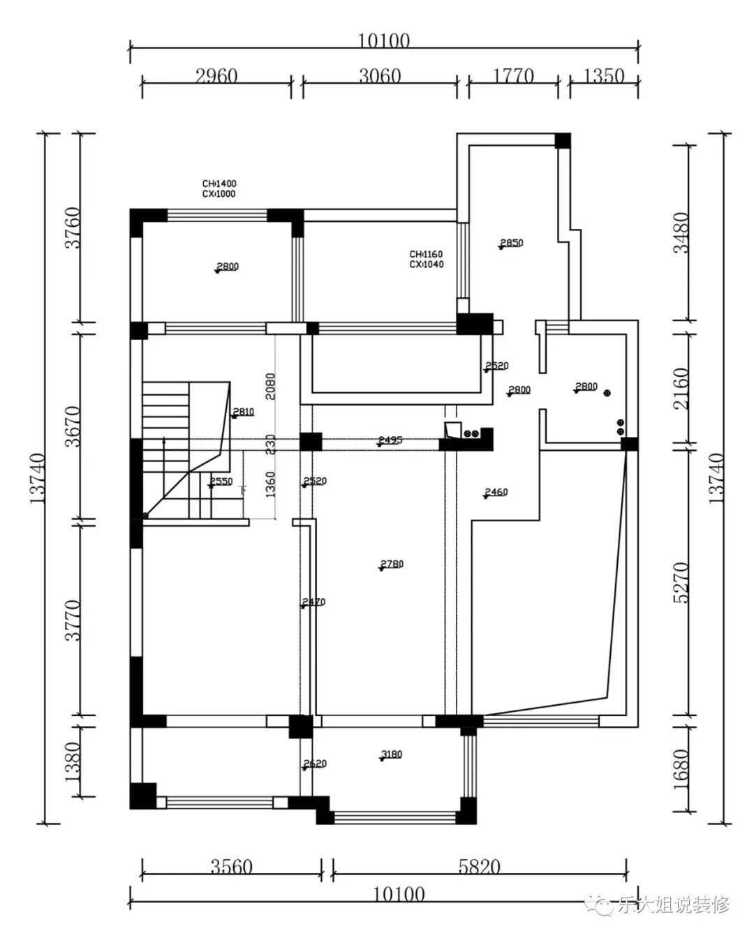
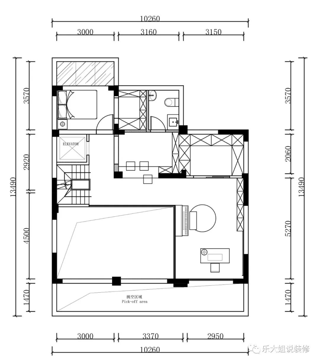
FLAT PLAN
平面方案
- 本案这套下叠墅的空间比较大,有近400平,改造后又有四层,所以设计时将电梯的规划纳入了进来,将原有的楼梯拆除,再借用其他空间的部分面积,从而实现了电梯和楼梯的并排使用,提升了未来的生活品质。
- 本案的地下室有130多平,很大,为了满足业主对大会客厅的功能需求,地下室只做了部分搭建,保留了一个高达5.43m的挑高公共区域。在这里宴请亲朋好友,不仅可以看电视、品酒、打台球、打麻将,还有儿童游乐区和一个客卧,功能非常齐全。
- 一楼的布局根据业主的需求重新规划,大横厅的设计,空间感十足;保留一个卧房,方便家里老人过来住;把设备阳台纳入到厨房,增加了厨房的空间,方便日常操作;卫生间采用干湿分离,美观又实用。
- 二楼规划了主卧套房和儿童房,主卧套房采用五星级酒店式设计,兼具内外衣帽间、生活阳台、卫生间、休闲区、梳妆台、睡眠区六大功能,即便不出门,也能随时享受酒店级的精致生活。
- 儿童房原结构空间比较小,业主还要加一个衣帽间,所以设计时将儿童房与主卧之间的房间前移,将其部分空间纳入到次卧使用,设计成一个独立的衣帽间。
- 乐大姐团队设计老师利用二楼过道的两根承重柱,做了一个内嵌的收纳柜和一个水吧台,便于日常喝水、放东西。
10
PANORAMA
全景图
点击左下方“阅读原文”,即可在线免费看本案例全景图(360°)。
https://vr.justeasy.cn/view/166y42g29860qbp9-1651634861.html

如果您觉得乐大姐说的内容很有价值
欢迎分享转发至您的朋友圈
让更多的朋友都能轻松装修,自在生活!
当然,您也可以添加乐大姐微信号13382103377
或扫描下方的二维码
说出您的装修难题、让乐大姐为您答疑解惑
不管您是装修完工了
还是即将装修的
或者正在装修的
乐大姐一定知无不言,言无不尽