清水江南别墅整装

设计说·第177期 | 242㎡叠墅实景赏析,给你想要的现代时尚感!

发布时间:2022-08-19

图片

乐大姐

FM104.8《家在苏州--乐大姐说装修》栏目特邀嘉宾,

赫博别墅设计创始人之一;

多次受邀成为院校家居的授课讲师;

98年至今,

为万千家庭打造幸福家居的同时,也相互成为了好朋友。

任何与装修有关的问题,欢迎您添加乐大姐微信:13390840655

乐大姐会为您做一对一解答。


图片

01

每一次竣工酒的举办,

每一次样板房的拍摄,

不仅仅是装修成果的一次展示,

更是承诺的一次又一次实力兑现。

圆一个理想家居之梦,

筑一方盛满温情之家。

在这个过程中

乐大姐团队和业主们相识、相知,

一次装修,一生朋友。

——by乐大姐团队原创



实景赏/
01
看别人的家  装自己的生活

项目地点:半岛印象
项目面积:242㎡
项目风格:现代简约
项目性质:别墅整装
项目状态:已交付


在装修当中,现代简约风格为大部分人所熟知青睐,然而只有专业从事装修的人才知道,现代简约风格虽然大众化,但它却很难让人为之惊艳(因为这样的作品太多了),但本案这套下叠墅的实景现场绝对可以给你想要的现代时尚感很多设计细节,值得反复品位!那么,今天就跟乐大姐一起到这套242㎡现代叠墅里寻找属于你的现代家居梦吧图片~

图片

图片

图片

图片

图片

图片

图片

图片

图片

图片

图片

图片

图片

图片

图片

图片

图片

图片

图片

图片

图片

图片

图片

图片

图片

图片

图片

图片

图片

图片

图片

图片

图片

图片

图片

图片

图片


图片

图片

图片


图片

图片

图片

图片

图片

图片

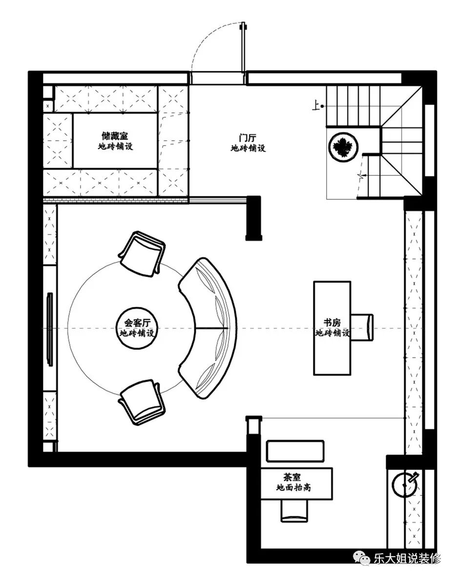
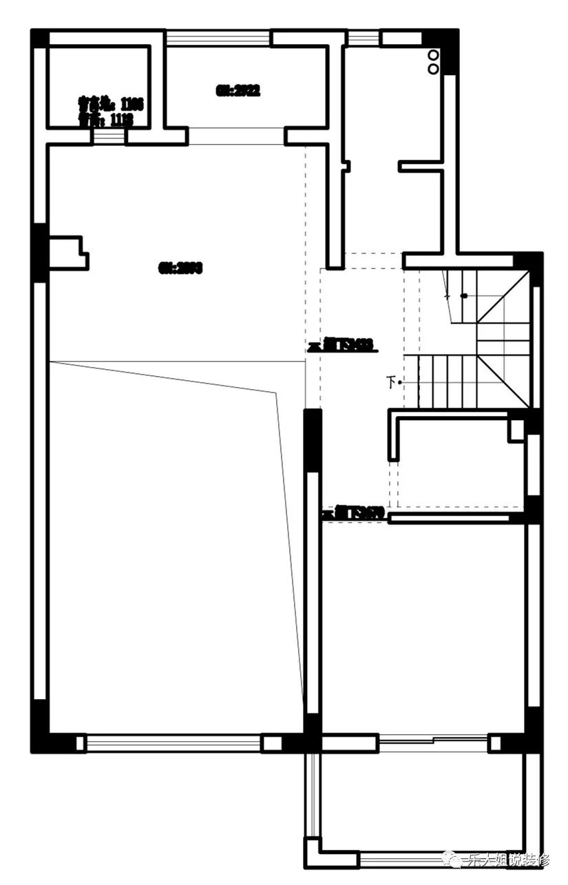
平面方案  
图片

图片
地下室原始户型图
图片
地下室改造后户型图
图片
一楼原始户型图
图片
一楼改造后户型图
图片
二楼原始户型图
图片
二楼改造后户型图

全景图  
图片

图片

点击文章底部左下方“阅读原文”,即可在线免费看本案例全景图(360°)。



业主/
02
装修背后的故事

本案是套养老房,业主考虑到随着年岁渐长,他们要为以后的养老生活做打算(目前业主两口子都还没有退休),而这套房子是带院子的下叠墅户型,方便退休以后在家约三两好友过来聊聊天,喝喝茶,养养花草。

在风格方面,业主夫妻两存有不同的意见,女业主特别钟情于中式风格,男业主比较喜欢时尚前卫的设计,经乐大姐团队的几番沟通,最终选择了经久耐看、不易淘汰的现代风格!

满意度100%  
图片

图片

▲ 乐大姐团队和半岛印象女业主合影留念


拍摄现场,在和乐大姐、苏州电视台《第一时间》拍摄老师等聊天的过程中,业主沈女士说:“装修刚刚结束我们就搬进来了,之所以这么快主要是因为我老公很想立刻入住,他非常喜欢这个装修效果。其实,我们本来住的房子面积跟这套新房子差不多,不过现在住下来我也觉得确实还是这套房子更舒服,住着都不想出门了既有我喜欢的花园,还有我老公喜欢的地下室,然后我们的卧室,有50多个平方,在二楼朝南的位置,感觉就跟住五星级的酒店一样!”


图片


图片

▲ 乐大姐正在拍摄苏州电视台《第一时间》解析样板房装修知识点


值得一提的是,竣工酒上女业主还提到“之前刚装修完,第一个到我们新家拜访的朋友,刚刚走到我们家地下室就很惊奇地说‘这是你们家客厅吧,怎么没有看到厨房间和餐厅呢?’因为我们家是可以直接从地下车库入户的嘛,他从地下车库一进来,觉得太好看了,直接把地下室的休闲区当成了地面上的客厅!我心里蛮开心的!这次找你们乐大姐团队装修很成功!”


关键的是,不仅效果好,过程里也不怎么需要我们操心!设计老师、项目经理他们做事都很负责,一直能考虑到我们自己考虑不到的事情,给我们省了很多心,我们都不需要烦心的,反正一有事只要打电话,哪怕是换个小插座,都立马就来了。挂画、摆件这些软装吖,都是设计老师帮我们一件一件淘的,一件一件摆的,非常用心!”男业主钱先生接着说道。


图片

▲ 乐大姐正在拍摄苏州电视台《第一时间》解析样板房装修知识点


图片

▲ 竣工验收单上业主的评语


图片


图片

▲ 半岛印象业主夫妇设宴宴请乐大姐团队贺竣工之喜


再次感恩业主

对乐大姐团队的信赖与认可

您的新家落成

 我们来见证幸福、兑现承诺。

当梦想变成现实,家有了情感,

我们的缘分也有了新的定义,

竣工才是我们服务的开始,

时间是检验我们服务的试金石。

我们一定不会辜负您的这份信任!


END


往期案例回顾


设计说·第176期 | 165㎡精装房大改造,守护生活的仪式感!

图片


设计说·第175期 | 1010㎡江南园林别墅,打造当代“桃花源”!

图片


设计说·第174期 | 370㎡现代叠墅,双客厅设计,颠覆传统居家功能划分!

图片


设计说·第173期 | 486㎡独栋别墅实景赏析,这样的现代中式你见过吗?

图片


设计说·第172期 | 他们家居然把餐厅“搬”到了地下室,205㎡现代叠墅设计!图片


设计说·第171期 | 347㎡意式联排别墅,简奢有度,尽显大宅气韵!

图片


设计说·第170期 | 418㎡双拼别墅,吸纳山水气韵,勾勒东方画卷!

图片


设计说·第169期 | 398㎡叠墅实景赏析,感受挑空设计的质感与魅力!

图片


图片


如果您觉得乐大姐说的内容很有价值

欢迎分享转发至您的朋友圈

让更多的朋友都能轻松装修,自在生活!


当然,您也可以添加乐大姐微信号13390840655

或扫描下方的二维码

说出您的装修难题、让乐大姐为您答疑解惑

不管您是装修完工了

还是即将装修的

或者正在装修的

乐大姐一定知无不言,言无不尽


图片

图片


图片
在看是一种鼓励|分享是最好支持
点击右下角 写留言 发表你的心声
我们期待与您的交流 

长按二维码添加乐大姐微信号

装修不烦 大姐来谈