乐大姐
FM104.8《家在苏州--乐大姐说装修》栏目特邀嘉宾,
赫博别墅设计创始人之一;
多次受邀成为院校家居的授课讲师;
98年至今,
为万千家庭打造幸福家居的同时,也相互成为了好朋友。
任何与装修有关的问题,欢迎您添加乐大姐微信:13382100888,
乐大姐会为您做一对一解答。
每一套作品,都是私人定制
本案这套双拼别墅,是业主买来养老住的,所以对装修的要求比较高。业主希望自己的家看上去干净、清爽,不要太多繁琐的装饰,所以设计风格上,乐大姐团队以现代简约为主体,在尽量简化元素、色彩、照明的同时更加注重材质的运用和色彩的搭配,整体显得简约而不简单。功能分区上,考虑到家中常住人口仅业主一家三口,以及后期的养老需求,将一层的房间拆掉扩大客厅面积,二层设计成一个套房和一个多功能房,三层则全部留给了女儿。


本案原结构动线繁杂,空间划分零散,乐大姐团队设计老师以重组布局的方式重新定义空间的功能和尺度,放大空间景观和面积的优势,去掉冗余的功能,优化空间的动线,并将多余的柱体和遮挡消融于立面的体块构成与美陈之中,让安静、优雅和包容成为空间的三个关键词。
从细节上来说,首先是将一楼的房间纳入到客厅做成开放式书房,释放原来客餐厅的空间,形成大气开放的的会客场所;然后在进门与客厅之间依着承重柱设计了一个半通透的弧形隔断,让空间之间的层次变得更加立体有序,不论从哪个角度都可以看到这个空间小景,同时也巧妙地将承重柱隐藏了起来,规避了进门正对着沙发的尴尬。
客厅大面积地来回勾勒黑白基调,构建起新一派的摩登居所。而暖咖、暖橙、墨绿色调的加入,点缀了空间,外放的反差感中裹夹着内里的柔和,于细微处感知家的温度。放眼全局,设计老师在不同功能区域采取了不同的装饰策略,制造出空间的节奏感。客厅选择低矮的家具,将人的视觉重心下移,营造舒逸自由的自处模式。开放式书房,干净利落的几何线条搭配深色高品质家具,给整片空间增加了静谧质感。



电视背景的设计,乍一看十分简洁,然而石膏板的细腻质感、蘑菇石PU文化石的厚重冷硬、雾化壁炉的精致温暖,从线面、冷暖中碰撞出自然与艺术的交融点,带来浓烈的视觉感召力,以光化影,以色闯境,千般姿态。

双面超大落地门窗,引景入室,为空间增添鲜活绿意。闲暇午后,坐于单人沙发上,眺望城市之旷景。

柴米油盐的充实、灯火阑珊的温暖,可抵世间遥不可及的向往。
在这间纵深感极强的餐厅内,开放式的布局让餐厅、客厅、楼梯处于同一空间又互相分离,既通透又宽敞。利索的线条和浅色的色调,使空间干净而透彻。


对二楼主卧的改造,浓缩了设计老师对本案空间尺度的理解和调控。首先,突破单一的直线式思维,将现浇后的挑高区域与二楼的北房间完全打通,建立起疏密有致的套房布局,这样既简化了动线,又创造出丰富的空间和功能层次。其次,进门处的双开门+端景设计,不仅增加了生活的仪式感,给人眼前一亮的感觉,还避免了一览无余的肤浅与浮夸。

主卧以干净利落的白灰色调,铺叙沉稳安宁的气息,而暖橙色的加入,又为空间增添一份精致温馨的美感。床头造型奇特的灯具,丰盈着空间的美学氛围。抽象的艺术画作,在浅色系墙面的映衬下,成为令人过目不忘的视觉亮点。

二楼次卧延续了整体空间的极简设计,灰白木的配色,没有过多的装饰,除却浮躁,不染纤尘,淡淡暖意如同安宁里的一抹斜阳。同时,利用比例、灯光、明暗营造空间的质感和氛围,予人舒适愉悦的视觉感受。
将原始南边小阳台包进卧室,打造成一个多功能的学习区。门套的圆角处理,既是为孩子的安全贴心守护,又规避了原结构中因“梁”的存在而带来的压抑感。


三楼主卧是女儿房,采用套房形式,将休息区、休闲区、衣帽间、书房,以及超大卫生间合理地融入宽敞明亮的空间中,以此将空间的包容性与独立性深刻地体现出来。
床头背景以不同层次不同尺寸的“灰”色木饰面相间呈现,依次展开,空间因此少了枯燥无味,多了几分灵动,同时还拉伸了整体的空间感。或赤脚环步,或坐于一隅,每一处都能触碰那份属于卧室的放松与舒适。

橙色,是整个空间的一抹牵引,通过不同材质将各个空间之间串联了起来,更是一种高贵而不张扬的态度,以一己之力便独自成景。
主卫以简洁清雅为空间基调,整体铺设的大板砖方便打理,智能镜上的灯带可以削弱面部阴影,和顶部的线灯组合在一起,营造出温馨而变化多样的光影效果。结束一天的工作后,舒舒服服的泡个热水澡,让身体和心灵都得到休憩。

地下室一进门,便亭亭玉立,吸引眼球。乐大姐团队设计老师利用米色衣帽柜柜门作装饰面,柜体一侧镂空,中间设置文创小品,灵动有趣的造型、强烈碰撞的色彩让空间充满了趣味性与仪式感。衣帽柜后面就是本案的楼梯间,也是整个地下室的暗区,所以设计时在文创小品的背后采用彩色玻璃砖,丰富的光影自由蜿蜒,折射出关于家的温馨故事,同时还起到借光的目的。


局部挑空空间的保留,为地下空间提供了更为丰富的功能区域和良好的透光条件,满足家庭娱乐和接待朋友的需求。
整个地下空间在一片灰白中调和出重心,休闲区立面均匀的灰,有清水模面的灰,岩板光滑的灰,还有采光井文化石的颗粒灰,显露出独特的意味与美感。而茶室主墙上大面积的白,虽单一直白,但也与休闲区形成视觉上的对比,理性上的牵制,画面吸睛,突出空间焦点。
休闲区背景顶墙一体化的设计、天顶垂落的晶莹叶片、夹层的玻璃栏杆,活跃的线条在多维空间里、不同材质间交融,使空间的交互有了自然的索引,彼此联动又相互独立,在绰影间将地下室引入自然之境。
白色书架在灯带的渲染下更具文人雅士的比兴风采,即便是背对书架坐于书桌前,也能感受到浓郁的书香氛围。
原结构中地下室的楼梯凹在一个过道内,整体感觉很暗,还陡,所以设计老师将楼梯和过道外口设计成齐平,并增加了2个踏步,从而使楼梯空间在视觉上得以延伸,不再局促。搭配月球灯和内嵌灯带,塑造光影重重的立体质感,而日常生活中行走的动态,也将成为空间中的一部分,带来丰富的变化与多维的感知。

地下二层改造后户型图

地下一层改造后户型图

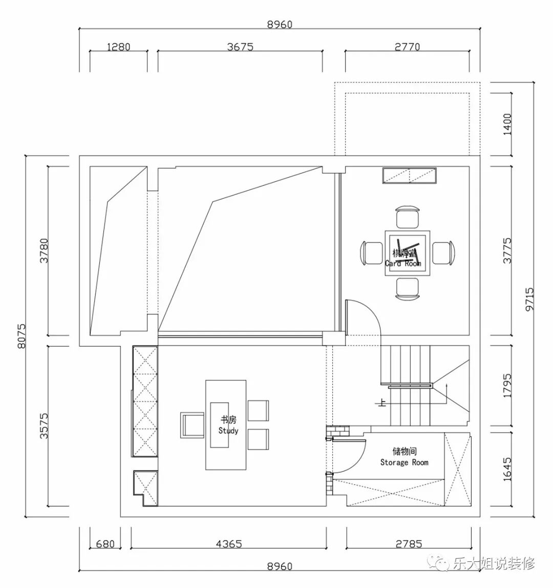
一层原始户型图

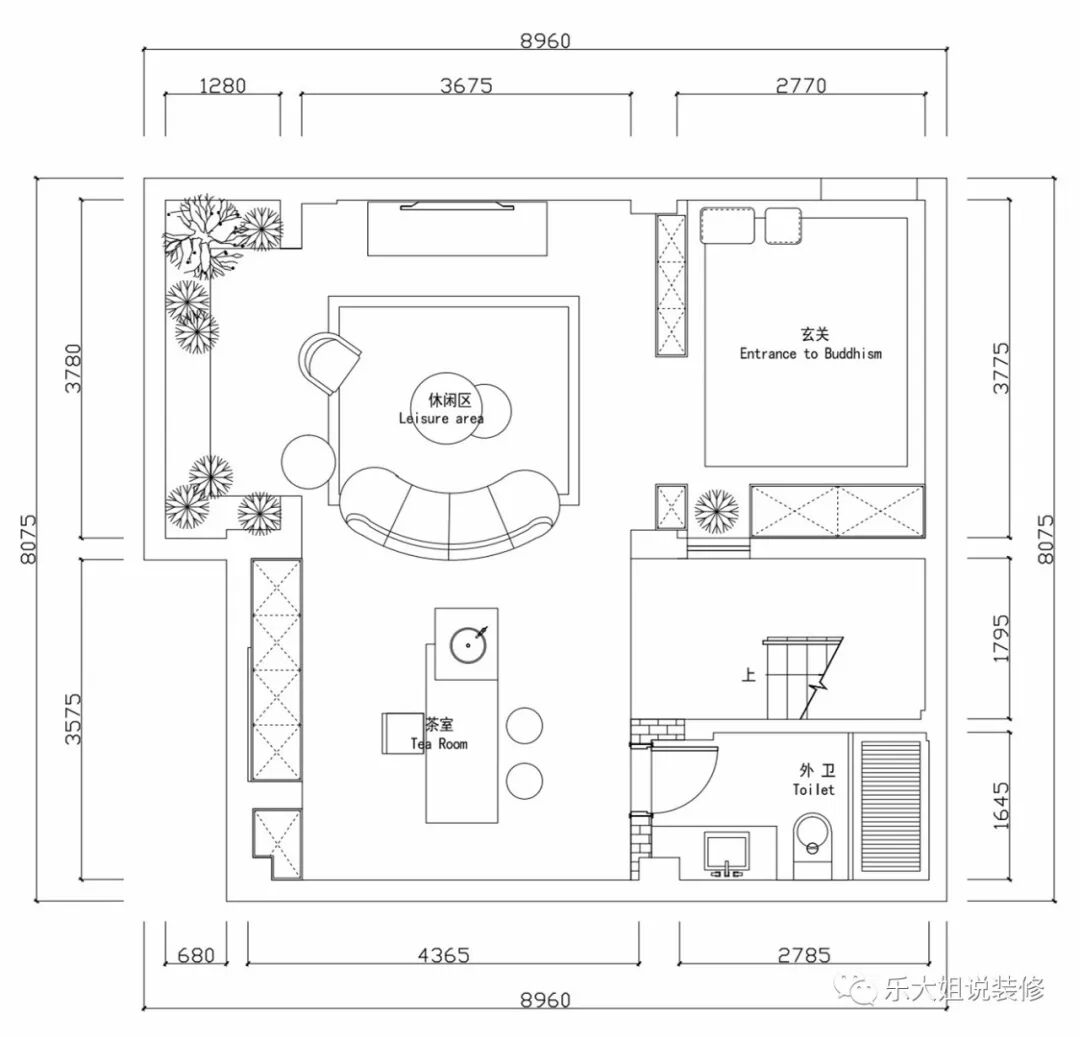
一层改造后户型图

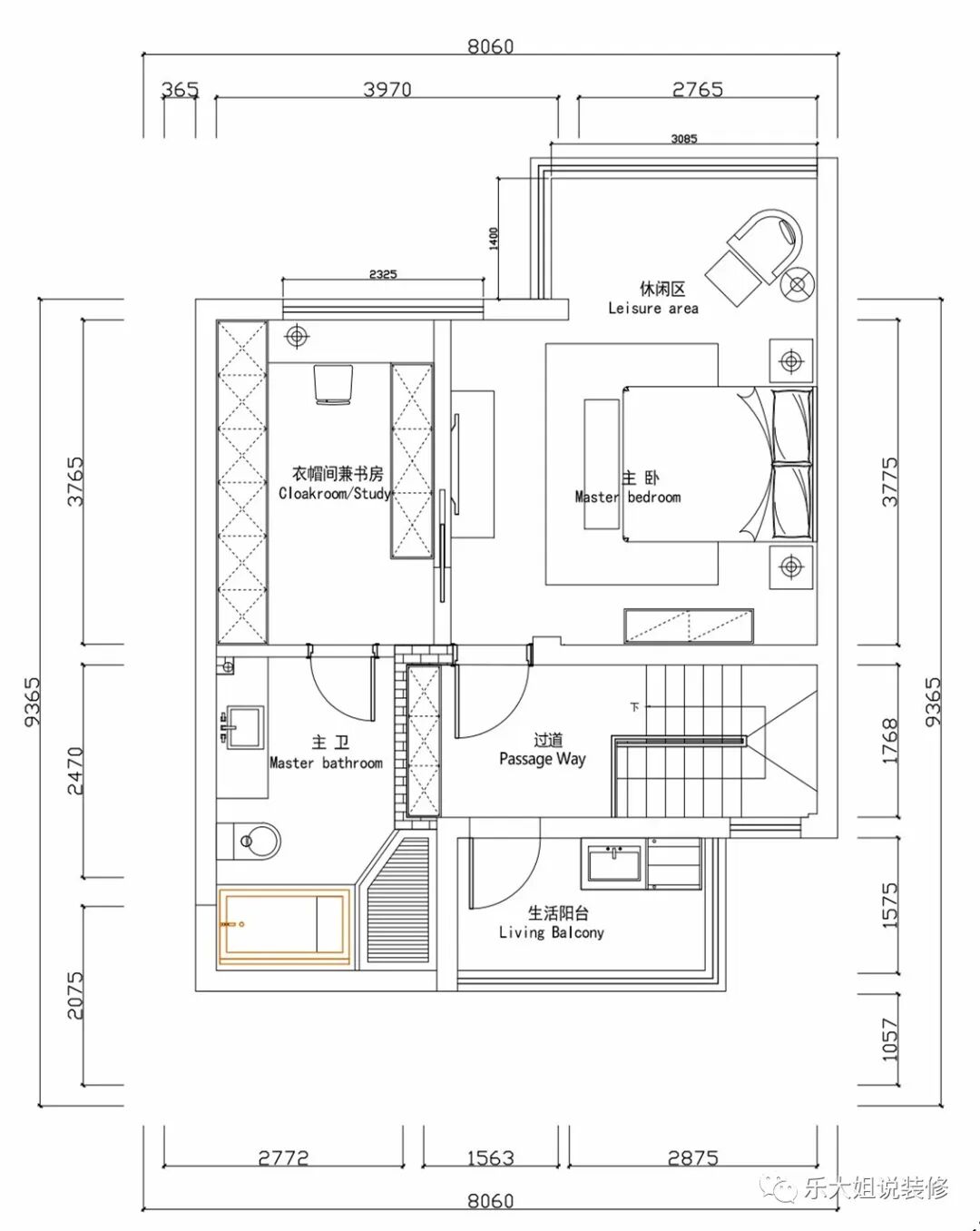
二层原始户型图

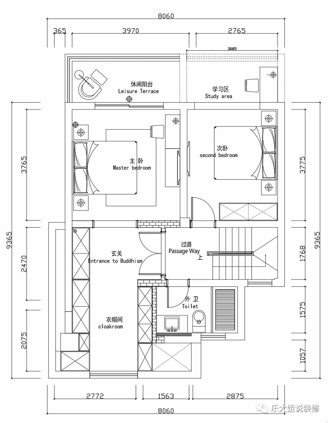
二层改造后户型图

三层原始户型图

三层改造后户型
考虑到居住的功能性和舒适度,乐大姐团队设计老师将地下室的部分挑高空间现浇成夹层,增加了书房、棋牌室、储物间等功能。
本案一楼为北入户,入户正对着沙发和一根承重柱,所以设计时依着原承重柱设计了一个半通透的弧形空间造型,从而避免了进门正对着沙发的尴尬,同时也巧妙地将原承重柱隐藏了起来。
为了优化一楼外卫的使用功能,将外卫的开门调整至靠入户门的一侧,这样台盆柜、镜面、马桶等就可以贴墙布置了,避免了因窗户的存在造成的卫生间功能布置的尴尬。
考虑到本案的常住人口仅3人,将一楼的房间和客厅打通,做成大横厅格局,从而实现采光最大化,视觉上也更宽敞。
将客厅上方的挑高空间现浇成二楼的房间,与二楼东面的房间一起打造成主卧套房,提升居住的舒适度。
- 本案三楼主卧空间虽然比较大,不过是狭长型的,所以设计时将阳台纳入到主卧空间来,扩大空间的同时也改善了采光。

点击左下方“阅读原文”,即可在线免费看本案例全景图(360°)。
END
往期案例回顾
设计说·第178期 | 472㎡中式轻奢别墅,坐拥太湖美景,在家就能感受远方!
设计说·第177期 | 242㎡叠墅实景赏析,给你想要的现代时尚感!
设计说·第176期 | 165㎡精装房大改造,守护生活的仪式感!
设计说·第175期 | 1010㎡江南园林别墅,打造当代“桃花源”!
设计说·第174期 | 370㎡现代叠墅,双客厅设计,颠覆传统居家功能划分!
设计说·第173期 | 486㎡独栋别墅实景赏析,这样的现代中式你见过吗?
设计说·第172期 | 他们家居然把餐厅“搬”到了地下室,205㎡现代叠墅设计!
设计说·第171期 | 347㎡意式联排别墅,简奢有度,尽显大宅气韵!

如果您觉得乐大姐说的内容很有价值
欢迎分享转发至您的朋友圈
让更多的朋友都能轻松装修,自在生活!
当然,您也可以添加乐大姐微信号13382100888
或扫描下方的二维码
说出您的装修难题、让乐大姐为您答疑解惑
不管您是装修完工了
还是即将装修的
或者正在装修的
乐大姐一定知无不言,言无不尽