
乐大姐
FM104.8《家在苏州--乐大姐说装修》栏目特邀嘉宾,
赫博别墅设计创始人之一;
多次受邀成为院校家居的授课讲师;
98年至今,
为万千家庭打造幸福家居的同时,也相互成为了好朋友。
任何与装修有关的问题,欢迎您添加乐大姐微信:13382100888,
乐大姐会为您做一对一解答。
每一套作品,都是私人定制
前 言
FOREWORD
本案是套二手联排别墅,原业主十几年前花了很多费用与精力装修的,至今保存得很好。所以,本案业主买了这套房子后,为了避免资源浪费以及节省开支,就想找乐大姐团队在原有装修的基础上进行改造并做软装搭配。
……
尚澜湾改造前VS改造后
PS : 因原装修地面铺的全是仿古砖,墙面贴的全是深色大花纹墙纸,且每个区域款式各不相同,整个空间看上去就很花、很乱、很压抑!改造后,重获新生,完全看不出原来的样子,反差之大,你来感受一下
庭 院
COURTYARD

“春有百花秋有月,夏有凉风冬有雪。若无闲事挂心头,便是人间好时节。”本案这套联排别墅院子的重新设计,就是这句诗歌的印证。
乐大姐团队设计老师一改原装修中庭院的封闭式格局,将非必要的建筑隔墙拆除,把已废弃的采光井重新利用了起来,阳光洒在采光玻璃上宛如水面,波光粼粼,形成十分开阔的视觉感受。

使用更持久耐用的户外砖代替原来有些腐烂的防腐木铺设院子的道路,更加干净整洁。同时,利用自然元素如植被、花草、山石来设置出具有自然魅力的景观,生机盎然。在这里,可以听虫鸣莺飞,赏草长花开,看四季之景从容不迫地流淌而过。在这里,亲朋相伴,远离城市喧嚣,为自我寻找一处心灵安放地。


客 厅
LIVING ROOM

二手房改造,改的不仅仅是格局,更是生活方式的转变,是对未来生活的规划,是审美水平的与时俱进。未来生活的舒适,都在于设计一笔一划的分寸之间。
推门而入,一大面的鎏金金属隔断映入眼帘,精致中保留优雅,细节中体现品质,让门厅瞬间拥有了大宅的礼序感与奢华感。且,镂空隔断还可以透过客厅的落地窗引光/景入室。

客厅保留原装修的方正宽敞的大横厅格局,但在细节和材料上精雕细琢。首先,以暖白色的乳胶漆&线条代替繁复的花色墙纸,横平竖直的立体线条,结合经典风格沙发、茶几,整个空间得以如欧泊石一般,呈现出多变的色彩维度。


其次,保留原有壁炉的同时,去掉罗马柱、拱形门等繁复的美式元素(层高有限,过于浮夸会导致压抑),整个空间散发出时尚优雅的气息。壁炉上的骑士油画,渲染文艺复兴派摩登艺术,金属铜提亮整个空间,都市时尚品味跃然于现。
米灰色的大理石台阶搭配铜制镂空雕花扶手,大气也不失低调。而原楼梯正对着老人房,在风水上是比较忌讳的,所以设计时用不锈钢花格做了遮挡。
餐 厅
DINING ROOM

原装修中虽然一楼和地下室各有一个厨房与餐厅,但是一楼的餐厨空间被闲置了,地下室的餐厨动线上又比较复杂。所以,设计老师重新启用一楼的开放式餐厨,并在餐厅与厨房之间增加了岛台,丰富空间功能、增添生活情趣与便利的同时,还起到分割功能空间的作用。


雅士白岛台与乳白色木质餐桌搭配冷静又沉稳,不经意的细节中舒缓着美式优雅。奢华红棕色餐椅与地面的棕色仿古砖相呼应,姿态万千,犹如婀娜多姿的舞者,又如同盛开的花朵,无不呼吸着美式优雅。
一楼卧室
SECOND ROOM

老人房墙面素雅,用墙布和太阳镜进行装饰,低调中透出一丝雅致,木质地板和木作家具使整个空间踏实了起来。
二楼次卧
SECOND ROOM

二楼次卧光照宜人,浅色壁纸、灰色木地板、深蓝色床品、皮质铆钉高靠背床和美式床头柜、桌椅,整体协调统一,一踏入卧室就好似抛开了烦闷,只剩下安心和踏实。
二楼主卧
MASTER ROOM



原装修中主卧的深色大花纹墙纸,让人眼花缭乱的同时心也无法安静下来,很是压抑。所以,设计老师将其全部拆除,改用暖白色的乳胶漆&线条&墙纸,这样不仅提亮了整个睡眠空间,还增加了温馨与质感,人待在里面能彻底地放松自我,十分舒适。而宝石蓝作为跳色,使空间大气中又不失生活的趣味。线条立体的护墙板,水晶质感的璀璨灯具,皮质有纹理的软包高背床,欧式城堡建筑壁画,家具上精致的雕花,每一处细节都体现着轻奢感,带我们走进优雅的美式空间。

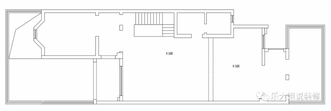
地下室
BASEMENT

本案地下室原来的功能布局十分混乱(既有厨房、餐厅,又有杂物间),与其他空间之间的联系性也差,所以设计老师对地下空间进行了重新规划,首先让餐厨空间回归到一楼的本位,然后再根据业主的需求设置了观影区、水吧区、书房、地下庭院, 丰富了空间的秩序。



浅色调的运用和采光井的重新搭建也给空间带来了视觉的扩展,豁然开朗,让这里不再是阴暗冷峻的地下空间。

好的戏剧可以带来艺术的享受,而与家人的共享又让这一刻多了些温馨。宽敞舒适的大沙发将视觉的满足感延长至感觉,身与心都将在这得到安慰。
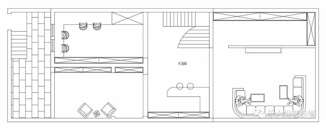
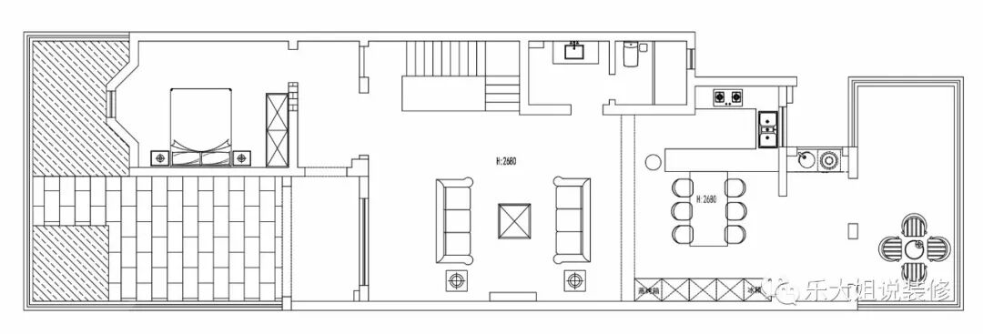
平面方案
FLAT PLAN

一层改造后户型
- 本案这套二手老别墅虽然已经装修十几年了,但因保存得当,且装修的美式风格业主也喜欢,所以并没有重装,而是选择了做软装改造,将老的、过时的软装、家具等做了替换升级,收纳空间也增加了不少,也因此基本上没有涉及到什么户型改造,特别是二层,仅主卧做了软装搭配。
全景图
PANORAMA
点击左下方“阅读原文”,即可在线免费看本案例全景图(360°)。
https://vr.justeasy.cn/view/dh31660g2996g252-1661445041.html
END
往期案例回顾
设计说·第179期 | 310㎡现代简约,以简驭繁,多维生活!
设计说·第178期 | 472㎡中式轻奢别墅,坐拥太湖美景,在家就能感受远方!
设计说·第177期 | 242㎡叠墅实景赏析,给你想要的现代时尚感!
设计说·第176期 | 165㎡精装房大改造,守护生活的仪式感!
设计说·第175期 | 1010㎡江南园林别墅,打造当代“桃花源”!
设计说·第174期 | 370㎡现代叠墅,双客厅设计,颠覆传统居家功能划分!
设计说·第173期 | 486㎡独栋别墅实景赏析,这样的现代中式你见过吗?
设计说·第172期 | 他们家居然把餐厅“搬”到了地下室,205㎡现代叠墅设计!

如果您觉得乐大姐说的内容很有价值
欢迎分享转发至您的朋友圈
让更多的朋友都能轻松装修,自在生活!
当然,您也可以添加乐大姐微信号13382100888
或扫描下方的二维码
说出您的装修难题、让乐大姐为您答疑解惑
不管您是装修完工了
还是即将装修的
或者正在装修的
乐大姐一定知无不言,言无不尽