乐大姐
FM104.8《家在苏州--乐大姐说装修》栏目特邀嘉宾,
赫博别墅设计创始人之一;
多次受邀成为院校家居的授课讲师;
98年至今,
为万千家庭打造幸福家居的同时,也相互成为了好朋友。
任何与装修有关的问题,欢迎您添加乐大姐微信:13382100888,
乐大姐会为您做一对一解答。
每一套作品,都是私人定制
项目地点:太湖上景
项目面积:274.8㎡+50㎡(联排)
项目风格:现代法式
项目性质:别墅整装
项目状态:已交付
海明威曾说过:“假如你有幸年轻时在巴黎生活过,那么你此后一生不论去到哪里,她都与你同在,因为巴黎,是一席流动的盛宴。”法式的浪漫与优雅,是从骨子里透出来,令人一见倾心。那么,今天就跟乐大姐一起来看这套让业主不停赞叹“精彩纷呈、韵味无穷”的法式联排别墅吧
~












































平面方案

地下室原始户型图

地下室改造后户型图

一层原始户型图

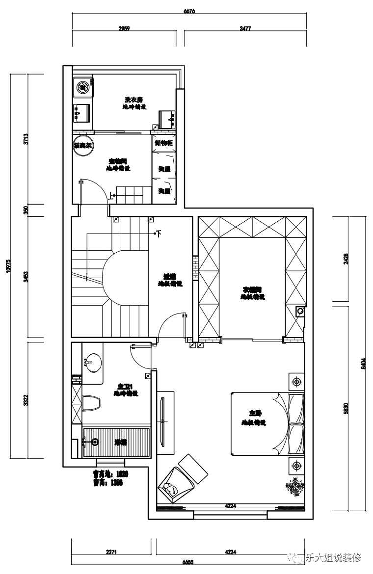
一层改造后户型图

二层原始户型图

二层改造后户型图
点击文章底部左下方“阅读原文”,即可在线免费看本案例全景图(360°)。
https://vr.justeasy.cn/view/61618181093s04j5-1619759892.html
本案位于吴中太湖度假区边上,业主买这套房子已经有七八年了,刚开始是准备用来投资的,所以一直闲置着,现在考虑到太湖边上环境越来越好,配套设施也逐渐齐全起来,再加上女业主非常喜欢小动物,家里有三只狗狗、一只猫咪,担心宠物影响到邻居(现住园区的一套平层),于是业主夫妻两决定把这套房好好装修一下以后用来养老养宠物!风格上,整套设计都是以女业主为主导(男业主完全尊重爱人的想法),女业主喜欢有情调的生活方式,跟乐大姐团队沟通后最终选择了浪漫优雅的法式风。
▲ 乐大姐团队&太湖上景业主夫妇合影留念
拍摄现场,在和乐大姐、苏州电视台《第一时间》拍摄老师等聊天的过程中,业主周女士提到“说起装修我们家其实蛮折腾的,到目前为止我们已经装过好几套房了,但每一次的装修经历都不太好。我记得有一次装修选择的是苏州一家大规模公司,以为这样会有保障,结果设计上让我们感受不太好;然后我们刚刚卖掉的房子的装修,当时特地选的上海的一家装修公司,本想着会更放心一些,谁知道装修过程中操心得要命,设计效果也不好,入住之后家里还漏水。这套房子装修,找了你们乐大姐团队,可以说是我们最幸福的一次装修选择,全程不需要我们操一点心,关键呈现出来的效果太美了。然后,工程快要结束的时候,我一个好朋友来现场看了也觉得装修得太好了,所以我们由衷地感谢乐大姐团队!”
▲ 乐大姐正在拍摄苏州电视台《第一时间》解析样板房装修知识点聊天话题中,了解到业主一家子非常有爱心,他们养了三条狗、一只猫,这次装修还特地为了猫猫狗狗们设计了套房。定制的上下床、专用的洗漱间,宠物们在新家可以享受五星级的环境,地下室还安排了乌龟池!▲ 乐大姐正在拍摄苏州电视台《第一时间》解析样板房装修知识点样板房拍摄当天晚上6点多的时候,乐大姐团队设计老师去车上拿东西,正好被小区的一个邻居看到了,邻居说:“对,就是你,我老公在朋友圈里看到你们乐大姐团队今天在我们太湖上景拍摄样板房,我就在小区里转着找,正好看到了你,乐大姐今天朋友圈里分享的照片上有你,太好了,我可以进去看看嘛?”在征得业主同意后,这个女邻居就进来参观了,她边看边感叹:“啊,太漂亮了,从来没有见过这种风格,唉,我家装修装早了… ”
▲ 乐大姐团队在小区大门处合影留念本案这套法式联排别墅的样板房拍摄,乐大姐团队从早上一早拍到天黑,总共拍了29条设计亮点(这种户型,一般拍摄亮点不会超过15条的),设计亮点就是之前没有分享过的设计手法,乐大姐团队内部称之为:“差异化设计”,也因此拍摄结束后小区门口跟酒店门口的合影,天色都非常暗了。

因为高品质的交付,业主在竣工评语上写道“这套房子可以让你进入精彩纷呈、韵味无穷的世界!”因为高品质的交付,业主拍摄当天一早就准备好了各种水果、饮品,甚至还特地送来了午饭!因为高品质的交付,竣工酒现场,业主两口子跟乐大姐团队无所不谈,犹如多年不见的老朋友一样!
END
往期案例回顾
设计说·第180期 | 257㎡别墅改造,重获新生的魅力!
设计说·第179期 | 310㎡现代简约,以简驭繁,多维生活!
设计说·第178期 | 472㎡中式轻奢别墅,坐拥太湖美景,在家就能感受远方!
设计说·第177期 | 242㎡叠墅实景赏析,给你想要的现代时尚感!
设计说·第176期 | 165㎡精装房大改造,守护生活的仪式感!
设计说·第175期 | 1010㎡江南园林别墅,打造当代“桃花源”!
设计说·第174期 | 370㎡现代叠墅,双客厅设计,颠覆传统居家功能划分!
设计说·第173期 | 486㎡独栋别墅实景赏析,这样的现代中式你见过吗?

如果您觉得乐大姐说的内容很有价值
欢迎分享转发至您的朋友圈
让更多的朋友都能轻松装修,自在生活!
当然,您也可以添加乐大姐微信号13382100888
或扫描下方的二维码
说出您的装修难题、让乐大姐为您答疑解惑
不管您是装修完工了
还是即将装修的
或者正在装修的
乐大姐一定知无不言,言无不尽